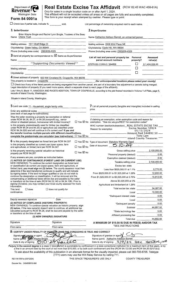
Property
Account |
| Property ID: | 264859 | Abbreviated Legal Description: | HANCOCK & RACE ALL BLOCK 11 LOTS 1 THRU 8 |
| Geographic ID: | S7070-00-11000-0 | Agent Code: | |
| Type: | Real | | |
| Tax Area: | 300 - APPRAISER-Cpvl Schl Dist, in Cpvl | Land Use Code | 11 |
| Open Space: | N | DFL | N |
| Historic Property: | N | Remodel Property: | N |
| Multi-Family Redevelopment: | N | | |
| Township: | | Section: | |
| Range: | |
Location |
| Address: | 502 NW COVELAND ST COUPEVILLE, WA 98239 | Mapsco: | |
| Neighborhood: | Cycle 2 | Map ID: | 174 |
| Neighborhood CD: | 2 |
Owner |
| Name: | BARRETT, KATHARINE ADDISON | Owner ID: | 312295 |
| Mailing Address: | 2609 93RD PL NE CLYDE HILL, WA 98004 | % Ownership: | 100.0000000000% |
| | | Exemptions: | |
Taxes and Assessment Details
Values
| (+) Improvement Homesite Value: | + | N/A | |
| (+) Improvement Non-Homesite Value: | + | N/A | |
| (+) Land Homesite Value: | + | N/A | |
| (+) Land Non-Homesite Value: | + | N/A | Ag / Timber Use Value |
| (+) Curr Use (HS): | + | N/A | N/A |
| (+) Curr Use (NHS): | + | N/A | N/A |
| | | -------------------------- | |
| (=) Market Value: | = | N/A | |
| (–) Productivity Loss: | – | N/A | |
| | | -------------------------- | |
| (=) Subtotal: | = | N/A | |
| (+) Senior Appraised Value: | + | N/A | |
| (+) Non-Senior Appraised Value: | + | N/A | |
| | | -------------------------- | |
| (=) Total Appraised Value: | = | N/A | |
| (–) Senior Exemption Loss: | – | N/A | |
| (–) Exemption Loss: | – | N/A | |
| | | -------------------------- | |
| (=) Taxable Value: | = | N/A | |
Taxing Jurisdiction
| Owner: | BARRETT, KATHARINE ADDISON | | |
| % Ownership: | 100.0000000000% | | |
| Total Value: | N/A | | |
| Tax Area: | 300 - APPRAISER-Cpvl Schl Dist, in Cpvl |
| CF | Conservation Futures | N/A | N/A | N/A | N/A | | |
| WCD | Whidbey Conservation District | N/A | N/A | N/A | N/A | | |
| CEM2 | Cemetery #2 | N/A | N/A | N/A | N/A | | |
| COUP | City: Town of Coupeville | N/A | N/A | N/A | N/A | | |
| FIRE5 | Fire & Rescue Dist #5 C Whidbey GEN | N/A | N/A | N/A | N/A | | |
| FIRE5BOND | Fire & Rescue Dist #5 C Whidbey BOND | N/A | N/A | N/A | N/A | | |
| HOBOND | Hospital BOND | N/A | N/A | N/A | N/A | | |
| HOGEN | Hospital GEN | N/A | N/A | N/A | N/A | | |
| CE | County Current Expense | N/A | N/A | N/A | N/A | | |
| ISLANDEMS | Hospital GEN (EMS) | N/A | N/A | N/A | N/A | | |
| LIB | Library Sno-Isle GEN | N/A | N/A | N/A | N/A | | |
| LIBCAP | Library Sno-Isle BOND (Cap Fac Imp Area) | N/A | N/A | N/A | N/A | | |
| POCOUP | Port of Coupeville GEN | N/A | N/A | N/A | N/A | | |
| COUPSDTECH | School 204 CP (TECH) | N/A | N/A | N/A | N/A | | |
| SCH204MO | School 204 Enrichment | N/A | N/A | N/A | N/A | | |
| ST | State School | N/A | N/A | N/A | N/A | | |
| ST2 | State School Part 2 | N/A | N/A | N/A | N/A | | |
| | Total Tax Rate: | N/A | | | | | |
| | | | | Taxes w/Current Exemptions: | N/A | | |
| | | | | Taxes w/o Exemptions: | N/A | | |
Improvement / Building
| Improvement #1: | RESIDENTIAL | State Code: | Y | 2645.9 sqft | Value: | N/A |
| Bathrooms: | 3.5 | Bedrooms: | 4 | | Ceiling: | TONGUE & GROOVE | Exterior Wall/Cover: | SHINGLE | | Floor Covering: | HARDWOOD 100% | Floor Structure: | WOOD W/SUBFLOOR | | Foundation: | CONCRETE BLOCKS | Heating: | RAD HOT WATER-OIL | | Interior Finish: | INT FINISH WD PANEL | Plumbing Fixture Cnt: | 14 | | Roof Slope: | 8" IN 12" | Roof Structure/Cover: | BEAM WOOD SHAKES |
|
| | Type | Description | Class CD | Sub Class CD | Year Built | Area |
| | BAS | BASE/MAIN FLOOR | 4 | 0 | 1859 | 1515.0 |
| | OP2 | OPEN PORCH W/STEPS | 4 | 0 | 1859 | 132.8 |
| | OWP | OPEN WOOD PORCH W/STEPS | 4 | 0 | 1859 | 144.0 |
| | DWN | DOWNSTAIRS LIVING AREA | 4 | 0 | 1859 | 1130.9 |
| | DGR | DETACHED GARAGE | 4 | 0 | 1859 | 572.0 |
| | UTY | STORAGE/UTILITY | 4 | 0 | 1859 | 59.2 |
Sketch
Property Image
Land
| 1 | HB | HIGH BLUFF | 1.0000 | 43560.00 | 200.00 | 0.00 | 1.00 | N/A | N/A |
Roll Value History
| 2026 | N/A | N/A | N/A | N/A | N/A |
| 2025 | $422,916 | $1,025,000 | $0 | $1,447,916 | $1,447,916 |
| 2024 | $428,536 | $975,000 | $0 | $1,403,536 | $1,403,536 |
| 2023 | $449,028 | $975,000 | $0 | $1,424,028 | $1,424,028 |
| 2022 | $412,471 | $930,000 | $0 | $1,342,471 | $1,342,471 |
| 2021 | $363,784 | $775,000 | $0 | $1,138,784 | $1,138,784 |
| 2020 | $355,379 | $750,000 | $0 | $1,105,379 | $1,105,379 |
| 2019 | $267,576 | $650,000 | $0 | $917,576 | $917,576 |
| 2018 | $259,757 | $600,000 | $0 | $859,757 | $859,757 |
| 2017 | $261,433 | $600,000 | $0 | $861,433 | $861,433 |
| 2016 | $264,814 | $600,000 | $0 | $864,814 | $864,814 |
| 2015 | $268,196 | $600,000 | $0 | $868,196 | $868,196 |
| 2014 | $271,576 | $600,000 | $0 | $871,576 | $871,576 |
| 2013 | $274,958 | $555,510 | $0 | $830,468 | $830,468 |
| 2012 | $278,340 | $555,510 | $0 | $833,850 | $833,850 |
| 2011 | $281,720 | $555,510 | $0 | $837,230 | $837,230 |
| 2010 | $293,981 | $555,510 | $0 | $849,491 | $849,491 |
| 2009 | $212,172 | $650,300 | $0 | $862,472 | $862,472 |
| 2008 | $185,511 | $650,300 | $0 | $835,811 | $835,811 |
| 2007 | $252,752 | $650,300 | $0 | $903,052 | $903,052 |
Deed and Sales History
| 1 | 05/10/2024 | WD | Warranty Deed | BROGIE TTEE, BRIAN WAYNE | BARRETT, KATHARINE ADDISON | | | $2,100,000.00 | 59924 | 4572213 |
| 2 | 05/10/2024 | QCD | Quit Claim Deed | BROGIE FAMILY FOUNDATION | BROGIE TTEE, BRIAN WAYNE | | | $0.00 | 59923 | 4572212 |
| 3 | 09/16/2019 | WD | Warranty Deed | SANTOS, GAY | BROGIE FAMILY FOUNDATION | | | $1,395,000.00 | 40311 | 4471598 |
|   | |
| 4 | 04/12/2006 | WD | Warranty Deed | KEEVA, JOSEPH W | SANTOS, GAY | | | $940,144.00 | 61727 | 4168245 |
| 5 | 04/01/1997 | EXECUTORD | Executor Deed | SALLADAY, GEORGE D | KEEVA, JOSEPH W | | | $313,500.00 | 71364 | 97006207 |
| 6 | 07/01/1994 | EXECUTORD | Executor Deed | FULLINGTON, MARY W | SALLADAY, GEORGE D | | | $0.00 | 43047 | 94016507 |
| 7 | 01/01/1900 | OTHER | Other - Misc. Documents | Unknown | FULLINGTON, MARY W | | | $0.00 | 0 | 0 |
Payout Agreement
| No payout information available.. |