Property
Account |
| Property ID: | 528922 | Abbreviated Legal Description: | ALDERWOOD HEIGHTS #1 LOT 6 |
| Geographic ID: | S6024-00-00006-0 | Agent Code: | |
| Type: | Real | | |
| Tax Area: | 112 - APPRAISER-OH Schl Dist, outside OH, improved, greater than 1 acre | Land Use Code | 11 |
| Open Space: | N | DFL | N |
| Historic Property: | N | Remodel Property: | N |
| Multi-Family Redevelopment: | N | | |
| Township: | | Section: | |
| Range: | |
Location |
| Address: | 1169 TARRAGON PLACE OAK HARBOR, WA 98277 | Mapsco: | |
| Neighborhood: | Cycle 6 | Map ID: | 654 |
| Neighborhood CD: | 6 |
Owner |
| Name: | VALROSA JR, ANDREW M | Owner ID: | 282823 |
| Mailing Address: | GRACE ANTOINETTE VALROSA 1111CHELEEK RD OAK HARBOR, WA 98277 | % Ownership: | 100.0000000000% |
| | | Exemptions: | |
Taxes and Assessment Details
Values
| (+) Improvement Homesite Value: | + | $0 | |
| (+) Improvement Non-Homesite Value: | + | $196,522 | |
| (+) Land Homesite Value: | + | $0 | |
| (+) Land Non-Homesite Value: | + | $200,000 | |
| (+) Curr Use (HS): | + | $0 | $0 |
| (+) Curr Use (NHS): | + | $0 | $0 |
| | | -------------------------- | |
| (=) Market Value: | = | $396,522 | |
| (–) Productivity Loss: | – | $0 | |
| | | -------------------------- | |
| (=) Subtotal: | = | $396,522 | |
| (+) Senior Appraised Value: | + | $0 | |
| (+) Non-Senior Appraised Value: | + | $396,522 | |
| | | -------------------------- | |
| (=) Total Appraised Value: | = | $396,522 | |
| (–) Senior Exemption Loss: | – | $0 | |
| (–) Exemption Loss: | – | $0 | |
| | | -------------------------- | |
| (=) Taxable Value: | = | $396,522 | |
Taxing Jurisdiction
| Owner: | VALROSA JR, ANDREW M | | |
| % Ownership: | 100.0000000000% | | |
| Total Value: | $396,522 | | |
| Tax Area: | 112 - APPRAISER-OH Schl Dist, outside OH, improved, greater than 1 acre |
| CF | Conservation Futures | 0.0456303802 | $396,522 | $396,522 | $18.09 | | |
| WCD | Whidbey Conservation District | 0.0000000000 | $396,522 | $396,522 | $0.00 | | |
| CEM1 | Cemetery #1 | 0.0055890736 | $396,522 | $396,522 | $2.22 | | |
| FIRE2 | Fire & Rescue Dist #2 N Whidbey GEN | 0.6210318608 | $396,522 | $396,522 | $246.25 | | |
| HOBOND | Hospital BOND | 0.2687596300 | $396,522 | $396,522 | $106.57 | | |
| HOGEN | Hospital GEN | 0.0799702568 | $396,522 | $396,522 | $31.71 | | |
| CDD | County Developmental Disabilities | 0.0000000000 | $396,522 | $396,522 | $0.00 | | |
| CE | County Current Expense | 0.5334690586 | $396,522 | $396,522 | $211.53 | | |
| COMH | County Mental Health | 0.0000000000 | $396,522 | $396,522 | $0.00 | | |
| CVR | County Veteran's Relief | 0.0000000000 | $396,522 | $396,522 | $0.00 | | |
| CR | County Roads | 0.6716097342 | $396,522 | $396,522 | $266.31 | | |
| ISLANDEMS | Hospital GEN (EMS) | 0.4648473658 | $396,522 | $396,522 | $184.32 | | |
| LIB | Library Sno-Isle GEN | 0.4411090169 | $396,522 | $396,522 | $174.91 | | |
| NWHIDPRMT | P & R N Whidbey GEN | 0.1888225130 | $396,522 | $396,522 | $74.87 | | |
| SCH201BOND | School 201 BOND | 1.7060385717 | $396,522 | $396,522 | $676.48 | | |
| SCH201MO | School 201 Enrichment | 2.2850104025 | $396,522 | $396,522 | $906.06 | | |
| ST | State School | 1.8482182819 | $396,522 | $396,522 | $732.86 | | |
| ST2 | State School Part 2 | 0.9931694675 | $396,522 | $396,522 | $393.81 | | |
| | Total Tax Rate: | 10.1532756135 | | | | | |
| | | | | Taxes w/Current Exemptions: | $4,025.99 | | |
| | | | | Taxes w/o Exemptions: | $4,025.99 | | |
Improvement / Building
| Improvement #1: | RESIDENTIAL | State Code: | Y | 2223.6 sqft | Value: | $196,522 |
| Bathrooms: | 4 | Bedrooms: | 3 | | Ceiling: | DRYWALL PAINTED | Exterior Wall/Cover: | WOOD SIDING | | Floor Covering: | HARDWOOD/CARP 20-80 | Floor Structure: | SLAB ON GRADE | | Foundation: | SLAB/CONCRETE | Heating: | BASEBOARD ELECTRIC | | Interior Finish: | DRYWALL PAINT | Plumbing Fixture Cnt: | 14 | | Roof Slope: | 4" IN 12" | Roof Structure/Cover: | BEAM ASPHALT |
|
| | Type | Description | Class CD | Sub Class CD | Year Built | Area |
| | BAS | BASE/MAIN FLOOR | 3 | 0 | 1988 | 1388.6 |
| | OP3 | OPEN PORCH W/ROOF | 3 | 0 | 1988 | 16.0 |
| | AGR | ATTACHED GARAGE | 3 | 0 | 1988 | 461.0 |
| | UPS | UPPER STORY | 3 | 0 | 1988 | 835.0 |
| | ENP | ENCLOSED PORCH | 3 | 0 | 1988 | 448.0 |
| | UTY | STORAGE/UTILITY | 3 | 0 | 1988 | 224.0 |
| | OP1 | OPEN PORCH SLAB | 3 | 0 | 1988 | 701.4 |
Sketch
Property Image
Land
| 1 | 18 | AC (02.01-03.00) | 0.0000 | 0.00 | 0.00 | 0.00 | 1.00 | $200,000 | $0 |
Roll Value History
| 2026 | N/A | N/A | N/A | N/A | N/A |
| 2025 | $397,698 | $250,000 | $0 | $647,698 | $647,698 |
| 2024 | $411,250 | $230,000 | $0 | $641,250 | $641,250 |
| 2023 | $416,643 | $220,000 | $0 | $636,643 | $636,643 |
| 2022 | $382,151 | $210,000 | $0 | $592,151 | $592,151 |
| 2021 | $336,558 | $160,000 | $0 | $496,558 | $496,558 |
| 2020 | $258,667 | $140,000 | $0 | $398,667 | $398,667 |
| 2019 | $196,522 | $200,000 | $0 | $396,522 | $396,522 |
| 2018 | $197,192 | $170,000 | $0 | $367,192 | $367,192 |
| 2017 | $198,533 | $150,000 | $0 | $348,533 | $348,533 |
| 2016 | $194,062 | $120,000 | $0 | $314,062 | $314,062 |
| 2015 | $196,770 | $100,000 | $0 | $296,770 | $296,770 |
| 2014 | $199,479 | $100,000 | $0 | $299,479 | $299,479 |
| 2013 | $202,189 | $80,000 | $0 | $282,189 | $282,189 |
| 2012 | $204,897 | $108,000 | $0 | $312,897 | $312,897 |
| 2011 | $206,911 | $120,000 | $0 | $326,911 | $326,911 |
| 2010 | $216,960 | $120,000 | $0 | $336,960 | $336,960 |
| 2009 | $226,373 | $155,000 | $0 | $381,373 | $381,373 |
| 2008 | $234,985 | $145,000 | $0 | $379,985 | $379,985 |
| 2007 | $238,075 | $145,000 | $0 | $383,075 | $383,075 |
Deed and Sales History
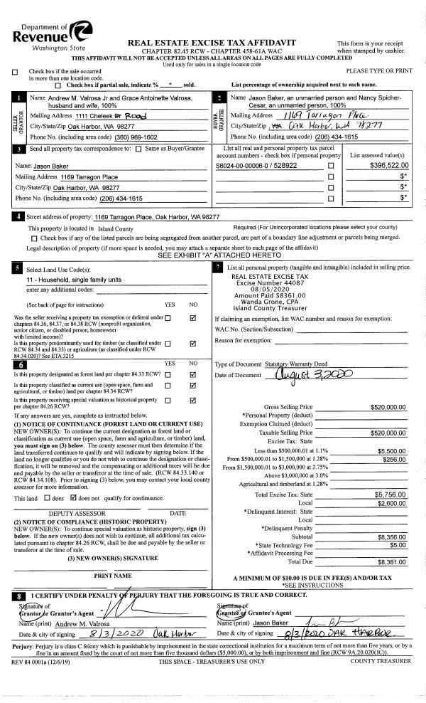
| 1 | 08/03/2020 | WD | Warranty Deed | VALROSA JR, ANDREW M | BAKER, JASON | | | $520,000.00 | 44087 | 4493015 |
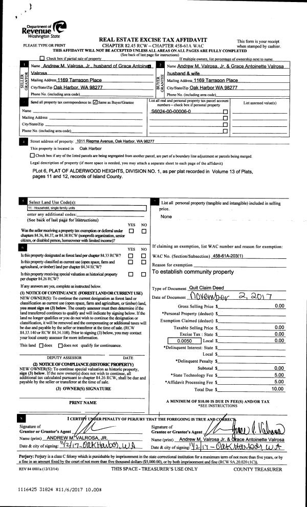
| 2 | 11/02/2017 | QCD | Quit Claim Deed | VALROSA, ANDREW M | VALROSA JR, ANDREW M | | | $0.00 | 31824 | 4433655 |
| 3 | 12/01/1983 | WD | Warranty Deed | KILBREATH, TERRANCE L | VALROSA, ANDREW M | | | $22,900.00 | 33785 | 419341 |
| 4 | 12/01/1978 | OTHER | Other - Misc. Documents | Unknown | KILBREATH, TERRANCE L | | | $65,000.00 | 86108 | 344674 |
Payout Agreement
| No payout information available.. |