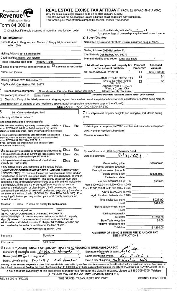
Property
Account |
| Property ID: | 559719 | Abbreviated Legal Description: | SUN WEST LOT 1D |
| Geographic ID: | S8282-00-00001-0 | Agent Code: | |
| Type: | Real | | |
| Tax Area: | 710 - APPRAISER-S Whid Schl Dist, outside Langley, improved & 1 acre or less | Land Use Code | 11 |
| Open Space: | N | DFL | N |
| Historic Property: | N | Remodel Property: | N |
| Multi-Family Redevelopment: | N | | |
| Township: | | Section: | |
| Range: | |
Location |
| Address: | 5396 IVY BLUFF LN FREELAND, WA 98249 | Mapsco: | |
| Neighborhood: | Cycle 3 | Map ID: | 303 |
| Neighborhood CD: | 3 |
Owner |
| Name: | RUDO, JEREMY | Owner ID: | 300226 |
| Mailing Address: | RONA FRIMMER 8240 14TH AVE NE SEATTLE, WA 98115 | % Ownership: | 100.0000000000% |
| | | Exemptions: | |
Taxes and Assessment Details
Values
| (+) Improvement Homesite Value: | + | $0 | |
| (+) Improvement Non-Homesite Value: | + | $369,678 | |
| (+) Land Homesite Value: | + | $0 | |
| (+) Land Non-Homesite Value: | + | $735,000 | |
| (+) Curr Use (HS): | + | $0 | $0 |
| (+) Curr Use (NHS): | + | $0 | $0 |
| | | -------------------------- | |
| (=) Market Value: | = | $1,104,678 | |
| (–) Productivity Loss: | – | $0 | |
| | | -------------------------- | |
| (=) Subtotal: | = | $1,104,678 | |
| (+) Senior Appraised Value: | + | $0 | |
| (+) Non-Senior Appraised Value: | + | $1,104,678 | |
| | | -------------------------- | |
| (=) Total Appraised Value: | = | $1,104,678 | |
| (–) Senior Exemption Loss: | – | $0 | |
| (–) Exemption Loss: | – | $0 | |
| | | -------------------------- | |
| (=) Taxable Value: | = | $1,104,678 | |
Taxing Jurisdiction
| Owner: | RUDO, JEREMY | | |
| % Ownership: | 100.0000000000% | | |
| Total Value: | $1,104,678 | | |
| Tax Area: | 710 - APPRAISER-S Whid Schl Dist, outside Langley, improved & 1 acre or less |
| CF | Conservation Futures | 0.0320173310 | $1,104,678 | $1,104,678 | $35.37 | | |
| WCD | Whidbey Conservation District | 0.0000000000 | $1,104,678 | $1,104,678 | $0.00 | | |
| FIRE3 | Fire & Rescue Dist #3 S Whidbey GEN | 0.8139398714 | $1,104,678 | $1,104,678 | $899.14 | | |
| HOBOND | Hospital BOND | 0.1899917765 | $1,104,678 | $1,104,678 | $209.88 | | |
| HOGEN | Hospital GEN | 0.3914191658 | $1,104,678 | $1,104,678 | $432.39 | | |
| CDD | County Developmental Disabilities | 0.0000000000 | $1,104,678 | $1,104,678 | $0.00 | | |
| CE | County Current Expense | 0.3724427666 | $1,104,678 | $1,104,678 | $411.43 | | |
| COMH | County Mental Health | 0.0000000000 | $1,104,678 | $1,104,678 | $0.00 | | |
| CVR | County Veteran's Relief | 0.0000000000 | $1,104,678 | $1,104,678 | $0.00 | | |
| CR | County Roads | 0.4600155052 | $1,104,678 | $1,104,678 | $508.17 | | |
| ISLANDEMS | Hospital GEN (EMS) | 0.3312302018 | $1,104,678 | $1,104,678 | $365.90 | | |
| LIB | Library Sno-Isle GEN | 0.3243030872 | $1,104,678 | $1,104,678 | $358.25 | | |
| PORTWHID | Port of S Whidbey GEN | 0.1098760597 | $1,104,678 | $1,104,678 | $121.38 | | |
| SCH206CAP | School 206 CP | 0.2887184019 | $1,104,678 | $1,104,678 | $318.94 | | |
| SCH206MO | School 206 Enrichment | 0.4492263654 | $1,104,678 | $1,104,678 | $496.25 | | |
| ST | State School | 1.5818082046 | $1,104,678 | $1,104,678 | $1,747.39 | | |
| ST2 | State School Part 2 | 0.7564532771 | $1,104,678 | $1,104,678 | $835.64 | | |
| SWHIDPRBD | P & R S Whidbey BOND | 0.0150620535 | $1,104,678 | $1,104,678 | $16.64 | | |
| SWHIDPRBD3 | P & R S Whidbey BOND3 | 0.1466189264 | $1,104,678 | $1,104,678 | $161.97 | | |
| SWHIDPRMT | P & R S Whidbey GEN | 0.2061148474 | $1,104,678 | $1,104,678 | $227.69 | | |
| | Total Tax Rate: | 6.4692378415 | | | | | |
| | | | | Taxes w/Current Exemptions: | $7,146.43 | | |
| | | | | Taxes w/o Exemptions: | $7,146.43 | | |
Improvement / Building
| Improvement #1: | RESIDENTIAL | State Code: | Y | 1869.5 sqft | Value: | $369,678 |
| Bathrooms: | 2.5 | Bedrooms: | 2 | | Ceiling: | DRYWALL PAINTED | Cooling: | HEAT PUMP/CONV/V | | Exterior Wall/Cover: | WOOD SIDING | Floor Covering: | CARPET/VINYL 80-20 | | Floor Structure: | WOOD W/SUBFLOOR | Foundation: | CONCRETE | | Interior Finish: | DRYWALL PAINT | Plumbing Fixture Cnt: | 13 | | Roof Slope: | 4" IN 12" | Roof Structure/Cover: | CJ ALUMINIUM HEAVY |
|
| | Type | Description | Class CD | Sub Class CD | Year Built | Area |
| | BAS | BASE/MAIN FLOOR | 3 | 0 | 1990 | 1869.5 |
| | AGR | ATTACHED GARAGE | 3 | 0 | 1990 | 513.0 |
| | OWP | OPEN WOOD PORCH W/STEPS | 3 | 0 | 1990 | 676.1 |
| | OWC | OPEN WOOD PORCH W/STEPS/ROOF/C | 3 | 0 | 1990 | 118.5 |
| | OWC | OPEN WOOD PORCH W/STEPS/ROOF/C | 3 | 0 | 1990 | 54.0 |
Sketch
Property Image
Land
| 1 | HB | HIGH BLUFF | 0.0000 | 0.00 | 80.00 | 0.00 | 1.00 | $735,000 | $0 |
Roll Value History
| 2026 | N/A | N/A | N/A | N/A | N/A |
| 2025 | $360,797 | $771,750 | $0 | $1,132,547 | $1,132,547 |
| 2024 | $365,237 | $771,750 | $0 | $1,136,987 | $1,136,987 |
| 2023 | $369,678 | $735,000 | $0 | $1,104,678 | $1,104,678 |
| 2022 | $338,775 | $700,000 | $0 | $1,038,775 | $1,038,775 |
| 2021 | $298,078 | $400,000 | $0 | $698,078 | $698,078 |
| 2020 | $290,184 | $400,000 | $0 | $690,184 | $690,184 |
| 2019 | $194,674 | $500,000 | $0 | $694,674 | $694,674 |
| 2018 | $195,289 | $400,000 | $0 | $595,289 | $595,289 |
| 2017 | $196,448 | $350,000 | $0 | $546,448 | $546,448 |
| 2016 | $198,902 | $350,000 | $0 | $548,902 | $548,902 |
| 2015 | $201,358 | $350,000 | $0 | $551,358 | $551,358 |
| 2014 | $203,815 | $350,000 | $0 | $553,815 | $553,815 |
| 2013 | $208,135 | $322,080 | $0 | $530,215 | $530,215 |
| 2012 | $210,599 | $322,080 | $0 | $532,679 | $213,072 |
| 2011 | $213,064 | $322,080 | $0 | $535,144 | $214,058 |
| 2010 | $222,722 | $322,080 | $0 | $544,802 | $544,802 |
| 2009 | $232,103 | $387,115 | $0 | $619,218 | $619,218 |
| 2008 | $233,331 | $476,441 | $0 | $709,772 | $709,772 |
| 2007 | $208,182 | $476,441 | $0 | $684,623 | $684,623 |
Deed and Sales History
| 1 | 07/12/2021 | WD | Warranty Deed | MOORE, MARGUERITE | RUDO, JEREMY | | | $1,188,250.00 | 49175 | 4524538 |
| 2 | 08/03/2012 | WD | Warranty Deed | WILHELM, BRETT E | MOORE, MARGUERITE | | | $490,000.00 | 8453 | 4320583 |
| 3 | 01/15/1998 | WD | Warranty Deed | WILHELM, BRETT E | WILHELM, BRETT E | | | $0.00 | 90278 | 99001706 |
| 4 | 10/15/1998 | WD | Warranty Deed | KERSHNER, DANIEL T | WILHELM, BRETT E | | | $330,000.00 | 84312 | 98023508 |
| 5 | 10/01/1987 | WD | Warranty Deed | BILLINGTON, REALTY I | KERSHNER, DANIEL T | | | $53,500.00 | 73398 | 87014919 |
| 6 | 01/01/1900 | OTHER | Other - Misc. Documents | Unknown | BILLINGTON, REALTY I | | | $0.00 | 0 | 0 |
Payout Agreement
| No payout information available.. |