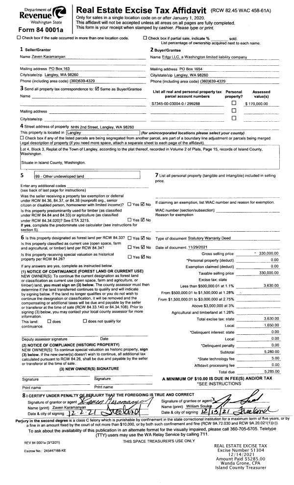
Property
Account |
| Property ID: | 582300 | Abbreviated Legal Description: | E140' OF W470' OF SW SW NW EX N30' FOR RD FR 330-0720 6/19/84 (TR E SP 74-087 AF#301405) |
| Geographic ID: | R33130-292-0780 | Agent Code: | |
| Type: | Real | | |
| Tax Area: | 512 - APPRAISER-Stan/Cam Schl Dist, improved, greater than 1 acre | Land Use Code | 11 |
| Open Space: | N | DFL | N |
| Historic Property: | N | Remodel Property: | N |
| Multi-Family Redevelopment: | N | | |
| Township: | 31 | Section: | 30 |
| Range: | R3 |
Location |
| Address: | 26 E DRY LAKE RD CAMANO ISLAND, WA 98282 | Mapsco: | |
| Neighborhood: | Cycle 5 | Map ID: | 938 |
| Neighborhood CD: | 5 |
Owner |
| Name: | NELSON, RICHARD H | Owner ID: | 40952 |
| Mailing Address: | 26 E DRY LAKE RD CAMANO ISLAND, WA 98282-7641 | % Ownership: | 100.0000000000% |
| | | Exemptions: | |
Taxes and Assessment Details
Values
| (+) Improvement Homesite Value: | + | $0 | |
| (+) Improvement Non-Homesite Value: | + | $155,057 | |
| (+) Land Homesite Value: | + | $0 | |
| (+) Land Non-Homesite Value: | + | $270,000 | |
| (+) Curr Use (HS): | + | $0 | $0 |
| (+) Curr Use (NHS): | + | $0 | $0 |
| | | -------------------------- | |
| (=) Market Value: | = | $425,057 | |
| (–) Productivity Loss: | – | $0 | |
| | | -------------------------- | |
| (=) Subtotal: | = | $425,057 | |
| (+) Senior Appraised Value: | + | $0 | |
| (+) Non-Senior Appraised Value: | + | $425,057 | |
| | | -------------------------- | |
| (=) Total Appraised Value: | = | $425,057 | |
| (–) Senior Exemption Loss: | – | $0 | |
| (–) Exemption Loss: | – | $0 | |
| | | -------------------------- | |
| (=) Taxable Value: | = | $425,057 | |
Taxing Jurisdiction
| Owner: | NELSON, RICHARD H | | |
| % Ownership: | 100.0000000000% | | |
| Total Value: | $425,057 | | |
| Tax Area: | 512 - APPRAISER-Stan/Cam Schl Dist, improved, greater than 1 acre |
| CF | Conservation Futures | 0.0320173310 | $425,057 | $425,057 | $13.61 | | |
| CCD | Camano Conservation District | 0.0000000000 | $425,057 | $425,057 | $0.00 | | |
| EMS1 | Fire & Rescue Dist #1 Camano GEN (EMS) | 0.3681963407 | $425,057 | $425,057 | $156.50 | | |
| FIRE1 | Fire & Rescue Dist #1 Camano GEN | 1.2500000000 | $425,057 | $425,057 | $531.32 | | |
| FIRE1BOND | Fire & Rescue Dist #1 Camano BOND | 0.1532035747 | $425,057 | $425,057 | $65.12 | | |
| CDD | County Developmental Disabilities | 0.0000000000 | $425,057 | $425,057 | $0.00 | | |
| CE | County Current Expense | 0.3724427666 | $425,057 | $425,057 | $158.31 | | |
| COMH | County Mental Health | 0.0000000000 | $425,057 | $425,057 | $0.00 | | |
| CVR | County Veteran's Relief | 0.0000000000 | $425,057 | $425,057 | $0.00 | | |
| CR | County Roads | 0.4600155052 | $425,057 | $425,057 | $195.53 | | |
| LCIB | Library Sno-Isle BOND (Camano Island) | 0.0396325772 | $425,057 | $425,057 | $16.85 | | |
| LIB | Library Sno-Isle GEN | 0.3243030872 | $425,057 | $425,057 | $137.85 | | |
| SCH205_401 | School 205-401 Enrichment | 1.2800557232 | $425,057 | $425,057 | $544.10 | | |
| SCH205BOND | School 205-401 BOND | 0.9591886230 | $425,057 | $425,057 | $407.71 | | |
| ST | State School | 1.5818082046 | $425,057 | $425,057 | $672.36 | | |
| ST2 | State School Part 2 | 0.7564532771 | $425,057 | $425,057 | $321.54 | | |
| | Total Tax Rate: | 7.5773170105 | | | | | |
| | | | | Taxes w/Current Exemptions: | $3,220.80 | | |
| | | | | Taxes w/o Exemptions: | $3,220.80 | | |
Improvement / Building
| Improvement #1: | MANUFACTURED HOME | State Code: | Y | 1350.0 sqft | Value: | $155,057 |
| Bathrooms: | 2 | Bedrooms: | 3 | | Ceiling: | PLASTER PAINTED | Cooling: | EVAP NO DUCT | | Exterior Wall/Cover: | VINYL | Floor Covering: | CARPET 100% | | Floor Structure: | SLAB ON GRADE | Foundation: | SLAB | | Heating: | FHA ELECTRIC | Interior Finish: | PLASTER | | Plumbing Fixture Cnt: | 1 | Roof Slope: | FLAT | | Roof Structure/Cover: | CJ ALUMINIUM HEAVY |   |   |
|
| | Type | Description | Class CD | Sub Class CD | Year Built | Area |
| | BAS | BASE/MAIN FLOOR | 4 | 0 | 1998 | 1350.0 |
| | OWR | OPEN WOOD PORCH W/STEPS/ROOF | 4 | 0 | 1998 | 120.0 |
| | DGR | DETACHED GARAGE | 4 | 0 | 1998 | 768.0 |
| | UTY | STORAGE/UTILITY | 4 | 0 | 1998 | 576.0 |
| | UTY | STORAGE/UTILITY | 4 | 0 | 1998 | 168.0 |
Sketch
Property Image
Land
| 1 | 18 | AC (02.01-03.00) | 2.0300 | 88426.80 | 0.00 | 0.00 | 1.00 | $270,000 | $0 |
Roll Value History
| 2026 | N/A | N/A | N/A | N/A | N/A |
| 2025 | $167,350 | $290,000 | $0 | $457,350 | $457,350 |
| 2024 | $170,954 | $280,000 | $0 | $450,954 | $450,954 |
| 2023 | $155,057 | $270,000 | $0 | $425,057 | $425,057 |
| 2022 | $145,606 | $260,000 | $0 | $405,606 | $405,606 |
| 2021 | $112,230 | $180,000 | $0 | $292,230 | $292,230 |
| 2020 | $111,889 | $150,000 | $0 | $261,889 | $261,889 |
| 2019 | $95,178 | $200,000 | $0 | $295,178 | $295,178 |
| 2018 | $96,910 | $150,000 | $0 | $246,910 | $246,910 |
| 2017 | $98,644 | $135,000 | $0 | $233,644 | $233,644 |
| 2016 | $99,509 | $100,000 | $0 | $199,509 | $199,509 |
| 2015 | $88,003 | $83,200 | $0 | $171,203 | $171,203 |
| 2014 | $89,261 | $83,200 | $0 | $172,461 | $172,461 |
| 2013 | $90,520 | $83,200 | $0 | $173,720 | $173,720 |
| 2012 | $91,778 | $83,200 | $0 | $174,978 | $174,978 |
| 2011 | $93,037 | $104,000 | $0 | $197,037 | $197,037 |
| 2010 | $91,105 | $104,000 | $0 | $195,105 | $195,105 |
| 2009 | $85,310 | $130,000 | $0 | $215,310 | $215,310 |
| 2008 | $86,473 | $130,000 | $0 | $216,473 | $216,473 |
| 2007 | $88,319 | $130,000 | $0 | $218,319 | $218,319 |
Deed and Sales History
| 1 | 06/08/1998 | WD | Warranty Deed | NELSON, RICHARD H | NELSON, RICHARD H | | | $37,500.00 | 82254 | 98011790 |
| 2 | 06/01/1998 | ESTSEPPROP | Establish Separate Property | NELSON, RICHARD H | NELSON, RICHARD H | | | $0.00 | 82252 | 98011789 |
| 3 | 05/29/1998 | PACD | Purchaser's Assignment | ERICSON, JEFFREY R | NELSON, RICHARD H | | | $41,900.00 | 0 | 0 |
| 4 | 09/01/1994 | WD | Warranty Deed | DOUGLAS, JAMES H | ERICSON, JEFFREY R | | | $32,500.00 | 43841 | 94019995 |
| 5 | 06/01/1984 | OTHER | Other - Misc. Documents | NELSON, RICHARD H | DOUGLAS, JAMES H | | | $0.00 | 60657 | 319041 |
| 6 | 01/01/1900 | OTHER | Other - Misc. Documents | Unknown | DOUGLAS, JAMES H | | | $0.00 | 0 | 0 |
| 7 | 01/01/1900 | OTHER | Other - Misc. Documents | DOUGLAS, JAMES H | NELSON, RICHARD H | | | $0.00 | 82254 | 98011790 |
Payout Agreement
| No payout information available.. |