Property
Account |
| Property ID: | 803013 | Abbreviated Legal Description: | IN SW SW DESC: BG SWCR SEC 34 S89*E ALG SLN SEC 34 330.02' TO ELN OF W330' OF SD SW SW N ALG SD ELN 567.94' TO S R/W LN OF 3RD ST TPB S289.39' S75*W34.28' S87*W16.18' S69*W17.47' S56*W29.99' N86*W34.56' N41*W23.23' N12*W19.49' N19*W40.44' N36*W40.95' N38* |
| Geographic ID: | R33034-034-0230 | Agent Code: | |
| Type: | Real | | |
| Tax Area: | 700 - APPRAISER-S Whid Schl Dist, in town of Langley | Land Use Code | 65 |
| Open Space: | N | DFL | N |
| Historic Property: | N | Remodel Property: | N |
| Multi-Family Redevelopment: | N | | |
| Township: | 30 | Section: | 34 |
| Range: | R3 |
Location |
| Address: | 919 3RD ST LANGLEY, WA 98260 | Mapsco: | |
| Neighborhood: | 42cLG-west | Map ID: | 912 |
| Neighborhood CD: | 42cLGwest |
Owner |
| Name: | K RO, LLC | Owner ID: | 302489 |
| Mailing Address: | POB 292 FREELAND, WA 98249 | % Ownership: | 100.0000000000% |
| | | Exemptions: | |
Taxes and Assessment Details
Values
| (+) Improvement Homesite Value: | + | N/A | |
| (+) Improvement Non-Homesite Value: | + | N/A | |
| (+) Land Homesite Value: | + | N/A | |
| (+) Land Non-Homesite Value: | + | N/A | Ag / Timber Use Value |
| (+) Curr Use (HS): | + | N/A | N/A |
| (+) Curr Use (NHS): | + | N/A | N/A |
| | | -------------------------- | |
| (=) Market Value: | = | N/A | |
| (–) Productivity Loss: | – | N/A | |
| | | -------------------------- | |
| (=) Subtotal: | = | N/A | |
| (+) Senior Appraised Value: | + | N/A | |
| (+) Non-Senior Appraised Value: | + | N/A | |
| | | -------------------------- | |
| (=) Total Appraised Value: | = | N/A | |
| (–) Senior Exemption Loss: | – | N/A | |
| (–) Exemption Loss: | – | N/A | |
| | | -------------------------- | |
| (=) Taxable Value: | = | N/A | |
Taxing Jurisdiction
| Owner: | K RO, LLC | | |
| % Ownership: | 100.0000000000% | | |
| Total Value: | N/A | | |
| Tax Area: | 700 - APPRAISER-S Whid Schl Dist, in town of Langley |
| CF | Conservation Futures | N/A | N/A | N/A | N/A | | |
| WCD | Whidbey Conservation District | N/A | N/A | N/A | N/A | | |
| LANG | City of Langley | N/A | N/A | N/A | N/A | | |
| LANGBOND | City of Langley BOND | N/A | N/A | N/A | N/A | | |
| FIRE3 | Fire & Rescue Dist #3 S Whidbey GEN | N/A | N/A | N/A | N/A | | |
| HOBOND | Hospital BOND | N/A | N/A | N/A | N/A | | |
| HOGEN | Hospital GEN | N/A | N/A | N/A | N/A | | |
| CE | County Current Expense | N/A | N/A | N/A | N/A | | |
| ISLANDEMS | Hospital GEN (EMS) | N/A | N/A | N/A | N/A | | |
| LIB | Library Sno-Isle GEN | N/A | N/A | N/A | N/A | | |
| PORTWHID | Port of S Whidbey GEN | N/A | N/A | N/A | N/A | | |
| SCH206CAP | School 206 CP | N/A | N/A | N/A | N/A | | |
| SCH206MO | School 206 Enrichment | N/A | N/A | N/A | N/A | | |
| ST | State School | N/A | N/A | N/A | N/A | | |
| ST2 | State School Part 2 | N/A | N/A | N/A | N/A | | |
| SWHIDPRBD | P & R S Whidbey BOND | N/A | N/A | N/A | N/A | | |
| SWHIDPRBD2 | P & R S Whidbey BOND2 | N/A | N/A | N/A | N/A | | |
| SWHIDPRMT | P & R S Whidbey GEN | N/A | N/A | N/A | N/A | | |
| | Total Tax Rate: | N/A | | | | | |
| | | | | Taxes w/Current Exemptions: | N/A | | |
| | | | | Taxes w/o Exemptions: | N/A | | |
Improvement / Building
| Improvement #1: | COMMERCIAL | State Code: | F1 | 3060.0 sqft | Value: | N/A |
| Bathrooms: | 0 | Bedrooms: | 0 | | Ceiling: | DRYWALL PAINTED | Exterior Wall/Cover: | HARDBD/WD OR ST STUD | | Floor Covering: | CARPET 100% | Floor Structure: | WOOD ON WOOD JOIST | | Foundation: | CONCRETE | Heating: | BASEBOARD ELECTRIC | | Interior Finish: | OFFICE | Plumbing Fixture Cnt: | 1 | | Roof Structure/Cover: | STEEL TERNE |   |   |
|
| | Type | Description | Class CD | Sub Class CD | Year Built | Area |
| | BAS | BASE/MAIN FLOOR | 3 | 0 | 2000 | 1908.0 |
| | OP1 | OPEN PORCH SLAB | 3 | 0 | 2000 | 112.0 |
| | OP1 | OPEN PORCH SLAB | 3 | 0 | 2000 | 160.0 |
| | OP3 | OPEN PORCH W/ROOF | 3 | 0 | 2000 | 48.0 |
| | OWP | OPEN WOOD PORCH W/STEPS | 3 | 0 | 2000 | 160.0 |
| | oPV2 | PV/ASPH 3" | 3 | 0 | 2000 | 0.0 |
| | oLIT | LITE POLE | 3 | 0 | 2000 | 0.0 |
| | UPS | UPPER STORY | 3 | 0 | 2000 | 1152.0 |
| | OWP | OPEN WOOD PORCH W/STEPS | 3 | 0 | 2000 | 288.0 |
Sketch
Property Image
Land
| 1 | 64 | PERSONAL BUSINESS | 0.9200 | 40075.20 | 0.00 | 0.00 | 1.00 | N/A | N/A |
Roll Value History
| 2026 | N/A | N/A | N/A | N/A | N/A |
| 2025 | $512,229 | $260,000 | $0 | $772,229 | $772,229 |
| 2024 | $525,106 | $250,000 | $0 | $775,106 | $775,106 |
| 2023 | $537,146 | $210,000 | $0 | $747,146 | $747,146 |
| 2022 | $413,643 | $180,000 | $0 | $593,643 | $593,643 |
| 2021 | $332,059 | $180,000 | $0 | $512,059 | $512,059 |
| 2020 | $298,874 | $180,000 | $0 | $478,874 | $478,874 |
| 2019 | $292,720 | $180,000 | $0 | $472,720 | $472,720 |
| 2018 | $292,741 | $150,000 | $0 | $442,741 | $442,741 |
| 2017 | $292,783 | $240,451 | $0 | $533,234 | $533,234 |
| 2016 | $292,866 | $240,451 | $0 | $533,317 | $533,317 |
| 2015 | $299,564 | $240,451 | $0 | $540,015 | $540,015 |
| 2014 | $376,518 | $256,079 | $0 | $632,597 | $632,597 |
| 2013 | $376,518 | $256,079 | $0 | $632,597 | $632,597 |
| 2012 | $376,518 | $256,079 | $0 | $632,597 | $632,597 |
| 2011 | $376,518 | $256,079 | $0 | $632,597 | $632,597 |
| 2010 | $379,740 | $256,079 | $0 | $635,819 | $635,819 |
| 2009 | $384,881 | $281,326 | $0 | $666,207 | $666,207 |
| 2008 | $389,252 | $281,326 | $0 | $670,578 | $670,578 |
| 2007 | $390,457 | $281,327 | $0 | $671,784 | $671,784 |
Deed and Sales History
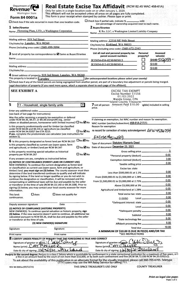
| 1 | 12/23/2021 | WD | Warranty Deed | FLOWERING PLUM LTD | K RO, LLC | | | $0.00 | 51556 | 4536754 |
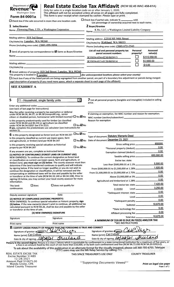
| 2 | 12/23/2021 | WD | Warranty Deed | FLOWERING PLUM LTD | K RO, LLC | | | $650,000.00 | 51489 | 4536754 |
|   | |
| 3 | 08/24/2001 | BLA | DNU - Boundary Line Adjustment | Unknown | FLOWERING PLUM LTD, | | | $0.00 | 69093 | 20022602 |
Payout Agreement
| No payout information available.. |