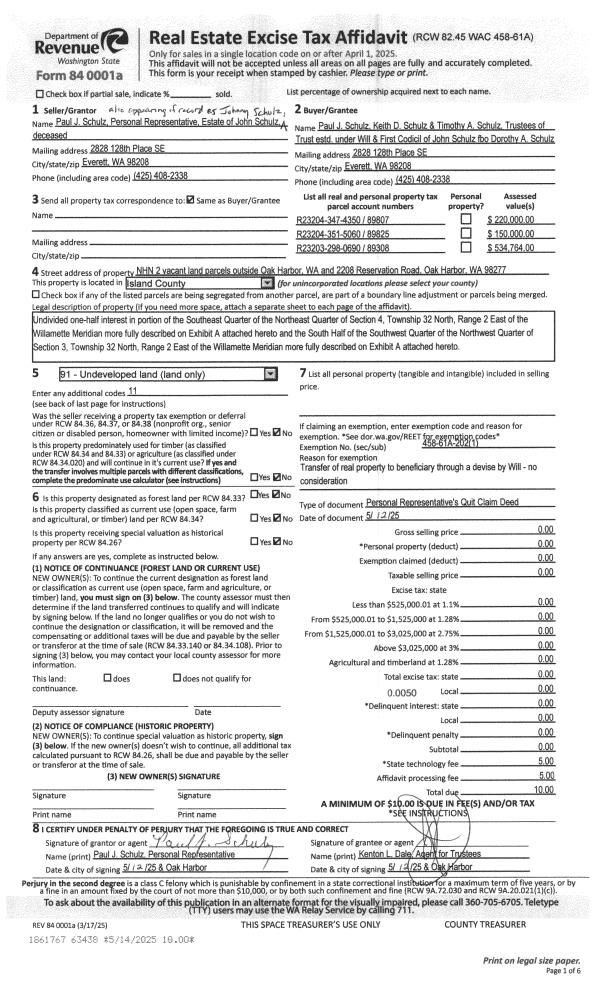
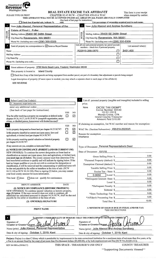
Property
Account |
| Property ID: | 808916 | Abbreviated Legal Description: | LOT 2 SP 05-02.13234.436-1610 AF#4231846 |
| Geographic ID: | R13234-431-1720 | Agent Code: | |
| Type: | Real | | |
| Tax Area: | 300 - APPRAISER-Cpvl Schl Dist, in Cpvl | Land Use Code | 91 |
| Open Space: | N | DFL | N |
| Historic Property: | N | Remodel Property: | N |
| Multi-Family Redevelopment: | N | | |
| Township: | 32 | Section: | 34 |
| Range: | R1 |
Location |
| Address: | 1101 NE LEACH ST COUPEVILLE, WA 98239 | Mapsco: | |
| Neighborhood: | Area 2 Coupeville Non-Waterfront Residential | Map ID: | 179 |
| Neighborhood CD: | 2CPV02R |
Owner |
| Name: | OPP, MARK R. | Owner ID: | 304929 |
| Mailing Address: | TERRI L. WOOD 6010 FLAGSTAFF RD BOULDER, CO 80302 | % Ownership: | 100.0000000000% |
| | | Exemptions: | |
Taxes and Assessment Details
Values
| (+) Improvement Homesite Value: | + | $0 | |
| (+) Improvement Non-Homesite Value: | + | $0 | |
| (+) Land Homesite Value: | + | $0 | |
| (+) Land Non-Homesite Value: | + | $280,000 | |
| (+) Curr Use (HS): | + | $0 | $0 |
| (+) Curr Use (NHS): | + | $0 | $0 |
| | | -------------------------- | |
| (=) Market Value: | = | $280,000 | |
| (–) Productivity Loss: | – | $0 | |
| | | -------------------------- | |
| (=) Subtotal: | = | $280,000 | |
| (+) Senior Appraised Value: | + | $0 | |
| (+) Non-Senior Appraised Value: | + | $280,000 | |
| | | -------------------------- | |
| (=) Total Appraised Value: | = | $280,000 | |
| (–) Senior Exemption Loss: | – | $0 | |
| (–) Exemption Loss: | – | $0 | |
| | | -------------------------- | |
| (=) Taxable Value: | = | $280,000 | |
Taxing Jurisdiction
| Owner: | OPP, MARK R. | | |
| % Ownership: | 100.0000000000% | | |
| Total Value: | $280,000 | | |
| Tax Area: | 300 - APPRAISER-Cpvl Schl Dist, in Cpvl |
| CF | Conservation Futures | 0.0320173310 | $280,000 | $280,000 | $8.96 | | |
| WCD | Whidbey Conservation District | 0.0000000000 | $280,000 | $280,000 | $0.00 | | |
| CEM2 | Cemetery #2 | 0.0095718917 | $280,000 | $280,000 | $2.68 | | |
| COUP | City: Town of Coupeville | 0.8452080249 | $280,000 | $280,000 | $236.66 | | |
| FIRE5 | Fire & Rescue Dist #5 C Whidbey GEN | 1.1800000000 | $280,000 | $280,000 | $330.40 | | |
| FIRE5BOND | Fire & Rescue Dist #5 C Whidbey BOND | 0.1369874260 | $280,000 | $280,000 | $38.36 | | |
| HOBOND | Hospital BOND | 0.1899917765 | $280,000 | $280,000 | $53.20 | | |
| HOGEN | Hospital GEN | 0.3914191658 | $280,000 | $280,000 | $109.60 | | |
| CDD | County Developmental Disabilities | 0.0000000000 | $280,000 | $280,000 | $0.00 | | |
| CE | County Current Expense | 0.3724427666 | $280,000 | $280,000 | $104.28 | | |
| COMH | County Mental Health | 0.0000000000 | $280,000 | $280,000 | $0.00 | | |
| CVR | County Veteran's Relief | 0.0000000000 | $280,000 | $280,000 | $0.00 | | |
| ISLANDEMS | Hospital GEN (EMS) | 0.3312302018 | $280,000 | $280,000 | $92.74 | | |
| LIB | Library Sno-Isle GEN | 0.3243030872 | $280,000 | $280,000 | $90.80 | | |
| LIBCAP | Library Sno-Isle BOND (Cap Fac Imp Area) | 0.0546529987 | $280,000 | $280,000 | $15.30 | | |
| POCOUP | Port of Coupeville GEN | 0.1100988782 | $280,000 | $280,000 | $30.83 | | |
| POCOUPIDD | Port of Coupeville IDD | 0.3465703868 | $280,000 | $280,000 | $97.04 | | |
| COUPSDTECH | School 204 CP (TECH) | 0.7545480007 | $280,000 | $280,000 | $211.27 | | |
| SCH204BOND | School 204 CP (TECH)2 | 0.1258491067 | $280,000 | $280,000 | $35.24 | | |
| SCH204MO | School 204 Enrichment | 0.6796387365 | $280,000 | $280,000 | $190.30 | | |
| ST | State School | 1.5818082046 | $280,000 | $280,000 | $442.91 | | |
| ST2 | State School Part 2 | 0.7564532771 | $280,000 | $280,000 | $211.81 | | |
| | Total Tax Rate: | 8.2227912608 | | | | | |
| | | | | Taxes w/Current Exemptions: | $2,302.38 | | |
| | | | | Taxes w/o Exemptions: | $2,302.38 | | |
Improvement / Building
Sketch
| No sketches available for this property. |
Property Image
Land
| 1 | 15 | SQ (12001-21780) | 0.5000 | 21780.00 | 0.00 | 0.00 | 1.00 | $280,000 | $0 |
Roll Value History
| 2026 | N/A | N/A | N/A | N/A | N/A |
| 2025 | $0 | $322,000 | $0 | $322,000 | $322,000 |
| 2024 | $0 | $280,000 | $0 | $280,000 | $280,000 |
| 2023 | $0 | $280,000 | $0 | $280,000 | $280,000 |
| 2022 | $0 | $280,000 | $0 | $280,000 | $280,000 |
| 2021 | $0 | $250,000 | $0 | $250,000 | $250,000 |
| 2020 | $0 | $250,000 | $0 | $250,000 | $250,000 |
| 2019 | $0 | $250,000 | $0 | $250,000 | $250,000 |
| 2018 | $0 | $230,000 | $0 | $230,000 | $230,000 |
| 2017 | $0 | $230,000 | $0 | $230,000 | $230,000 |
| 2016 | $0 | $200,000 | $0 | $200,000 | $200,000 |
| 2015 | $0 | $125,000 | $0 | $125,000 | $125,000 |
| 2014 | $0 | $125,000 | $0 | $125,000 | $125,000 |
| 2013 | $0 | $90,000 | $0 | $90,000 | $90,000 |
| 2012 | $0 | $75,000 | $0 | $75,000 | $75,000 |
| 2011 | $0 | $145,000 | $0 | $145,000 | $145,000 |
| 2010 | $0 | $145,000 | $0 | $145,000 | $145,000 |
| 2009 | $4,567 | $120,000 | $0 | $124,567 | $124,567 |
| 2008 | $0 | $30,000 | $0 | $30,000 | $30,000 |
Deed and Sales History
| 1 | 07/11/2024 | WD | Warranty Deed | OPP, MARK R. | VANN, THOMAS J | | | $380,000.00 | 60645 | 4574582 |
| 2 | 06/16/2022 | WD | Warranty Deed | RAND, NATHANIEL | OPP, MARK R. | | | $399,000.00 | 53673 | 4547584 |
| 3 | 11/13/2019 | WD | Warranty Deed | YORIOKA, GERALD N | RAND, NATHANIEL | | | $260,000.00 | 41136 | 4475754 |
| 4 | 02/12/2010 | WD | Warranty Deed | REGGIATORE, MARY A | YORIOKA, GERALD N | | | $230,000.00 | 332 | 4268749 |
| 5 | 01/01/1900 | OTHER | Other - Misc. Documents | Unknown | REGGIATORE, MARY A | | | $0.00 | 0 | 0 |
Payout Agreement
| No payout information available.. |