Property
Account |
| Property ID: | 809176 | Abbreviated Legal Description: | TRACT 3-3 OH-BSP 4-00001.13326.051-2830 BINDING SITE PLANS AF#4163839 |
| Geographic ID: | R13326-052-2930 | Agent Code: | |
| Type: | Real | | |
| Tax Area: | 100 - APPRAISER-OH Schl Dist, in OH | Land Use Code | 39 |
| Open Space: | N | DFL | N |
| Historic Property: | N | Remodel Property: | N |
| Multi-Family Redevelopment: | N | | |
| Township: | 33 | Section: | 26 |
| Range: | R1 |
Location |
| Address: | 1751 NE GOLDIE ST OAK HARBOR, WA 98277 | Mapsco: | |
| Neighborhood: | 6AcOH-goldie rd | Map ID: | 231 |
| Neighborhood CD: | 6AcOHgolde |
Owner |
| Name: | SIGLER, BERNARD J | Owner ID: | 186255 |
| Mailing Address: | MAURICE E KLEIN RUTH M KLIEN 5430 138TH PL SW EDMONDS, WA 98026-3322 | % Ownership: | 100.0000000000% |
| | | Exemptions: | |
Taxes and Assessment Details
Values
| (+) Improvement Homesite Value: | + | $0 | |
| (+) Improvement Non-Homesite Value: | + | $390,951 | |
| (+) Land Homesite Value: | + | $0 | |
| (+) Land Non-Homesite Value: | + | $245,678 | |
| (+) Curr Use (HS): | + | $0 | $0 |
| (+) Curr Use (NHS): | + | $0 | $0 |
| | | -------------------------- | |
| (=) Market Value: | = | $636,629 | |
| (–) Productivity Loss: | – | $0 | |
| | | -------------------------- | |
| (=) Subtotal: | = | $636,629 | |
| (+) Senior Appraised Value: | + | $0 | |
| (+) Non-Senior Appraised Value: | + | $636,629 | |
| | | -------------------------- | |
| (=) Total Appraised Value: | = | $636,629 | |
| (–) Senior Exemption Loss: | – | $0 | |
| (–) Exemption Loss: | – | $0 | |
| | | -------------------------- | |
| (=) Taxable Value: | = | $636,629 | |
Taxing Jurisdiction
| Owner: | SIGLER, BERNARD J | | |
| % Ownership: | 100.0000000000% | | |
| Total Value: | $636,629 | | |
| Tax Area: | 100 - APPRAISER-OH Schl Dist, in OH |
| CF | Conservation Futures | 0.0553329791 | $636,629 | $636,629 | $35.23 | | |
| WCD | Whidbey Conservation District | 0.0000000000 | $636,629 | $636,629 | $0.00 | | |
| CEM1 | Cemetery #1 | 0.0067823467 | $636,629 | $636,629 | $4.32 | | |
| COH | City of Oak Harbor | 2.4026003675 | $636,629 | $636,629 | $1,529.57 | | |
| COHBO | City of Oak Harbor Bond | 0.0000000000 | $636,629 | $636,629 | $0.00 | | |
| HOBOND | Hospital Bond | 0.3179395722 | $636,629 | $636,629 | $202.41 | | |
| HOGEN | Hospital General | 0.0952525537 | $636,629 | $636,629 | $60.64 | | |
| CDD | County Developmental Disabilities | 0.0000000000 | $636,629 | $636,629 | $0.00 | | |
| CE | County Current Expense | 0.6375475306 | $636,629 | $636,629 | $405.88 | | |
| COMH | County Mental Health | 0.0000000000 | $636,629 | $636,629 | $0.00 | | |
| CVR | County Veteran's Relief | 0.0000000000 | $636,629 | $636,629 | $0.00 | | |
| ISLANDEMS | Hospital - EMS Island County | 0.4835625307 | $636,629 | $636,629 | $307.85 | | |
| LIB | Library Sno-Isle | 0.4153806509 | $636,629 | $636,629 | $264.44 | | |
| NWHIDPRMT | N Whidbey P & R Maint. | 0.1604548181 | $636,629 | $636,629 | $102.15 | | |
| SCH201BOND | School 201 Bond-Oak Harbor | 1.8964320767 | $636,629 | $636,629 | $1,207.32 | | |
| SCH201MO | School 201 Oak Harbor-M&O | 2.2336688370 | $636,629 | $636,629 | $1,422.02 | | |
| ST | State School | 1.9462713707 | $636,629 | $636,629 | $1,239.05 | | |
| | Total Tax Rate: | 10.6512256339 | | | | | |
| | | | | Taxes w/Current Exemptions: | $6,780.88 | | |
| | | | | Taxes w/o Exemptions: | $6,780.88 | | |
Improvement / Building
| Improvement #1: | MISC | State Code: | F1 | 21451.4 sqft | Value: | $390,951 |
| Bathrooms: | 0 | Bedrooms: | 0 | | Ceiling: | SUSPENDED | Exterior Wall/Cover: | STL/ALUM/SINGWL WD F | | Floor Covering: | VINYL TILE | Floor Structure: | CONCRETE ON GROUND | | Foundation: | SLAB | Heating: | ZONED AC/HEAT | | Interior Finish: | MANUFACTURING (LIGHT) | Plumbing Fixture Cnt: | 1 | | Roof Structure/Cover: | BUILT-UP/OPEN WOOD |   |   |
|
| | Type | Description | Class CD | Sub Class CD | Year Built | Area |
| | BAS | BASE/MAIN FLOOR | 2 | 0 | 1973 | 21451.4 |
| | oPV1 | PV/ASPH 2" | 2 | 0 | 1973 | 0.0 |
Sketch
Property Image
Land
| 1 | 71 | INDUSTRIAL MANUFACTURING | 1.8800 | 81892.80 | 0.00 | 0.00 | 1.00 | $245,678 | $0 |
Roll Value History
| 2026 | N/A | N/A | N/A | N/A | N/A |
| 2025 | $456,558 | $368,518 | $0 | $825,076 | $825,076 |
| 2024 | $477,047 | $368,518 | $0 | $845,565 | $845,565 |
| 2023 | $497,537 | $327,571 | $0 | $825,108 | $825,108 |
| 2022 | $425,641 | $409,464 | $0 | $835,105 | $835,105 |
| 2021 | $425,084 | $409,464 | $0 | $834,548 | $834,548 |
| 2020 | $425,030 | $409,464 | $0 | $834,494 | $834,494 |
| 2019 | $489,881 | $327,571 | $0 | $817,452 | $817,452 |
| 2018 | $489,894 | $286,625 | $0 | $776,519 | $776,519 |
| 2017 | $489,922 | $122,839 | $0 | $612,761 | $612,761 |
| 2016 | $390,951 | $245,678 | $0 | $636,629 | $636,629 |
| 2015 | $390,951 | $185,078 | $0 | $576,029 | $576,029 |
| 2014 | $390,951 | $185,078 | $0 | $576,029 | $576,029 |
| 2013 | $356,158 | $185,078 | $0 | $541,236 | $541,236 |
| 2012 | $356,158 | $185,078 | $0 | $541,236 | $541,236 |
| 2011 | $356,158 | $185,078 | $0 | $541,236 | $541,236 |
| 2010 | $753,402 | $185,078 | $0 | $938,480 | $938,480 |
| 2009 | $773,075 | $202,276 | $0 | $975,351 | $975,351 |
| 2008 | $605,322 | $371,004 | $0 | $976,325 | $976,325 |
| 2007 | $0 | $0 | $0 | $1,001,427 | $1,001,427 |
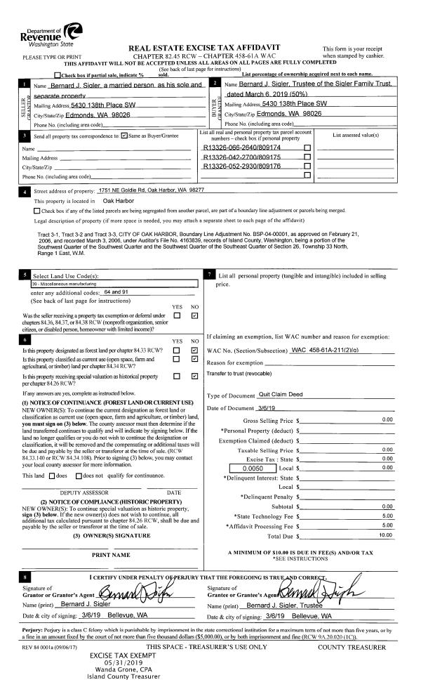
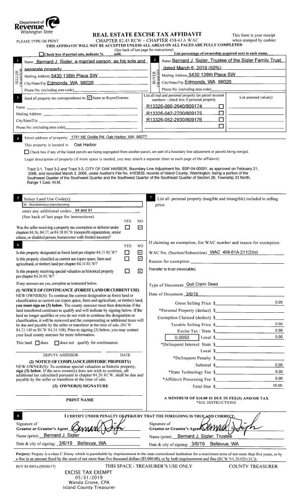
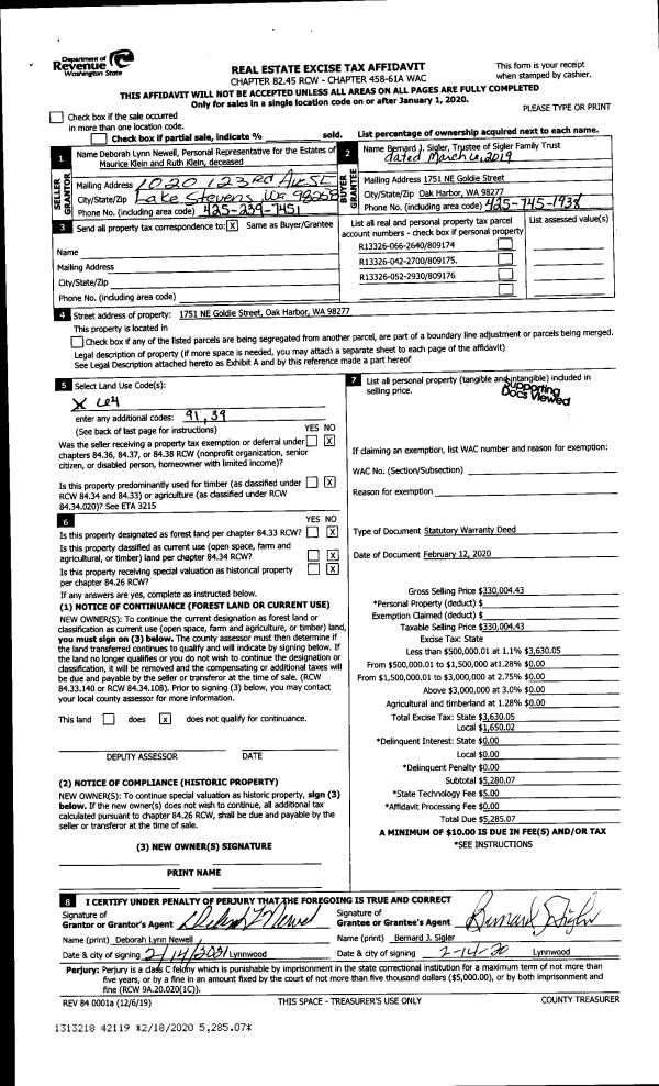
Deed and Sales History
| 1 | 02/12/2020 | WD | Warranty Deed | SIGLER TTEE, BERNARD J | SIGLER TTEE, BERNARD J | | | $330,004.00 | 42119 | 4481444 |
|   | |
| 2 | 03/06/2019 | QCD | Quit Claim Deed | SIGLER, BERNARD J | SIGLER TTEE, BERNARD J | | | $0.00 | 38796 | 4464591 |
| 3 | 01/01/1900 | OTHER | Other - Misc. Documents | Unknown | SIGLER, BERNARD J | | | $0.00 | 0 | 0 |
Payout Agreement
| No payout information available.. |