Property
Account |
| Property ID: | 89399 | Abbreviated Legal Description: | 22 - NW SW NW |
| Geographic ID: | R23203-364-0370 | Agent Code: | |
| Type: | Real | | |
| Tax Area: | 119 - APPRAISER-OH Schl Dist, outside OH, vacant & 50 acres or less | Land Use Code | 91 |
| Open Space: | N | DFL | N |
| Historic Property: | N | Remodel Property: | N |
| Multi-Family Redevelopment: | N | | |
| Township: | 32 | Section: | 03 |
| Range: | R2 |
Location |
| Address: | 2296 RESERVATION RD OAK HARBOR, WA 98277 | Mapsco: | |
| Neighborhood: | Cycle 6 | Map ID: | 542 |
| Neighborhood CD: | 6 |
Owner |
| Name: | SCHULZ TRUSTEE, KEITH D | Owner ID: | 269135 |
| Mailing Address: | CAROL B SCHULZ TRUSTEE BOX 1576 SOAP LAKE, WA 98851 | % Ownership: | 100.0000000000% |
| | | Exemptions: | |
Taxes and Assessment Details
Values
| (+) Improvement Homesite Value: | + | $0 | |
| (+) Improvement Non-Homesite Value: | + | $0 | |
| (+) Land Homesite Value: | + | $0 | |
| (+) Land Non-Homesite Value: | + | $220,000 | |
| (+) Curr Use (HS): | + | $0 | $0 |
| (+) Curr Use (NHS): | + | $0 | $0 |
| | | -------------------------- | |
| (=) Market Value: | = | $220,000 | |
| (–) Productivity Loss: | – | $0 | |
| | | -------------------------- | |
| (=) Subtotal: | = | $220,000 | |
| (+) Senior Appraised Value: | + | $0 | |
| (+) Non-Senior Appraised Value: | + | $220,000 | |
| | | -------------------------- | |
| (=) Total Appraised Value: | = | $220,000 | |
| (–) Senior Exemption Loss: | – | $0 | |
| (–) Exemption Loss: | – | $0 | |
| | | -------------------------- | |
| (=) Taxable Value: | = | $220,000 | |
Taxing Jurisdiction
| Owner: | SCHULZ TRUSTEE, KEITH D | | |
| % Ownership: | 100.0000000000% | | |
| Total Value: | $220,000 | | |
| Tax Area: | 119 - APPRAISER-OH Schl Dist, outside OH, vacant & 50 acres or less |
| CF | Conservation Futures | 0.0320173310 | $220,000 | $220,000 | $7.04 | | |
| WCD | Whidbey Conservation District | 0.0000000000 | $220,000 | $220,000 | $0.00 | | |
| CEM1 | Cemetery #1 | 0.0040577009 | $220,000 | $220,000 | $0.89 | | |
| HOBOND | Hospital BOND | 0.1899917765 | $220,000 | $220,000 | $41.80 | | |
| HOGEN | Hospital GEN | 0.3914191658 | $220,000 | $220,000 | $86.11 | | |
| CDD | County Developmental Disabilities | 0.0000000000 | $220,000 | $220,000 | $0.00 | | |
| CE | County Current Expense | 0.3724427666 | $220,000 | $220,000 | $81.94 | | |
| COMH | County Mental Health | 0.0000000000 | $220,000 | $220,000 | $0.00 | | |
| CVR | County Veteran's Relief | 0.0000000000 | $220,000 | $220,000 | $0.00 | | |
| CR | County Roads | 0.4600155052 | $220,000 | $220,000 | $101.20 | | |
| ISLANDEMS | Hospital GEN (EMS) | 0.3312302018 | $220,000 | $220,000 | $72.87 | | |
| LIB | Library Sno-Isle GEN | 0.3243030872 | $220,000 | $220,000 | $71.35 | | |
| NWHIDPRMT | P & R N Whidbey GEN | 0.1372100148 | $220,000 | $220,000 | $30.19 | | |
| SCH201MO | School 201 Enrichment | 1.8130855878 | $220,000 | $220,000 | $398.88 | | |
| ST | State School | 1.5818082046 | $220,000 | $220,000 | $348.00 | | |
| ST2 | State School Part 2 | 0.7564532771 | $220,000 | $220,000 | $166.42 | | |
| | Total Tax Rate: | 6.3940346193 | | | | | |
| | | | | Taxes w/Current Exemptions: | $1,406.69 | | |
| | | | | Taxes w/o Exemptions: | $1,406.69 | | |
Improvement / Building
Sketch
| No sketches available for this property. |
Property Image
Land
| 1 | 35 | AC (10.00-30.99) | 0.0000 | 0.00 | 0.00 | 0.00 | 1.00 | $220,000 | $0 |
Roll Value History
| 2026 | N/A | N/A | N/A | N/A | N/A |
| 2025 | $0 | $240,000 | $0 | $240,000 | $240,000 |
| 2024 | $0 | $220,000 | $0 | $220,000 | $220,000 |
| 2023 | $0 | $220,000 | $0 | $220,000 | $220,000 |
| 2022 | $0 | $220,000 | $0 | $220,000 | $220,000 |
| 2021 | $0 | $160,000 | $0 | $160,000 | $160,000 |
| 2020 | $0 | $160,000 | $0 | $160,000 | $160,000 |
| 2019 | $0 | $160,000 | $0 | $160,000 | $160,000 |
| 2018 | $0 | $140,000 | $0 | $140,000 | $140,000 |
| 2017 | $0 | $120,000 | $0 | $120,000 | $120,000 |
| 2016 | $0 | $90,000 | $0 | $90,000 | $90,000 |
| 2015 | $0 | $90,000 | $0 | $90,000 | $90,000 |
| 2014 | $0 | $90,000 | $0 | $90,000 | $90,000 |
| 2013 | $0 | $90,000 | $0 | $90,000 | $90,000 |
| 2012 | $0 | $95,000 | $0 | $95,000 | $95,000 |
| 2011 | $0 | $95,000 | $0 | $95,000 | $95,000 |
| 2010 | $0 | $95,000 | $0 | $95,000 | $95,000 |
| 2009 | $0 | $190,000 | $0 | $190,000 | $190,000 |
| 2008 | $0 | $152,000 | $0 | $152,000 | $152,000 |
| 2007 | $0 | $159,500 | $0 | $159,500 | $159,500 |
Deed and Sales History
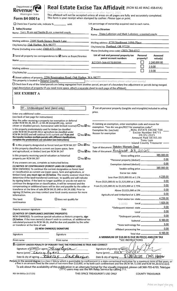
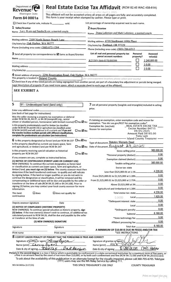
| 1 | 08/28/2025 | WD | Warranty Deed | BYERS, LARRY | LAFERRIERE, DIANA | | | $385,000.00 | 64715 | 4590514 |
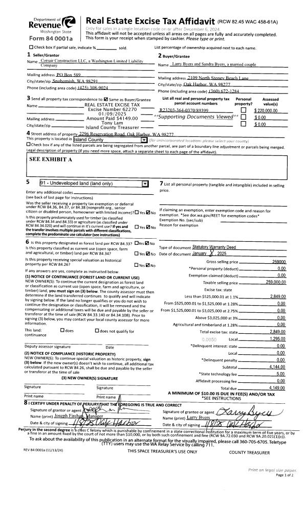
| 2 | 01/08/2025 | WD | Warranty Deed | CORSAIR CONSTRUCTION LLC | BYERS, LARRY | | | $259,000.00 | 62270 | 4581086 |
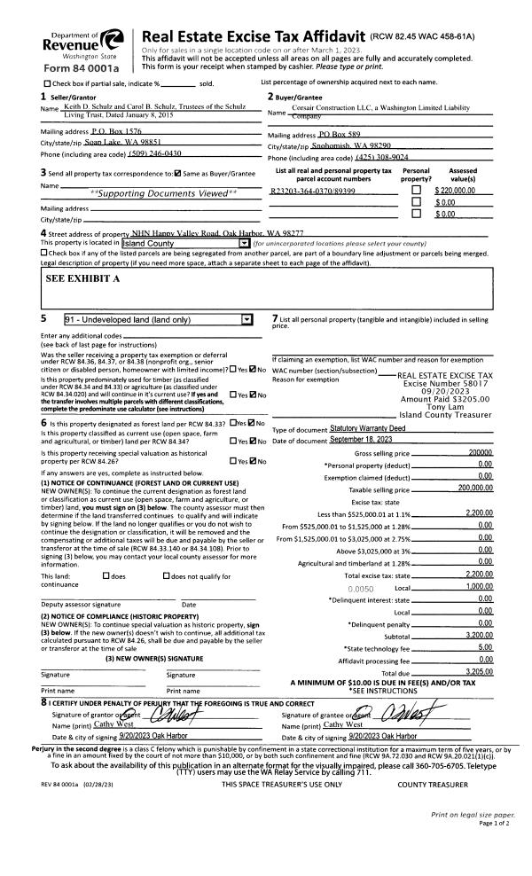
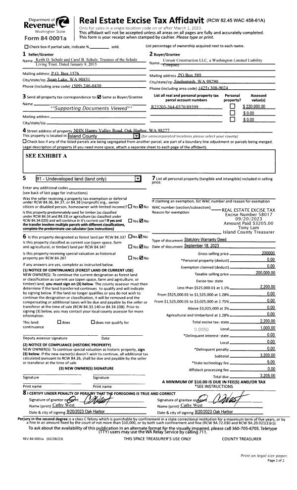
| 3 | 09/18/2023 | WD | Warranty Deed | SCHULZ TRUSTEE, KEITH D | CORSAIR CONSTRUCTION LLC | | | $200,000.00 | 58017 | 4564864 |
| 4 | 01/08/2015 | WD | Warranty Deed | SCHULZ, KEITH D | SCHULZ TRUSTEE, KEITH D | | | $0.00 | 18392 | 4372649 |
| 5 | 01/03/2005 | QCD | Quit Claim Deed | SCHULZ, JOHN & DOROTHY | SCHULZ, KEITH D | | | $0.00 | 50024 | 4122315 |
| 6 | 12/28/2004 | QCD | Quit Claim Deed | SCHULZ, JOHN | SCHULZ, JOHN & DOROTHY | | | $0.00 | 45997 | 4121740 |
| 7 | 01/01/1900 | OTHER | Other - Misc. Documents | Unknown | SCHULZ, JOHN | | | $0.00 | 0 | 0 |
Payout Agreement
| No payout information available.. |