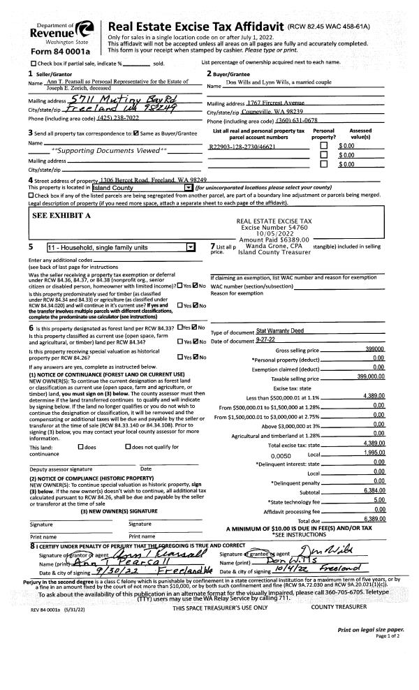
Property
Account |
| Property ID: | 100287 | Abbreviated Legal Description: | 6 - NW SE |
| Geographic ID: | R23318-203-3340 | Agent Code: | |
| Type: | Real | | |
| Tax Area: | 112 - APPRAISER-OH Schl Dist, outside OH, improved, greater than 1 acre | Land Use Code | 85 |
| Open Space: | N | DFL | N |
| Historic Property: | N | Remodel Property: | N |
| Multi-Family Redevelopment: | N | | |
| Township: | 33 | Section: | 18 |
| Range: | R2 |
Location |
| Address: | | Mapsco: | |
| Neighborhood: | 62cRR-sleeper rd | Map ID: | 605 |
| Neighborhood CD: | 62cRRslepr |
Owner |
| Name: | LW LAND LLC | Owner ID: | 199559 |
| Mailing Address: | 400 VALLEY AVE NE PUYALLUP, WA 98372-2516 | % Ownership: | 100.0000000000% |
| | | Exemptions: | |
Taxes and Assessment Details
Values
| (+) Improvement Homesite Value: | + | $0 | |
| (+) Improvement Non-Homesite Value: | + | $33,936 | |
| (+) Land Homesite Value: | + | $0 | |
| (+) Land Non-Homesite Value: | + | $390,000 | |
| (+) Curr Use (HS): | + | $0 | $0 |
| (+) Curr Use (NHS): | + | $0 | $0 |
| | | -------------------------- | |
| (=) Market Value: | = | $423,936 | |
| (–) Productivity Loss: | – | $0 | |
| | | -------------------------- | |
| (=) Subtotal: | = | $423,936 | |
| (+) Senior Appraised Value: | + | $0 | |
| (+) Non-Senior Appraised Value: | + | $423,936 | |
| | | -------------------------- | |
| (=) Total Appraised Value: | = | $423,936 | |
| (–) Senior Exemption Loss: | – | $0 | |
| (–) Exemption Loss: | – | $0 | |
| | | -------------------------- | |
| (=) Taxable Value: | = | $423,936 | |
Taxing Jurisdiction
| Owner: | LW LAND LLC | | |
| % Ownership: | 100.0000000000% | | |
| Total Value: | $423,936 | | |
| Tax Area: | 112 - APPRAISER-OH Schl Dist, outside OH, improved, greater than 1 acre |
| CF | Conservation Futures | 0.0313996660 | $423,936 | $423,936 | $13.31 | | |
| CEM1 | Cemetery #1 | 0.0040018856 | $423,936 | $423,936 | $1.70 | | |
| FIRE2 | Fire & Rescue Dist #2 N Whidbey GEN | 0.5381486274 | $423,936 | $423,936 | $228.14 | | |
| HOBOND | Hospital BOND | 0.1893405597 | $423,936 | $423,936 | $80.27 | | |
| HOGEN | Hospital GEN | 0.3848777722 | $423,936 | $423,936 | $163.16 | | |
| CE | County Current Expense | 0.3674210519 | $423,936 | $423,936 | $155.76 | | |
| CR | County Roads | 0.4614296361 | $423,936 | $423,936 | $195.62 | | |
| ISLANDEMS | Hospital GEN (EMS) | 0.4952018576 | $423,936 | $423,936 | $209.93 | | |
| LIB | Library Sno-Isle GEN | 0.3039084203 | $423,936 | $423,936 | $128.84 | | |
| NWHIDPRMT | P & R N Whidbey GEN | 0.1990272349 | $423,936 | $423,936 | $84.37 | | |
| SCH201MO | School 201 Enrichment | 2.3851112745 | $423,936 | $423,936 | $1,011.13 | | |
| ST | State School | 1.4761226122 | $423,936 | $423,936 | $625.78 | | |
| ST2 | State School Part 2 | 0.7953803475 | $423,936 | $423,936 | $337.19 | | |
| | Total Tax Rate: | 7.6313709459 | | | | | |
| | | | | Taxes w/Current Exemptions: | $3,235.20 | | |
| | | | | Taxes w/o Exemptions: | $3,235.20 | | |
Improvement / Building
| Improvement #1: | RESIDENTIAL | State Code: | F1 | 0.0 sqft | Value: | $33,936 |
Sketch
| No sketches available for this property. |
Property Image
Land
| 1 | 37 | AC (31.00-+) | 39.7700 | 1732381.20 | 0.00 | 0.00 | 1.00 | $390,000 | $0 |
Roll Value History
| 2026 | N/A | N/A | N/A | N/A | N/A |
| 2025 | $33,936 | $390,000 | $0 | $423,936 | $423,936 |
| 2024 | $33,936 | $360,000 | $0 | $393,936 | $393,936 |
| 2023 | $33,936 | $360,000 | $0 | $393,936 | $393,936 |
| 2022 | $33,936 | $397,700 | $0 | $431,636 | $431,636 |
| 2021 | $33,936 | $397,700 | $0 | $431,636 | $431,636 |
| 2020 | $33,936 | $397,700 | $0 | $431,636 | $431,636 |
| 2019 | $33,936 | $397,700 | $0 | $431,636 | $431,636 |
| 2018 | $33,936 | $397,700 | $0 | $431,636 | $431,636 |
| 2017 | $33,936 | $1,700,168 | $0 | $1,734,104 | $1,734,104 |
| 2016 | $33,936 | $1,700,168 | $0 | $1,734,104 | $1,734,104 |
| 2015 | $33,936 | $1,700,168 | $0 | $1,734,104 | $1,734,104 |
| 2014 | $33,936 | $1,700,168 | $0 | $1,734,104 | $1,734,104 |
| 2013 | $33,936 | $1,700,168 | $0 | $1,734,104 | $1,734,104 |
| 2012 | $33,936 | $1,700,168 | $0 | $1,734,104 | $1,734,104 |
| 2011 | $33,936 | $1,700,168 | $0 | $1,734,104 | $1,734,104 |
| 2010 | $33,936 | $1,700,168 | $0 | $1,734,104 | $1,734,104 |
| 2009 | $36,432 | $1,700,168 | $0 | $1,736,600 | $1,736,600 |
| 2008 | $38,304 | $1,789,650 | $0 | $1,827,954 | $1,827,954 |
| 2007 | $40,848 | $311,734 | $0 | $352,582 | $352,582 |
Deed and Sales History
| 1 | 01/24/2008 | WD | Warranty Deed | CHRISTENSEN, DOROTHY M | LW LAND LLC, | | | $1,834,050.00 | 80227 | 4220652 |
| 2 | 06/03/1999 | WD | Warranty Deed | Unknown | CHRISTENSEN, DOROTHY M | | | $0.00 | 92147 | 99013284 |
Payout Agreement
| No payout information available.. |