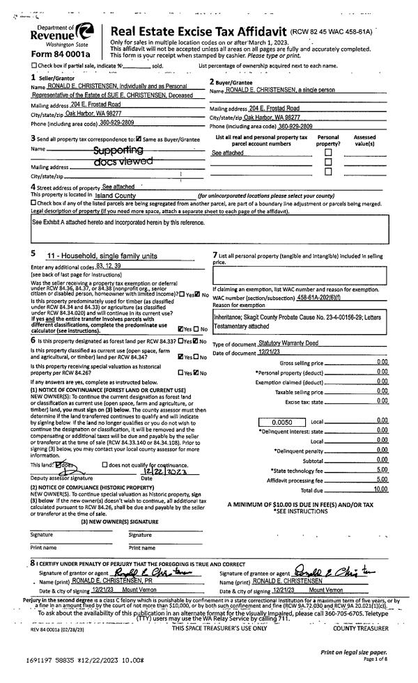
Property
Account |
| Property ID: | 100599 | Abbreviated Legal Description: | 18 - PT GL 4 LY E OF ST HWY & N OF CO RD EX PT TO IS CO AF#4269705 RE-RECORDED AF#4317588 |
| Geographic ID: | R23318-338-1210 | Agent Code: | |
| Type: | Real | | |
| Tax Area: | 119 - APPRAISER-OH Schl Dist, outside OH, vacant & 50 acres or less | Land Use Code | 83 |
| Open Space: | Y | DFL | N |
| Historic Property: | N | Remodel Property: | N |
| Multi-Family Redevelopment: | N | | |
| Township: | 33 | Section: | 18 |
| Range: | R2 |
Location |
| Address: | | Mapsco: | |
| Neighborhood: | Cycle 6 | Map ID: | 606 |
| Neighborhood CD: | 6 |
Owner |
| Name: | CHRISTENSEN, RONALD E | Owner ID: | 260641 |
| Mailing Address: | 204 E FROSTAD RD OAK HARBOR, WA 98277 | % Ownership: | 100.0000000000% |
| | | Exemptions: | |
Taxes and Assessment Details
Values
| (+) Improvement Homesite Value: | + | $0 | |
| (+) Improvement Non-Homesite Value: | + | $0 | |
| (+) Land Homesite Value: | + | $0 | |
| (+) Land Non-Homesite Value: | + | $0 | |
| (+) Curr Use (HS): | + | $0 | $0 |
| (+) Curr Use (NHS): | + | $240,000 | $1,278 |
| | | -------------------------- | |
| (=) Market Value: | = | $240,000 | |
| (–) Productivity Loss: | – | $238,722 | |
| | | -------------------------- | |
| (=) Subtotal: | = | $1,278 | |
| (+) Senior Appraised Value: | + | $0 | |
| (+) Non-Senior Appraised Value: | + | $1,278 | |
| | | -------------------------- | |
| (=) Total Appraised Value: | = | $1,278 | |
| (–) Senior Exemption Loss: | – | $0 | |
| (–) Exemption Loss: | – | $0 | |
| | | -------------------------- | |
| (=) Taxable Value: | = | $1,278 | |
Taxing Jurisdiction
| Owner: | CHRISTENSEN, RONALD E | | |
| % Ownership: | 100.0000000000% | | |
| Total Value: | $240,000 | | |
| Tax Area: | 119 - APPRAISER-OH Schl Dist, outside OH, vacant & 50 acres or less |
| CF | Conservation Futures | 0.0313996660 | $1,278 | $1,278 | $0.04 | | |
| CEM1 | Cemetery #1 | 0.0040018856 | $1,278 | $1,278 | $0.01 | | |
| HOBOND | Hospital BOND | 0.1893405597 | $1,278 | $1,278 | $0.24 | | |
| HOGEN | Hospital GEN | 0.3848777722 | $1,278 | $1,278 | $0.49 | | |
| CE | County Current Expense | 0.3674210519 | $1,278 | $1,278 | $0.47 | | |
| CR | County Roads | 0.4614296361 | $1,278 | $1,278 | $0.59 | | |
| ISLANDEMS | Hospital GEN (EMS) | 0.4952018576 | $1,278 | $1,278 | $0.63 | | |
| LIB | Library Sno-Isle GEN | 0.3039084203 | $1,278 | $1,278 | $0.39 | | |
| NWHIDPRMT | P & R N Whidbey GEN | 0.1990272349 | $1,278 | $1,278 | $0.25 | | |
| SCH201MO | School 201 Enrichment | 2.3851112745 | $1,278 | $1,278 | $3.05 | | |
| ST | State School | 1.4761226122 | $1,278 | $1,278 | $1.89 | | |
| ST2 | State School Part 2 | 0.7953803475 | $1,278 | $1,278 | $1.02 | | |
| | Total Tax Rate: | 7.0932223185 | | | | | |
| | | | | Taxes w/Current Exemptions: | $9.07 | | |
| | | | | Taxes w/o Exemptions: | $9.07 | | |
Improvement / Building
Sketch
| No sketches available for this property. |
Property Image
Land
| 1 | 32 | AC (03.01-09.99) | 5.2800 | 229996.80 | 0.00 | 0.00 | 1.00 | $240,000 | $1,278 |
Roll Value History
| 2026 | N/A | N/A | N/A | N/A | N/A |
| 2025 | $0 | $240,000 | $1,278 | $1,278 | $1,278 |
| 2024 | $0 | $220,000 | $1,278 | $1,278 | $1,278 |
| 2023 | $0 | $210,000 | $1,278 | $1,278 | $1,278 |
| 2022 | $0 | $210,000 | $1,278 | $1,278 | $1,278 |
| 2021 | $0 | $105,000 | $1,278 | $1,278 | $1,278 |
| 2020 | $0 | $105,000 | $1,278 | $1,278 | $1,278 |
| 2019 | $0 | $105,000 | $1,278 | $1,278 | $1,278 |
| 2018 | $0 | $105,000 | $1,278 | $1,278 | $1,278 |
| 2017 | $0 | $140,000 | $1,278 | $1,278 | $1,278 |
| 2016 | $0 | $140,000 | $1,278 | $1,278 | $1,278 |
| 2015 | $0 | $125,000 | $1,278 | $1,278 | $1,278 |
| 2014 | $0 | $115,000 | $1,278 | $1,278 | $1,278 |
| 2013 | $0 | $68,640 | $1,278 | $1,278 | $1,278 |
| 2012 | $0 | $89,760 | $1,278 | $1,278 | $1,278 |
| 2011 | $0 | $105,600 | $1,278 | $1,278 | $1,278 |
| 2010 | $0 | $105,600 | $1,278 | $1,278 | $1,278 |
| 2009 | $0 | $111,510 | $242 | $242 | $242 |
| 2008 | $0 | $111,510 | $0 | $111,510 | $111,510 |
| 2007 | $0 | $124,095 | $0 | $124,095 | $124,095 |
Deed and Sales History
| 1 | 12/18/2023 | WD | Warranty Deed | CHRISTENSEN, RONALD E | CHRISTENSEN, RONALD E | | | $0.00 | 58835 | 4567919 |
| 2 | 04/27/2022 | WD | Warranty Deed | HENNING FARM LAND, LLC | CHRISTENSEN, RONALD E | | | $0.00 | 57638 | 4563570 |
| 3 | 06/20/2016 | WD | Warranty Deed | CHRISTENSEN, RONALD E | HENNING FARM LAND, LLC | | | $0.00 | 25246 | 4403268 |
| 4 | 02/01/2010 | QCD | Quit Claim Deed | CHRISTENSEN, RONALD E | CHRISTENSEN, RONALD E | | | $0.00 | 7995 | 4317588 |
| 5 | 02/01/2010 | QCD | Quit Claim Deed | CHRISTENSEN, RONALD E | CHRISTENSEN, RONALD E | | | $282.00 | 480 | 4269705 |
| 6 | 05/27/2008 | QCD | Quit Claim Deed | CHRISTENSEN, RONALD E | CHRISTENSEN, RONALD E | | | $0.00 | 81405 | 4229966 |
| 7 | 01/24/2008 | QCD | Quit Claim Deed | CHRISTENSEN, DOROTHY M | CHRISTENSEN, RONALD E | | | $0.00 | 80262 | 4220858 |
| 8 | 11/08/2003 | EZ | Easement | CHRISTENSEN, DOROTHY M | CHRISTENSEN, DOROTHY M | | | $1,500.00 | 35315 | 0 |
| 9 | 06/03/1999 | WD | Warranty Deed | Unknown | CHRISTENSEN, DOROTHY M | | | $0.00 | 92145 | 99013282 |
Payout Agreement
| No payout information available.. |