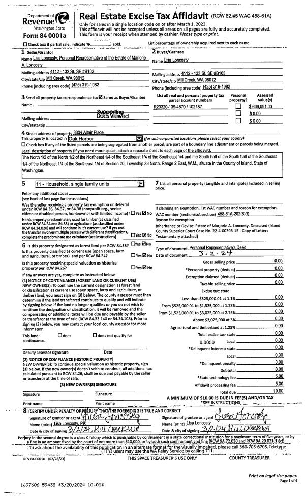
Property
Account |
| Property ID: | 102187 | Abbreviated Legal Description: | 53 - N/2 N/2 NE SE SE & S/2 S/2 SE NE SE SUB TO EZ |
| Geographic ID: | R23320-139-4870 | Agent Code: | |
| Type: | Real | | |
| Tax Area: | 112 - APPRAISER-OH Schl Dist, outside OH, improved, greater than 1 acre | Land Use Code | 11 |
| Open Space: | N | DFL | N |
| Historic Property: | N | Remodel Property: | N |
| Multi-Family Redevelopment: | N | | |
| Township: | 33 | Section: | 20 |
| Range: | R2 |
Location |
| Address: | 3304 ALTAIR PLACE OAK HARBOR, WA 98277 | Mapsco: | |
| Neighborhood: | Cycle 6 | Map ID: | 613 |
| Neighborhood CD: | 6 |
Owner |
| Name: | LONCOSTY, LISA | Owner ID: | 311702 |
| Mailing Address: | 4112 133 ST SE #B103 MILL CREEK, WA 98012 | % Ownership: | 100.0000000000% |
| | | Exemptions: | |
Taxes and Assessment Details
Values
| (+) Improvement Homesite Value: | + | $0 | |
| (+) Improvement Non-Homesite Value: | + | $322,998 | |
| (+) Land Homesite Value: | + | $0 | |
| (+) Land Non-Homesite Value: | + | $300,000 | |
| (+) Curr Use (HS): | + | $0 | $0 |
| (+) Curr Use (NHS): | + | $0 | $0 |
| | | -------------------------- | |
| (=) Market Value: | = | $622,998 | |
| (–) Productivity Loss: | – | $0 | |
| | | -------------------------- | |
| (=) Subtotal: | = | $622,998 | |
| (+) Senior Appraised Value: | + | $0 | |
| (+) Non-Senior Appraised Value: | + | $622,998 | |
| | | -------------------------- | |
| (=) Total Appraised Value: | = | $622,998 | |
| (–) Senior Exemption Loss: | – | $0 | |
| (–) Exemption Loss: | – | $0 | |
| | | -------------------------- | |
| (=) Taxable Value: | = | $622,998 | |
Taxing Jurisdiction
| Owner: | LONCOSTY, LISA | | |
| % Ownership: | 100.0000000000% | | |
| Total Value: | $622,998 | | |
| Tax Area: | 112 - APPRAISER-OH Schl Dist, outside OH, improved, greater than 1 acre |
| CF | Conservation Futures | 0.0313996660 | $622,998 | $622,998 | $19.56 | | |
| CEM1 | Cemetery #1 | 0.0040018856 | $622,998 | $622,998 | $2.49 | | |
| FIRE2 | Fire & Rescue Dist #2 N Whidbey GEN | 0.5381486274 | $622,998 | $622,998 | $335.27 | | |
| HOBOND | Hospital BOND | 0.1893405597 | $622,998 | $622,998 | $117.96 | | |
| HOGEN | Hospital GEN | 0.3848777722 | $622,998 | $622,998 | $239.78 | | |
| CE | County Current Expense | 0.3674210519 | $622,998 | $622,998 | $228.90 | | |
| CR | County Roads | 0.4614296361 | $622,998 | $622,998 | $287.47 | | |
| ISLANDEMS | Hospital GEN (EMS) | 0.4952018576 | $622,998 | $622,998 | $308.51 | | |
| LIB | Library Sno-Isle GEN | 0.3039084203 | $622,998 | $622,998 | $189.33 | | |
| NWHIDPRMT | P & R N Whidbey GEN | 0.1990272349 | $622,998 | $622,998 | $123.99 | | |
| SCH201MO | School 201 Enrichment | 2.3851112745 | $622,998 | $622,998 | $1,485.92 | | |
| ST | State School | 1.4761226122 | $622,998 | $622,998 | $919.62 | | |
| ST2 | State School Part 2 | 0.7953803475 | $622,998 | $622,998 | $495.52 | | |
| | Total Tax Rate: | 7.6313709459 | | | | | |
| | | | | Taxes w/Current Exemptions: | $4,754.32 | | |
| | | | | Taxes w/o Exemptions: | $4,754.32 | | |
Improvement / Building
| Improvement #1: | RESIDENTIAL | State Code: | Y | 1713.0 sqft | Value: | $322,998 |
| Bathrooms: | 1.75 | Bedrooms: | 3 | | Ceiling: | DRY WALL SPRAYED | Exterior Wall/Cover: | WOOD SIDING | | Floor Covering: | CARPET/VINYL 60-40 | Floor Structure: | WOOD W/SUBFLOOR | | Foundation: | CONCRETE | Heating: | BASEBOARD ELECTRIC | | Interior Finish: | DRYWALL PAINT | Plumbing Fixture Cnt: | 9 | | Roof Slope: | 4" IN 12" | Roof Structure/Cover: | CJ ASPHALT |
|
| | Type | Description | Class CD | Sub Class CD | Year Built | Area |
| | BAS | BASE/MAIN FLOOR | 3 | 0 | 1972 | 1713.0 |
| | AGR | ATTACHED GARAGE | 3 | 0 | 1972 | 480.0 |
| | OWP | OPEN WOOD PORCH W/STEPS | 3 | 0 | 1972 | 355.0 |
| | OWP | OPEN WOOD PORCH W/STEPS | 3 | 0 | 1972 | 216.0 |
| | OCP | OPEN CARPORT | 3 | 0 | 1972 | 120.0 |
| | CPD | OPEN CARPORT DIRT FLOOR | 3 | 0 | 1972 | 1632.0 |
| | DGR | DETACHED GARAGE | 3 | 0 | 1972 | 1152.0 |
Sketch
Property Image
Land
| 1 | 32 | AC (03.01-09.99) | 5.0000 | 0.00 | 0.00 | 0.00 | 1.00 | $300,000 | $0 |
Roll Value History
| 2026 | N/A | N/A | N/A | N/A | N/A |
| 2025 | $322,998 | $300,000 | $0 | $622,998 | $622,998 |
| 2024 | $334,524 | $280,000 | $0 | $614,524 | $614,524 |
| 2023 | $339,091 | $270,000 | $0 | $609,091 | $609,091 |
| 2022 | $311,194 | $240,000 | $0 | $551,194 | $551,194 |
| 2021 | $274,181 | $175,000 | $0 | $449,181 | $135,816 |
| 2020 | $267,657 | $150,000 | $0 | $417,657 | $134,388 |
| 2019 | $197,559 | $185,000 | $0 | $382,559 | $119,046 |
| 2018 | $198,190 | $170,000 | $0 | $368,190 | $119,184 |
| 2017 | $199,451 | $150,000 | $0 | $349,451 | $119,460 |
| 2016 | $157,399 | $130,000 | $0 | $287,399 | $110,256 |
| 2015 | $159,340 | $120,000 | $0 | $279,340 | $110,681 |
| 2014 | $161,279 | $100,000 | $0 | $261,279 | $111,105 |
| 2013 | $163,219 | $99,000 | $0 | $262,219 | $111,530 |
| 2012 | $165,160 | $99,000 | $0 | $264,160 | $111,955 |
| 2011 | $167,100 | $110,000 | $0 | $277,100 | $112,379 |
| 2010 | $187,192 | $110,000 | $0 | $297,192 | $116,777 |
| 2009 | $196,367 | $125,000 | $0 | $321,367 | $321,367 |
| 2008 | $155,873 | $143,882 | $0 | $299,755 | $189,515 |
| 2007 | $156,970 | $110,550 | $0 | $267,520 | $123,185 |
Deed and Sales History
| 1 | 08/28/2025 | WD | Warranty Deed | LONCOSTY, LISA | HOLOFCHAK, SAMUEL J | | | $674,950.00 | 64660 | 4590291 |
| 2 | 03/02/2024 | PRD | Personal Representatives Deed | LONCOSTY, LEE N & MARJORIE | LONCOSTY, LISA | | | $0.00 | 59438 | 4570401 |
| 3 | 05/01/1991 | WD | Warranty Deed | , | LONCOSTY, LEE N | | | $98,000.00 | 11710 | 91007345 |
| 4 | 01/01/1900 | OTHER | Other - Misc. Documents | Unknown | , | | | $0.00 | 0 | 0 |
Payout Agreement
| No payout information available.. |