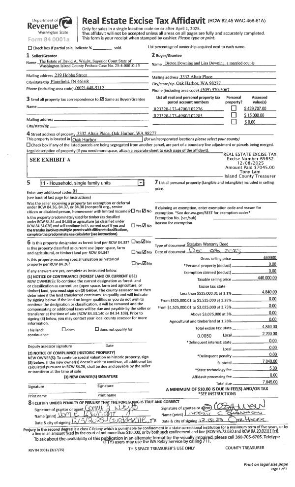
Property
Account |
| Property ID: | 102285 | Abbreviated Legal Description: | 52 - SE NE SE EX N/2 N/2 EX S/2 S/2 EX: BG SWCR N/2 S/2 SE NE SE E30' N113' TPB N104' E238' S104' W238' TPB SUB TO EZ |
| Geographic ID: | R23320-173-4980 | Agent Code: | |
| Type: | Real | | |
| Tax Area: | 119 - APPRAISER-OH Schl Dist, outside OH, vacant & 50 acres or less | Land Use Code | 91 |
| Open Space: | N | DFL | N |
| Historic Property: | N | Remodel Property: | N |
| Multi-Family Redevelopment: | N | | |
| Township: | 33 | Section: | 20 |
| Range: | R2 |
Location |
| Address: | | Mapsco: | |
| Neighborhood: | Cycle 6 | Map ID: | 613 |
| Neighborhood CD: | 6 |
Owner |
| Name: | DOWNING, BRETON | Owner ID: | 319042 |
| Mailing Address: | LISA DOWNING 3332 ALTAIR PLACE OAK HARBOR, WA 98277 | % Ownership: | 100.0000000000% |
| | | Exemptions: | |
Taxes and Assessment Details
Values
| (+) Improvement Homesite Value: | + | N/A | |
| (+) Improvement Non-Homesite Value: | + | N/A | |
| (+) Land Homesite Value: | + | N/A | |
| (+) Land Non-Homesite Value: | + | N/A | Ag / Timber Use Value |
| (+) Curr Use (HS): | + | N/A | N/A |
| (+) Curr Use (NHS): | + | N/A | N/A |
| | | -------------------------- | |
| (=) Market Value: | = | N/A | |
| (–) Productivity Loss: | – | N/A | |
| | | -------------------------- | |
| (=) Subtotal: | = | N/A | |
| (+) Senior Appraised Value: | + | N/A | |
| (+) Non-Senior Appraised Value: | + | N/A | |
| | | -------------------------- | |
| (=) Total Appraised Value: | = | N/A | |
| (–) Senior Exemption Loss: | – | N/A | |
| (–) Exemption Loss: | – | N/A | |
| | | -------------------------- | |
| (=) Taxable Value: | = | N/A | |
Taxing Jurisdiction
| Owner: | DOWNING, BRETON | | |
| % Ownership: | 100.0000000000% | | |
| Total Value: | N/A | | |
| Tax Area: | 119 - APPRAISER-OH Schl Dist, outside OH, vacant & 50 acres or less |
| CF | Conservation Futures | N/A | N/A | N/A | N/A | | |
| WCD | Whidbey Conservation District | N/A | N/A | N/A | N/A | | |
| CEM1 | Cemetery #1 | N/A | N/A | N/A | N/A | | |
| HOBOND | Hospital BOND | N/A | N/A | N/A | N/A | | |
| HOGEN | Hospital GEN | N/A | N/A | N/A | N/A | | |
| CE | County Current Expense | N/A | N/A | N/A | N/A | | |
| CR | County Roads | N/A | N/A | N/A | N/A | | |
| ISLANDEMS | Hospital GEN (EMS) | N/A | N/A | N/A | N/A | | |
| LIB | Library Sno-Isle GEN | N/A | N/A | N/A | N/A | | |
| NWHIDPRMT | P & R N Whidbey GEN | N/A | N/A | N/A | N/A | | |
| SCH201MO | School 201 Enrichment | N/A | N/A | N/A | N/A | | |
| ST | State School | N/A | N/A | N/A | N/A | | |
| ST2 | State School Part 2 | N/A | N/A | N/A | N/A | | |
| | Total Tax Rate: | N/A | | | | | |
| | | | | Taxes w/Current Exemptions: | N/A | | |
| | | | | Taxes w/o Exemptions: | N/A | | |
Improvement / Building
Sketch
| No sketches available for this property. |
Property Image
Land
| 1 | 32 | AC (03.01-09.99) | 4.4300 | 0.00 | 0.00 | 0.00 | 1.00 | N/A | N/A |
Roll Value History
| 2026 | N/A | N/A | N/A | N/A | N/A |
| 2025 | $0 | $15,000 | $0 | $15,000 | $15,000 |
| 2024 | $0 | $15,000 | $0 | $15,000 | $15,000 |
| 2023 | $0 | $15,000 | $0 | $15,000 | $15,000 |
| 2022 | $0 | $15,000 | $0 | $15,000 | $15,000 |
| 2021 | $0 | $15,000 | $0 | $15,000 | $15,000 |
| 2020 | $0 | $15,000 | $0 | $15,000 | $15,000 |
| 2019 | $0 | $15,000 | $0 | $15,000 | $15,000 |
| 2018 | $0 | $15,000 | $0 | $15,000 | $15,000 |
| 2017 | $0 | $5,000 | $0 | $5,000 | $5,000 |
| 2016 | $0 | $5,000 | $0 | $5,000 | $5,000 |
| 2015 | $0 | $15,000 | $0 | $15,000 | $15,000 |
| 2014 | $0 | $15,000 | $0 | $15,000 | $15,000 |
| 2013 | $0 | $15,000 | $0 | $15,000 | $15,000 |
| 2012 | $0 | $88,600 | $0 | $88,600 | $88,600 |
| 2011 | $0 | $88,600 | $0 | $88,600 | $88,600 |
| 2010 | $0 | $88,600 | $0 | $88,600 | $88,600 |
| 2009 | $3,875 | $110,750 | $0 | $114,625 | $114,625 |
| 2008 | $3,875 | $128,470 | $0 | $132,345 | $132,345 |
| 2007 | $3,875 | $92,753 | $0 | $96,628 | $96,628 |
Deed and Sales History
| 1 | 12/05/2025 | WD | Warranty Deed | MISTY WRIGHT, CO-PR | DOWNING, BRETON | | | $440,000.00 | 65652 | 4594359 |
|   | |
| 2 | 07/21/2025 | PRD | Personal Representatives Deed | MISTY WRIGHT, CO-PR | MISTY WRIGHT, CO-PR | | | $0.00 | 64265 | 4588775 |
| 3 | 03/01/1990 | WD | Warranty Deed | BERG, NORMAN E | WRIGHT, DAVID A | | | $17,000.00 | 1697 | 90005459 |
| 4 | 04/01/1984 | OTHER | Other - Misc. Documents | BERG, NORMAN E | BERG, NORMAN E | | | $3,000.00 | 41082 | 0 |
| 5 | 08/01/1977 | TRUSTEED | Trustee's Deed | DAVIS, RAYFORD B | BERG, NORMAN E | | | $0.00 | 73564 | 0 |
| 6 | 03/01/1972 | EXECUTORD | Executor Deed | WRIGHT, DAVID / | DAVIS, RAYFORD B | | | $0.00 | 43720 | 0 |
| 7 | 01/01/1900 | OTHER | Other - Misc. Documents | LOGAN, L C | WRIGHT, DAVID / | | | $0.00 | 1696 | 0 |
| 8 | 01/01/1900 | OTHER | Other - Misc. Documents | FEND, EUGENE A | LOGAN, L C | | | $0.00 | 0 | 0 |
| 9 | 01/01/1900 | OTHER | Other - Misc. Documents | Unknown | FEND, EUGENE A | | | $0.00 | 0 | 0 |
Payout Agreement
| No payout information available.. |