Property
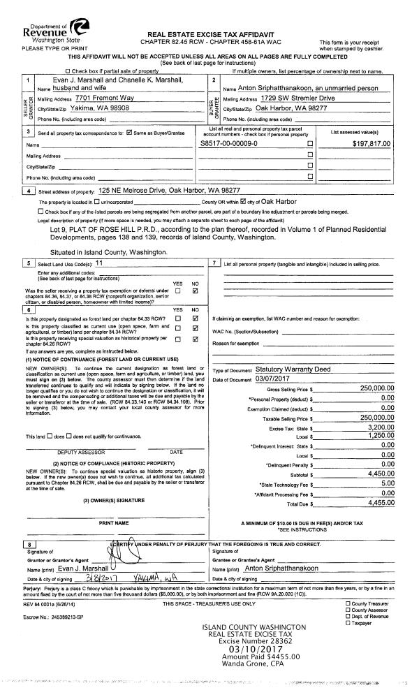
Account |
| Property ID: | 103355 | Abbreviated Legal Description: | 10 - N/2 W/2 SE SW INCL EZ TGW CONSERVATION EZ AF#325540 |
| Geographic ID: | R23322-102-1651 | Agent Code: | |
| Type: | Real | | |
| Tax Area: | 112 - APPRAISER-OH Schl Dist, outside OH, improved, greater than 1 acre | Land Use Code | 11 |
| Open Space: | N | DFL | N |
| Historic Property: | N | Remodel Property: | N |
| Multi-Family Redevelopment: | N | | |
| Township: | 33 | Section: | 22 |
| Range: | R2 |
Location |
| Address: | 1311 ROSE LN OAK HARBOR, WA 98277 | Mapsco: | |
| Neighborhood: | Cycle 6 | Map ID: | 620 |
| Neighborhood CD: | 6 |
Owner |
| Name: | LEWIS, MARK WALKER | Owner ID: | 265626 |
| Mailing Address: | 1311 ROSE LANE OAK HARBOR, WA 98277 | % Ownership: | 100.0000000000% |
| | | Exemptions: | SNR/DSBL |
Taxes and Assessment Details
Values
| (+) Improvement Homesite Value: | + | $282,723 | |
| (+) Improvement Non-Homesite Value: | + | $1,200 | |
| (+) Land Homesite Value: | + | $170,000 | |
| (+) Land Non-Homesite Value: | + | $170,000 | |
| (+) Curr Use (HS): | + | $0 | $0 |
| (+) Curr Use (NHS): | + | $0 | $0 |
| | | -------------------------- | |
| (=) Market Value: | = | $623,923 | |
| (–) Productivity Loss: | – | $0 | |
| | | -------------------------- | |
| (=) Subtotal: | = | $623,923 | |
| (+) Senior Appraised Value: | + | $430,771 | |
| (+) Non-Senior Appraised Value: | + | $171,200 | |
| | | -------------------------- | |
| (=) Total Appraised Value: | = | $601,971 | |
| (–) Senior Exemption Loss: | – | $258,463 | |
| (–) Exemption Loss: | – | $0 | |
| | | -------------------------- | |
| (=) Taxable Value: | = | $343,508 | |
Taxing Jurisdiction
| Owner: | LEWIS, MARK WALKER | | |
| % Ownership: | 100.0000000000% | | |
| Total Value: | $623,923 | | |
| Tax Area: | 112 - APPRAISER-OH Schl Dist, outside OH, improved, greater than 1 acre |
| CF | Conservation Futures | 0.0313996660 | $623,923 | $343,508 | $10.79 | | |
| CEM1 | Cemetery #1 | 0.0040018856 | $623,923 | $343,508 | $1.37 | | |
| FIRE2 | Fire & Rescue Dist #2 N Whidbey GEN | 0.5381486274 | $623,923 | $343,508 | $184.86 | | |
| HOBOND | Hospital BOND | 0.0000000000 | $623,923 | $171,200 | $32.42 | | |
| HOGEN | Hospital GEN | 0.3848777722 | $623,923 | $343,508 | $132.21 | | |
| CE | County Current Expense | 0.3674210519 | $623,923 | $343,508 | $126.21 | | |
| CR | County Roads | 0.4614296361 | $623,923 | $343,508 | $158.50 | | |
| ISLANDEMS | Hospital GEN (EMS) | 0.4952018576 | $623,923 | $343,508 | $170.11 | | |
| LIB | Library Sno-Isle GEN | 0.3039084203 | $623,923 | $343,508 | $104.39 | | |
| NWHIDPRMT | P & R N Whidbey GEN | 0.1990272349 | $623,923 | $343,508 | $68.37 | | |
| SCH201MO | School 201 Enrichment | 0.0000000000 | $623,923 | $171,200 | $408.33 | | |
| ST | State School | 1.4761226122 | $623,923 | $343,508 | $507.06 | | |
| ST2 | State School Part 2 | 0.0000000000 | $623,923 | $171,200 | $136.17 | | |
| | Total Tax Rate: | 4.2615387642 | | | | | |
| | | | | Taxes w/Current Exemptions: | $2,040.79 | | |
| | | | | Taxes w/o Exemptions: | $4,761.40 | | |
Improvement / Building
| Improvement #1: | RESIDENTIAL | State Code: | Y | 2174.5 sqft | Value: | $282,723 |
| Bathrooms: | 3 | Bedrooms: | 3 | | Ceiling: | DRY WALL SPRAYED | Exterior Wall/Cover: | VINYL | | Floor Covering: | CARPET/VINYL 80-20 | Floor Structure: | WOOD W/SUBFLOOR | | Foundation: | CONCRETE | Heating: | FHA ELECTRIC | | Interior Finish: | DRYWALL PAINT | Plumbing Fixture Cnt: | 12 | | Roof Slope: | 4" IN 12" | Roof Structure/Cover: | CJ ASPHALT |
|
| | Type | Description | Class CD | Sub Class CD | Year Built | Area |
| | BAS | BASE/MAIN FLOOR | 3 | 0 | 1976 | 1446.5 |
| | DWN | DOWNSTAIRS LIVING AREA | 3 | 0 | 1976 | 728.0 |
| | OP4 | OPEN PORCH W/CEILING-ROOF | 3 | 0 | 1976 | 38.2 |
| | BGR | BASEMENT GARAGE | 3 | 0 | 1976 | 676.0 |
| | BAW | BALCONY WOOD RAIL | 3 | 0 | 1976 | 204.0 |
| | DGR | DETACHED GARAGE | 3 | 0 | 1976 | 400.0 |
| Improvement #2: | RESIDENTIAL | State Code: | Y | 0.0 sqft | Value: | $1,200 |
Sketch
Property Image
Land
| 1 | 35 | AC (10.00-30.99) | 10.0000 | 435600.00 | 0.00 | 0.00 | 1.00 | $340,000 | $0 |
Roll Value History
| 2026 | N/A | N/A | N/A | N/A | N/A |
| 2025 | $283,923 | $340,000 | $0 | $623,923 | $343,508 |
| 2024 | $286,746 | $300,000 | $0 | $586,746 | $322,308 |
| 2023 | $290,771 | $280,000 | $0 | $570,771 | $312,308 |
| 2022 | $263,307 | $270,000 | $0 | $533,307 | $533,307 |
| 2021 | $248,738 | $210,000 | $0 | $458,738 | $458,738 |
| 2020 | $242,109 | $200,000 | $0 | $442,109 | $442,109 |
| 2019 | $172,979 | $250,000 | $0 | $422,979 | $422,979 |
| 2018 | $173,554 | $220,000 | $0 | $393,554 | $393,554 |
| 2017 | $174,701 | $200,000 | $0 | $374,701 | $374,701 |
| 2016 | $135,876 | $150,000 | $0 | $285,876 | $285,876 |
| 2015 | $138,072 | $55,000 | $0 | $193,072 | $193,072 |
| 2014 | $140,266 | $170,000 | $0 | $310,266 | $310,266 |
| 2013 | $142,460 | $170,000 | $909 | $160,369 | $160,369 |
| 2012 | $144,656 | $9,000 | $0 | $153,656 | $153,656 |
| 2011 | $146,851 | $10,000 | $0 | $156,851 | $156,851 |
| 2010 | $150,618 | $10,000 | $0 | $160,618 | $160,618 |
| 2009 | $157,450 | $39,996 | $0 | $197,446 | $197,446 |
| 2008 | $166,660 | $21,000 | $0 | $187,660 | $187,660 |
| 2007 | $169,142 | $101,650 | $0 | $270,792 | $270,792 |
Deed and Sales History
| 1 | 12/09/2013 | QCD | Quit Claim Deed | LEWIS, ELEANORE S | LEWIS, MARK WALKER | | | $0.00 | 14877 | 4357775 |
| 2 | 05/22/2007 | QCD | Quit Claim Deed | LEWIS, ELEANORE S | LEWIS, ELEANORE S | | | $0.00 | 71726 | 4202853 |
| 3 | 09/01/1992 | QCD | Quit Claim Deed | LEWIS, ELEANORE S | LEWIS, ELEANORE S | | | $0.00 | 23741 | 92018082 |
| 4 | 07/01/1992 | OTHER | Other - Misc. Documents | LEWIS, WALTER I | LEWIS, ELEANORE S | | | $0.00 | 64963 | 86009634 |
| 5 | 01/01/1900 | OTHER | Other - Misc. Documents | Unknown | LEWIS, WALTER I | | | $0.00 | 0 | 0 |
Payout Agreement
| No payout information available.. |