Property
Account |
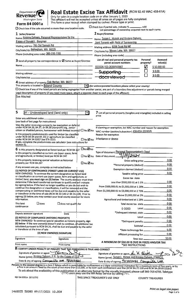
| Property ID: | 103907 | Abbreviated Legal Description: | 19 - IN GL 2 & SW SE |
| Geographic ID: | R23326-153-2630 | Agent Code: | |
| Type: | Real | | |
| Tax Area: | 119 - APPRAISER-OH Schl Dist, outside OH, vacant & 50 acres or less | Land Use Code | 91 |
| Open Space: | N | DFL | N |
| Historic Property: | N | Remodel Property: | N |
| Multi-Family Redevelopment: | N | | |
| Township: | 33 | Section: | 26 |
| Range: | R2 |
Location |
| Address: | | Mapsco: | |
| Neighborhood: | Cycle 6 | Map ID: | 624 |
| Neighborhood CD: | 6 |
Owner |
| Name: | HICKOK JTWROS, SUSAN L | Owner ID: | 301203 |
| Mailing Address: | KRISTINA DAHEIM JTWROS 8206 SCOTT RD NE MOSES LAKE, WA 98837 | % Ownership: | 100.0000000000% |
| | | Exemptions: | EX |
Taxes and Assessment Details
Values
| (+) Improvement Homesite Value: | + | $0 | |
| (+) Improvement Non-Homesite Value: | + | $0 | |
| (+) Land Homesite Value: | + | $0 | |
| (+) Land Non-Homesite Value: | + | $450 | |
| (+) Curr Use (HS): | + | $0 | $0 |
| (+) Curr Use (NHS): | + | $0 | $0 |
| | | -------------------------- | |
| (=) Market Value: | = | $450 | |
| (–) Productivity Loss: | – | $0 | |
| | | -------------------------- | |
| (=) Subtotal: | = | $450 | |
| (+) Senior Appraised Value: | + | $0 | |
| (+) Non-Senior Appraised Value: | + | $450 | |
| | | -------------------------- | |
| (=) Total Appraised Value: | = | $450 | |
| (–) Senior Exemption Loss: | – | $0 | |
| (–) Exemption Loss: | – | $450 | |
| | | -------------------------- | |
| (=) Taxable Value: | = | $0 | |
Taxing Jurisdiction
| Owner: | HICKOK JTWROS, SUSAN L | | |
| % Ownership: | 100.0000000000% | | |
| Total Value: | $450 | | |
| Tax Area: | 119 - APPRAISER-OH Schl Dist, outside OH, vacant & 50 acres or less |
| CF | Conservation Futures | 0.0313996660 | $450 | $0 | $0.00 | | |
| CEM1 | Cemetery #1 | 0.0040018856 | $450 | $0 | $0.00 | | |
| HOBOND | Hospital BOND | 0.1893405597 | $450 | $0 | $0.00 | | |
| HOGEN | Hospital GEN | 0.3848777722 | $450 | $0 | $0.00 | | |
| CE | County Current Expense | 0.3674210519 | $450 | $0 | $0.00 | | |
| CR | County Roads | 0.4614296361 | $450 | $0 | $0.00 | | |
| ISLANDEMS | Hospital GEN (EMS) | 0.4952018576 | $450 | $0 | $0.00 | | |
| LIB | Library Sno-Isle GEN | 0.3039084203 | $450 | $0 | $0.00 | | |
| NWHIDPRMT | P & R N Whidbey GEN | 0.1990272349 | $450 | $0 | $0.00 | | |
| SCH201MO | School 201 Enrichment | 2.3851112745 | $450 | $0 | $0.00 | | |
| ST | State School | 1.4761226122 | $450 | $0 | $0.00 | | |
| ST2 | State School Part 2 | 0.7953803475 | $450 | $0 | $0.00 | | |
| | Total Tax Rate: | 7.0932223185 | | | | | |
| | | | | Taxes w/Current Exemptions: | $0.00 | | |
| | | | | Taxes w/o Exemptions: | $3.19 | | |
Improvement / Building
Sketch
| No sketches available for this property. |
Property Image
Land
| 1 | 16 | AC (00.51-01.00) | 0.5500 | 23958.00 | 0.00 | 0.00 | 1.00 | $450 | $0 |
Roll Value History
| 2026 | N/A | N/A | N/A | N/A | N/A |
| 2025 | $0 | $450 | $0 | $450 | $0 |
| 2024 | $0 | $450 | $0 | $450 | $0 |
| 2023 | $0 | $450 | $0 | $450 | $0 |
| 2022 | $0 | $55,000 | $0 | $55,000 | $0 |
| 2021 | $0 | $50,000 | $0 | $50,000 | $0 |
| 2020 | $0 | $50,000 | $0 | $50,000 | $0 |
| 2019 | $0 | $110,000 | $0 | $110,000 | $0 |
| 2018 | $0 | $110,000 | $0 | $110,000 | $0 |
| 2017 | $0 | $80,000 | $0 | $80,000 | $0 |
| 2016 | $0 | $80,000 | $0 | $80,000 | $0 |
| 2015 | $0 | $60,000 | $0 | $60,000 | $0 |
| 2014 | $0 | $50,000 | $0 | $50,000 | $0 |
| 2013 | $0 | $50,000 | $0 | $50,000 | $0 |
| 2012 | $0 | $50,000 | $0 | $50,000 | $0 |
| 2011 | $0 | $50,000 | $0 | $50,000 | $0 |
| 2010 | $0 | $50,000 | $0 | $50,000 | $0 |
| 2009 | $0 | $40,000 | $0 | $40,000 | $0 |
| 2008 | $0 | $40,000 | $0 | $40,000 | $0 |
| 2007 | $0 | $66,700 | $0 | $66,700 | $0 |
Deed and Sales History
| 1 | 09/10/2021 | PRD | Personal Representatives Deed | BORGMAN, DONALD L | HICKOK JTWROS, SUSAN L | | | $0.00 | 50080 | 4529364 |
| 2 | 11/21/2019 | EZ | Easement | BORGMAN, DONALD L | PUGET SOUND ENERGY | | | $1,500.00 | 41415 | 4477248 |
|   | |
| 3 | 12/01/1993 | WD | Warranty Deed | BORGMAN, GUDRUN C | BORGMAN, DONALD L | | | $0.00 | 34756 | 93025528 |
| 4 | 01/01/1981 | TRUSTEED | Trustee's Deed | BORGMAN, CARROLL | BORGMAN, GUDRUN C | | | $0.00 | 11116 | 381804 |
| 5 | 02/01/1970 | CD | DNU - Correction Deed | UBIL, KENT | BORGMAN, CARROLL | | | $0.00 | 38046 | 0 |
| 6 | 01/01/1900 | OTHER | Other - Misc. Documents | Unknown | UBIL, KENT | | | $0.00 | 0 | 0 |
Payout Agreement
| No payout information available.. |