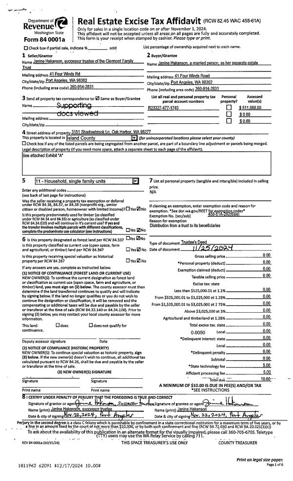
Property
Account |
| Property ID: | 104906 | Abbreviated Legal Description: | 78 - S304' OF NW NE NW EX WLY 85' TGW SUB EZ TR B SP 76-21 |
| Geographic ID: | R23327-477-1740 | Agent Code: | |
| Type: | Real | | |
| Tax Area: | 112 - APPRAISER-OH Schl Dist, outside OH, improved, greater than 1 acre | Land Use Code | 11 |
| Open Space: | N | DFL | N |
| Historic Property: | N | Remodel Property: | N |
| Multi-Family Redevelopment: | N | | |
| Township: | 33 | Section: | 27 |
| Range: | R2 |
Location |
| Address: | 3151 SHADOWBROOK LN OAK HARBOR, WA 98277 | Mapsco: | |
| Neighborhood: | Cycle 6 | Map ID: | 629 |
| Neighborhood CD: | 6 |
Owner |
| Name: | HAKANSON TTEE, JOHN | Owner ID: | 314873 |
| Mailing Address: | JANINE HAKANSON TTEE 41 FOUR WINDS RD PORT ANGELES, WA 98362 | % Ownership: | 100.0000000000% |
| | | Exemptions: | |
Taxes and Assessment Details
Values
| (+) Improvement Homesite Value: | + | $0 | |
| (+) Improvement Non-Homesite Value: | + | $227,206 | |
| (+) Land Homesite Value: | + | $0 | |
| (+) Land Non-Homesite Value: | + | $300,000 | |
| (+) Curr Use (HS): | + | $0 | $0 |
| (+) Curr Use (NHS): | + | $0 | $0 |
| | | -------------------------- | |
| (=) Market Value: | = | $527,206 | |
| (–) Productivity Loss: | – | $0 | |
| | | -------------------------- | |
| (=) Subtotal: | = | $527,206 | |
| (+) Senior Appraised Value: | + | $0 | |
| (+) Non-Senior Appraised Value: | + | $527,206 | |
| | | -------------------------- | |
| (=) Total Appraised Value: | = | $527,206 | |
| (–) Senior Exemption Loss: | – | $0 | |
| (–) Exemption Loss: | – | $0 | |
| | | -------------------------- | |
| (=) Taxable Value: | = | $527,206 | |
Taxing Jurisdiction
| Owner: | HAKANSON TTEE, JOHN | | |
| % Ownership: | 100.0000000000% | | |
| Total Value: | $527,206 | | |
| Tax Area: | 112 - APPRAISER-OH Schl Dist, outside OH, improved, greater than 1 acre |
| CF | Conservation Futures | 0.0313996660 | $527,206 | $527,206 | $16.55 | | |
| CEM1 | Cemetery #1 | 0.0040018856 | $527,206 | $527,206 | $2.11 | | |
| FIRE2 | Fire & Rescue Dist #2 N Whidbey GEN | 0.5381486274 | $527,206 | $527,206 | $283.72 | | |
| HOBOND | Hospital BOND | 0.1893405597 | $527,206 | $527,206 | $99.82 | | |
| HOGEN | Hospital GEN | 0.3848777722 | $527,206 | $527,206 | $202.91 | | |
| CE | County Current Expense | 0.3674210519 | $527,206 | $527,206 | $193.71 | | |
| CR | County Roads | 0.4614296361 | $527,206 | $527,206 | $243.27 | | |
| ISLANDEMS | Hospital GEN (EMS) | 0.4952018576 | $527,206 | $527,206 | $261.07 | | |
| LIB | Library Sno-Isle GEN | 0.3039084203 | $527,206 | $527,206 | $160.22 | | |
| NWHIDPRMT | P & R N Whidbey GEN | 0.1990272349 | $527,206 | $527,206 | $104.93 | | |
| SCH201MO | School 201 Enrichment | 2.3851112745 | $527,206 | $527,206 | $1,257.44 | | |
| ST | State School | 1.4761226122 | $527,206 | $527,206 | $778.22 | | |
| ST2 | State School Part 2 | 0.7953803475 | $527,206 | $527,206 | $419.33 | | |
| | Total Tax Rate: | 7.6313709459 | | | | | |
| | | | | Taxes w/Current Exemptions: | $4,023.30 | | |
| | | | | Taxes w/o Exemptions: | $4,023.30 | | |
Improvement / Building
| Improvement #1: | MANUFACTURED HOME | State Code: | Y | 1512.0 sqft | Value: | $227,206 |
| Bathrooms: | 0 | Bedrooms: | 0 | | Ceiling: | PLASTER PAINTED | Cooling: | EVAP NO DUCT | | Exterior Wall/Cover: | VINYL | Floor Covering: | CARPET 100% | | Floor Structure: | SLAB ON GRADE | Foundation: | SLAB | | Heating: | FHA ELECTRIC | Interior Finish: | PLASTER | | Plumbing Fixture Cnt: | 1 | Roof Slope: | FLAT | | Roof Structure/Cover: | CJ ALUMINIUM HEAVY |   |   |
|
| | Type | Description | Class CD | Sub Class CD | Year Built | Area |
| | BAS | BASE/MAIN FLOOR | 5 | 0 | 1999 | 1512.0 |
| | DGR | DETACHED GARAGE | 5 | 0 | 1999 | 216.0 |
| | UTY | STORAGE/UTILITY | 5 | 0 | 1999 | 2520.0 |
| | OWP | OPEN WOOD PORCH W/STEPS | 5 | 0 | 1999 | 400.5 |
| | OWP | OPEN WOOD PORCH W/STEPS | 5 | 0 | 1999 | 387.2 |
Sketch
Property Image
Land
| 1 | 32 | AC (03.01-09.99) | 4.0100 | 0.00 | 0.00 | 0.00 | 1.00 | $300,000 | $0 |
Roll Value History
| 2026 | N/A | N/A | N/A | N/A | N/A |
| 2025 | $227,206 | $300,000 | $0 | $527,206 | $527,206 |
| 2024 | $231,088 | $280,000 | $0 | $511,088 | $511,088 |
| 2023 | $214,463 | $270,000 | $0 | $484,463 | $484,463 |
| 2022 | $154,544 | $240,000 | $0 | $394,544 | $394,544 |
| 2021 | $138,627 | $160,000 | $0 | $298,627 | $298,627 |
| 2020 | $138,010 | $140,000 | $0 | $278,010 | $278,010 |
| 2019 | $112,740 | $200,000 | $0 | $312,740 | $312,740 |
| 2018 | $115,291 | $170,000 | $0 | $285,291 | $285,291 |
| 2017 | $116,566 | $150,000 | $0 | $266,566 | $266,566 |
| 2016 | $122,485 | $130,000 | $0 | $252,485 | $252,485 |
| 2015 | $124,632 | $120,000 | $0 | $244,632 | $244,632 |
| 2014 | $126,780 | $100,000 | $0 | $226,780 | $226,780 |
| 2013 | $128,927 | $79,398 | $0 | $208,325 | $208,325 |
| 2012 | $131,075 | $79,398 | $0 | $210,473 | $210,473 |
| 2011 | $115,023 | $88,220 | $0 | $203,243 | $203,243 |
| 2010 | $115,809 | $88,220 | $0 | $204,029 | $204,029 |
| 2009 | $122,236 | $116,290 | $0 | $238,526 | $238,526 |
| 2008 | $123,656 | $116,290 | $0 | $239,946 | $239,946 |
| 2007 | $125,067 | $120,300 | $0 | $245,367 | $245,367 |
Deed and Sales History
| 1 | 11/25/2024 | QCD | Quit Claim Deed | HAKANSON, JANINE | HAKANSON TTEE, JOHN | | | $0.00 | 62092 | 4580460 |
| 2 | 11/25/2024 | TRUSTEED | Trustee's Deed | HAKANSON TTEE, JANINE | HAKANSON, JANINE | | | $0.00 | 62091 | 4580459 |
| 3 | 04/21/2010 | TRUSTEED | Trustee's Deed | DEUTSCHE BANK NATIONAL TRUST C | CLEMENT TRUSTEE, URSULA V | | | $122,000.00 | 1127 | 4273550 |
| 4 | 06/01/2009 | TRUSTEED | Trustee's Deed | DEUTSCHE BANK TTEE, | DEUTSCHE BANK NATIONAL TRUST C | | | $191,250.00 | 91132 | 4252628 |
| 5 | 02/10/2009 | TRUSTEED | Trustee's Deed | JOHNSON, WALTER W | DEUTSCHE BANK TTEE, | | | $191,250.00 | 90321 | 4244776 |
| 6 | 10/06/2005 | WD | Warranty Deed | MAROTTI JR, ROBERT R | JOHNSON, WALTER W | | | $165,000.00 | 55204 | 4150783 |
| 7 | 07/12/2002 | ESTSEPPROP | Establish Separate Property | FUENTES, MICHAEL R | FUENTES, MICHAEL R | | | $40,000.00 | 22702 | 4025422 |
| 8 | 07/11/2002 | WD | Warranty Deed | FUENTES, MICHAEL R | MAROTTI JR, ROBERT R | | | $40,000.00 | 22703 | 4025423 |
| 9 | 09/01/1989 | REC | Real Estate Contract | STIGER, JAMES V | FUENTES, MICHAEL R | | | $26,000.00 | 93702 | 89012350 |
| 10 | 06/01/1978 | OTHER | Other - Misc. Documents | Unknown | STIGER, JAMES V | | | $20,000.00 | 82813 | 334627 |
Payout Agreement
| No payout information available.. |