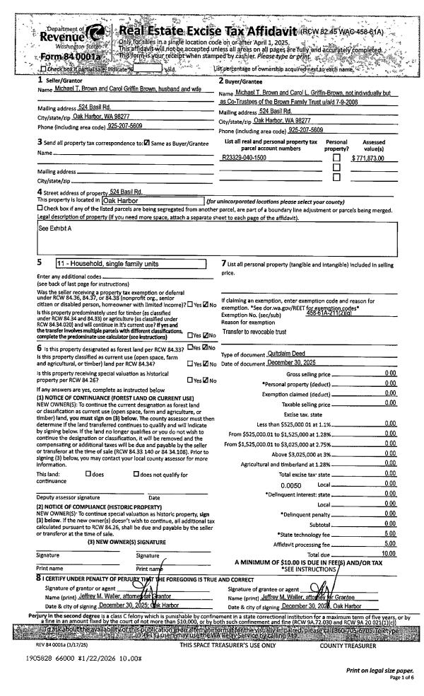
Property
Account |
| Property ID: | 106003 | Abbreviated Legal Description: | 16 WALLACE DC - BG NECR J MOUNT DLC E235' N810' E552. .12' N747.1' W913.37' E860' TPB N373.2' E590' S373.2' W590' TPB TGW EZ EX W/2 |
| Geographic ID: | R23329-040-1500 | Agent Code: | |
| Type: | Real | | |
| Tax Area: | 112 - APPRAISER-OH Schl Dist, outside OH, improved, greater than 1 acre | Land Use Code | 11 |
| Open Space: | N | DFL | N |
| Historic Property: | N | Remodel Property: | N |
| Multi-Family Redevelopment: | N | | |
| Township: | 33 | Section: | 29 |
| Range: | R2 |
Location |
| Address: | 524 BASIL RD OAK HARBOR, WA 98277 | Mapsco: | |
| Neighborhood: | Cycle 6 | Map ID: | 635 |
| Neighborhood CD: | 6 |
Owner |
| Name: | BROWN, MICHAEL T | Owner ID: | 263389 |
| Mailing Address: | CAROL GRIFFIN BROWN 524 BASIL RD OAK HARBOR, WA 98277 | % Ownership: | 100.0000000000% |
| | | Exemptions: | |
Taxes and Assessment Details
Values
| (+) Improvement Homesite Value: | + | $0 | |
| (+) Improvement Non-Homesite Value: | + | $481,873 | |
| (+) Land Homesite Value: | + | $0 | |
| (+) Land Non-Homesite Value: | + | $290,000 | |
| (+) Curr Use (HS): | + | $0 | $0 |
| (+) Curr Use (NHS): | + | $0 | $0 |
| | | -------------------------- | |
| (=) Market Value: | = | $771,873 | |
| (–) Productivity Loss: | – | $0 | |
| | | -------------------------- | |
| (=) Subtotal: | = | $771,873 | |
| (+) Senior Appraised Value: | + | $0 | |
| (+) Non-Senior Appraised Value: | + | $771,873 | |
| | | -------------------------- | |
| (=) Total Appraised Value: | = | $771,873 | |
| (–) Senior Exemption Loss: | – | $0 | |
| (–) Exemption Loss: | – | $0 | |
| | | -------------------------- | |
| (=) Taxable Value: | = | $771,873 | |
Taxing Jurisdiction
| Owner: | BROWN, MICHAEL T | | |
| % Ownership: | 100.0000000000% | | |
| Total Value: | $771,873 | | |
| Tax Area: | 112 - APPRAISER-OH Schl Dist, outside OH, improved, greater than 1 acre |
| CF | Conservation Futures | 0.0313996660 | $771,873 | $771,873 | $24.24 | | |
| CEM1 | Cemetery #1 | 0.0040018856 | $771,873 | $771,873 | $3.09 | | |
| FIRE2 | Fire & Rescue Dist #2 N Whidbey GEN | 0.5381486274 | $771,873 | $771,873 | $415.38 | | |
| HOBOND | Hospital BOND | 0.1893405597 | $771,873 | $771,873 | $146.15 | | |
| HOGEN | Hospital GEN | 0.3848777722 | $771,873 | $771,873 | $297.08 | | |
| CE | County Current Expense | 0.3674210519 | $771,873 | $771,873 | $283.60 | | |
| CR | County Roads | 0.4614296361 | $771,873 | $771,873 | $356.17 | | |
| ISLANDEMS | Hospital GEN (EMS) | 0.4952018576 | $771,873 | $771,873 | $382.23 | | |
| LIB | Library Sno-Isle GEN | 0.3039084203 | $771,873 | $771,873 | $234.58 | | |
| NWHIDPRMT | P & R N Whidbey GEN | 0.1990272349 | $771,873 | $771,873 | $153.62 | | |
| SCH201MO | School 201 Enrichment | 2.3851112745 | $771,873 | $771,873 | $1,841.00 | | |
| ST | State School | 1.4761226122 | $771,873 | $771,873 | $1,139.38 | | |
| ST2 | State School Part 2 | 0.7953803475 | $771,873 | $771,873 | $613.93 | | |
| | Total Tax Rate: | 7.6313709459 | | | | | |
| | | | | Taxes w/Current Exemptions: | $5,890.45 | | |
| | | | | Taxes w/o Exemptions: | $5,890.45 | | |
Improvement / Building
| Improvement #1: | RESIDENTIAL | State Code: | Y | 2617.0 sqft | Value: | $481,873 |
| Bathrooms: | 3 | Bedrooms: | 3 | | Ceiling: | DRY WALL SPRAYED | Cooling: | HEAT PUMP/CONV/V | | Exterior Wall/Cover: | CEMENT FIBER | Floor Covering: | HARDWOOD/CARP 20-80 | | Floor Structure: | WOOD W/SUBFLOOR | Foundation: | CONCRETE | | Interior Finish: | DRYWALL PAINT | Plumbing Fixture Cnt: | 14 | | Roof Slope: | 4" IN 12" | Roof Structure/Cover: | CJ ASPHALT |
|
| | Type | Description | Class CD | Sub Class CD | Year Built | Area |
| | BAS | BASE/MAIN FLOOR | 4 | 0 | 1989 | 2017.0 |
| | OP4 | OPEN PORCH W/CEILING-ROOF | 4 | 0 | 1989 | 32.0 |
| | BIG | BUILT IN GARAGE | 4 | 0 | 1989 | 612.5 |
| | UPS | UPPER STORY | 4 | 0 | 1989 | 600.0 |
| | OWP | OPEN WOOD PORCH W/STEPS | 4 | 0 | 1989 | 208.0 |
| | OWP | OPEN WOOD PORCH W/STEPS | 4 | 0 | 1989 | 144.0 |
| | OWP | OPEN WOOD PORCH W/STEPS | 4 | 0 | 1989 | 572.0 |
| | OWC | OPEN WOOD PORCH W/STEPS/ROOF/C | 4 | 0 | 1989 | 144.0 |
| | UTY | STORAGE/UTILITY | 4 | 0 | 1989 | 0.0 |
| | UTY | STORAGE/UTILITY | 4 | 0 | 1989 | 600.0 |
Sketch
Property Image
Land
| 1 | 18 | AC (02.01-03.00) | 0.0000 | 0.00 | 0.00 | 0.00 | 1.00 | $290,000 | $0 |
Roll Value History
| 2026 | N/A | N/A | N/A | N/A | N/A |
| 2025 | $481,873 | $290,000 | $0 | $771,873 | $771,873 |
| 2024 | $487,850 | $280,000 | $0 | $767,850 | $767,850 |
| 2023 | $493,824 | $280,000 | $0 | $773,824 | $773,824 |
| 2022 | $380,770 | $210,000 | $0 | $590,770 | $590,770 |
| 2021 | $340,151 | $160,000 | $0 | $500,151 | $500,151 |
| 2020 | $333,058 | $140,000 | $0 | $473,058 | $473,058 |
| 2019 | $267,684 | $200,000 | $0 | $467,684 | $467,684 |
| 2018 | $268,437 | $170,000 | $0 | $438,437 | $438,437 |
| 2017 | $269,933 | $150,000 | $0 | $419,933 | $419,933 |
| 2016 | $273,660 | $120,000 | $0 | $393,660 | $393,660 |
| 2015 | $276,902 | $100,000 | $0 | $376,902 | $376,902 |
| 2014 | $280,145 | $106,250 | $0 | $386,395 | $386,395 |
| 2013 | $283,387 | $106,250 | $0 | $389,637 | $389,637 |
| 2012 | $286,629 | $106,250 | $0 | $392,879 | $392,879 |
| 2011 | $289,871 | $125,000 | $0 | $414,871 | $414,871 |
| 2010 | $321,391 | $125,000 | $0 | $446,391 | $446,391 |
| 2009 | $335,000 | $135,000 | $0 | $470,000 | $470,000 |
| 2008 | $337,840 | $151,783 | $0 | $489,623 | $489,623 |
| 2007 | $353,390 | $99,825 | $0 | $453,215 | $453,215 |
Deed and Sales History
| 1 | 12/30/2025 | QCD | Quit Claim Deed | BROWN, MICHAEL T | BROWN FAMILY TRUST | | | $0.00 | 66000 | 4595946 |
| 2 | 08/06/2013 | WD | Warranty Deed | GOEHRING, HARVEY | BROWN, MICHAEL T | | | $352,000.00 | 12385 | 4346311 |
| 3 | 11/16/2004 | WD | Warranty Deed | GARDNER, JAMES D | GOEHRING, HARBEY | | | $399,000.00 | 45387 | 4118288 |
| 4 | 09/01/1988 | WD | Warranty Deed | GARDNER, JAMES D | GARDNER, JAMES D | | | $20,400.00 | 83356 | 88012496 |
| 5 | 09/01/1988 | WD | Warranty Deed | GARDNER, JAMES D | GARDNER, JAMES D | | | $0.00 | 83562 | 88013330 |
| 6 | 09/01/1988 | WD | Warranty Deed | BERNHARDT, THOMAS L | GARDNER, JAMES D | | | $0.00 | 83562 | 88013330 |
| 7 | 02/01/1977 | EXECUTORD | Executor Deed | LAPP, JAMES W | BERNHARDT, THOMAS L | | | $0.00 | 70632 | 0 |
| 8 | 01/01/1900 | OTHER | Other - Misc. Documents | Unknown | LAPP, JAMES W | | | $0.00 | 0 | 0 |
Payout Agreement
| No payout information available.. |