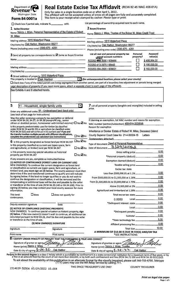
Property
Account |
| Property ID: | 106094 | Abbreviated Legal Description: | 22 WALLACE DC - E168.08' OF W1995' OF WALLACE DC LY N OF CRESCENT HARBOR RD & E OF TAYLOR RD EX S1930' EX RD TGW EZ |
| Geographic ID: | R23329-070-2090 | Agent Code: | |
| Type: | Real | | |
| Tax Area: | 110 - APPRAISER-OH Schl Dist, outside OH, improved & 1 acre or less | Land Use Code | 11 |
| Open Space: | N | DFL | N |
| Historic Property: | N | Remodel Property: | N |
| Multi-Family Redevelopment: | N | | |
| Township: | 33 | Section: | 29 |
| Range: | R2 |
Location |
| Address: | 561 BASIL RD OAK HARBOR, WA 98277 | Mapsco: | |
| Neighborhood: | Cycle 6 | Map ID: | 635 |
| Neighborhood CD: | 6 |
Owner |
| Name: | LAIRSEY TTEE, GARY GEORGE | Owner ID: | 302923 |
| Mailing Address: | BILLIE ANN LAIRSEY TTEE 1604 HOOLULU RD WAHIAWA, HI 96786 | % Ownership: | 100.0000000000% |
| | | Exemptions: | |
Taxes and Assessment Details
Values
| (+) Improvement Homesite Value: | + | $0 | |
| (+) Improvement Non-Homesite Value: | + | $213,905 | |
| (+) Land Homesite Value: | + | $0 | |
| (+) Land Non-Homesite Value: | + | $200,000 | |
| (+) Curr Use (HS): | + | $0 | $0 |
| (+) Curr Use (NHS): | + | $0 | $0 |
| | | -------------------------- | |
| (=) Market Value: | = | $413,905 | |
| (–) Productivity Loss: | – | $0 | |
| | | -------------------------- | |
| (=) Subtotal: | = | $413,905 | |
| (+) Senior Appraised Value: | + | $0 | |
| (+) Non-Senior Appraised Value: | + | $413,905 | |
| | | -------------------------- | |
| (=) Total Appraised Value: | = | $413,905 | |
| (–) Senior Exemption Loss: | – | $0 | |
| (–) Exemption Loss: | – | $0 | |
| | | -------------------------- | |
| (=) Taxable Value: | = | $413,905 | |
Taxing Jurisdiction
| Owner: | LAIRSEY TTEE, GARY GEORGE | | |
| % Ownership: | 100.0000000000% | | |
| Total Value: | $413,905 | | |
| Tax Area: | 110 - APPRAISER-OH Schl Dist, outside OH, improved & 1 acre or less |
| CF | Conservation Futures | 0.0313996660 | $413,905 | $413,905 | $13.00 | | |
| CEM1 | Cemetery #1 | 0.0040018856 | $413,905 | $413,905 | $1.66 | | |
| FIRE2 | Fire & Rescue Dist #2 N Whidbey GEN | 0.5381486274 | $413,905 | $413,905 | $222.74 | | |
| HOBOND | Hospital BOND | 0.1893405597 | $413,905 | $413,905 | $78.37 | | |
| HOGEN | Hospital GEN | 0.3848777722 | $413,905 | $413,905 | $159.30 | | |
| CE | County Current Expense | 0.3674210519 | $413,905 | $413,905 | $152.08 | | |
| CR | County Roads | 0.4614296361 | $413,905 | $413,905 | $190.99 | | |
| ISLANDEMS | Hospital GEN (EMS) | 0.4952018576 | $413,905 | $413,905 | $204.97 | | |
| LIB | Library Sno-Isle GEN | 0.3039084203 | $413,905 | $413,905 | $125.79 | | |
| NWHIDPRMT | P & R N Whidbey GEN | 0.1990272349 | $413,905 | $413,905 | $82.38 | | |
| SCH201MO | School 201 Enrichment | 2.3851112745 | $413,905 | $413,905 | $987.21 | | |
| ST | State School | 1.4761226122 | $413,905 | $413,905 | $610.97 | | |
| ST2 | State School Part 2 | 0.7953803475 | $413,905 | $413,905 | $329.21 | | |
| | Total Tax Rate: | 7.6313709459 | | | | | |
| | | | | Taxes w/Current Exemptions: | $3,158.67 | | |
| | | | | Taxes w/o Exemptions: | $3,158.67 | | |
Improvement / Building
| Improvement #1: | RESIDENTIAL | State Code: | Y | 1858.0 sqft | Value: | $213,905 |
| Bathrooms: | 3 | Bedrooms: | 3 | | Ceiling: | DRY WALL SPRAYED | Exterior Wall/Cover: | PLY/HARDBOARD T-111 | | Floor Covering: | CARPET/VINYL 80-20 | Floor Structure: | WOOD W/SUBFLOOR | | Foundation: | CONCRETE BLOCKS | Heating: | BASEBOARD ELECTRIC | | Interior Finish: | DRYWALL PAINT | Plumbing Fixture Cnt: | 11 | | Roof Slope: | 4" IN 12" | Roof Structure/Cover: | CJ ASPHALT |
|
| | Type | Description | Class CD | Sub Class CD | Year Built | Area |
| | BAS | BASE/MAIN FLOOR | 3 | 0 | 1974 | 1186.0 |
| | OP2 | OPEN PORCH W/STEPS | 3 | 0 | 1974 | 54.0 |
| | BIG | BUILT IN GARAGE | 3 | 0 | 1974 | 480.0 |
| | OWP | OPEN WOOD PORCH W/STEPS | 3 | 0 | 1974 | 234.0 |
| | DWN | DOWNSTAIRS LIVING AREA | 3 | 0 | 1974 | 672.0 |
Sketch
Property Image
Land
| 1 | 16 | AC (00.51-01.00) | 0.0000 | 0.00 | 0.00 | 0.00 | 1.00 | $200,000 | $0 |
Roll Value History
| 2026 | N/A | N/A | N/A | N/A | N/A |
| 2025 | $213,905 | $200,000 | $0 | $413,905 | $413,905 |
| 2024 | $221,914 | $190,000 | $0 | $411,914 | $411,914 |
| 2023 | $225,263 | $190,000 | $0 | $415,263 | $415,263 |
| 2022 | $191,551 | $160,000 | $0 | $351,551 | $351,551 |
| 2021 | $169,081 | $130,000 | $0 | $299,081 | $299,081 |
| 2020 | $165,180 | $130,000 | $0 | $295,180 | $295,180 |
| 2019 | $122,020 | $185,000 | $0 | $307,020 | $307,020 |
| 2018 | $122,459 | $165,000 | $0 | $287,459 | $287,459 |
| 2017 | $123,342 | $150,000 | $0 | $273,342 | $273,342 |
| 2016 | $117,972 | $90,000 | $0 | $207,972 | $207,972 |
| 2015 | $119,787 | $85,000 | $0 | $204,787 | $204,787 |
| 2014 | $121,602 | $100,000 | $0 | $221,602 | $221,602 |
| 2013 | $123,417 | $90,000 | $0 | $213,417 | $213,417 |
| 2012 | $125,232 | $80,750 | $0 | $205,982 | $205,982 |
| 2011 | $127,048 | $95,000 | $0 | $222,048 | $222,048 |
| 2010 | $134,651 | $95,000 | $0 | $229,651 | $229,651 |
| 2009 | $140,435 | $105,000 | $0 | $245,435 | $245,435 |
| 2008 | $147,771 | $103,600 | $0 | $251,371 | $251,371 |
| 2007 | $149,604 | $103,600 | $0 | $253,204 | $253,204 |
Deed and Sales History
| 1 | 12/02/2021 | WD | Warranty Deed | LAIRSEY, GARY G | LAIRSEY TTEE, GARY GEORGE | | | $0.00 | 51896 | 4539356 |
| 2 | 04/01/1988 | WD | Warranty Deed | LOFSTROM, GALE S | LAIRSEY, GARY G | | | $75,000.00 | 81346 | 88005060 |
| 3 | 04/01/1983 | QCD | Quit Claim Deed | LOFSTROM, GALE S | LOFSTROM, GALE S | | | $0.00 | 30944 | 408278 |
| 4 | 11/01/1982 | WD | Warranty Deed | BROWN, GLENN T | LOFSTROM, GALE S | | | $70,000.00 | 22785 | 402792 |
| 5 | 01/01/1900 | OTHER | Other - Misc. Documents | Unknown | BROWN, GLENN T | | | $0.00 | 0 | 0 |
Payout Agreement
| No payout information available.. |