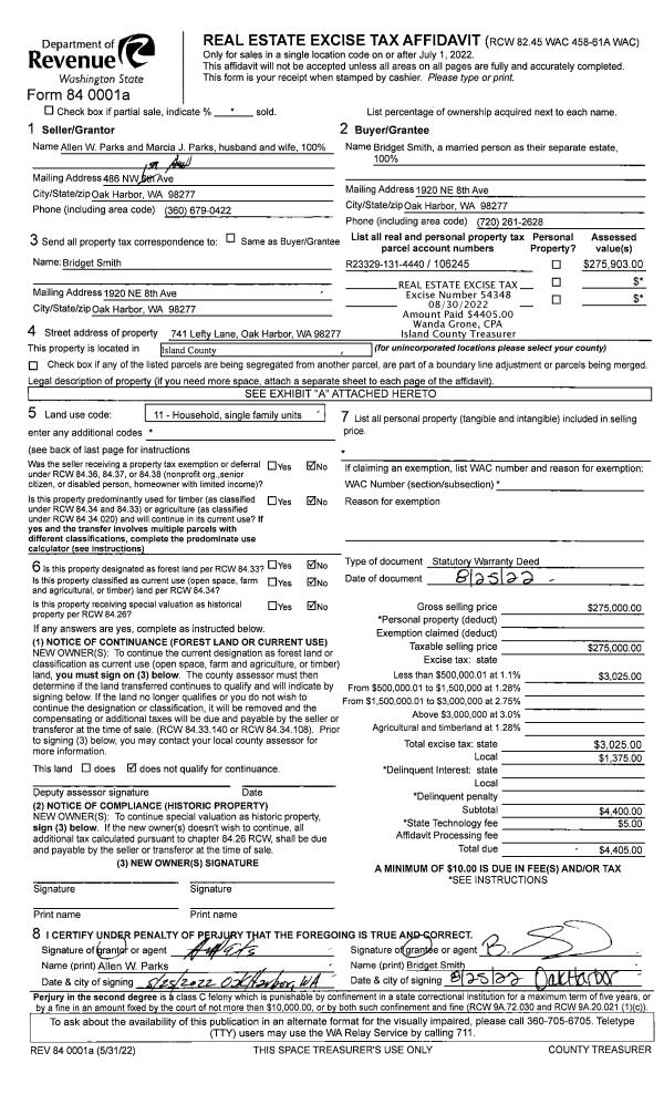
Property
Account |
| Property ID: | 106245 | Abbreviated Legal Description: | 26 - IN E/2 SE: BG SECR SEC 29 N89*W1306.12' N1263.90' N68*E398.74' TPB N68*E326 .09' S363.84' S79*W308' N301.79' TPB |
| Geographic ID: | R23329-131-4440 | Agent Code: | |
| Type: | Real | | |
| Tax Area: | 112 - APPRAISER-OH Schl Dist, outside OH, improved, greater than 1 acre | Land Use Code | 11 |
| Open Space: | N | DFL | N |
| Historic Property: | N | Remodel Property: | N |
| Multi-Family Redevelopment: | N | | |
| Township: | 33 | Section: | 29 |
| Range: | R2 |
Location |
| Address: | 741 LEFTY LN OAK HARBOR, WA 98277 | Mapsco: | |
| Neighborhood: | Cycle 6 | Map ID: | 636 |
| Neighborhood CD: | 6 |
Owner |
| Name: | SMITH, BRIDGET | Owner ID: | 305917 |
| Mailing Address: | 741 LEFTY LN OAK HARBOR, WA 98277 | % Ownership: | 100.0000000000% |
| | | Exemptions: | |
Taxes and Assessment Details
Values
| (+) Improvement Homesite Value: | + | $0 | |
| (+) Improvement Non-Homesite Value: | + | $76,763 | |
| (+) Land Homesite Value: | + | $0 | |
| (+) Land Non-Homesite Value: | + | $250,000 | |
| (+) Curr Use (HS): | + | $0 | $0 |
| (+) Curr Use (NHS): | + | $0 | $0 |
| | | -------------------------- | |
| (=) Market Value: | = | $326,763 | |
| (–) Productivity Loss: | – | $0 | |
| | | -------------------------- | |
| (=) Subtotal: | = | $326,763 | |
| (+) Senior Appraised Value: | + | $0 | |
| (+) Non-Senior Appraised Value: | + | $326,763 | |
| | | -------------------------- | |
| (=) Total Appraised Value: | = | $326,763 | |
| (–) Senior Exemption Loss: | – | $0 | |
| (–) Exemption Loss: | – | $0 | |
| | | -------------------------- | |
| (=) Taxable Value: | = | $326,763 | |
Taxing Jurisdiction
| Owner: | SMITH, BRIDGET | | |
| % Ownership: | 100.0000000000% | | |
| Total Value: | $326,763 | | |
| Tax Area: | 112 - APPRAISER-OH Schl Dist, outside OH, improved, greater than 1 acre |
| CF | Conservation Futures | 0.0313996660 | $326,763 | $326,763 | $10.26 | | |
| CEM1 | Cemetery #1 | 0.0040018856 | $326,763 | $326,763 | $1.31 | | |
| FIRE2 | Fire & Rescue Dist #2 N Whidbey GEN | 0.5381486274 | $326,763 | $326,763 | $175.85 | | |
| HOBOND | Hospital BOND | 0.1893405597 | $326,763 | $326,763 | $61.87 | | |
| HOGEN | Hospital GEN | 0.3848777722 | $326,763 | $326,763 | $125.76 | | |
| CE | County Current Expense | 0.3674210519 | $326,763 | $326,763 | $120.06 | | |
| CR | County Roads | 0.4614296361 | $326,763 | $326,763 | $150.78 | | |
| ISLANDEMS | Hospital GEN (EMS) | 0.4952018576 | $326,763 | $326,763 | $161.81 | | |
| LIB | Library Sno-Isle GEN | 0.3039084203 | $326,763 | $326,763 | $99.31 | | |
| NWHIDPRMT | P & R N Whidbey GEN | 0.1990272349 | $326,763 | $326,763 | $65.03 | | |
| SCH201MO | School 201 Enrichment | 2.3851112745 | $326,763 | $326,763 | $779.37 | | |
| ST | State School | 1.4761226122 | $326,763 | $326,763 | $482.34 | | |
| ST2 | State School Part 2 | 0.7953803475 | $326,763 | $326,763 | $259.90 | | |
| | Total Tax Rate: | 7.6313709459 | | | | | |
| | | | | Taxes w/Current Exemptions: | $2,493.65 | | |
| | | | | Taxes w/o Exemptions: | $2,493.65 | | |
Improvement / Building
| Improvement #1: | MANUFACTURED HOME | State Code: | Y | 1440.0 sqft | Value: | $76,763 |
| Bathrooms: | 0 | Bedrooms: | 0 | | Ceiling: | PLASTER PAINTED | Cooling: | EVAP NO DUCT | | Exterior Wall/Cover: | VINYL | Floor Covering: | CARPET 100% | | Floor Structure: | SLAB ON GRADE | Foundation: | SLAB | | Heating: | FHA ELECTRIC | Interior Finish: | PLASTER | | Plumbing Fixture Cnt: | 1 | Roof Slope: | FLAT | | Roof Structure/Cover: | CJ ALUMINIUM HEAVY |   |   |
|
| | Type | Description | Class CD | Sub Class CD | Year Built | Area |
| | BAS | BASE/MAIN FLOOR | 3 | 0 | 1974 | 1440.0 |
| | DGR | DETACHED GARAGE | 3 | 0 | 1974 | 816.0 |
| | OWP | OPEN WOOD PORCH W/STEPS | 3 | 0 | 1974 | 528.0 |
| | OWR | OPEN WOOD PORCH W/STEPS/ROOF | 3 | 0 | 1974 | 272.0 |
| | OWR | OPEN WOOD PORCH W/STEPS/ROOF | 3 | 0 | 1974 | 216.0 |
Sketch
Property Image
Land
| 1 | 18 | AC (02.01-03.00) | 2.4300 | 105850.80 | 0.00 | 0.00 | 1.00 | $250,000 | $0 |
Roll Value History
| 2026 | N/A | N/A | N/A | N/A | N/A |
| 2025 | $76,763 | $250,000 | $0 | $326,763 | $326,763 |
| 2024 | $79,705 | $230,000 | $0 | $309,705 | $309,705 |
| 2023 | $82,649 | $220,000 | $0 | $302,649 | $302,649 |
| 2022 | $65,903 | $210,000 | $0 | $275,903 | $275,903 |
| 2021 | $61,273 | $160,000 | $0 | $221,273 | $221,273 |
| 2020 | $61,876 | $140,000 | $0 | $201,876 | $201,876 |
| 2019 | $54,222 | $200,000 | $0 | $254,222 | $254,222 |
| 2018 | $55,762 | $170,000 | $0 | $225,762 | $225,762 |
| 2017 | $57,301 | $150,000 | $0 | $207,301 | $207,301 |
| 2016 | $35,740 | $120,000 | $0 | $155,740 | $155,740 |
| 2015 | $37,150 | $100,000 | $0 | $137,150 | $137,150 |
| 2014 | $37,855 | $85,500 | $0 | $123,355 | $123,355 |
| 2013 | $39,265 | $85,500 | $0 | $124,765 | $124,765 |
| 2012 | $39,970 | $85,500 | $0 | $125,470 | $125,470 |
| 2011 | $41,380 | $95,000 | $0 | $136,380 | $136,380 |
| 2010 | $58,932 | $95,000 | $0 | $153,932 | $153,932 |
| 2009 | $76,668 | $105,000 | $0 | $181,668 | $181,668 |
| 2008 | $77,493 | $99,825 | $0 | $177,318 | $177,318 |
| 2007 | $79,058 | $99,825 | $0 | $178,883 | $178,883 |
Deed and Sales History
| 1 | 08/29/2022 | QCD | Quit Claim Deed | SMITH, JOSEPH NATHAN | SMITH, BRIDGET | | | $0.00 | 54349 | 4550442 |
| 2 | 08/25/2022 | WD | Warranty Deed | PARKS, ALLEN W | SMITH, BRIDGET | | | $275,000.00 | 54348 | 4550441 |
| 3 | 08/23/1999 | OTHER | Other - Misc. Documents | PARKS, ALLEN W | PARKS, ALLEN W | | | $28,793.00 | 93471 | 0 |
| 4 | 08/23/1999 | WD | Warranty Deed | VANBUSKIRK, RONALD L | PARKS, ALLEN W | | | $126,207.00 | 93472 | 99019912 |
| 5 | 01/01/1992 | OTHER | Other - Misc. Documents | VAN, BUSKIRK, R | VANBUSKIRK, RONALD L | | | $0.00 | 20078 | 0 |
| 6 | 01/01/1992 | WD | Warranty Deed | VAN, BUSKIRK, R | VAN, BUSKIRK, R | | | $90,500.00 | 20077 | 92000304 |
| 7 | 01/01/1992 | QCD | Quit Claim Deed | FILLION, RONALD F | VAN, BUSKIRK, R | | | $0.00 | 20119 | 92000476 |
| 8 | 01/01/1900 | OTHER | Other - Misc. Documents | Unknown | FILLION, RONALD F | | | $0.00 | 0 | 0 |
Payout Agreement
| No payout information available.. |