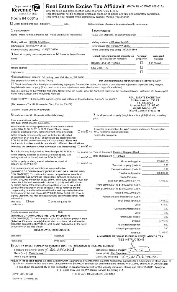
Property
Account |
| Property ID: | 106405 | Abbreviated Legal Description: | 47 - E330' OF W990' OF N/2 S/2 NE SW TGW & SUB TO EZ |
| Geographic ID: | R23329-186-2140 | Agent Code: | |
| Type: | Real | | |
| Tax Area: | 119 - APPRAISER-OH Schl Dist, outside OH, vacant & 50 acres or less | Land Use Code | 91 |
| Open Space: | N | DFL | N |
| Historic Property: | N | Remodel Property: | N |
| Multi-Family Redevelopment: | N | | |
| Township: | 33 | Section: | 29 |
| Range: | R2 |
Location |
| Address: | 560 JEFFREY LN OAK HARBOR, WA 98277 | Mapsco: | |
| Neighborhood: | Cycle 6 | Map ID: | 635 |
| Neighborhood CD: | 6 |
Owner |
| Name: | STEPHENS, CARL | Owner ID: | 305354 |
| Mailing Address: | 4598 WOODLAND CIRCLE OAK HARBOR, WA 98277 | % Ownership: | 100.0000000000% |
| | | Exemptions: | |
Taxes and Assessment Details
Values
| (+) Improvement Homesite Value: | + | $0 | |
| (+) Improvement Non-Homesite Value: | + | $0 | |
| (+) Land Homesite Value: | + | $0 | |
| (+) Land Non-Homesite Value: | + | $120,000 | |
| (+) Curr Use (HS): | + | $0 | $0 |
| (+) Curr Use (NHS): | + | $0 | $0 |
| | | -------------------------- | |
| (=) Market Value: | = | $120,000 | |
| (–) Productivity Loss: | – | $0 | |
| | | -------------------------- | |
| (=) Subtotal: | = | $120,000 | |
| (+) Senior Appraised Value: | + | $0 | |
| (+) Non-Senior Appraised Value: | + | $120,000 | |
| | | -------------------------- | |
| (=) Total Appraised Value: | = | $120,000 | |
| (–) Senior Exemption Loss: | – | $0 | |
| (–) Exemption Loss: | – | $0 | |
| | | -------------------------- | |
| (=) Taxable Value: | = | $120,000 | |
Taxing Jurisdiction
| Owner: | STEPHENS, CARL | | |
| % Ownership: | 100.0000000000% | | |
| Total Value: | $120,000 | | |
| Tax Area: | 119 - APPRAISER-OH Schl Dist, outside OH, vacant & 50 acres or less |
| CF | Conservation Futures | 0.0313996660 | $120,000 | $120,000 | $3.77 | | |
| CEM1 | Cemetery #1 | 0.0040018856 | $120,000 | $120,000 | $0.48 | | |
| HOBOND | Hospital BOND | 0.1893405597 | $120,000 | $120,000 | $22.72 | | |
| HOGEN | Hospital GEN | 0.3848777722 | $120,000 | $120,000 | $46.19 | | |
| CE | County Current Expense | 0.3674210519 | $120,000 | $120,000 | $44.09 | | |
| CR | County Roads | 0.4614296361 | $120,000 | $120,000 | $55.37 | | |
| ISLANDEMS | Hospital GEN (EMS) | 0.4952018576 | $120,000 | $120,000 | $59.42 | | |
| LIB | Library Sno-Isle GEN | 0.3039084203 | $120,000 | $120,000 | $36.47 | | |
| NWHIDPRMT | P & R N Whidbey GEN | 0.1990272349 | $120,000 | $120,000 | $23.88 | | |
| SCH201MO | School 201 Enrichment | 2.3851112745 | $120,000 | $120,000 | $286.21 | | |
| ST | State School | 1.4761226122 | $120,000 | $120,000 | $177.13 | | |
| ST2 | State School Part 2 | 0.7953803475 | $120,000 | $120,000 | $95.45 | | |
| | Total Tax Rate: | 7.0932223185 | | | | | |
| | | | | Taxes w/Current Exemptions: | $851.18 | | |
| | | | | Taxes w/o Exemptions: | $851.18 | | |
Improvement / Building
| Improvement #1: | MANUFACTURED HOME | State Code: | Y | 1280.2 sqft | Value: | $0 |
| Bathrooms: | 1 | Bedrooms: | 2 | | Ceiling: | PLASTER PAINTED | Cooling: | EVAP NO DUCT | | Exterior Wall/Cover: | VINYL | Floor Covering: | CARPET 100% | | Floor Structure: | SLAB ON GRADE | Foundation: | SLAB | | Heating: | FHA ELECTRIC | Interior Finish: | PLASTER | | Plumbing Fixture Cnt: | 1 | Roof Slope: | FLAT | | Roof Structure/Cover: | CJ ALUMINIUM HEAVY |   |   |
|
| | Type | Description | Class CD | Sub Class CD | Year Built | Area |
| | BAS | BASE/MAIN FLOOR | 4 | 0 | 2023 | 1280.2 |
| | OWP | OPEN WOOD PORCH W/STEPS | 4 | 0 | 2023 | 0.0 |
Sketch
| No sketches available for this property. |
Property Image
Land
| 1 | 18 | AC (02.01-03.00) | 2.5000 | 108900.00 | 0.00 | 0.00 | 1.00 | $120,000 | $0 |
Roll Value History
| 2026 | N/A | N/A | N/A | N/A | N/A |
| 2025 | $0 | $120,000 | $0 | $120,000 | $120,000 |
| 2024 | $0 | $110,000 | $0 | $110,000 | $110,000 |
| 2023 | $0 | $110,000 | $0 | $110,000 | $110,000 |
| 2022 | $0 | $80,000 | $0 | $80,000 | $80,000 |
| 2021 | $0 | $80,000 | $0 | $80,000 | $80,000 |
| 2020 | $0 | $70,000 | $0 | $70,000 | $70,000 |
| 2019 | $0 | $110,000 | $0 | $110,000 | $110,000 |
| 2018 | $0 | $110,000 | $0 | $110,000 | $110,000 |
| 2017 | $0 | $80,000 | $0 | $80,000 | $80,000 |
| 2016 | $0 | $80,000 | $0 | $80,000 | $80,000 |
| 2015 | $0 | $60,000 | $0 | $60,000 | $60,000 |
| 2014 | $0 | $39,130 | $0 | $39,130 | $39,130 |
| 2013 | $0 | $39,130 | $0 | $39,130 | $39,130 |
| 2012 | $0 | $39,130 | $0 | $39,130 | $39,130 |
| 2011 | $0 | $39,130 | $0 | $39,130 | $39,130 |
| 2010 | $0 | $39,130 | $0 | $39,130 | $39,130 |
| 2009 | $0 | $45,500 | $0 | $45,500 | $45,500 |
| 2008 | $0 | $45,500 | $0 | $45,500 | $45,500 |
| 2007 | $0 | $72,500 | $0 | $72,500 | $72,500 |
Deed and Sales History
| 1 | 11/15/2022 | WD | Warranty Deed | RAMOS, MARIO | STEPHENS, CARL | | | $135,000.00 | 55173 | 4553922 |
| 2 | 06/04/1998 | WD | Warranty Deed | RAMOS, RODOLFO R | RAMOS, MARIO | | | $38,000.00 | 82200 | 98011437 |
| 3 | 01/01/1900 | OTHER | Other - Misc. Documents | Unknown | RAMOS, MARIO A | | | $0.00 | 82200 | 98011437 |
| 4 | 01/01/1900 | OTHER | Other - Misc. Documents | RAMOS, MARIO A | RAMOS, RODOLFO R | | | $0.00 | 0 | 0 |
Payout Agreement
| No payout information available.. |