Property
Account |
| Property ID: | 106600 | Abbreviated Legal Description: | W/2 SW SE NW TGW & SUB TO EZ |
| Geographic ID: | R23329-304-1510 | Agent Code: | |
| Type: | Real | | |
| Tax Area: | 119 - APPRAISER-OH Schl Dist, outside OH, vacant & 50 acres or less | Land Use Code | 91 |
| Open Space: | N | DFL | N |
| Historic Property: | N | Remodel Property: | N |
| Multi-Family Redevelopment: | N | | |
| Township: | 33 | Section: | 29 |
| Range: | R2 |
Location |
| Address: | 3029 RACCOON WAY OAK HARBOR, WA 98277 | Mapsco: | |
| Neighborhood: | Cycle 6 | Map ID: | 637 |
| Neighborhood CD: | 6 |
Owner |
| Name: | ACUNA, CESAR MARTINEZ | Owner ID: | 312149 |
| Mailing Address: | MARIA CLAUDIA MARTINEZ PARTIDA 3241 LANGE ST OAK HARBOR, WA 98277 | % Ownership: | 100.0000000000% |
| | | Exemptions: | |
Taxes and Assessment Details
Values
| (+) Improvement Homesite Value: | + | $0 | |
| (+) Improvement Non-Homesite Value: | + | $0 | |
| (+) Land Homesite Value: | + | $0 | |
| (+) Land Non-Homesite Value: | + | $170,000 | |
| (+) Curr Use (HS): | + | $0 | $0 |
| (+) Curr Use (NHS): | + | $0 | $0 |
| | | -------------------------- | |
| (=) Market Value: | = | $170,000 | |
| (–) Productivity Loss: | – | $0 | |
| | | -------------------------- | |
| (=) Subtotal: | = | $170,000 | |
| (+) Senior Appraised Value: | + | $0 | |
| (+) Non-Senior Appraised Value: | + | $170,000 | |
| | | -------------------------- | |
| (=) Total Appraised Value: | = | $170,000 | |
| (–) Senior Exemption Loss: | – | $0 | |
| (–) Exemption Loss: | – | $0 | |
| | | -------------------------- | |
| (=) Taxable Value: | = | $170,000 | |
Taxing Jurisdiction
| Owner: | ACUNA, CESAR MARTINEZ | | |
| % Ownership: | 100.0000000000% | | |
| Total Value: | $170,000 | | |
| Tax Area: | 119 - APPRAISER-OH Schl Dist, outside OH, vacant & 50 acres or less |
| CF | Conservation Futures | 0.0313996660 | $170,000 | $170,000 | $5.34 | | |
| CEM1 | Cemetery #1 | 0.0040018856 | $170,000 | $170,000 | $0.68 | | |
| HOBOND | Hospital BOND | 0.1893405597 | $170,000 | $170,000 | $32.19 | | |
| HOGEN | Hospital GEN | 0.3848777722 | $170,000 | $170,000 | $65.43 | | |
| CE | County Current Expense | 0.3674210519 | $170,000 | $170,000 | $62.46 | | |
| CR | County Roads | 0.4614296361 | $170,000 | $170,000 | $78.44 | | |
| ISLANDEMS | Hospital GEN (EMS) | 0.4952018576 | $170,000 | $170,000 | $84.18 | | |
| LIB | Library Sno-Isle GEN | 0.3039084203 | $170,000 | $170,000 | $51.66 | | |
| NWHIDPRMT | P & R N Whidbey GEN | 0.1990272349 | $170,000 | $170,000 | $33.83 | | |
| SCH201MO | School 201 Enrichment | 2.3851112745 | $170,000 | $170,000 | $405.47 | | |
| ST | State School | 1.4761226122 | $170,000 | $170,000 | $250.94 | | |
| ST2 | State School Part 2 | 0.7953803475 | $170,000 | $170,000 | $135.21 | | |
| | Total Tax Rate: | 7.0932223185 | | | | | |
| | | | | Taxes w/Current Exemptions: | $1,205.83 | | |
| | | | | Taxes w/o Exemptions: | $1,205.83 | | |
Improvement / Building
Sketch
| No sketches available for this property. |
Property Image
Land
| 1 | 32 | AC (03.01-09.99) | 5.0000 | 0.00 | 0.00 | 0.00 | 1.00 | $170,000 | $0 |
Roll Value History
| 2026 | N/A | N/A | N/A | N/A | N/A |
| 2025 | $0 | $170,000 | $0 | $170,000 | $170,000 |
| 2024 | $0 | $150,000 | $0 | $150,000 | $150,000 |
| 2023 | $0 | $140,000 | $0 | $140,000 | $140,000 |
| 2022 | $0 | $100,000 | $0 | $100,000 | $100,000 |
| 2021 | $0 | $100,000 | $0 | $100,000 | $100,000 |
| 2020 | $0 | $90,000 | $0 | $90,000 | $90,000 |
| 2019 | $0 | $110,000 | $0 | $110,000 | $110,000 |
| 2018 | $0 | $110,000 | $0 | $110,000 | $110,000 |
| 2017 | $0 | $110,000 | $0 | $110,000 | $110,000 |
| 2016 | $0 | $80,000 | $0 | $80,000 | $80,000 |
| 2015 | $0 | $60,000 | $0 | $60,000 | $60,000 |
| 2014 | $0 | $65,000 | $0 | $65,000 | $65,000 |
| 2013 | $0 | $65,000 | $0 | $65,000 | $65,000 |
| 2012 | $0 | $100,000 | $0 | $100,000 | $100,000 |
| 2011 | $0 | $100,000 | $0 | $100,000 | $100,000 |
| 2010 | $0 | $100,000 | $0 | $100,000 | $100,000 |
| 2009 | $0 | $105,000 | $0 | $105,000 | $105,000 |
| 2008 | $0 | $105,000 | $0 | $105,000 | $105,000 |
| 2007 | $0 | $116,375 | $0 | $116,375 | $116,375 |
Deed and Sales History
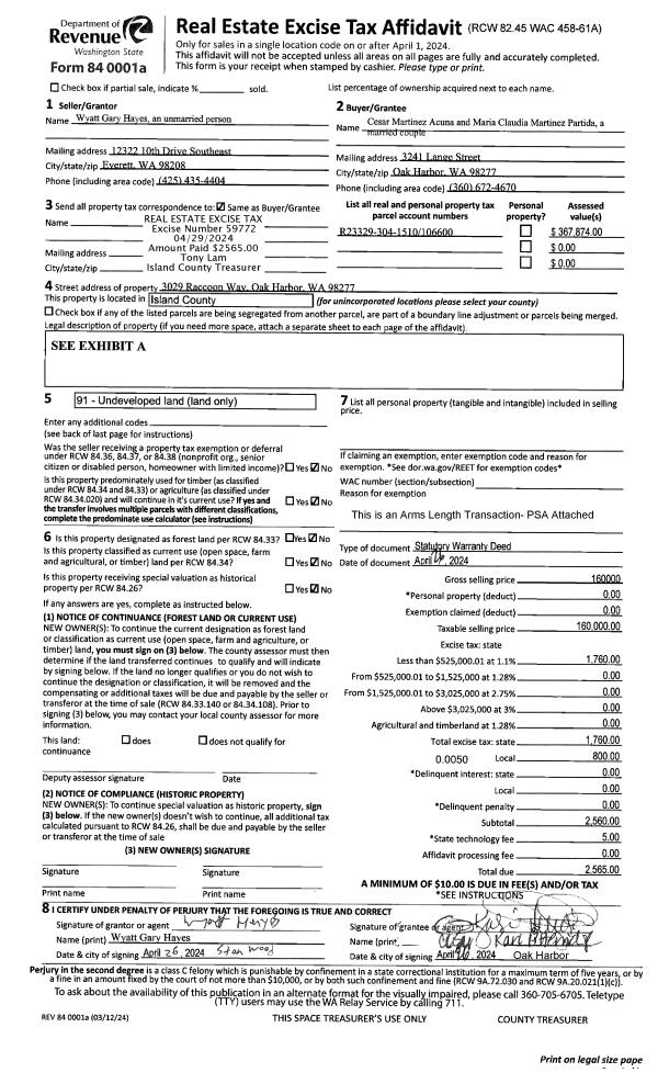
| 1 | 04/26/2024 | WD | Warranty Deed | HAYES, WYATT GARY | ACUNA, CESAR MARTINEZ | | | $160,000.00 | 59772 | 4571726 |
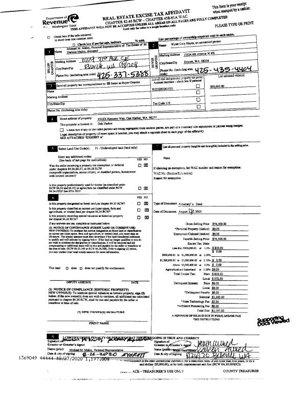
| 2 | 08/26/2020 | OTHER | Other - Misc. Documents | MALOY, M DARLENE | HAYES, WYATT GARY | | | $74,500.00 | 44444 | 4495002 |
| 3 | 01/01/1979 | OTHER | Other - Misc. Documents | Unknown | MALOY, M D | | | $0.00 | 90316 | 346300 |
Payout Agreement
| No payout information available.. |