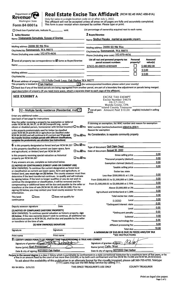
Property
Account |
| Property ID: | 106986 | Abbreviated Legal Description: | 5 M MOUNTS DC - BG NE CR L17 CRESCENT AC #1 S12*E608 .42' N77*E422.96' TO CTR TAYLOR RD N15*W403' N81* E192' N7*W174' S82*W227' M/ L TPB EX RD EX PT TO IS CO FOR R/W AF#91008021 |
| Geographic ID: | R23330-049-5120 | Agent Code: | |
| Type: | Real | | |
| Tax Area: | 112 - APPRAISER-OH Schl Dist, outside OH, improved, greater than 1 acre | Land Use Code | 11 |
| Open Space: | N | DFL | N |
| Historic Property: | N | Remodel Property: | N |
| Multi-Family Redevelopment: | N | | |
| Township: | 33 | Section: | 30 |
| Range: | R2 |
Location |
| Address: | 2839 TAYLOR RD OAK HARBOR, WA 98277 | Mapsco: | |
| Neighborhood: | Cycle 6 | Map ID: | 640 |
| Neighborhood CD: | 6 |
Owner |
| Name: | BARNEY, JOSEPH | Owner ID: | 280167 |
| Mailing Address: | ALISA WOODWARD 2839 TAYLOR RD OAK HARBOR, WA 98277 | % Ownership: | 100.0000000000% |
| | | Exemptions: | |
Taxes and Assessment Details
Values
| (+) Improvement Homesite Value: | + | $0 | |
| (+) Improvement Non-Homesite Value: | + | $247,328 | |
| (+) Land Homesite Value: | + | $0 | |
| (+) Land Non-Homesite Value: | + | $300,000 | |
| (+) Curr Use (HS): | + | $0 | $0 |
| (+) Curr Use (NHS): | + | $0 | $0 |
| | | -------------------------- | |
| (=) Market Value: | = | $547,328 | |
| (–) Productivity Loss: | – | $0 | |
| | | -------------------------- | |
| (=) Subtotal: | = | $547,328 | |
| (+) Senior Appraised Value: | + | $0 | |
| (+) Non-Senior Appraised Value: | + | $547,328 | |
| | | -------------------------- | |
| (=) Total Appraised Value: | = | $547,328 | |
| (–) Senior Exemption Loss: | – | $0 | |
| (–) Exemption Loss: | – | $0 | |
| | | -------------------------- | |
| (=) Taxable Value: | = | $547,328 | |
Taxing Jurisdiction
| Owner: | BARNEY, JOSEPH | | |
| % Ownership: | 100.0000000000% | | |
| Total Value: | $547,328 | | |
| Tax Area: | 112 - APPRAISER-OH Schl Dist, outside OH, improved, greater than 1 acre |
| CF | Conservation Futures | 0.0313996660 | $547,328 | $547,328 | $17.19 | | |
| CEM1 | Cemetery #1 | 0.0040018856 | $547,328 | $547,328 | $2.19 | | |
| FIRE2 | Fire & Rescue Dist #2 N Whidbey GEN | 0.5381486274 | $547,328 | $547,328 | $294.54 | | |
| HOBOND | Hospital BOND | 0.1893405597 | $547,328 | $547,328 | $103.63 | | |
| HOGEN | Hospital GEN | 0.3848777722 | $547,328 | $547,328 | $210.65 | | |
| CE | County Current Expense | 0.3674210519 | $547,328 | $547,328 | $201.10 | | |
| CR | County Roads | 0.4614296361 | $547,328 | $547,328 | $252.55 | | |
| ISLANDEMS | Hospital GEN (EMS) | 0.4952018576 | $547,328 | $547,328 | $271.04 | | |
| LIB | Library Sno-Isle GEN | 0.3039084203 | $547,328 | $547,328 | $166.34 | | |
| NWHIDPRMT | P & R N Whidbey GEN | 0.1990272349 | $547,328 | $547,328 | $108.93 | | |
| SCH201MO | School 201 Enrichment | 2.3851112745 | $547,328 | $547,328 | $1,305.44 | | |
| ST | State School | 1.4761226122 | $547,328 | $547,328 | $807.92 | | |
| ST2 | State School Part 2 | 0.7953803475 | $547,328 | $547,328 | $435.33 | | |
| | Total Tax Rate: | 7.6313709459 | | | | | |
| | | | | Taxes w/Current Exemptions: | $4,176.85 | | |
| | | | | Taxes w/o Exemptions: | $4,176.85 | | |
Improvement / Building
| Improvement #1: | RESIDENTIAL | State Code: | Y | 1579.6 sqft | Value: | $247,328 |
| Bathrooms: | 1 | Bedrooms: | 4 | | Ceiling: | DRYWALL PAINTED | Exterior Wall/Cover: | WOOD SIDING | | Floor Covering: | CARPET/VINYL 60-40 | Floor Structure: | WOOD W/SUBFLOOR | | Foundation: | WOOD BLOCKS | Heating: | FHA OIL | | Interior Finish: | DRYWALL PAINT | Plumbing Fixture Cnt: | 6 | | Roof Slope: | 4" IN 12" | Roof Structure/Cover: | CJ ASPHALT |
|
| | Type | Description | Class CD | Sub Class CD | Year Built | Area |
| | BAS | BASE/MAIN FLOOR | 3 | 0 | 1914 | 1579.6 |
| | OP1 | OPEN PORCH SLAB | 3 | 0 | 1914 | 412.3 |
| | OP4 | OPEN PORCH W/CEILING-ROOF | 3 | 0 | 1914 | 202.0 |
| | OWP | OPEN WOOD PORCH W/STEPS | 3 | 0 | 1914 | 404.3 |
| | UTY | STORAGE/UTILITY | 3 | 0 | 1914 | 1584.0 |
| | UTY | STORAGE/UTILITY | 3 | 0 | 1914 | 0.0 |
| | CPD | OPEN CARPORT DIRT FLOOR | 3 | 0 | 1914 | 432.0 |
| | UTY | STORAGE/UTILITY | 3 | 0 | 1914 | 1200.0 |
Sketch
Property Image
Land
| 1 | 32 | AC (03.01-09.99) | 4.5300 | 0.00 | 0.00 | 0.00 | 1.00 | $300,000 | $0 |
Roll Value History
| 2026 | N/A | N/A | N/A | N/A | N/A |
| 2025 | $247,328 | $300,000 | $0 | $547,328 | $547,328 |
| 2024 | $250,458 | $280,000 | $0 | $530,458 | $530,458 |
| 2023 | $253,588 | $270,000 | $0 | $523,588 | $523,588 |
| 2022 | $219,927 | $240,000 | $0 | $459,927 | $459,927 |
| 2021 | $195,311 | $160,000 | $0 | $355,311 | $355,311 |
| 2020 | $191,306 | $140,000 | $0 | $331,306 | $331,306 |
| 2019 | $145,079 | $200,000 | $0 | $345,079 | $345,079 |
| 2018 | $145,514 | $170,000 | $0 | $315,514 | $315,514 |
| 2017 | $146,346 | $150,000 | $0 | $296,346 | $296,346 |
| 2016 | $128,325 | $140,000 | $0 | $268,325 | $268,325 |
| 2015 | $130,093 | $120,000 | $0 | $250,093 | $250,093 |
| 2014 | $131,857 | $100,000 | $0 | $231,857 | $231,857 |
| 2013 | $133,624 | $89,694 | $0 | $223,318 | $223,318 |
| 2012 | $135,390 | $89,694 | $0 | $225,084 | $225,084 |
| 2011 | $137,156 | $99,660 | $0 | $236,816 | $236,816 |
| 2010 | $145,943 | $99,660 | $0 | $245,603 | $245,603 |
| 2009 | $151,895 | $113,250 | $0 | $265,145 | $265,145 |
| 2008 | $151,895 | $131,370 | $0 | $283,265 | $283,265 |
| 2007 | $153,696 | $118,097 | $0 | $271,793 | $271,793 |
Deed and Sales History
| 1 | 04/13/2017 | SPWARDEED | Special Warranty Deed | FEDERAL NATIONAL MORTGAGE ASSOCIATON | BARNEY, JOSEPH | | | $0.00 | 29526 | 4423436 |
| 2 | 03/22/2016 | TRUSTEED | Trustee's Deed | QUINTEN, TRACY | FEDERAL NATIONAL MORTGAGE ASSOCIATON | | | $0.00 | 23630 | 4396293 |
| 3 | 02/07/2012 | QCD | Quit Claim Deed | BLACKSTONE, DINA L | QUINTEN, TRACY | | | $0.00 | 9061 | 4324406 |
| 4 | 09/13/2004 | WD | Warranty Deed | RICHARDS, DONALD E | BLACKSTONE, DINA L | | | $289,900.00 | 44326 | 4112942 |
| 5 | 03/01/1998 | WD | Warranty Deed | SWAIN, EDWARD J | RICHARDS, DONALD E | | | $135,000.00 | 81139 | 98006230 |
| 6 | 10/01/1977 | TRUSTEED | Trustee's Deed | Unknown | SWAIN, EDWARD J | | | $57,000.00 | 74303 | 0 |
Payout Agreement
| No payout information available.. |