Property
Account |
| Property ID: | 111514 | Abbreviated Legal Description: | 20 - IN GL1: BG ELN CO RD 973.4'E OF NWCR GL1 SE ALG ELN CO RD 210' E265' TO EDGE OF BLUFF NW ALG SD BLUFF TO NLN GL1 265'E OF TPB W TPB |
| Geographic ID: | R23432-122-1160 | Agent Code: | |
| Type: | Real | | |
| Tax Area: | 119 - APPRAISER-OH Schl Dist, outside OH, vacant & 50 acres or less | Land Use Code | 91 |
| Open Space: | N | DFL | N |
| Historic Property: | N | Remodel Property: | N |
| Multi-Family Redevelopment: | N | | |
| Township: | 34 | Section: | 32 |
| Range: | R2 |
Location |
| Address: | | Mapsco: | |
| Neighborhood: | Cycle 6 | Map ID: | 673 |
| Neighborhood CD: | 6 |
Owner |
| Name: | STOBART, JOHN B | Owner ID: | 303786 |
| Mailing Address: | 4884 JONES RD OAK HARBOR, WA 98277 | % Ownership: | 100.0000000000% |
| | | Exemptions: | |
Taxes and Assessment Details
Values
| (+) Improvement Homesite Value: | + | N/A | |
| (+) Improvement Non-Homesite Value: | + | N/A | |
| (+) Land Homesite Value: | + | N/A | |
| (+) Land Non-Homesite Value: | + | N/A | Ag / Timber Use Value |
| (+) Curr Use (HS): | + | N/A | N/A |
| (+) Curr Use (NHS): | + | N/A | N/A |
| | | -------------------------- | |
| (=) Market Value: | = | N/A | |
| (–) Productivity Loss: | – | N/A | |
| | | -------------------------- | |
| (=) Subtotal: | = | N/A | |
| (+) Senior Appraised Value: | + | N/A | |
| (+) Non-Senior Appraised Value: | + | N/A | |
| | | -------------------------- | |
| (=) Total Appraised Value: | = | N/A | |
| (–) Senior Exemption Loss: | – | N/A | |
| (–) Exemption Loss: | – | N/A | |
| | | -------------------------- | |
| (=) Taxable Value: | = | N/A | |
Taxing Jurisdiction
| Owner: | STOBART, JOHN B | | |
| % Ownership: | 100.0000000000% | | |
| Total Value: | N/A | | |
| Tax Area: | 119 - APPRAISER-OH Schl Dist, outside OH, vacant & 50 acres or less |
| CF | Conservation Futures | N/A | N/A | N/A | N/A | | |
| WCD | Whidbey Conservation District | N/A | N/A | N/A | N/A | | |
| CEM1 | Cemetery #1 | N/A | N/A | N/A | N/A | | |
| HOBOND | Hospital BOND | N/A | N/A | N/A | N/A | | |
| HOGEN | Hospital GEN | N/A | N/A | N/A | N/A | | |
| CE | County Current Expense | N/A | N/A | N/A | N/A | | |
| CR | County Roads | N/A | N/A | N/A | N/A | | |
| ISLANDEMS | Hospital GEN (EMS) | N/A | N/A | N/A | N/A | | |
| LIB | Library Sno-Isle GEN | N/A | N/A | N/A | N/A | | |
| NWHIDPRMT | P & R N Whidbey GEN | N/A | N/A | N/A | N/A | | |
| SCH201MO | School 201 Enrichment | N/A | N/A | N/A | N/A | | |
| ST | State School | N/A | N/A | N/A | N/A | | |
| ST2 | State School Part 2 | N/A | N/A | N/A | N/A | | |
| | Total Tax Rate: | N/A | | | | | |
| | | | | Taxes w/Current Exemptions: | N/A | | |
| | | | | Taxes w/o Exemptions: | N/A | | |
Improvement / Building
Sketch
| No sketches available for this property. |
Property Image
Land
| 1 | HB | HIGH BLUFF | 1.2800 | 55756.80 | 190.00 | 0.00 | 1.00 | N/A | N/A |
Roll Value History
| 2026 | N/A | N/A | N/A | N/A | N/A |
| 2025 | $0 | $295,000 | $0 | $295,000 | $295,000 |
| 2024 | $0 | $280,000 | $0 | $280,000 | $280,000 |
| 2023 | $0 | $255,000 | $0 | $255,000 | $255,000 |
| 2022 | $0 | $250,000 | $0 | $250,000 | $250,000 |
| 2021 | $0 | $200,000 | $0 | $200,000 | $200,000 |
| 2020 | $0 | $200,000 | $0 | $200,000 | $200,000 |
| 2019 | $0 | $200,000 | $0 | $200,000 | $200,000 |
| 2018 | $0 | $200,000 | $0 | $200,000 | $200,000 |
| 2017 | $0 | $200,000 | $0 | $200,000 | $200,000 |
| 2016 | $0 | $200,000 | $0 | $200,000 | $200,000 |
| 2015 | $0 | $200,000 | $0 | $200,000 | $200,000 |
| 2014 | $0 | $200,000 | $0 | $200,000 | $200,000 |
| 2013 | $0 | $239,529 | $0 | $239,529 | $239,529 |
| 2012 | $0 | $239,529 | $0 | $239,529 | $239,529 |
| 2011 | $0 | $239,529 | $0 | $239,529 | $239,529 |
| 2010 | $0 | $239,529 | $0 | $239,529 | $239,529 |
| 2009 | $0 | $287,010 | $0 | $287,010 | $287,010 |
| 2008 | $0 | $287,010 | $0 | $287,010 | $287,010 |
| 2007 | $0 | $265,770 | $0 | $265,770 | $265,770 |
Deed and Sales History
| 1 | 11/04/2024 | QCD | Quit Claim Deed | STOBART TTEE, JOHN B | STOBART, JOHN B | | | $0.00 | 61768 | 4579127 |
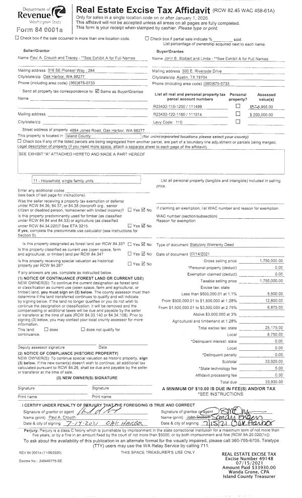
| 2 | 07/14/2021 | WD | Warranty Deed | CROUCH JTWROS, PAUL A | STOBART TTEE, JOHN B | | | $1,750,000.00 | 49148 | 4524364 |
|   | |
| 3 | 11/07/2006 | WD | Warranty Deed | JOHNSON , TR, SUSAN BROOKS | CROUCH JTWROS, PAUL A | | | $280,000.00 | 65247 | 4189602 |
| 4 | 12/15/2004 | 5 | DNU - Marriage License/Name Change | JOHNSON, TR, JAMES BURR | JOHNSON , TR, SUSAN BROOKS | | | $0.00 | 70432 | 0 |
| 5 | 05/23/2000 | QCD | Quit Claim Deed | JOHNSON, JAMES B | JOHNSON, TR, JAMES BURR | | | $0.00 | 2649 | 20012519 |
| 6 | 11/01/1989 | WD | Warranty Deed | BROADDUS, RONALD L | JOHNSON, JAMES B | | | $80,000.00 | 95144 | 89016567 |
| 7 | 02/01/1989 | WD | Warranty Deed | DADAY, JOHN E | BROADDUS, RONALD L | | | $0.00 | 90441 | 89001499 |
| 8 | 01/01/1900 | OTHER | Other - Misc. Documents | Unknown | DADAY, JOHN E | | | $0.00 | 0 | 0 |
Payout Agreement
| No payout information available.. |