Property
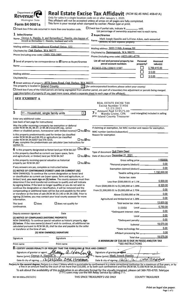
Account |
| Property ID: | 111587 | Abbreviated Legal Description: | 29 - BG CTR CORD & NLN GL2 S24*E291'S7*W15.48'TPB N82*W TO CO RD SLY ALG RD TP 265.48'FR SLN BLAIN TR S82*E750'TO HITDLN NLY TP S82*E FR TPB N82*W TPB INCL ADJ TIDES TGW & SUB EZS (1/2 INT IN EXIST WELL) LOT 2 SP 72-039 |
| Geographic ID: | R23432-226-1200 | Agent Code: | |
| Type: | Real | | |
| Tax Area: | 112 - APPRAISER-OH Schl Dist, outside OH, improved, greater than 1 acre | Land Use Code | 11 |
| Open Space: | N | DFL | N |
| Historic Property: | N | Remodel Property: | N |
| Multi-Family Redevelopment: | N | | |
| Township: | 34 | Section: | 32 |
| Range: | R2 |
Location |
| Address: | 4976 JONES RD OAK HARBOR, WA 98277 | Mapsco: | |
| Neighborhood: | Cycle 6 | Map ID: | 673 |
| Neighborhood CD: | 6 |
Owner |
| Name: | HAMLIN, MARK JOSEPH | Owner ID: | 302465 |
| Mailing Address: | LAVERNE AIKEN 4976 JONES RD OAK HARBOR, WA 98277 | % Ownership: | 100.0000000000% |
| | | Exemptions: | |
Taxes and Assessment Details
Values
| (+) Improvement Homesite Value: | + | $0 | |
| (+) Improvement Non-Homesite Value: | + | $560,424 | |
| (+) Land Homesite Value: | + | $0 | |
| (+) Land Non-Homesite Value: | + | $617,500 | |
| (+) Curr Use (HS): | + | $0 | $0 |
| (+) Curr Use (NHS): | + | $0 | $0 |
| | | -------------------------- | |
| (=) Market Value: | = | $1,177,924 | |
| (–) Productivity Loss: | – | $0 | |
| | | -------------------------- | |
| (=) Subtotal: | = | $1,177,924 | |
| (+) Senior Appraised Value: | + | $0 | |
| (+) Non-Senior Appraised Value: | + | $1,177,924 | |
| | | -------------------------- | |
| (=) Total Appraised Value: | = | $1,177,924 | |
| (–) Senior Exemption Loss: | – | $0 | |
| (–) Exemption Loss: | – | $0 | |
| | | -------------------------- | |
| (=) Taxable Value: | = | $1,177,924 | |
Taxing Jurisdiction
| Owner: | HAMLIN, MARK JOSEPH | | |
| % Ownership: | 100.0000000000% | | |
| Total Value: | $1,177,924 | | |
| Tax Area: | 112 - APPRAISER-OH Schl Dist, outside OH, improved, greater than 1 acre |
| CF | Conservation Futures | 0.0313996660 | $1,177,924 | $1,177,924 | $36.99 | | |
| CEM1 | Cemetery #1 | 0.0040018856 | $1,177,924 | $1,177,924 | $4.71 | | |
| FIRE2 | Fire & Rescue Dist #2 N Whidbey GEN | 0.5381486274 | $1,177,924 | $1,177,924 | $633.90 | | |
| HOBOND | Hospital BOND | 0.1893405597 | $1,177,924 | $1,177,924 | $223.03 | | |
| HOGEN | Hospital GEN | 0.3848777722 | $1,177,924 | $1,177,924 | $453.36 | | |
| CE | County Current Expense | 0.3674210519 | $1,177,924 | $1,177,924 | $432.79 | | |
| CR | County Roads | 0.4614296361 | $1,177,924 | $1,177,924 | $543.53 | | |
| ISLANDEMS | Hospital GEN (EMS) | 0.4952018576 | $1,177,924 | $1,177,924 | $583.31 | | |
| LIB | Library Sno-Isle GEN | 0.3039084203 | $1,177,924 | $1,177,924 | $357.98 | | |
| NWHIDPRMT | P & R N Whidbey GEN | 0.1990272349 | $1,177,924 | $1,177,924 | $234.44 | | |
| SCH201MO | School 201 Enrichment | 2.3851112745 | $1,177,924 | $1,177,924 | $2,809.48 | | |
| ST | State School | 1.4761226122 | $1,177,924 | $1,177,924 | $1,738.76 | | |
| ST2 | State School Part 2 | 0.7953803475 | $1,177,924 | $1,177,924 | $936.90 | | |
| | Total Tax Rate: | 7.6313709459 | | | | | |
| | | | | Taxes w/Current Exemptions: | $8,989.18 | | |
| | | | | Taxes w/o Exemptions: | $8,989.18 | | |
Improvement / Building
| Improvement #1: | RESIDENTIAL | State Code: | Y | 2576.9 sqft | Value: | $560,424 |
| Bathrooms: | 2.5 | Bedrooms: | 3 | | Ceiling: | DRYWALL PAINTED | Exterior Wall/Cover: | WOOD SIDING | | Floor Covering: | CERAMIC TILE/CPT 40-60 | Floor Structure: | WOOD W/SUBFLOOR | | Foundation: | CONCRETE | Heating: | FHA OIL | | Interior Finish: | DRYWALL PAINT | Plumbing Fixture Cnt: | 14 | | Roof Slope: | 6" IN 12" | Roof Structure/Cover: | BEAM CONCRETE TILE |
|
| | Type | Description | Class CD | Sub Class CD | Year Built | Area |
| | BAS | BASE/MAIN FLOOR | 4 | 0 | 1986 | 1790.6 |
| | OP1 | OPEN PORCH SLAB | 4 | 0 | 1986 | 131.0 |
| | OP4 | OPEN PORCH W/CEILING-ROOF | 4 | 0 | 1986 | 13.3 |
| | AGR | ATTACHED GARAGE | 4 | 0 | 1986 | 740.6 |
| | UPS | UPPER STORY | 4 | 0 | 1986 | 786.3 |
| | OWP | OPEN WOOD PORCH W/STEPS | 4 | 0 | 1986 | 567.8 |
| | ENP | ENCLOSED PORCH | 4 | 0 | 1986 | 229.9 |
| | oPOL | POLE BARN | 4 | 0 | 1986 | 0.0 |
Sketch
Property Image
Land
| 1 | HB | HIGH BLUFF | 2.8700 | 125017.20 | 250.00 | 0.00 | 1.00 | $615,000 | $0 |
| 2 | 55 | TIDES | 0.0000 | 0.00 | 250.00 | 0.00 | 1.00 | $2,500 | $0 |
Roll Value History
| 2026 | N/A | N/A | N/A | N/A | N/A |
| 2025 | $560,424 | $617,500 | $0 | $1,177,924 | $1,177,924 |
| 2024 | $567,838 | $602,500 | $0 | $1,170,338 | $1,170,338 |
| 2023 | $575,250 | $577,500 | $0 | $1,152,750 | $1,152,750 |
| 2022 | $521,831 | $552,500 | $0 | $1,074,331 | $1,074,331 |
| 2021 | $460,915 | $302,500 | $0 | $763,415 | $763,415 |
| 2020 | $450,153 | $302,500 | $0 | $752,653 | $752,653 |
| 2019 | $344,083 | $352,500 | $0 | $696,583 | $696,583 |
| 2018 | $345,136 | $302,500 | $0 | $647,636 | $647,636 |
| 2017 | $347,010 | $302,500 | $0 | $649,510 | $649,510 |
| 2016 | $297,395 | $302,500 | $0 | $599,895 | $599,895 |
| 2015 | $301,332 | $302,500 | $0 | $603,832 | $603,832 |
| 2014 | $305,269 | $302,500 | $0 | $607,769 | $607,769 |
| 2013 | $309,206 | $365,411 | $0 | $674,617 | $674,617 |
| 2012 | $313,142 | $365,411 | $0 | $678,553 | $678,553 |
| 2011 | $317,080 | $365,411 | $0 | $682,491 | $682,491 |
| 2010 | $340,259 | $365,411 | $0 | $705,670 | $705,670 |
| 2009 | $355,244 | $435,827 | $0 | $791,071 | $791,071 |
| 2008 | $360,301 | $435,827 | $0 | $796,128 | $796,128 |
| 2007 | $365,358 | $398,621 | $0 | $763,979 | $763,979 |
Deed and Sales History
| 1 | 12/21/2021 | WD | Warranty Deed | HAMLIN, GEORGE A | HAMLIN, MARK JOSEPH | | | $0.00 | 52074 | 4540434 |
| 2 | 12/21/2021 | WD | Warranty Deed | HAMLIN, GEORGE A | HAMLIN, MARK JOSEPH | | | $1,150,000.00 | 51456 | 4536562 |
| 3 | 07/01/1985 | WD | Warranty Deed | HAMLIN, GEORGE A | HAMLIN, GEORGE A | | | $0.00 | 52183 | 0 |
| 4 | 01/01/1900 | OTHER | Other - Misc. Documents | Unknown | HAMLIN, GEORGE A | | | $0.00 | 0 | 0 |
Payout Agreement
| No payout information available.. |