Property
Account |
| Property ID: | 111792 | Abbreviated Legal Description: | 38 - BG SW CR GL4 E241.8' TPB E199.1' N620' WLY ALG HI TIDE 200' M/L TP N OF POB S640' TPB EZ RD TGW TIDES |
| Geographic ID: | R23432-431-0320 | Agent Code: | |
| Type: | Real | | |
| Tax Area: | 119 - APPRAISER-OH Schl Dist, outside OH, vacant & 50 acres or less | Land Use Code | 91 |
| Open Space: | N | DFL | N |
| Historic Property: | N | Remodel Property: | N |
| Multi-Family Redevelopment: | N | | |
| Township: | 34 | Section: | 32 |
| Range: | R2 |
Location |
| Address: | | Mapsco: | |
| Neighborhood: | Cycle 6 | Map ID: | 674 |
| Neighborhood CD: | 6 |
Owner |
| Name: | ARMSTRONG, LINDA | Owner ID: | 292851 |
| Mailing Address: | 6126 PANORAMA DR NE TACOMA, WA 98422 | % Ownership: | 100.0000000000% |
| | | Exemptions: | |
Taxes and Assessment Details
Values
| (+) Improvement Homesite Value: | + | $0 | |
| (+) Improvement Non-Homesite Value: | + | $0 | |
| (+) Land Homesite Value: | + | $0 | |
| (+) Land Non-Homesite Value: | + | $107,000 | |
| (+) Curr Use (HS): | + | $0 | $0 |
| (+) Curr Use (NHS): | + | $0 | $0 |
| | | -------------------------- | |
| (=) Market Value: | = | $107,000 | |
| (–) Productivity Loss: | – | $0 | |
| | | -------------------------- | |
| (=) Subtotal: | = | $107,000 | |
| (+) Senior Appraised Value: | + | $0 | |
| (+) Non-Senior Appraised Value: | + | $107,000 | |
| | | -------------------------- | |
| (=) Total Appraised Value: | = | $107,000 | |
| (–) Senior Exemption Loss: | – | $0 | |
| (–) Exemption Loss: | – | $0 | |
| | | -------------------------- | |
| (=) Taxable Value: | = | $107,000 | |
Taxing Jurisdiction
| Owner: | ARMSTRONG, LINDA | | |
| % Ownership: | 100.0000000000% | | |
| Total Value: | $107,000 | | |
| Tax Area: | 119 - APPRAISER-OH Schl Dist, outside OH, vacant & 50 acres or less |
| CF | Conservation Futures | 0.0313996660 | $107,000 | $107,000 | $3.36 | | |
| CEM1 | Cemetery #1 | 0.0040018856 | $107,000 | $107,000 | $0.43 | | |
| HOBOND | Hospital BOND | 0.1893405597 | $107,000 | $107,000 | $20.26 | | |
| HOGEN | Hospital GEN | 0.3848777722 | $107,000 | $107,000 | $41.18 | | |
| CE | County Current Expense | 0.3674210519 | $107,000 | $107,000 | $39.31 | | |
| CR | County Roads | 0.4614296361 | $107,000 | $107,000 | $49.37 | | |
| ISLANDEMS | Hospital GEN (EMS) | 0.4952018576 | $107,000 | $107,000 | $52.99 | | |
| LIB | Library Sno-Isle GEN | 0.3039084203 | $107,000 | $107,000 | $32.52 | | |
| NWHIDPRMT | P & R N Whidbey GEN | 0.1990272349 | $107,000 | $107,000 | $21.30 | | |
| SCH201MO | School 201 Enrichment | 2.3851112745 | $107,000 | $107,000 | $255.21 | | |
| ST | State School | 1.4761226122 | $107,000 | $107,000 | $157.95 | | |
| ST2 | State School Part 2 | 0.7953803475 | $107,000 | $107,000 | $85.11 | | |
| | Total Tax Rate: | 7.0932223185 | | | | | |
| | | | | Taxes w/Current Exemptions: | $758.99 | | |
| | | | | Taxes w/o Exemptions: | $758.99 | | |
Improvement / Building
Sketch
| No sketches available for this property. |
Property Image
Land
| 1 | MB | MEDIUM BANK | 2.7500 | 119790.00 | 200.00 | 0.00 | 1.00 | $105,000 | $0 |
| 2 | 55 | TIDES | 0.0000 | 0.00 | 200.00 | 0.00 | 1.00 | $2,000 | $0 |
Roll Value History
| 2026 | N/A | N/A | N/A | N/A | N/A |
| 2025 | $0 | $107,000 | $0 | $107,000 | $107,000 |
| 2024 | $0 | $107,000 | $0 | $107,000 | $107,000 |
| 2023 | $0 | $82,000 | $0 | $82,000 | $82,000 |
| 2022 | $0 | $82,000 | $0 | $82,000 | $82,000 |
| 2021 | $0 | $125,000 | $0 | $125,000 | $125,000 |
| 2020 | $0 | $125,000 | $0 | $125,000 | $125,000 |
| 2019 | $0 | $125,000 | $0 | $125,000 | $125,000 |
| 2018 | $0 | $125,000 | $0 | $125,000 | $125,000 |
| 2017 | $0 | $125,000 | $0 | $125,000 | $125,000 |
| 2016 | $0 | $252,000 | $0 | $252,000 | $252,000 |
| 2015 | $0 | $252,000 | $0 | $252,000 | $252,000 |
| 2014 | $0 | $252,000 | $0 | $252,000 | $252,000 |
| 2013 | $0 | $289,050 | $0 | $289,050 | $289,050 |
| 2012 | $0 | $289,050 | $0 | $289,050 | $289,050 |
| 2011 | $0 | $289,050 | $0 | $289,050 | $289,050 |
| 2010 | $0 | $289,050 | $0 | $289,050 | $289,050 |
| 2009 | $0 | $280,550 | $0 | $280,550 | $280,550 |
| 2008 | $0 | $280,550 | $0 | $280,550 | $280,550 |
| 2007 | $0 | $279,150 | $0 | $279,150 | $279,150 |
Deed and Sales History
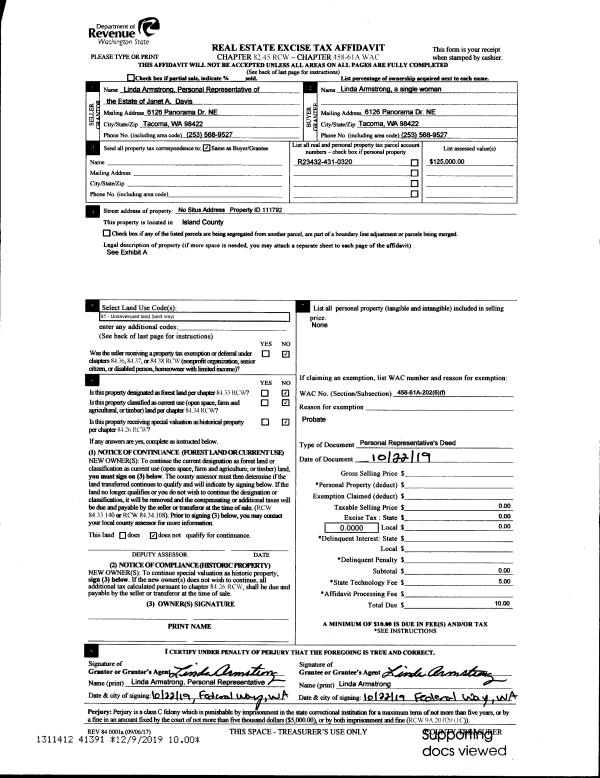
| 1 | 10/22/2019 | PRD | Personal Representatives Deed | DAVIS, JANET | ARMSTRONG, LINDA | | | $0.00 | 41391 | 4477151 |
| 2 | 03/01/1988 | OTHER | Other - Misc. Documents | DAVIS, JANET A | DAVIS, JANET | | | $0.00 | 62521 | 88000273 |
| 3 | 09/01/1985 | QCD | Quit Claim Deed | ANTER, MICHAEL | DAVIS, JANET A | | | $0.00 | 52631 | 85010419 |
| 4 | 09/01/1985 | REC | Real Estate Contract | DAVIS, JANET A | ANTER, MICHAEL | | | $137,500.00 | 52633 | 0 |
| 5 | 12/01/1984 | OTHER | Other - Misc. Documents | ARMSTRONG, THOMAS W | DAVIS, JANET A | | | $0.00 | 60953 | 0 |
| 6 | 12/01/1978 | OTHER | Other - Misc. Documents | Unknown | ARMSTRONG, THOMAS W | | | $10,469.00 | 86266 | 345223 |
Payout Agreement
| No payout information available.. |