Property
Account |
| Property ID: | 111925 | Abbreviated Legal Description: | 49 - IN GL3: BG 4/CR SLN SEC 1 N808.6' E1034' S26*W 23.1' TPB S26*W97.6' S46*E TO ML N58*E ALG ML TP S38*E FR TPB N38*W TPB |
| Geographic ID: | R32801-058-3780 | Agent Code: | |
| Type: | Real | | |
| Tax Area: | 719 - APPRAISER-S Whid Schl Dist, outside Langley, vacant & 50 acres or less | Land Use Code | 91 |
| Open Space: | N | DFL | N |
| Historic Property: | N | Remodel Property: | N |
| Multi-Family Redevelopment: | N | | |
| Township: | 28 | Section: | 01 |
| Range: | R3 |
Location |
| Address: | | Mapsco: | |
| Neighborhood: | Cycle 4 | Map ID: | 676 |
| Neighborhood CD: | 4 |
Owner |
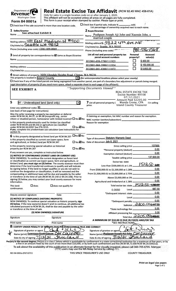
| Name: | JOHN, PUSHPAM JOSEPH AJI | Owner ID: | 300166 |
| Mailing Address: | XUEMIN JOHN 3822 4TH AVE NE SEATTLE, WA 98105 | % Ownership: | 100.0000000000% |
| | | Exemptions: | U500 |
Taxes and Assessment Details
Values
| (+) Improvement Homesite Value: | + | N/A | |
| (+) Improvement Non-Homesite Value: | + | N/A | |
| (+) Land Homesite Value: | + | N/A | |
| (+) Land Non-Homesite Value: | + | N/A | Ag / Timber Use Value |
| (+) Curr Use (HS): | + | N/A | N/A |
| (+) Curr Use (NHS): | + | N/A | N/A |
| | | -------------------------- | |
| (=) Market Value: | = | N/A | |
| (–) Productivity Loss: | – | N/A | |
| | | -------------------------- | |
| (=) Subtotal: | = | N/A | |
| (+) Senior Appraised Value: | + | N/A | |
| (+) Non-Senior Appraised Value: | + | N/A | |
| | | -------------------------- | |
| (=) Total Appraised Value: | = | N/A | |
| (–) Senior Exemption Loss: | – | N/A | |
| (–) Exemption Loss: | – | N/A | |
| | | -------------------------- | |
| (=) Taxable Value: | = | N/A | |
Taxing Jurisdiction
| Owner: | JOHN, PUSHPAM JOSEPH AJI | | |
| % Ownership: | 100.0000000000% | | |
| Total Value: | N/A | | |
| Tax Area: | 719 - APPRAISER-S Whid Schl Dist, outside Langley, vacant & 50 acres or less |
| CF | Conservation Futures | N/A | N/A | N/A | N/A | | |
| WCD | Whidbey Conservation District | N/A | N/A | N/A | N/A | | |
| HOBOND | Hospital BOND | N/A | N/A | N/A | N/A | | |
| HOGEN | Hospital GEN | N/A | N/A | N/A | N/A | | |
| CE | County Current Expense | N/A | N/A | N/A | N/A | | |
| CR | County Roads | N/A | N/A | N/A | N/A | | |
| ISLANDEMS | Hospital GEN (EMS) | N/A | N/A | N/A | N/A | | |
| LIB | Library Sno-Isle GEN | N/A | N/A | N/A | N/A | | |
| PORTWHID | Port of S Whidbey GEN | N/A | N/A | N/A | N/A | | |
| SCH206CAP | School 206 CP | N/A | N/A | N/A | N/A | | |
| SCH206MO | School 206 Enrichment | N/A | N/A | N/A | N/A | | |
| ST | State School | N/A | N/A | N/A | N/A | | |
| ST2 | State School Part 2 | N/A | N/A | N/A | N/A | | |
| SWHIDPRBD | P & R S Whidbey BOND | N/A | N/A | N/A | N/A | | |
| SWHIDPRBD2 | P & R S Whidbey BOND2 | N/A | N/A | N/A | N/A | | |
| SWHIDPRMT | P & R S Whidbey GEN | N/A | N/A | N/A | N/A | | |
| | Total Tax Rate: | N/A | | | | | |
| | | | | Taxes w/Current Exemptions: | N/A | | |
| | | | | Taxes w/o Exemptions: | N/A | | |
Improvement / Building
Sketch
| No sketches available for this property. |
Property Image
Land
| 1 | HB | HIGH BLUFF | 0.0000 | 0.00 | 1.00 | 0.00 | 1.00 | N/A | N/A |
Roll Value History
| 2026 | N/A | N/A | N/A | N/A | N/A |
| 2025 | $0 | $400 | $0 | $400 | $0 |
| 2024 | $0 | $400 | $0 | $400 | $0 |
| 2023 | $0 | $400 | $0 | $400 | $0 |
| 2022 | $0 | $400 | $0 | $400 | $0 |
| 2021 | $0 | $400 | $0 | $400 | $0 |
| 2020 | $0 | $400 | $0 | $400 | $0 |
| 2019 | $0 | $400 | $0 | $400 | $0 |
| 2018 | $0 | $400 | $0 | $400 | $0 |
| 2017 | $0 | $400 | $0 | $400 | $0 |
| 2016 | $0 | $400 | $0 | $400 | $0 |
| 2015 | $0 | $10 | $0 | $10 | $0 |
| 2014 | $0 | $400 | $0 | $400 | $0 |
| 2013 | $0 | $400 | $0 | $400 | $0 |
| 2012 | $0 | $400 | $0 | $400 | $0 |
| 2011 | $0 | $400 | $0 | $400 | $0 |
| 2010 | $0 | $400 | $0 | $400 | $0 |
| 2009 | $0 | $400 | $0 | $400 | $0 |
| 2008 | $0 | $400 | $0 | $400 | $0 |
| 2007 | $0 | $400 | $0 | $400 | $0 |
Deed and Sales History
| 1 | 07/08/2021 | WD | Warranty Deed | LARSON, LAWRENCE S. | JOHN, PUSHPAM JOSEPH AJI | | | $137,500.00 | 49108 | 4524075 |
|   | |
| 2 | 12/15/2016 | TTAXD | Treasurer's Tax Deed | ISLAND COUNTY TREASURER | LARSON, LAWRENCE S. | | | $10,475.00 | 27354 | 4413393 |
| 3 | 06/20/2005 | QCD | Quit Claim Deed | MELLING ET AL, ALAN L | | | | | 53059 | 4139125 |
| 4 | 10/24/2000 | QCD | Quit Claim Deed | MELLING ET AL, ALAN L | | | | | 4424 | 20020352 |
| 5 | 06/01/1996 | QCD | Quit Claim Deed | MELLING, CLIFTON A | MELLING, ALAN L | | | $0.00 | 62061 | 96010228 |
| 6 | 01/01/1995 | QCD | Quit Claim Deed | MELLING ET AL, ALAN L | | | | | 50210 | 95001402 |
| 7 | 06/01/1994 | QCD | Quit Claim Deed | MELLING, CLIFTON A | MELLING, CLIFTON A | | | $0.00 | 42624 | 94014563 |
| 8 | 05/01/1992 | OTHER | Other - Misc. Documents | MELLING, VIRGINIA L | MELLING, CLIFTON A | | | $0.00 | 64851 | 92008873 |
| 9 | 01/01/1978 | CD | DNU - Correction Deed | , | MELLING, VIRGINIA L | | | $0.00 | 80213 | 0 |
| 10 | 01/01/1900 | OTHER | Other - Misc. Documents | CRUVER, ESTHER R | , | | | $0.00 | 0 | 0 |
| 11 | 01/01/1900 | OTHER | Other - Misc. Documents | Unknown | CRUVER, ESTHER R | | | $0.00 | 0 | 0 |
Payout Agreement
| No payout information available.. |