Property
Account |
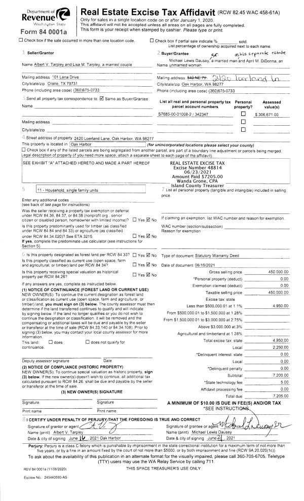
| Property ID: | 111934 | Abbreviated Legal Description: | 38 - IN S/2 GL3: BG 788.6'N & 1023.6'E OF 4/CR SLN SEC 1 E70' S38*E TO ML S58*W ALG ML TP S38*E FR TPB N38*W TPB ALSO: BG 788.6'N & 1093.6'E OF 4/CR SLN SEC 1 E130' S32*E TO ML S58*W ALG ML TP S38*E FR TPB N38*W TPB ALSO: BG 788.6'N & 1223.6'E OF 4/CR S |
| Geographic ID: | R32801-068-3980 | Agent Code: | |
| Type: | Real | | |
| Tax Area: | 719 - APPRAISER-S Whid Schl Dist, outside Langley, vacant & 50 acres or less | Land Use Code | 91 |
| Open Space: | N | DFL | N |
| Historic Property: | N | Remodel Property: | N |
| Multi-Family Redevelopment: | N | | |
| Township: | 28 | Section: | 01 |
| Range: | R3 |
Location |
| Address: | | Mapsco: | |
| Neighborhood: | Cycle 4 | Map ID: | 676 |
| Neighborhood CD: | 4 |
Owner |
| Name: | JOHN, PUSHPAM JOSEPH AJI | Owner ID: | 300166 |
| Mailing Address: | XUEMIN JOHN 3822 4TH AVE NE SEATTLE, WA 98105 | % Ownership: | 100.0000000000% |
| | | Exemptions: | |
Taxes and Assessment Details
Values
| (+) Improvement Homesite Value: | + | N/A | |
| (+) Improvement Non-Homesite Value: | + | N/A | |
| (+) Land Homesite Value: | + | N/A | |
| (+) Land Non-Homesite Value: | + | N/A | Ag / Timber Use Value |
| (+) Curr Use (HS): | + | N/A | N/A |
| (+) Curr Use (NHS): | + | N/A | N/A |
| | | -------------------------- | |
| (=) Market Value: | = | N/A | |
| (–) Productivity Loss: | – | N/A | |
| | | -------------------------- | |
| (=) Subtotal: | = | N/A | |
| (+) Senior Appraised Value: | + | N/A | |
| (+) Non-Senior Appraised Value: | + | N/A | |
| | | -------------------------- | |
| (=) Total Appraised Value: | = | N/A | |
| (–) Senior Exemption Loss: | – | N/A | |
| (–) Exemption Loss: | – | N/A | |
| | | -------------------------- | |
| (=) Taxable Value: | = | N/A | |
Taxing Jurisdiction
| Owner: | JOHN, PUSHPAM JOSEPH AJI | | |
| % Ownership: | 100.0000000000% | | |
| Total Value: | N/A | | |
| Tax Area: | 719 - APPRAISER-S Whid Schl Dist, outside Langley, vacant & 50 acres or less |
| CF | Conservation Futures | N/A | N/A | N/A | N/A | | |
| WCD | Whidbey Conservation District | N/A | N/A | N/A | N/A | | |
| HOBOND | Hospital BOND | N/A | N/A | N/A | N/A | | |
| HOGEN | Hospital GEN | N/A | N/A | N/A | N/A | | |
| CE | County Current Expense | N/A | N/A | N/A | N/A | | |
| CR | County Roads | N/A | N/A | N/A | N/A | | |
| ISLANDEMS | Hospital GEN (EMS) | N/A | N/A | N/A | N/A | | |
| LIB | Library Sno-Isle GEN | N/A | N/A | N/A | N/A | | |
| PORTWHID | Port of S Whidbey GEN | N/A | N/A | N/A | N/A | | |
| SCH206CAP | School 206 CP | N/A | N/A | N/A | N/A | | |
| SCH206MO | School 206 Enrichment | N/A | N/A | N/A | N/A | | |
| ST | State School | N/A | N/A | N/A | N/A | | |
| ST2 | State School Part 2 | N/A | N/A | N/A | N/A | | |
| SWHIDPRBD | P & R S Whidbey BOND | N/A | N/A | N/A | N/A | | |
| SWHIDPRBD2 | P & R S Whidbey BOND2 | N/A | N/A | N/A | N/A | | |
| SWHIDPRMT | P & R S Whidbey GEN | N/A | N/A | N/A | N/A | | |
| | Total Tax Rate: | N/A | | | | | |
| | | | | Taxes w/Current Exemptions: | N/A | | |
| | | | | Taxes w/o Exemptions: | N/A | | |
Improvement / Building
Sketch
| No sketches available for this property. |
Property Image
Land
| 1 | HB | HIGH BLUFF | 5.9500 | 259182.00 | 300.00 | 0.00 | 1.00 | N/A | N/A |
Roll Value History
| 2026 | N/A | N/A | N/A | N/A | N/A |
| 2025 | $0 | $150,000 | $0 | $150,000 | $150,000 |
| 2024 | $0 | $150,000 | $0 | $150,000 | $150,000 |
| 2023 | $0 | $150,000 | $0 | $150,000 | $150,000 |
| 2022 | $0 | $150,000 | $0 | $150,000 | $150,000 |
| 2021 | $0 | $150,000 | $0 | $150,000 | $150,000 |
| 2020 | $0 | $150,000 | $0 | $150,000 | $150,000 |
| 2019 | $0 | $150,000 | $0 | $150,000 | $150,000 |
| 2018 | $0 | $150,000 | $0 | $150,000 | $150,000 |
| 2017 | $0 | $150,000 | $0 | $150,000 | $150,000 |
| 2016 | $0 | $150,000 | $0 | $150,000 | $150,000 |
| 2015 | $0 | $150,000 | $0 | $150,000 | $150,000 |
| 2014 | $0 | $300,000 | $0 | $300,000 | $300,000 |
| 2013 | $0 | $300,000 | $0 | $300,000 | $300,000 |
| 2012 | $0 | $315,740 | $0 | $315,740 | $315,740 |
| 2011 | $0 | $315,740 | $0 | $315,740 | $315,740 |
| 2010 | $0 | $315,740 | $0 | $315,740 | $315,740 |
| 2009 | $0 | $378,888 | $0 | $378,888 | $378,888 |
| 2008 | $0 | $378,888 | $0 | $378,888 | $378,888 |
| 2007 | $0 | $379,705 | $0 | $379,705 | $379,705 |
Deed and Sales History
| 1 | 07/08/2021 | WD | Warranty Deed | LARSON TRUSTEE, BONNIE C | JOHN, PUSHPAM JOSEPH AJI | | | $137,500.00 | 49108 | 4524075 |
|   | |
| 2 | 11/05/2012 | WD | Warranty Deed | LARSON TRUSTEE, BONNIE C | LARSON TRUSTEE, BONNIE C | | | $0.00 | 49107 | 4524074 |
| 3 | 07/12/2021 | WD | Warranty Deed | BETTINELLI, MARION V | LARSON, MARION V / BONNIE C | | | $0.00 | 49106 | 4524073 |
| 4 | 11/05/2012 | EXECUTORD | Executor Deed | LARSON, MARION V / BONNIE C | LARSON TRUSTEE, BONNIE C | | | $0.00 | 9721 | 4329023 |
| 5 | 09/01/1991 | QCD | Quit Claim Deed | LARSON, MARION V | BETTINELLI, S M | | | $0.00 | 13378 | 91014361 |
| 6 | 09/01/1991 | WD | Warranty Deed | BETTINELLI, S M | LARSON, MARION V | | | $158,000.00 | 13379 | 91014362 |
| 7 | 05/01/1991 | TRUSTEED | Trustee's Deed | NORTHWEST, HOME L | BETTINELLI, S M | | | $0.00 | 11750 | 91007496 |
| 8 | 03/01/1988 | WD | Warranty Deed | PETERS, ROYAL E | NORTHWEST, HOME L | | | $51,600.00 | 80911 | 88003550 |
| 9 | 01/01/1900 | OTHER | Other - Misc. Documents | Unknown | PETERS, ROYAL E | | | $0.00 | 0 | 0 |
Payout Agreement
| No payout information available.. |