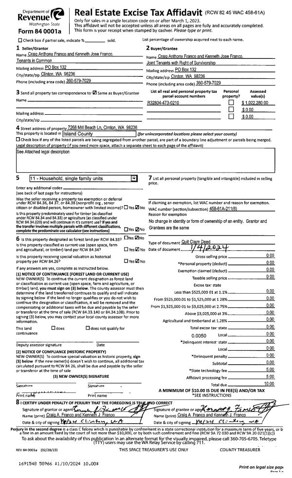
Property
Account |
| Property ID: | 114851 | Abbreviated Legal Description: | 63 - GL3 |
| Geographic ID: | R32804-473-0210 | Agent Code: | |
| Type: | Real | | |
| Tax Area: | 710 - APPRAISER-S Whid Schl Dist, outside Langley, improved & 1 acre or less | Land Use Code | 11 |
| Open Space: | N | DFL | N |
| Historic Property: | N | Remodel Property: | N |
| Multi-Family Redevelopment: | N | | |
| Township: | 28 | Section: | 04 |
| Range: | R3 |
Location |
| Address: | 7268 MILL BEACH LN CLINTON, WA 98236 | Mapsco: | |
| Neighborhood: | Cycle 4 | Map ID: | 689 |
| Neighborhood CD: | 4 |
Owner |
| Name: | FRANCO JTWROS, CRAIG ANTHONY | Owner ID: | 311162 |
| Mailing Address: | KENNETH JOSE FRANCO JTWROS PO BOX 132 CLINTON, WA 98236 | % Ownership: | 100.0000000000% |
| | | Exemptions: | |
Taxes and Assessment Details
Values
| (+) Improvement Homesite Value: | + | $0 | |
| (+) Improvement Non-Homesite Value: | + | $117,161 | |
| (+) Land Homesite Value: | + | $0 | |
| (+) Land Non-Homesite Value: | + | $900,000 | |
| (+) Curr Use (HS): | + | $0 | $0 |
| (+) Curr Use (NHS): | + | $0 | $0 |
| | | -------------------------- | |
| (=) Market Value: | = | $1,017,161 | |
| (–) Productivity Loss: | – | $0 | |
| | | -------------------------- | |
| (=) Subtotal: | = | $1,017,161 | |
| (+) Senior Appraised Value: | + | $0 | |
| (+) Non-Senior Appraised Value: | + | $1,017,161 | |
| | | -------------------------- | |
| (=) Total Appraised Value: | = | $1,017,161 | |
| (–) Senior Exemption Loss: | – | $0 | |
| (–) Exemption Loss: | – | $0 | |
| | | -------------------------- | |
| (=) Taxable Value: | = | $1,017,161 | |
Taxing Jurisdiction
| Owner: | FRANCO JTWROS, CRAIG ANTHONY | | |
| % Ownership: | 100.0000000000% | | |
| Total Value: | $1,017,161 | | |
| Tax Area: | 710 - APPRAISER-S Whid Schl Dist, outside Langley, improved & 1 acre or less |
| CF | Conservation Futures | 0.0313996660 | $1,017,161 | $1,017,161 | $31.94 | | |
| FIRE3 | Fire & Rescue Dist #3 S Whidbey GEN | 1.2130821753 | $1,017,161 | $1,017,161 | $1,233.90 | | |
| HOBOND | Hospital BOND | 0.1893405597 | $1,017,161 | $1,017,161 | $192.59 | | |
| HOGEN | Hospital GEN | 0.3848777722 | $1,017,161 | $1,017,161 | $391.48 | | |
| CE | County Current Expense | 0.3674210519 | $1,017,161 | $1,017,161 | $373.73 | | |
| CR | County Roads | 0.4614296361 | $1,017,161 | $1,017,161 | $469.35 | | |
| ISLANDEMS | Hospital GEN (EMS) | 0.4952018576 | $1,017,161 | $1,017,161 | $503.70 | | |
| LIB | Library Sno-Isle GEN | 0.3039084203 | $1,017,161 | $1,017,161 | $309.12 | | |
| PORTWHID | Port of S Whidbey GEN | 0.1086004714 | $1,017,161 | $1,017,161 | $110.46 | | |
| SCH206BOND | School 206 BOND | 0.5960237832 | $1,017,161 | $1,017,161 | $606.25 | | |
| SCH206CAP | School 206 CP | 0.3066144020 | $1,017,161 | $1,017,161 | $311.88 | | |
| SCH206MO | School 206 Enrichment | 0.4808755445 | $1,017,161 | $1,017,161 | $489.13 | | |
| ST | State School | 1.4761226122 | $1,017,161 | $1,017,161 | $1,501.45 | | |
| ST2 | State School Part 2 | 0.7953803475 | $1,017,161 | $1,017,161 | $809.03 | | |
| SWHIDPRBD | P & R S Whidbey BOND | 0.0144185398 | $1,017,161 | $1,017,161 | $14.67 | | |
| SWHIDPRBD3 | P & R S Whidbey BOND3 | 0.1483535547 | $1,017,161 | $1,017,161 | $150.90 | | |
| SWHIDPRMT | P & R S Whidbey GEN | 0.4600000000 | $1,017,161 | $1,017,161 | $467.89 | | |
| | Total Tax Rate: | 7.8330503944 | | | | | |
| | | | | Taxes w/Current Exemptions: | $7,967.47 | | |
| | | | | Taxes w/o Exemptions: | $7,967.47 | | |
Improvement / Building
| Improvement #1: | RESIDENTIAL | State Code: | Y | 768.0 sqft | Value: | $117,161 |
| Bathrooms: | 1 | Bedrooms: | 2 | | Ceiling: | BEAM PAINTED | Exterior Wall/Cover: | LOG TO 10" | | Floor Covering: | CARPET/VINYL 60-40 | Floor Structure: | WOOD W/SUBFLOOR | | Foundation: | CONCRETE | Heating: | BASEBOARD ELECTRIC | | Interior Finish: | DRYWALL PAINT | Plumbing Fixture Cnt: | 5 | | Roof Slope: | 4" IN 12" | Roof Structure/Cover: | CJ WOOD SHAKES |
|
| | Type | Description | Class CD | Sub Class CD | Year Built | Area |
| | BAS | BASE/MAIN FLOOR | 3 | 0 | 1960 | 768.0 |
| | OWP | OPEN WOOD PORCH W/STEPS | 3 | 0 | 1960 | 690.0 |
| | OWR | OPEN WOOD PORCH W/STEPS/ROOF | 3 | 0 | 1960 | 186.0 |
Sketch
Property Image
Land
| 1 | LB | LOW BANK | 0.3700 | 16117.20 | 55.00 | 0.00 | 1.00 | $900,000 | $0 |
Roll Value History
| 2026 | N/A | N/A | N/A | N/A | N/A |
| 2025 | $117,161 | $900,000 | $0 | $1,017,161 | $1,017,161 |
| 2024 | $120,144 | $900,000 | $0 | $1,020,144 | $1,020,144 |
| 2023 | $122,280 | $900,000 | $0 | $1,022,280 | $1,022,280 |
| 2022 | $112,662 | $900,000 | $0 | $1,012,662 | $1,012,662 |
| 2021 | $99,649 | $550,000 | $0 | $649,649 | $649,649 |
| 2020 | $97,572 | $515,000 | $0 | $612,572 | $612,572 |
| 2019 | $69,461 | $550,000 | $0 | $619,461 | $619,461 |
| 2018 | $69,744 | $550,000 | $0 | $619,744 | $619,744 |
| 2017 | $70,312 | $350,000 | $0 | $420,312 | $420,312 |
| 2016 | $71,445 | $350,000 | $0 | $421,445 | $421,445 |
| 2015 | $72,580 | $350,000 | $0 | $422,580 | $422,580 |
| 2014 | $60,737 | $350,000 | $0 | $410,737 | $410,737 |
| 2013 | $61,905 | $328,318 | $0 | $390,223 | $390,223 |
| 2012 | $63,073 | $328,318 | $0 | $391,391 | $391,391 |
| 2011 | $64,241 | $328,318 | $0 | $392,559 | $392,559 |
| 2010 | $73,468 | $328,318 | $0 | $401,786 | $401,786 |
| 2009 | $76,805 | $364,366 | $0 | $441,171 | $441,171 |
| 2008 | $77,986 | $363,748 | $0 | $441,734 | $441,734 |
| 2007 | $79,166 | $344,768 | $0 | $423,934 | $423,934 |
Deed and Sales History
| 1 | 01/04/2024 | QCD | Quit Claim Deed | FRANCO, CRAIG A | FRANCO JTWROS, CRAIG ANTHONY | | | $0.00 | 58966 | 4568407 |
| 2 | 01/28/2000 | QCD | Quit Claim Deed | FRANCO, JOSE | FRANCO, CRAIG A | | | $0.00 | 443 | 20002245 |
| 3 | 01/01/1900 | OTHER | Other - Misc. Documents | Unknown | FRANCO, JOSE | | | $0.00 | 0 | 0 |
Payout Agreement
| No payout information available.. |