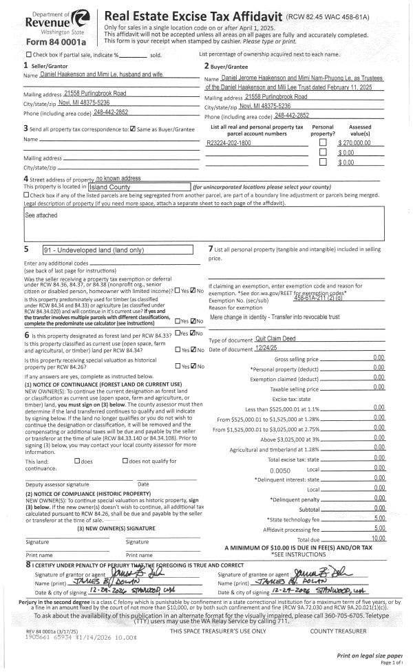
Property
Account |
| Property ID: | 115253 | Abbreviated Legal Description: | 37 - BG SWCR GL1 W22' M/L TO WLN OF RD NLY ALG SD RD 545' TPB N26*E45' N63*W TO ML SWLY ALG ML 45' M/L TP N63*W FR TPB S63*E TPB INCL ADJ TIDES |
| Geographic ID: | R32805-054-4470 | Agent Code: | |
| Type: | Real | | |
| Tax Area: | 710 - APPRAISER-S Whid Schl Dist, outside Langley, improved & 1 acre or less | Land Use Code | 11 |
| Open Space: | N | DFL | N |
| Historic Property: | N | Remodel Property: | N |
| Multi-Family Redevelopment: | N | | |
| Township: | 28 | Section: | 05 |
| Range: | R3 |
Location |
| Address: | | Mapsco: | |
| Neighborhood: | Cycle 4 | Map ID: | 691 |
| Neighborhood CD: | 4 |
Owner |
| Name: | KANEMORI, SUSAN L DAHL | Owner ID: | 268474 |
| Mailing Address: | YOSHI KANEMORI TRUSTEE 8750 PAISLEY DR NE SEATTLE, WA 98115 | % Ownership: | 100.0000000000% |
| | | Exemptions: | |
Taxes and Assessment Details
Values
| (+) Improvement Homesite Value: | + | $0 | |
| (+) Improvement Non-Homesite Value: | + | $218,204 | |
| (+) Land Homesite Value: | + | $0 | |
| (+) Land Non-Homesite Value: | + | $950,450 | |
| (+) Curr Use (HS): | + | $0 | $0 |
| (+) Curr Use (NHS): | + | $0 | $0 |
| | | -------------------------- | |
| (=) Market Value: | = | $1,168,654 | |
| (–) Productivity Loss: | – | $0 | |
| | | -------------------------- | |
| (=) Subtotal: | = | $1,168,654 | |
| (+) Senior Appraised Value: | + | $0 | |
| (+) Non-Senior Appraised Value: | + | $1,168,654 | |
| | | -------------------------- | |
| (=) Total Appraised Value: | = | $1,168,654 | |
| (–) Senior Exemption Loss: | – | $0 | |
| (–) Exemption Loss: | – | $0 | |
| | | -------------------------- | |
| (=) Taxable Value: | = | $1,168,654 | |
Taxing Jurisdiction
| Owner: | KANEMORI, SUSAN L DAHL | | |
| % Ownership: | 100.0000000000% | | |
| Total Value: | $1,168,654 | | |
| Tax Area: | 710 - APPRAISER-S Whid Schl Dist, outside Langley, improved & 1 acre or less |
| CF | Conservation Futures | 0.0313996660 | $1,168,654 | $1,168,654 | $36.70 | | |
| FIRE3 | Fire & Rescue Dist #3 S Whidbey GEN | 1.2130821753 | $1,168,654 | $1,168,654 | $1,417.67 | | |
| HOBOND | Hospital BOND | 0.1893405597 | $1,168,654 | $1,168,654 | $221.27 | | |
| HOGEN | Hospital GEN | 0.3848777722 | $1,168,654 | $1,168,654 | $449.79 | | |
| CE | County Current Expense | 0.3674210519 | $1,168,654 | $1,168,654 | $429.39 | | |
| CR | County Roads | 0.4614296361 | $1,168,654 | $1,168,654 | $539.25 | | |
| ISLANDEMS | Hospital GEN (EMS) | 0.4952018576 | $1,168,654 | $1,168,654 | $578.72 | | |
| LIB | Library Sno-Isle GEN | 0.3039084203 | $1,168,654 | $1,168,654 | $355.16 | | |
| PORTWHID | Port of S Whidbey GEN | 0.1086004714 | $1,168,654 | $1,168,654 | $126.92 | | |
| SCH206BOND | School 206 BOND | 0.5960237832 | $1,168,654 | $1,168,654 | $696.55 | | |
| SCH206CAP | School 206 CP | 0.3066144020 | $1,168,654 | $1,168,654 | $358.33 | | |
| SCH206MO | School 206 Enrichment | 0.4808755445 | $1,168,654 | $1,168,654 | $561.98 | | |
| ST | State School | 1.4761226122 | $1,168,654 | $1,168,654 | $1,725.08 | | |
| ST2 | State School Part 2 | 0.7953803475 | $1,168,654 | $1,168,654 | $929.52 | | |
| SWHIDPRBD | P & R S Whidbey BOND | 0.0144185398 | $1,168,654 | $1,168,654 | $16.85 | | |
| SWHIDPRBD3 | P & R S Whidbey BOND3 | 0.1483535547 | $1,168,654 | $1,168,654 | $173.37 | | |
| SWHIDPRMT | P & R S Whidbey GEN | 0.4600000000 | $1,168,654 | $1,168,654 | $537.58 | | |
| | Total Tax Rate: | 7.8330503944 | | | | | |
| | | | | Taxes w/Current Exemptions: | $9,154.13 | | |
| | | | | Taxes w/o Exemptions: | $9,154.13 | | |
Improvement / Building
| Improvement #1: | RESIDENTIAL | State Code: | Y | 1539.0 sqft | Value: | $218,204 |
| Bathrooms: | 2 | Bedrooms: | 3 | | Ceiling: | DRY WALL SPRAYED | Exterior Wall/Cover: | WOOD SIDING | | Floor Covering: | CARPET/VINYL 80-20 | Floor Structure: | WOOD W/SUBFLOOR | | Foundation: | CONCRETE | Heating: | BASEBOARD ELECTRIC | | Interior Finish: | DRYWALL PAINT | Plumbing Fixture Cnt: | 9 | | Roof Slope: | 4" IN 12" | Roof Structure/Cover: | CJ ASPHALT |
|
| | Type | Description | Class CD | Sub Class CD | Year Built | Area |
| | BAS | BASE/MAIN FLOOR | 3 | 0 | 1970 | 999.0 |
| | UPS | UPPER STORY | 3 | 0 | 1970 | 540.0 |
| | BAW | BALCONY WOOD RAIL | 3 | 0 | 1970 | 40.0 |
| | OWP | OPEN WOOD PORCH W/STEPS | 3 | 0 | 1970 | 1114.0 |
| | OWC | OPEN WOOD PORCH W/STEPS/ROOF/C | 3 | 0 | 1970 | 72.0 |
| | DGR | DETACHED GARAGE | 3 | 0 | 1970 | 480.0 |
Sketch
Property Image
Land
| 1 | LB | LOW BANK | 0.1800 | 7840.80 | 45.00 | 0.00 | 1.00 | $950,000 | $0 |
| 2 | 55 | TIDES | 0.0000 | 0.00 | 45.00 | 0.00 | 1.00 | $450 | $0 |
Roll Value History
| 2026 | N/A | N/A | N/A | N/A | N/A |
| 2025 | $218,204 | $950,450 | $0 | $1,168,654 | $1,168,654 |
| 2024 | $226,082 | $950,450 | $0 | $1,176,532 | $1,176,532 |
| 2023 | $229,301 | $950,450 | $0 | $1,179,751 | $1,179,751 |
| 2022 | $210,546 | $900,450 | $0 | $1,110,996 | $1,110,996 |
| 2021 | $185,612 | $600,450 | $0 | $786,062 | $786,062 |
| 2020 | $176,287 | $630,450 | $0 | $806,737 | $806,737 |
| 2019 | $127,342 | $680,450 | $0 | $807,792 | $807,792 |
| 2018 | $128,954 | $600,450 | $0 | $729,404 | $729,404 |
| 2017 | $129,831 | $600,450 | $0 | $730,281 | $730,281 |
| 2016 | $131,586 | $600,450 | $0 | $732,036 | $732,036 |
| 2015 | $133,339 | $600,450 | $0 | $733,789 | $733,789 |
| 2014 | $122,071 | $600,450 | $0 | $722,521 | $722,521 |
| 2013 | $123,751 | $595,584 | $0 | $719,335 | $719,335 |
| 2012 | $125,426 | $595,584 | $0 | $721,010 | $721,010 |
| 2011 | $127,104 | $595,584 | $0 | $722,688 | $722,688 |
| 2010 | $137,392 | $595,584 | $0 | $732,976 | $732,976 |
| 2009 | $143,124 | $744,368 | $0 | $887,492 | $887,492 |
| 2008 | $133,717 | $744,368 | $0 | $878,085 | $878,085 |
| 2007 | $135,517 | $565,512 | $0 | $701,029 | $701,029 |
Deed and Sales History
| 1 | 10/21/2014 | SPWARDEED | Special Warranty Deed | KANEMORI, SCOTT F / SUSAN & | KANEMORI, SUSAN L DAHL | | | $0.00 | 17564 | 4368613 |
| 2 | 04/01/1993 | QCD | Quit Claim Deed | KANEMORI, SCOTT F | KANEMORI, SCOTT F | | | $0.00 | 31127 | 93005694 |
| 3 | 04/01/1993 | QCD | Quit Claim Deed | KANEMORI, SCOTT F | KANEMORI, SCOTT F | | | $0.00 | 31968 | 93010241 |
| 4 | 08/01/1991 | QCD | Quit Claim Deed | KANEMORI, SCOTT F | KANEMORI, SCOTT F | | | $0.00 | 12712 | 91011593 |
| 5 | 07/01/1987 | WD | Warranty Deed | COACH, LAURA J | KANEMORI, SCOTT F | | | $175,000.00 | 72195 | 87009931 |
| 6 | 06/01/1982 | REC | Real Estate Contract | COACH, LAURA J | COACH, LAURA J | | | $1.00 | 21258 | 396772 |
| 7 | 04/01/1969 | WD | Warranty Deed | COACH, RAYMOND M | COACH, LAURA J | | | $0.00 | 72120 | 87009586 |
| 8 | 01/01/1900 | OTHER | Other - Misc. Documents | Unknown | COACH, RAYMOND M | | | $0.00 | 0 | 0 |
Payout Agreement
| No payout information available.. |