Property
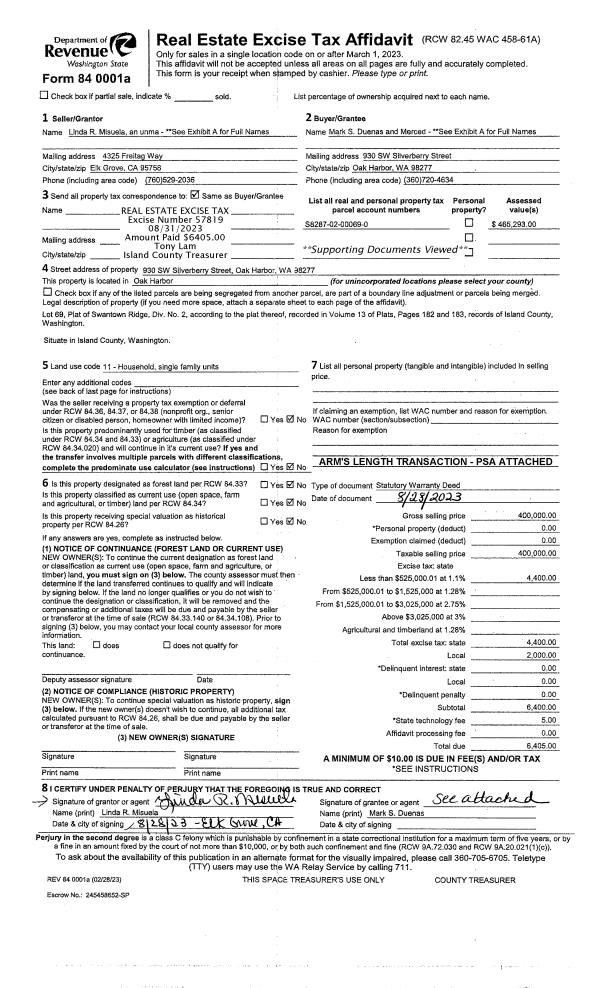
Account |
| Property ID: | 115388 | Abbreviated Legal Description: | 89 - BG SWCR GL1 E22' M/L TO ELN RD N26*E908' TPB S63*E200' S26*W50' N63*W200 N26*E50' TPB |
| Geographic ID: | R32805-076-4790 | Agent Code: | |
| Type: | Real | | |
| Tax Area: | 710 - APPRAISER-S Whid Schl Dist, outside Langley, improved & 1 acre or less | Land Use Code | 11 |
| Open Space: | N | DFL | N |
| Historic Property: | N | Remodel Property: | N |
| Multi-Family Redevelopment: | N | | |
| Township: | 28 | Section: | 05 |
| Range: | R3 |
Location |
| Address: | 7539 MAXWELTON RD CLINTON, WA 98236 | Mapsco: | |
| Neighborhood: | Cycle 4 | Map ID: | 691 |
| Neighborhood CD: | 4 |
Owner |
| Name: | FOGLIA, MARY BETH | Owner ID: | 309731 |
| Mailing Address: | JANE DAY LANNING 1447 20TH AVE SOUTHWEST SEATTLE, WA 98106 | % Ownership: | 100.0000000000% |
| | | Exemptions: | |
Taxes and Assessment Details
Values
| (+) Improvement Homesite Value: | + | $0 | |
| (+) Improvement Non-Homesite Value: | + | $227,659 | |
| (+) Land Homesite Value: | + | $0 | |
| (+) Land Non-Homesite Value: | + | $330,000 | |
| (+) Curr Use (HS): | + | $0 | $0 |
| (+) Curr Use (NHS): | + | $0 | $0 |
| | | -------------------------- | |
| (=) Market Value: | = | $557,659 | |
| (–) Productivity Loss: | – | $0 | |
| | | -------------------------- | |
| (=) Subtotal: | = | $557,659 | |
| (+) Senior Appraised Value: | + | $0 | |
| (+) Non-Senior Appraised Value: | + | $557,659 | |
| | | -------------------------- | |
| (=) Total Appraised Value: | = | $557,659 | |
| (–) Senior Exemption Loss: | – | $0 | |
| (–) Exemption Loss: | – | $0 | |
| | | -------------------------- | |
| (=) Taxable Value: | = | $557,659 | |
Taxing Jurisdiction
| Owner: | FOGLIA, MARY BETH | | |
| % Ownership: | 100.0000000000% | | |
| Total Value: | $557,659 | | |
| Tax Area: | 710 - APPRAISER-S Whid Schl Dist, outside Langley, improved & 1 acre or less |
| CF | Conservation Futures | 0.0313996660 | $557,659 | $557,659 | $17.51 | | |
| FIRE3 | Fire & Rescue Dist #3 S Whidbey GEN | 1.2130821753 | $557,659 | $557,659 | $676.49 | | |
| HOBOND | Hospital BOND | 0.1893405597 | $557,659 | $557,659 | $105.59 | | |
| HOGEN | Hospital GEN | 0.3848777722 | $557,659 | $557,659 | $214.63 | | |
| CE | County Current Expense | 0.3674210519 | $557,659 | $557,659 | $204.90 | | |
| CR | County Roads | 0.4614296361 | $557,659 | $557,659 | $257.32 | | |
| ISLANDEMS | Hospital GEN (EMS) | 0.4952018576 | $557,659 | $557,659 | $276.15 | | |
| LIB | Library Sno-Isle GEN | 0.3039084203 | $557,659 | $557,659 | $169.48 | | |
| PORTWHID | Port of S Whidbey GEN | 0.1086004714 | $557,659 | $557,659 | $60.56 | | |
| SCH206BOND | School 206 BOND | 0.5960237832 | $557,659 | $557,659 | $332.38 | | |
| SCH206CAP | School 206 CP | 0.3066144020 | $557,659 | $557,659 | $170.99 | | |
| SCH206MO | School 206 Enrichment | 0.4808755445 | $557,659 | $557,659 | $268.16 | | |
| ST | State School | 1.4761226122 | $557,659 | $557,659 | $823.17 | | |
| ST2 | State School Part 2 | 0.7953803475 | $557,659 | $557,659 | $443.55 | | |
| SWHIDPRBD | P & R S Whidbey BOND | 0.0144185398 | $557,659 | $557,659 | $8.04 | | |
| SWHIDPRBD3 | P & R S Whidbey BOND3 | 0.1483535547 | $557,659 | $557,659 | $82.73 | | |
| SWHIDPRMT | P & R S Whidbey GEN | 0.4600000000 | $557,659 | $557,659 | $256.52 | | |
| | Total Tax Rate: | 7.8330503944 | | | | | |
| | | | | Taxes w/Current Exemptions: | $4,368.17 | | |
| | | | | Taxes w/o Exemptions: | $4,368.17 | | |
Improvement / Building
| Improvement #1: | RESIDENTIAL | State Code: | Y | 1968.0 sqft | Value: | $227,659 |
| Bathrooms: | 2 | Bedrooms: | 3 | | Ceiling: | TONGUE & GROOVE | Exterior Wall/Cover: | WOOD SIDING | | Floor Covering: | CARPET/VINYL 80-20 | Floor Structure: | WOOD W/SUBFLOOR | | Foundation: | CONCRETE BLOCKS | Heating: | BASEBOARD ELECTRIC | | Interior Finish: | DRYWALL PAINT | Plumbing Fixture Cnt: | 9 | | Roof Slope: | 4" IN 12" | Roof Structure/Cover: | CJ ASPHALT |
|
| | Type | Description | Class CD | Sub Class CD | Year Built | Area |
| | BAS | BASE/MAIN FLOOR | 3 | 0 | 1948 | 1288.0 |
| | UPS | UPPER STORY | 3 | 0 | 1948 | 680.0 |
| | OWP | OPEN WOOD PORCH W/STEPS | 3 | 0 | 1948 | 51.0 |
| | OWP | OPEN WOOD PORCH W/STEPS | 3 | 0 | 1948 | 367.5 |
| | UTY | STORAGE/UTILITY | 3 | 0 | 1948 | 185.3 |
Sketch
Property Image
Land
| 1 | 14 | SQ (08001-12000) | 0.2300 | 10018.80 | 0.00 | 0.00 | 1.00 | $330,000 | $0 |
Roll Value History
| 2026 | N/A | N/A | N/A | N/A | N/A |
| 2025 | $227,659 | $330,000 | $0 | $557,659 | $557,659 |
| 2024 | $236,087 | $310,000 | $0 | $546,087 | $546,087 |
| 2023 | $239,320 | $300,000 | $0 | $539,320 | $539,320 |
| 2022 | $219,839 | $280,000 | $0 | $499,839 | $499,839 |
| 2021 | $193,882 | $230,000 | $0 | $423,882 | $423,882 |
| 2020 | $180,279 | $180,000 | $0 | $360,279 | $360,279 |
| 2019 | $138,005 | $190,000 | $0 | $328,005 | $328,005 |
| 2018 | $138,489 | $160,000 | $0 | $298,489 | $298,489 |
| 2017 | $139,459 | $140,000 | $0 | $279,459 | $279,459 |
| 2016 | $141,396 | $130,000 | $0 | $271,396 | $271,396 |
| 2015 | $143,332 | $130,000 | $0 | $273,332 | $273,332 |
| 2014 | $132,355 | $148,750 | $0 | $281,105 | $281,105 |
| 2013 | $134,269 | $148,750 | $0 | $283,019 | $283,019 |
| 2012 | $136,182 | $148,750 | $0 | $284,932 | $284,932 |
| 2011 | $138,095 | $175,000 | $0 | $313,095 | $313,095 |
| 2010 | $144,492 | $175,000 | $0 | $319,492 | $319,492 |
| 2009 | $151,117 | $200,000 | $0 | $351,117 | $351,117 |
| 2008 | $149,465 | $200,000 | $0 | $349,465 | $349,465 |
| 2007 | $151,655 | $190,000 | $0 | $341,655 | $341,655 |
Deed and Sales History
| 1 | 08/15/2023 | WD | Warranty Deed | EVANS, THOMAS A | FOGLIA, MARY BETH | | | $642,000.00 | 57665 | 4563688 |
|   | |
| 2 | 06/04/2014 | WD | Warranty Deed | KREBS SURVIVORS TRUST, CHRISTINE S | EVANS, THOMAS A | | | $216,000.00 | 15555 | 60561 |
|   | |
| 3 | 10/30/2000 | QCD | Quit Claim Deed | KREBS, CHRISTINE S | KREBS SURVIVORS TRUST, CHRISTI | | | $0.00 | 4487 | 20020674 |
| 4 | 02/10/1999 | QCD | Quit Claim Deed | KREBS, CHRISTINE S | KREBS, CHRISTINE S | | | $0.00 | 90579 | 99004048 |
| 5 | 11/01/1997 | WD | Warranty Deed | GROH, JOHN | KREBS, CHRISTINE S | | | $147,500.00 | 73988 | 97019703 |
| 6 | 09/01/1992 | QCD | Quit Claim Deed | GROH, JOHN & | GROH, JOHN | | | $0.00 | 24080 | 92019881 |
| 7 | 05/01/1987 | WD | Warranty Deed | BIGGS, RUSSELL M | GROH, JOHN & | | | $55,000.00 | 71149 | 87005722 |
| 8 | 11/01/1979 | EXECUTORD | Executor Deed | BROOKS, VADA M | BIGGS, RUSSELL M | | | $47,000.00 | 95425 | 361610 |
| 9 | 01/01/1900 | OTHER | Other - Misc. Documents | Unknown | BROOKS, VADA M | | | $0.00 | 0 | 0 |
Payout Agreement
| No payout information available.. |