| 1 | 07/31/2023 | PRD | Personal Representatives Deed | COLLINS RUDD, CARA | COLLINS, CATHERINE | | | $0.00 | 57528 | 4563092 |
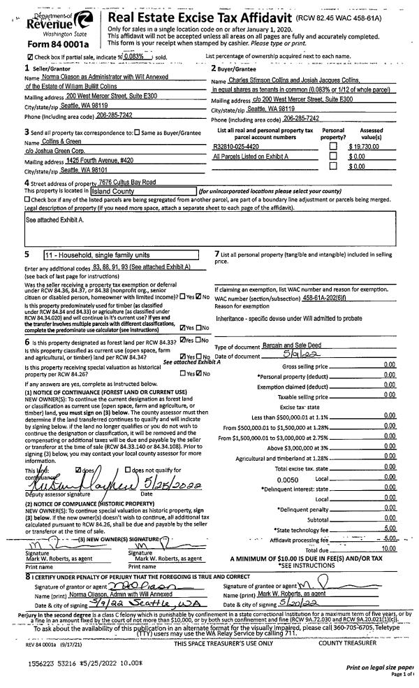
| 2 | 05/09/2022 | BARGSLD | Bargain And Sale Deed | COLLINS & GREEN | COLLINS, CHARLES STIMSON | | | $0.00 | 53216 | 4545647 |
| 3 | 07/19/2021 | QCD | Quit Claim Deed | COLLINS & GREEN | OLIASON, NORMA | | | $0.00 | 49248 | 4524914 |
| 4 | 02/17/2015 | QCD | Quit Claim Deed | LAIRD NORTON TYEE TRUST COMPANY TTEE | US BANK NA TTEE FRANCES G DAVIDSON REVOCABLE TRUST | | | $0.00 | 18871 | 437217 |
| 5 | 07/03/2014 | QCD | Quit Claim Deed | COLLINS TTEE, CHARLES S | COLLINS TTEE, CHARLES STIMSON | | | $0.00 | 16235 | 436255 |
| 6 | 02/20/2014 | QCD | Quit Claim Deed | US BANK OF WASHINGTON TRUSTEE OF THE CHARLES S COLLINS LIVING TRUST | COLLINS TTEE, CHARLES STIMSON | | | $0.00 | 16234 | 436254 |
| 7 | 02/20/2014 | QCD | Quit Claim Deed | US BANK OF WASHINGTON AS TRUSTEE OF JOSIAH COLLINS JR | COLLINS JR, JOSIAH | | | $0.00 | 16233 | 436253 |
| 8 | 01/06/2012 | QCD | Quit Claim Deed | COLLINS & GREEN | COLLINS & GREEN | | | $0.00 | 7510 | 4314579 |
| 9 | 02/27/2009 | QCD | Quit Claim Deed | COLLINS, & G | COLLINS & GREEN, | | | $0.00 | 90406 | 4245400 |
| 10 | 10/01/1993 | WD | Warranty Deed | COLLINS, & G | COLLINS, & G | | | $0.00 | 34257 | 93022148 |
| 11 | 12/01/1987 | QCD | Quit Claim Deed | COLLINS, & G | COLLINS, & G | | | $0.00 | 74028 | 87017488 |
| 12 | 05/01/1987 | QCD | Quit Claim Deed | COLLINS, & G | COLLINS, & G | | | $0.00 | 71360 | 87006648 |
| 13 | 04/01/1987 | QCD | Quit Claim Deed | COLLINS, & G | COLLINS, & G | | | $0.00 | 71438 | 87006929 |
| 14 | 03/01/1977 | CD | DNU - Correction Deed | COLLINS, & G | COLLINS, & G | | | $0.00 | 71153 | 0 |
| 15 | 09/01/1976 | CD | DNU - Correction Deed | COLLINS, & G | COLLINS, & G | | | $0.00 | 63260 | 0 |
| 16 | 01/01/1900 | OTHER | Other - Misc. Documents | Unknown | COLLINS, & G | | | $0.00 | 0 | 0 |