Property
Account |
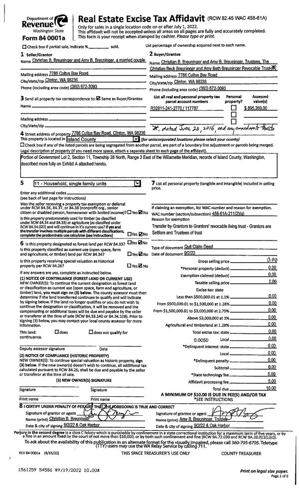
| Property ID: | 117787 | Abbreviated Legal Description: | 37 - IN GL 2: BG 108'E OF CTRLN SEC 11 E140' S TO ML W & N ALG ML TP S OF POB N PARA/W TPB EX CO RD SITE PLAN REVIEW SPR #10-94 |
| Geographic ID: | R32811-241-2770 | Agent Code: | |
| Type: | Real | | |
| Tax Area: | 712 - APPRAISER-S Whid Schl Dist, outside Langley, improved, greater than 1 acre | Land Use Code | 11 |
| Open Space: | N | DFL | N |
| Historic Property: | N | Remodel Property: | N |
| Multi-Family Redevelopment: | N | | |
| Township: | 28 | Section: | 11 |
| Range: | R3 |
Location |
| Address: | 7786 CULTUS BAY RD CLINTON, WA 98236 | Mapsco: | |
| Neighborhood: | Cycle 4 | Map ID: | 702 |
| Neighborhood CD: | 4 |
Owner |
| Name: | BREUNINGER TTEE, CHRISTIAN B | Owner ID: | 306063 |
| Mailing Address: | AMY B BREUNINGER TTEE 7786 CULTUS BAY RD CLINTON, WA 98236 | % Ownership: | 100.0000000000% |
| | | Exemptions: | |
Taxes and Assessment Details
Values
| (+) Improvement Homesite Value: | + | $0 | |
| (+) Improvement Non-Homesite Value: | + | $607,336 | |
| (+) Land Homesite Value: | + | $0 | |
| (+) Land Non-Homesite Value: | + | $425,000 | |
| (+) Curr Use (HS): | + | $0 | $0 |
| (+) Curr Use (NHS): | + | $0 | $0 |
| | | -------------------------- | |
| (=) Market Value: | = | $1,032,336 | |
| (–) Productivity Loss: | – | $0 | |
| | | -------------------------- | |
| (=) Subtotal: | = | $1,032,336 | |
| (+) Senior Appraised Value: | + | $0 | |
| (+) Non-Senior Appraised Value: | + | $1,032,336 | |
| | | -------------------------- | |
| (=) Total Appraised Value: | = | $1,032,336 | |
| (–) Senior Exemption Loss: | – | $0 | |
| (–) Exemption Loss: | – | $0 | |
| | | -------------------------- | |
| (=) Taxable Value: | = | $1,032,336 | |
Taxing Jurisdiction
| Owner: | BREUNINGER TTEE, CHRISTIAN B | | |
| % Ownership: | 100.0000000000% | | |
| Total Value: | $1,032,336 | | |
| Tax Area: | 712 - APPRAISER-S Whid Schl Dist, outside Langley, improved, greater than 1 acre |
| CF | Conservation Futures | 0.0313996660 | $1,032,336 | $1,032,336 | $32.42 | | |
| FIRE3 | Fire & Rescue Dist #3 S Whidbey GEN | 1.2130821753 | $1,032,336 | $1,032,336 | $1,252.31 | | |
| HOBOND | Hospital BOND | 0.1893405597 | $1,032,336 | $1,032,336 | $195.46 | | |
| HOGEN | Hospital GEN | 0.3848777722 | $1,032,336 | $1,032,336 | $397.32 | | |
| CE | County Current Expense | 0.3674210519 | $1,032,336 | $1,032,336 | $379.30 | | |
| CR | County Roads | 0.4614296361 | $1,032,336 | $1,032,336 | $476.35 | | |
| ISLANDEMS | Hospital GEN (EMS) | 0.4952018576 | $1,032,336 | $1,032,336 | $511.21 | | |
| LIB | Library Sno-Isle GEN | 0.3039084203 | $1,032,336 | $1,032,336 | $313.74 | | |
| PORTWHID | Port of S Whidbey GEN | 0.1086004714 | $1,032,336 | $1,032,336 | $112.11 | | |
| SCH206BOND | School 206 BOND | 0.5960237832 | $1,032,336 | $1,032,336 | $615.30 | | |
| SCH206CAP | School 206 CP | 0.3066144020 | $1,032,336 | $1,032,336 | $316.53 | | |
| SCH206MO | School 206 Enrichment | 0.4808755445 | $1,032,336 | $1,032,336 | $496.43 | | |
| ST | State School | 1.4761226122 | $1,032,336 | $1,032,336 | $1,523.85 | | |
| ST2 | State School Part 2 | 0.7953803475 | $1,032,336 | $1,032,336 | $821.10 | | |
| SWHIDPRBD | P & R S Whidbey BOND | 0.0144185398 | $1,032,336 | $1,032,336 | $14.88 | | |
| SWHIDPRBD3 | P & R S Whidbey BOND3 | 0.1483535547 | $1,032,336 | $1,032,336 | $153.15 | | |
| SWHIDPRMT | P & R S Whidbey GEN | 0.4600000000 | $1,032,336 | $1,032,336 | $474.87 | | |
| | Total Tax Rate: | 7.8330503944 | | | | | |
| | | | | Taxes w/Current Exemptions: | $8,086.33 | | |
| | | | | Taxes w/o Exemptions: | $8,086.33 | | |
Improvement / Building
| Improvement #1: | RESIDENTIAL | State Code: | Y | 3873.0 sqft | Value: | $607,336 |
| Bathrooms: | 3 | Bedrooms: | 3 | | Ceiling: | DRYWALL PAINTED | Cooling: | HEAT PUMP/CONV/V | | Exterior Wall/Cover: | SHINGLE | Floor Covering: | HARDWOOD/CARP 80-20 | | Floor Structure: | WOOD W/SUBFLOOR | Foundation: | CONCRETE | | Interior Finish: | DRYWALL PAINT | Plumbing Fixture Cnt: | 16 | | Roof Slope: | 6" IN 12" | Roof Structure/Cover: | CJ ASPHALT |
|
| | Type | Description | Class CD | Sub Class CD | Year Built | Area |
| | BAS | BASE/MAIN FLOOR | 4 | 0 | 1990 | 2306.0 |
| | DWN | DOWNSTAIRS LIVING AREA | 4 | 0 | 1990 | 351.0 |
| | OP1 | OPEN PORCH SLAB | 4 | 0 | 1990 | 878.0 |
| | BIG | BUILT IN GARAGE | 4 | 0 | 1990 | 675.0 |
| | OWP | OPEN WOOD PORCH W/STEPS | 4 | 0 | 1990 | 78.0 |
| | OWP | OPEN WOOD PORCH W/STEPS | 4 | 0 | 1990 | 487.0 |
| | OWR | OPEN WOOD PORCH W/STEPS/ROOF | 4 | 0 | 1990 | 232.0 |
| | DWN | DOWNSTAIRS LIVING AREA | 4 | 0 | 1990 | 1216.0 |
| | UTY | STORAGE/UTILITY | 4 | 0 | 1990 | 864.0 |
Sketch
| No sketches available for this property. |
Property Image
Land
| 1 | LB | LOW BANK | 1.5000 | 65340.00 | 80.00 | 0.00 | 1.00 | $425,000 | $0 |
Roll Value History
| 2026 | N/A | N/A | N/A | N/A | N/A |
| 2025 | $607,336 | $425,000 | $0 | $1,032,336 | $1,032,336 |
| 2024 | $614,811 | $375,000 | $0 | $989,811 | $989,811 |
| 2023 | $622,286 | $375,000 | $0 | $997,286 | $997,286 |
| 2022 | $570,269 | $325,000 | $0 | $895,269 | $895,269 |
| 2021 | $508,773 | $300,000 | $0 | $808,773 | $808,773 |
| 2020 | $421,278 | $300,000 | $0 | $721,278 | $721,278 |
| 2019 | $351,724 | $350,000 | $0 | $701,724 | $701,724 |
| 2018 | $352,656 | $300,000 | $0 | $652,656 | $652,656 |
| 2017 | $294,930 | $200,000 | $0 | $494,930 | $494,930 |
| 2016 | $298,465 | $200,000 | $0 | $498,465 | $498,465 |
| 2015 | $301,999 | $212,592 | $0 | $514,591 | $514,591 |
| 2014 | $298,465 | $212,592 | $0 | $511,057 | $511,057 |
| 2013 | $301,999 | $212,592 | $0 | $514,591 | $514,591 |
| 2012 | $305,532 | $212,592 | $0 | $518,124 | $518,124 |
| 2011 | $309,066 | $212,592 | $0 | $521,658 | $521,658 |
| 2010 | $316,297 | $212,592 | $0 | $528,889 | $528,889 |
| 2009 | $381,201 | $182,774 | $0 | $563,975 | $563,975 |
| 2008 | $398,190 | $158,523 | $0 | $556,713 | $556,713 |
| 2007 | $403,428 | $158,523 | $0 | $561,951 | $561,951 |
Deed and Sales History
| 1 | 09/02/2022 | QCD | Quit Claim Deed | BREUNINGER, AMY B | BREUNINGER TTEE, CHRISTIAN B | | | $0.00 | 54586 | 4551396 |
| 2 | 07/14/2017 | WD | Warranty Deed | SETLOW TRUSTEE, ROBERT E | BREUNINGER, AMY B | | | $695,000.00 | 30235 | 4426509 |
| 3 | 10/08/2009 | QCD | Quit Claim Deed | SETLOW, ROBERT E | SETLOW TRUSTEE, ROBERT E | | | $0.00 | 92395 | 4261604 |
| 4 | 01/20/2009 | QCD | Quit Claim Deed | SETLOW TRUSTEE, ROBERT E | SETLOW, ROBERT E | | | $0.00 | 90171 | 4243435 |
| 5 | 01/29/2003 | QCD | Quit Claim Deed | SETLOW, ROBERT E | SETLOW TRUSTEE, ROBERT E | | | $0.00 | 30341 | 4045850 |
| 6 | 10/17/2002 | QCD | Quit Claim Deed | SETLOW, ROBERT E | SETLOW, ROBERT E | | | $0.00 | 24194 | 4034860 |
| 7 | 09/09/1999 | WD | Warranty Deed | SCHAAF, ROBERT J | SETLOW, ROBERT E | | | $360,000.00 | 93902 | 99021748 |
| 8 | 01/01/1994 | OTHER | Other - Misc. Documents | SCHAAF, ROBERT J | SCHAAF, ROBERT J | | | $0.00 | 65721 | 0 |
| 9 | 05/01/1989 | WD | Warranty Deed | MAURER, MERRITT B | SCHAAF, ROBERT J | | | $30,000.00 | 92045 | 89006966 |
| 10 | 01/01/1900 | OTHER | Other - Misc. Documents | Unknown | MAURER, MERRITT B | | | $0.00 | 0 | 0 |
Payout Agreement
| No payout information available.. |