Property
Account |
| Property ID: | 118134 | Abbreviated Legal Description: | 9 - IN S/2 SW NE NW EX: BG SWCR OF NE NW N ON WLN SD NE NW 16 RODS (264') E10 RODS (165') S PARA/W WLN SD NE NW 16 RODS (264') TO SLN SD NE NW W10 RODS (165') TPB EX BAILEY RD ALSO EX: BG SWCR OF NE NW N87*E ALG SLN OF NE NW 629.06' TPB N3*E102.20' N87 |
| Geographic ID: | R32811-407-1670 | Agent Code: | |
| Type: | Real | | |
| Tax Area: | 712 - APPRAISER-S Whid Schl Dist, outside Langley, improved, greater than 1 acre | Land Use Code | 11 |
| Open Space: | N | DFL | N |
| Historic Property: | N | Remodel Property: | N |
| Multi-Family Redevelopment: | N | | |
| Township: | 28 | Section: | 11 |
| Range: | R3 |
Location |
| Address: | 7685 CULTUS BAY RD CLINTON, WA 98236 | Mapsco: | |
| Neighborhood: | Cycle 4 | Map ID: | 703 |
| Neighborhood CD: | 4 |
Owner |
| Name: | SCHMIDT, CLAYTON | Owner ID: | 314371 |
| Mailing Address: | FLAVIA SANTIBANEZ 7685 CULTUS BAY RD CLINTON, WA 98236 | % Ownership: | 100.0000000000% |
| | | Exemptions: | |
Taxes and Assessment Details
Values
| (+) Improvement Homesite Value: | + | $0 | |
| (+) Improvement Non-Homesite Value: | + | $451,765 | |
| (+) Land Homesite Value: | + | $0 | |
| (+) Land Non-Homesite Value: | + | $360,000 | |
| (+) Curr Use (HS): | + | $0 | $0 |
| (+) Curr Use (NHS): | + | $0 | $0 |
| | | -------------------------- | |
| (=) Market Value: | = | $811,765 | |
| (–) Productivity Loss: | – | $0 | |
| | | -------------------------- | |
| (=) Subtotal: | = | $811,765 | |
| (+) Senior Appraised Value: | + | $0 | |
| (+) Non-Senior Appraised Value: | + | $811,765 | |
| | | -------------------------- | |
| (=) Total Appraised Value: | = | $811,765 | |
| (–) Senior Exemption Loss: | – | $0 | |
| (–) Exemption Loss: | – | $0 | |
| | | -------------------------- | |
| (=) Taxable Value: | = | $811,765 | |
Taxing Jurisdiction
| Owner: | SCHMIDT, CLAYTON | | |
| % Ownership: | 100.0000000000% | | |
| Total Value: | $811,765 | | |
| Tax Area: | 712 - APPRAISER-S Whid Schl Dist, outside Langley, improved, greater than 1 acre |
| CF | Conservation Futures | 0.0313996660 | $811,765 | $811,765 | $25.49 | | |
| FIRE3 | Fire & Rescue Dist #3 S Whidbey GEN | 1.2130821753 | $811,765 | $811,765 | $984.74 | | |
| HOBOND | Hospital BOND | 0.1893405597 | $811,765 | $811,765 | $153.70 | | |
| HOGEN | Hospital GEN | 0.3848777722 | $811,765 | $811,765 | $312.43 | | |
| CE | County Current Expense | 0.3674210519 | $811,765 | $811,765 | $298.26 | | |
| CR | County Roads | 0.4614296361 | $811,765 | $811,765 | $374.57 | | |
| ISLANDEMS | Hospital GEN (EMS) | 0.4952018576 | $811,765 | $811,765 | $401.99 | | |
| LIB | Library Sno-Isle GEN | 0.3039084203 | $811,765 | $811,765 | $246.70 | | |
| PORTWHID | Port of S Whidbey GEN | 0.1086004714 | $811,765 | $811,765 | $88.16 | | |
| SCH206BOND | School 206 BOND | 0.5960237832 | $811,765 | $811,765 | $483.83 | | |
| SCH206CAP | School 206 CP | 0.3066144020 | $811,765 | $811,765 | $248.90 | | |
| SCH206MO | School 206 Enrichment | 0.4808755445 | $811,765 | $811,765 | $390.36 | | |
| ST | State School | 1.4761226122 | $811,765 | $811,765 | $1,198.26 | | |
| ST2 | State School Part 2 | 0.7953803475 | $811,765 | $811,765 | $645.66 | | |
| SWHIDPRBD | P & R S Whidbey BOND | 0.0144185398 | $811,765 | $811,765 | $11.70 | | |
| SWHIDPRBD3 | P & R S Whidbey BOND3 | 0.1483535547 | $811,765 | $811,765 | $120.43 | | |
| SWHIDPRMT | P & R S Whidbey GEN | 0.4600000000 | $811,765 | $811,765 | $373.41 | | |
| | Total Tax Rate: | 7.8330503944 | | | | | |
| | | | | Taxes w/Current Exemptions: | $6,358.59 | | |
| | | | | Taxes w/o Exemptions: | $6,358.59 | | |
Improvement / Building
| Improvement #1: | RESIDENTIAL | State Code: | Y | 2584.0 sqft | Value: | $451,765 |
| Bathrooms: | 2.5 | Bedrooms: | 2 | | Ceiling: | TONGUE & GROOVE | Cooling: | HEAT PUMP/CONV/V | | Exterior Wall/Cover: | SHINGLE | Floor Covering: | HARDWOOD/CARP 80-20 | | Floor Structure: | WOOD W/SUBFLOOR | Foundation: | CONCRETE | | Interior Finish: | DRYWALL PAINT | Plumbing Fixture Cnt: | 11 | | Roof Slope: | 6" IN 12" | Roof Structure/Cover: | BEAM ALUMINUM HEAVY |
|
| | Type | Description | Class CD | Sub Class CD | Year Built | Area |
| | BAS | BASE/MAIN FLOOR | 4 | 0 | 1975 | 1080.0 |
| | UPH | HALF STORY | 4 | 0 | 1975 | 560.0 |
| | DWN | DOWNSTAIRS LIVING AREA | 4 | 0 | 1975 | 944.0 |
| | OWP | OPEN WOOD PORCH W/STEPS | 4 | 0 | 1975 | 453.0 |
| | OWR | OPEN WOOD PORCH W/STEPS/ROOF | 4 | 0 | 1975 | 120.0 |
| | OP1 | OPEN PORCH SLAB | 4 | 0 | 1975 | 208.0 |
Sketch
| No sketches available for this property. |
Property Image
Land
| 1 | 32 | AC (03.01-09.99) | 3.6100 | 157251.60 | 0.00 | 0.00 | 1.00 | $360,000 | $0 |
Roll Value History
| 2026 | N/A | N/A | N/A | N/A | N/A |
| 2025 | $451,765 | $360,000 | $0 | $811,765 | $811,765 |
| 2024 | $293,395 | $340,000 | $0 | $633,395 | $633,395 |
| 2023 | $297,573 | $330,000 | $0 | $627,573 | $627,573 |
| 2022 | $273,235 | $280,000 | $0 | $553,235 | $553,235 |
| 2021 | $247,278 | $230,000 | $0 | $477,278 | $477,278 |
| 2020 | $187,418 | $190,000 | $0 | $377,418 | $377,418 |
| 2019 | $132,573 | $220,000 | $0 | $352,573 | $352,573 |
| 2018 | $133,039 | $210,000 | $0 | $343,039 | $343,039 |
| 2017 | $133,970 | $165,000 | $0 | $298,970 | $298,970 |
| 2016 | $135,829 | $165,000 | $0 | $300,829 | $300,829 |
| 2015 | $136,074 | $150,000 | $0 | $286,074 | $286,074 |
| 2014 | $134,988 | $150,000 | $0 | $284,988 | $284,988 |
| 2013 | $136,894 | $122,740 | $0 | $259,634 | $259,634 |
| 2012 | $138,802 | $136,000 | $0 | $274,802 | $274,802 |
| 2011 | $140,709 | $136,000 | $0 | $276,709 | $276,709 |
| 2010 | $150,802 | $136,000 | $0 | $286,802 | $286,802 |
| 2009 | $155,383 | $176,000 | $0 | $331,383 | $331,383 |
| 2008 | $149,644 | $200,000 | $0 | $349,644 | $349,644 |
| 2007 | $151,590 | $168,000 | $0 | $319,590 | $319,590 |
Deed and Sales History
| 1 | 10/24/2024 | WD | Warranty Deed | WAGNER, CHRISTOPHER J | SCHMIDT, CLAYTON | | | $825,000.00 | 61692 | 4578732 |
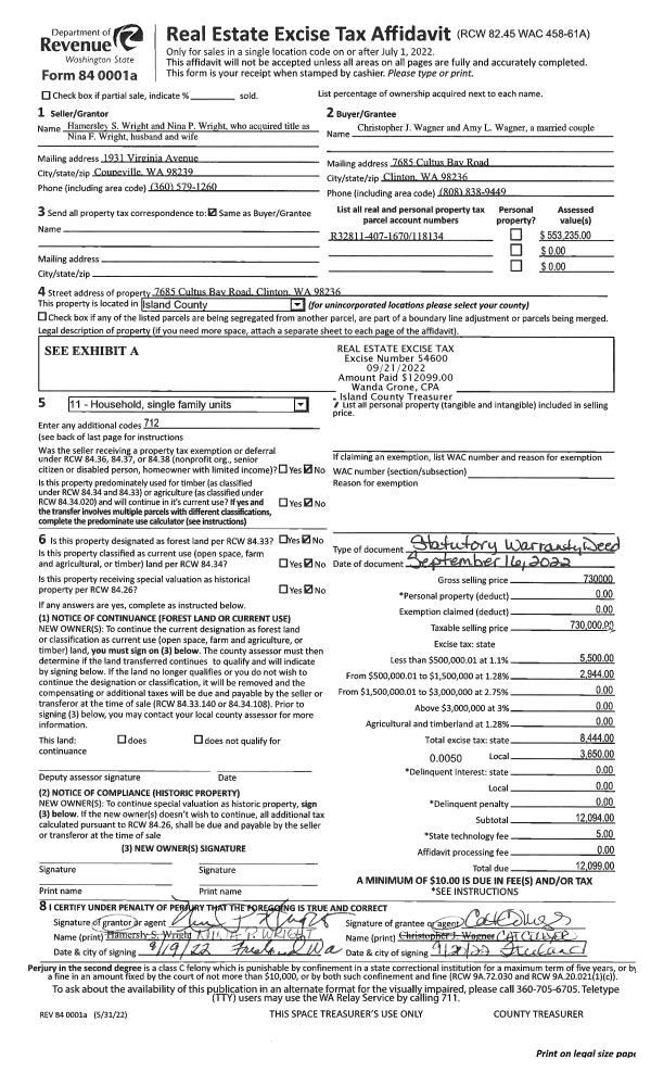
| 2 | 09/16/2022 | WD | Warranty Deed | WRIGHT, HAMERSLEY S | WAGNER, CHRISTOPHER J | | | $730,000.00 | 54600 | 4551467 |
Payout Agreement
| No payout information available.. |