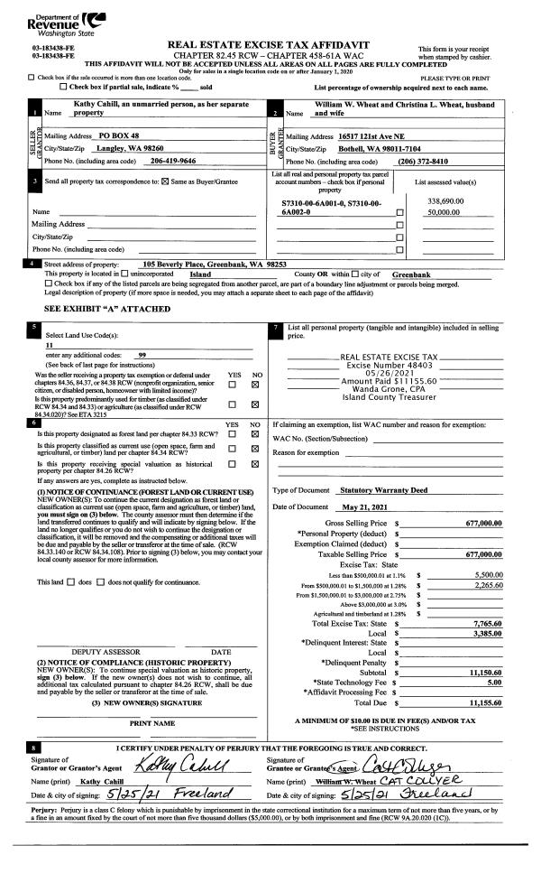
Property
Account |
| Property ID: | 118189 | Abbreviated Legal Description: | 1 - NE NE EX E/2 OF NE NE NE TGW & SUB TO EZ A#60492 AF#413514 |
| Geographic ID: | R32811-455-4650 | Agent Code: | |
| Type: | Real | | |
| Tax Area: | 712 - APPRAISER-S Whid Schl Dist, outside Langley, improved, greater than 1 acre | Land Use Code | 11 |
| Open Space: | N | DFL | N |
| Historic Property: | N | Remodel Property: | N |
| Multi-Family Redevelopment: | N | | |
| Township: | 28 | Section: | 11 |
| Range: | R3 |
Location |
| Address: | 7676 HELLMAN RD CLINTON, WA 98236 | Mapsco: | |
| Neighborhood: | Cycle 4 | Map ID: | 704 |
| Neighborhood CD: | 4 |
Owner |
| Name: | HELLMAN, ROBERT H | Owner ID: | 91649 |
| Mailing Address: | 7676 HELLMAN RD CLINTON, WA 98236-9426 | % Ownership: | 100.0000000000% |
| | | Exemptions: | |
Taxes and Assessment Details
Values
| (+) Improvement Homesite Value: | + | $0 | |
| (+) Improvement Non-Homesite Value: | + | $214,015 | |
| (+) Land Homesite Value: | + | $0 | |
| (+) Land Non-Homesite Value: | + | $590,000 | |
| (+) Curr Use (HS): | + | $0 | $0 |
| (+) Curr Use (NHS): | + | $0 | $0 |
| | | -------------------------- | |
| (=) Market Value: | = | $804,015 | |
| (–) Productivity Loss: | – | $0 | |
| | | -------------------------- | |
| (=) Subtotal: | = | $804,015 | |
| (+) Senior Appraised Value: | + | $0 | |
| (+) Non-Senior Appraised Value: | + | $804,015 | |
| | | -------------------------- | |
| (=) Total Appraised Value: | = | $804,015 | |
| (–) Senior Exemption Loss: | – | $0 | |
| (–) Exemption Loss: | – | $0 | |
| | | -------------------------- | |
| (=) Taxable Value: | = | $804,015 | |
Taxing Jurisdiction
| Owner: | HELLMAN, ROBERT H | | |
| % Ownership: | 100.0000000000% | | |
| Total Value: | $804,015 | | |
| Tax Area: | 712 - APPRAISER-S Whid Schl Dist, outside Langley, improved, greater than 1 acre |
| CF | Conservation Futures | 0.0313996660 | $804,015 | $804,015 | $25.25 | | |
| FIRE3 | Fire & Rescue Dist #3 S Whidbey GEN | 1.2130821753 | $804,015 | $804,015 | $975.34 | | |
| HOBOND | Hospital BOND | 0.1893405597 | $804,015 | $804,015 | $152.23 | | |
| HOGEN | Hospital GEN | 0.3848777722 | $804,015 | $804,015 | $309.45 | | |
| CE | County Current Expense | 0.3674210519 | $804,015 | $804,015 | $295.41 | | |
| CR | County Roads | 0.4614296361 | $804,015 | $804,015 | $371.00 | | |
| ISLANDEMS | Hospital GEN (EMS) | 0.4952018576 | $804,015 | $804,015 | $398.15 | | |
| LIB | Library Sno-Isle GEN | 0.3039084203 | $804,015 | $804,015 | $244.35 | | |
| PORTWHID | Port of S Whidbey GEN | 0.1086004714 | $804,015 | $804,015 | $87.32 | | |
| SCH206BOND | School 206 BOND | 0.5960237832 | $804,015 | $804,015 | $479.21 | | |
| SCH206CAP | School 206 CP | 0.3066144020 | $804,015 | $804,015 | $246.52 | | |
| SCH206MO | School 206 Enrichment | 0.4808755445 | $804,015 | $804,015 | $386.63 | | |
| ST | State School | 1.4761226122 | $804,015 | $804,015 | $1,186.82 | | |
| ST2 | State School Part 2 | 0.7953803475 | $804,015 | $804,015 | $639.50 | | |
| SWHIDPRBD | P & R S Whidbey BOND | 0.0144185398 | $804,015 | $804,015 | $11.59 | | |
| SWHIDPRBD3 | P & R S Whidbey BOND3 | 0.1483535547 | $804,015 | $804,015 | $119.28 | | |
| SWHIDPRMT | P & R S Whidbey GEN | 0.4600000000 | $804,015 | $804,015 | $369.85 | | |
| | Total Tax Rate: | 7.8330503944 | | | | | |
| | | | | Taxes w/Current Exemptions: | $6,297.90 | | |
| | | | | Taxes w/o Exemptions: | $6,297.90 | | |
Improvement / Building
| Improvement #1: | RESIDENTIAL | State Code: | Y | 1568.0 sqft | Value: | $214,015 |
| Bathrooms: | 1 | Bedrooms: | 3 | | Ceiling: | DRYWALL PAINTED | Cooling: | HEAT PUMP/CONV/V | | Exterior Wall/Cover: | WOOD SIDING | Floor Covering: | CARPET/VINYL 80-20 | | Floor Structure: | SLAB ABOVE GRADE | Foundation: | CONCRETE | | Interior Finish: | DRYWALL PAINT | Plumbing Fixture Cnt: | 6 | | Roof Slope: | 4" IN 12" | Roof Structure/Cover: | CJ ASPHALT |
|
| | Type | Description | Class CD | Sub Class CD | Year Built | Area |
| | BAS | BASE/MAIN FLOOR | 3 | 0 | 1957 | 1568.0 |
| | OP3 | OPEN PORCH W/ROOF | 3 | 0 | 1957 | 15.0 |
| | oPOL | POLE BARN | 3 | 0 | 1957 | 720.0 |
| | CPD | OPEN CARPORT DIRT FLOOR | 3 | 0 | 1957 | 600.0 |
| | UTY | STORAGE/UTILITY | 3 | 0 | 1957 | 280.0 |
| | UTY | STORAGE/UTILITY | 3 | 0 | 1957 | 600.0 |
Sketch
Property Image
Land
| 1 | 37 | AC (31.00-+) | 34.0000 | 1481040.00 | 0.00 | 0.00 | 1.00 | $590,000 | $0 |
Roll Value History
| 2026 | N/A | N/A | N/A | N/A | N/A |
| 2025 | $214,015 | $590,000 | $0 | $804,015 | $804,015 |
| 2024 | $217,286 | $560,000 | $0 | $777,286 | $777,286 |
| 2023 | $220,555 | $510,000 | $0 | $730,555 | $730,555 |
| 2022 | $203,352 | $500,000 | $0 | $703,352 | $703,352 |
| 2021 | $180,351 | $425,000 | $0 | $605,351 | $605,351 |
| 2020 | $148,762 | $425,000 | $0 | $573,762 | $573,762 |
| 2019 | $112,373 | $450,000 | $0 | $562,373 | $562,373 |
| 2018 | $112,758 | $330,000 | $0 | $442,758 | $442,758 |
| 2017 | $113,531 | $305,000 | $0 | $418,531 | $418,531 |
| 2016 | $115,076 | $305,000 | $0 | $420,076 | $420,076 |
| 2015 | $110,888 | $305,000 | $0 | $415,888 | $415,888 |
| 2014 | $89,628 | $179,440 | $0 | $269,068 | $269,068 |
| 2013 | $91,249 | $179,440 | $0 | $270,689 | $270,689 |
| 2012 | $92,870 | $179,440 | $0 | $272,310 | $272,310 |
| 2011 | $94,491 | $179,440 | $0 | $273,931 | $273,931 |
| 2010 | $105,505 | $179,440 | $0 | $284,945 | $284,945 |
| 2009 | $110,176 | $193,840 | $0 | $304,016 | $304,016 |
| 2008 | $111,828 | $166,840 | $0 | $278,668 | $278,668 |
| 2007 | $113,480 | $166,840 | $0 | $280,320 | $280,320 |
Deed and Sales History
| 1 | 09/01/1995 | QCD | Quit Claim Deed | HELLMAN, ROBERT H | HELLMAN, ROBERT H | | | $0.00 | 53959 | 95018207 |
| 2 | 01/01/1992 | QCD | Quit Claim Deed | HELLMAN, HOWARD | HELLMAN, ROBERT H | | | $0.00 | 20188 | 92000734 |
| 3 | 01/01/1900 | OTHER | Other - Misc. Documents | Unknown | HELLMAN, HOWARD | | | $0.00 | 0 | 0 |
Payout Agreement
| No payout information available.. |