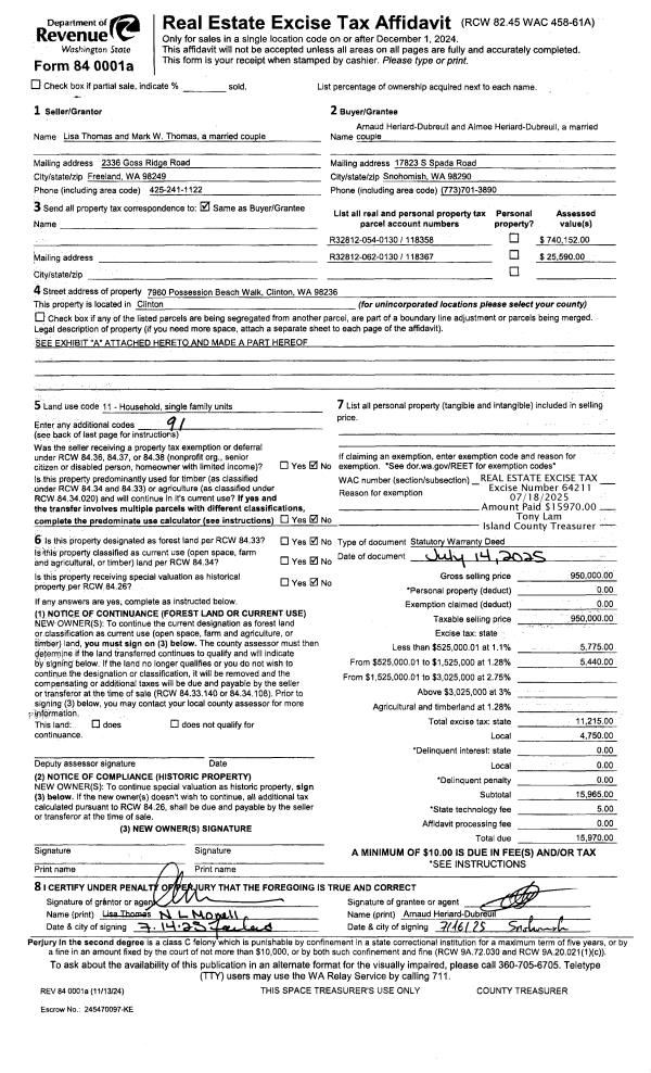
Property
Account |
| Property ID: | 118358 | Abbreviated Legal Description: | 13 - IN GL4:BG 510'N OF SW CR GL4 N80'E TO ML S ALG ML TP E OF TPB W TPB TGW ADJ TIDELANDS |
| Geographic ID: | R32812-054-0130 | Agent Code: | |
| Type: | Real | | |
| Tax Area: | 710 - APPRAISER-S Whid Schl Dist, outside Langley, improved & 1 acre or less | Land Use Code | 11 |
| Open Space: | N | DFL | N |
| Historic Property: | N | Remodel Property: | N |
| Multi-Family Redevelopment: | N | | |
| Township: | 28 | Section: | 12 |
| Range: | R3 |
Location |
| Address: | 7960 POSSESSION BEACH WALK CLINTON, WA 98236 | Mapsco: | |
| Neighborhood: | Cycle 4 | Map ID: | 705 |
| Neighborhood CD: | 4 |
Owner |
| Name: | HERIARD-DUBREULL, ARNAUD | Owner ID: | 317442 |
| Mailing Address: | AIMEE HERIARD-DUBREULL 17823 S SPADA RD SNOHOMISH, WA 98290 | % Ownership: | 100.0000000000% |
| | | Exemptions: | |
Taxes and Assessment Details
Values
| (+) Improvement Homesite Value: | + | N/A | |
| (+) Improvement Non-Homesite Value: | + | N/A | |
| (+) Land Homesite Value: | + | N/A | |
| (+) Land Non-Homesite Value: | + | N/A | Ag / Timber Use Value |
| (+) Curr Use (HS): | + | N/A | N/A |
| (+) Curr Use (NHS): | + | N/A | N/A |
| | | -------------------------- | |
| (=) Market Value: | = | N/A | |
| (–) Productivity Loss: | – | N/A | |
| | | -------------------------- | |
| (=) Subtotal: | = | N/A | |
| (+) Senior Appraised Value: | + | N/A | |
| (+) Non-Senior Appraised Value: | + | N/A | |
| | | -------------------------- | |
| (=) Total Appraised Value: | = | N/A | |
| (–) Senior Exemption Loss: | – | N/A | |
| (–) Exemption Loss: | – | N/A | |
| | | -------------------------- | |
| (=) Taxable Value: | = | N/A | |
Taxing Jurisdiction
| Owner: | HERIARD-DUBREULL, ARNAUD | | |
| % Ownership: | 100.0000000000% | | |
| Total Value: | N/A | | |
| Tax Area: | 710 - APPRAISER-S Whid Schl Dist, outside Langley, improved & 1 acre or less |
| CF | Conservation Futures | N/A | N/A | N/A | N/A | | |
| WCD | Whidbey Conservation District | N/A | N/A | N/A | N/A | | |
| FIRE3 | Fire & Rescue Dist #3 S Whidbey GEN | N/A | N/A | N/A | N/A | | |
| HOBOND | Hospital BOND | N/A | N/A | N/A | N/A | | |
| HOGEN | Hospital GEN | N/A | N/A | N/A | N/A | | |
| CE | County Current Expense | N/A | N/A | N/A | N/A | | |
| CR | County Roads | N/A | N/A | N/A | N/A | | |
| ISLANDEMS | Hospital GEN (EMS) | N/A | N/A | N/A | N/A | | |
| LIB | Library Sno-Isle GEN | N/A | N/A | N/A | N/A | | |
| PORTWHID | Port of S Whidbey GEN | N/A | N/A | N/A | N/A | | |
| SCH206CAP | School 206 CP | N/A | N/A | N/A | N/A | | |
| SCH206MO | School 206 Enrichment | N/A | N/A | N/A | N/A | | |
| ST | State School | N/A | N/A | N/A | N/A | | |
| ST2 | State School Part 2 | N/A | N/A | N/A | N/A | | |
| SWHIDPRBD | P & R S Whidbey BOND | N/A | N/A | N/A | N/A | | |
| SWHIDPRBD2 | P & R S Whidbey BOND2 | N/A | N/A | N/A | N/A | | |
| SWHIDPRMT | P & R S Whidbey GEN | N/A | N/A | N/A | N/A | | |
| | Total Tax Rate: | N/A | | | | | |
| | | | | Taxes w/Current Exemptions: | N/A | | |
| | | | | Taxes w/o Exemptions: | N/A | | |
Improvement / Building
| Improvement #1: | RESIDENTIAL | State Code: | Y | 1680.0 sqft | Value: | N/A |
| Bathrooms: | 1 | Bedrooms: | 3 | | Ceiling: | BEAM T&G | Exterior Wall/Cover: | SHINGLE | | Floor Covering: | SOFTWOOD/VINYL 80-20 | Floor Structure: | WOOD W/SUBFLOOR | | Foundation: | CONCRETE | Heating: | BASEBOARD ELECTRIC | | Interior Finish: | DRYWALL PAINT | Plumbing Fixture Cnt: | 6 | | Roof Slope: | 4" IN 12" | Roof Structure/Cover: | BEAM ALUMINUM HEAVY |
|
| | Type | Description | Class CD | Sub Class CD | Year Built | Area |
| | BAS | BASE/MAIN FLOOR | 3 | 0 | 1940 | 1170.0 |
| | UPH | HALF STORY | 3 | 0 | 1940 | 510.0 |
| | UB6 | BASEMENT UNFINISHED 6" | 3 | 0 | 1940 | 720.0 |
| | OWP | OPEN WOOD PORCH W/STEPS | 3 | 0 | 1940 | 280.0 |
| | OWC | OPEN WOOD PORCH W/STEPS/ROOF/C | 3 | 0 | 1940 | 80.0 |
| | OWP | OPEN WOOD PORCH W/STEPS | 3 | 0 | 1940 | 42.0 |
Sketch
Property Image
Land
| 1 | LB | LOW BANK | 0.5000 | 21780.00 | 80.00 | 0.00 | 1.00 | N/A | N/A |
| 2 | 55 | TIDES | 0.0000 | 0.00 | 80.00 | 0.00 | 1.00 | N/A | N/A |
Roll Value History
| 2026 | N/A | N/A | N/A | N/A | N/A |
| 2025 | $314,352 | $425,800 | $0 | $740,152 | $740,152 |
| 2024 | $284,795 | $375,800 | $0 | $660,595 | $660,595 |
| 2023 | $234,766 | $325,800 | $0 | $560,566 | $560,566 |
| 2022 | $215,571 | $325,800 | $0 | $541,371 | $541,371 |
| 2021 | $190,046 | $300,800 | $0 | $490,846 | $490,846 |
| 2020 | $149,239 | $300,800 | $0 | $450,039 | $450,039 |
| 2019 | $75,338 | $325,800 | $0 | $401,138 | $401,138 |
| 2018 | $75,607 | $250,800 | $0 | $326,407 | $326,407 |
| 2017 | $76,142 | $230,000 | $0 | $306,142 | $306,142 |
| 2016 | $77,214 | $300,800 | $0 | $378,014 | $378,014 |
| 2015 | $78,287 | $300,800 | $0 | $379,087 | $379,087 |
| 2014 | $79,359 | $300,800 | $0 | $380,159 | $380,159 |
| 2013 | $80,432 | $321,171 | $0 | $401,603 | $401,603 |
| 2012 | $81,503 | $321,171 | $0 | $402,674 | $402,674 |
| 2011 | $82,577 | $321,171 | $0 | $403,748 | $403,748 |
| 2010 | $87,560 | $321,171 | $0 | $408,731 | $408,731 |
| 2009 | $91,278 | $321,171 | $0 | $412,449 | $412,449 |
| 2008 | $68,426 | $321,171 | $0 | $389,597 | $389,597 |
| 2007 | $69,349 | $320,611 | $0 | $389,960 | $389,960 |
Deed and Sales History
| 1 | 07/14/2025 | WD | Warranty Deed | THOMAS, LISA | HERIARD-DUBREULL, ARNAUD | | | $950,000.00 | 64211 | 4588514 |
|   | |
| 2 | 07/19/2019 | WD | Warranty Deed | ROBERTS, WARREN E | THOMAS, LISA | | | $495,000.00 | 39640 | 4468359 |
|   | |
Payout Agreement
| No payout information available.. |