Property
Account |
| Property ID: | 11855 | Abbreviated Legal Description: | 36 TAFT DC - BG WLN OLD CRESCENT HBR RD 825.92'N OF NECR OAK GROVE W1059.42' S644.69' W120' TPB W60' S150' M/L TO NLN OAK AVE ELY ALG NLN SD AVE 60.06' M/L TP S OF TPB N TPB |
| Geographic ID: | R13202-363-4340 | Agent Code: | |
| Type: | Real | | |
| Tax Area: | 100 - APPRAISER-OH Schl Dist, in OH | Land Use Code | 11 |
| Open Space: | N | DFL | N |
| Historic Property: | N | Remodel Property: | N |
| Multi-Family Redevelopment: | N | | |
| Township: | 32 | Section: | 02 |
| Range: | R1 |
Location |
| Address: | 1398 SE 8TH AVE OAK HARBOR, WA 98277 | Mapsco: | |
| Neighborhood: | Cycle 1 | Map ID: | 89 |
| Neighborhood CD: | 1 |
Owner |
| Name: | JONES, DEBRA | Owner ID: | 304778 |
| Mailing Address: | 1398 SE 8TH AVE OAK HARBOR, WA 98277 | % Ownership: | 100.0000000000% |
| | | Exemptions: | |
Taxes and Assessment Details
Values
| (+) Improvement Homesite Value: | + | $0 | |
| (+) Improvement Non-Homesite Value: | + | $440,055 | |
| (+) Land Homesite Value: | + | $0 | |
| (+) Land Non-Homesite Value: | + | $180,000 | |
| (+) Curr Use (HS): | + | $0 | $0 |
| (+) Curr Use (NHS): | + | $0 | $0 |
| | | -------------------------- | |
| (=) Market Value: | = | $620,055 | |
| (–) Productivity Loss: | – | $0 | |
| | | -------------------------- | |
| (=) Subtotal: | = | $620,055 | |
| (+) Senior Appraised Value: | + | $0 | |
| (+) Non-Senior Appraised Value: | + | $620,055 | |
| | | -------------------------- | |
| (=) Total Appraised Value: | = | $620,055 | |
| (–) Senior Exemption Loss: | – | $0 | |
| (–) Exemption Loss: | – | $0 | |
| | | -------------------------- | |
| (=) Taxable Value: | = | $620,055 | |
Taxing Jurisdiction
| Owner: | JONES, DEBRA | | |
| % Ownership: | 100.0000000000% | | |
| Total Value: | $620,055 | | |
| Tax Area: | 100 - APPRAISER-OH Schl Dist, in OH |
| CF | Conservation Futures | 0.0313996660 | $620,055 | $620,055 | $19.47 | | |
| CEM1 | Cemetery #1 | 0.0040018856 | $620,055 | $620,055 | $2.48 | | |
| COH | City of Oak Harbor | 2.3090730572 | $620,055 | $620,055 | $1,431.75 | | |
| OAKBOND | City of Oak Harbor BOND | 0.1902260131 | $620,055 | $620,055 | $117.95 | | |
| HOBOND | Hospital BOND | 0.1893405597 | $620,055 | $620,055 | $117.40 | | |
| HOGEN | Hospital GEN | 0.3848777722 | $620,055 | $620,055 | $238.65 | | |
| CE | County Current Expense | 0.3674210519 | $620,055 | $620,055 | $227.82 | | |
| ISLANDEMS | Hospital GEN (EMS) | 0.4952018576 | $620,055 | $620,055 | $307.05 | | |
| LIB | Library Sno-Isle GEN | 0.3039084203 | $620,055 | $620,055 | $188.44 | | |
| NWHIDPRMT | P & R N Whidbey GEN | 0.1990272349 | $620,055 | $620,055 | $123.41 | | |
| SCH201MO | School 201 Enrichment | 2.3851112745 | $620,055 | $620,055 | $1,478.90 | | |
| ST | State School | 1.4761226122 | $620,055 | $620,055 | $915.28 | | |
| ST2 | State School Part 2 | 0.7953803475 | $620,055 | $620,055 | $493.18 | | |
| | Total Tax Rate: | 9.1310917527 | | | | | |
| | | | | Taxes w/Current Exemptions: | $5,661.78 | | |
| | | | | Taxes w/o Exemptions: | $5,661.78 | | |
Improvement / Building
| Improvement #1: | RESIDENTIAL | State Code: | Y | 2256.7 sqft | Value: | $440,055 |
| Bathrooms: | 3 | Bedrooms: | 3 | | Ceiling: | PLASTER PAINTED | Cooling: | HEAT PUMP/CONV/V | | Exterior Wall/Cover: | VINYL | Floor Covering: | VINYL/HARDWOOD 20-80 | | Floor Structure: | WOOD W/SUBFLOOR | Foundation: | CONCRETE | | Interior Finish: | PLASTER | Plumbing Fixture Cnt: | 12 | | Roof Slope: | 10" IN 12" | Roof Structure/Cover: | CJ ASPHALT |
|
| | Type | Description | Class CD | Sub Class CD | Year Built | Area |
| | BAS | BASE/MAIN FLOOR | 4 | 0 | 1936 | 1310.6 |
| | DWN | DOWNSTAIRS LIVING AREA | 4 | 0 | 1936 | 462.1 |
| | OWP | OPEN WOOD PORCH W/STEPS | 4 | 0 | 1936 | 308.0 |
| | ENP | ENCLOSED PORCH | 4 | 0 | 1936 | 73.2 |
| | UPH | HALF STORY | 4 | 0 | 1936 | 484.0 |
| | DGR | DETACHED GARAGE | 4 | 0 | 1936 | 576.0 |
| | OP2 | OPEN PORCH W/STEPS | 4 | 0 | 1936 | 90.8 |
Sketch
Property Image
Land
| 1 | 14 | SQ (08001-12000) | 0.2000 | 8712.00 | 0.00 | 0.00 | 1.00 | $180,000 | $0 |
Roll Value History
| 2026 | N/A | N/A | N/A | N/A | N/A |
| 2025 | $440,055 | $180,000 | $0 | $620,055 | $620,055 |
| 2024 | $445,751 | $170,000 | $0 | $615,751 | $615,751 |
| 2023 | $451,448 | $170,000 | $0 | $621,448 | $621,448 |
| 2022 | $333,287 | $160,000 | $0 | $493,287 | $493,287 |
| 2021 | $293,618 | $120,000 | $0 | $413,618 | $413,618 |
| 2020 | $286,493 | $100,000 | $0 | $386,493 | $386,493 |
| 2019 | $212,700 | $160,000 | $0 | $372,700 | $372,700 |
| 2018 | $213,370 | $125,000 | $0 | $338,370 | $338,370 |
| 2017 | $202,688 | $110,000 | $0 | $312,688 | $312,688 |
| 2016 | $205,126 | $90,000 | $0 | $295,126 | $295,126 |
| 2015 | $207,563 | $70,000 | $0 | $277,563 | $277,563 |
| 2014 | $210,001 | $55,000 | $0 | $265,001 | $265,001 |
| 2013 | $212,438 | $55,000 | $0 | $267,438 | $267,438 |
| 2012 | $214,876 | $65,000 | $0 | $279,876 | $279,876 |
| 2011 | $225,917 | $50,000 | $0 | $275,917 | $275,917 |
| 2010 | $236,930 | $50,000 | $0 | $286,930 | $286,930 |
| 2009 | $246,660 | $60,000 | $0 | $306,660 | $306,660 |
| 2008 | $249,817 | $78,000 | $0 | $327,817 | $327,817 |
| 2007 | $204,532 | $78,000 | $0 | $282,532 | $282,532 |
Deed and Sales History
| 1 | 06/06/2022 | WD | Warranty Deed | STEPHAN, ROGER L | JONES, DEBRA | | | $600,000.00 | 53489 | 4546771 |
| 2 | 12/10/2019 | QCD | Quit Claim Deed | STEPHAN, ELIZABETH P | STEPHAN, ROGER L | | | $0.00 | 41450 | 4477428 |
| 3 | 12/06/2019 | WD | Warranty Deed | STEFFEN, DEBORAH A | STEPHAN, ROGER L | | | $405,000.00 | 41449 | 4477427 |
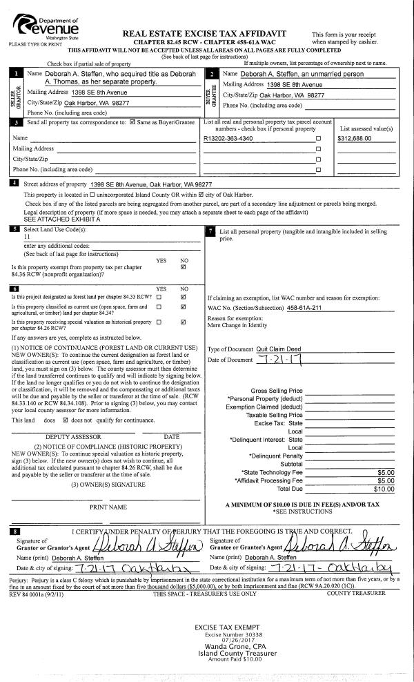
| 4 | 07/21/2017 | QCD | Quit Claim Deed | THOMAS, DEBORAH A | STEFFEN, DEBORAH A | | | $0.00 | 30338 | 4426910 |
| 5 | 03/11/2013 | ESTSEPPROP | Establish Separate Property | THOMAS, SCOTT R | THOMAS, DEBORAH A | | | $0.00 | 10654 | 4335302 |
| 6 | 12/29/2009 | WD | Warranty Deed | GIBBONS, ANGELA R | THOMAS, SCOTT R | | | $284,000.00 | 48 | 4266637 |
| 7 | 11/21/2001 | WD | Warranty Deed | LOVENG, GUNNAR W | GIBBONS, ANGELA R | | | $174,900.00 | 14506 | 4004057 |
| 8 | 12/01/1989 | WD | Warranty Deed | SCHEELER, ROBERT L | LOVENG, GUNNAR W | | | $77,000.00 | 95659 | 89018183 |
| 9 | 03/01/1978 | OTHER | Other - Misc. Documents | Unknown | SCHEELER, ROBERT L | | | $39,700.00 | 81171 | 3295470 |
Payout Agreement
| No payout information available.. |