Property
Account |
| Property ID: | 118624 | Abbreviated Legal Description: | IN GL2: E217.8' OF W617.8' OF N200' & N30' OF W400' OF PT GL2 DESC: BG W/4 CR SEC 12 N1*W542.64' TPB N1*W300 .07' S88*E1040.3' S300' N88*W1026.7' TPB (LOT B SP 78-121 AF#343929) |
| Geographic ID: | R32812-346-0500 | Agent Code: | |
| Type: | Real | | |
| Tax Area: | 712 - APPRAISER-S Whid Schl Dist, outside Langley, improved, greater than 1 acre | Land Use Code | 11 |
| Open Space: | N | DFL | N |
| Historic Property: | N | Remodel Property: | N |
| Multi-Family Redevelopment: | N | | |
| Township: | 28 | Section: | 12 |
| Range: | R3 |
Location |
| Address: | 7739 SUMMIT VIEW LN CLINTON, WA 98236 | Mapsco: | |
| Neighborhood: | Cycle 4 | Map ID: | 706 |
| Neighborhood CD: | 4 |
Owner |
| Name: | CONSTANTINO, STEVEN | Owner ID: | 303463 |
| Mailing Address: | LAURIE H CONSTANTINO 7739 SUMMIT VIEW LN CLINTON, WA 98236-8943 | % Ownership: | 100.0000000000% |
| | | Exemptions: | |
Taxes and Assessment Details
Values
| (+) Improvement Homesite Value: | + | $0 | |
| (+) Improvement Non-Homesite Value: | + | $503,771 | |
| (+) Land Homesite Value: | + | $0 | |
| (+) Land Non-Homesite Value: | + | $350,000 | |
| (+) Curr Use (HS): | + | $0 | $0 |
| (+) Curr Use (NHS): | + | $0 | $0 |
| | | -------------------------- | |
| (=) Market Value: | = | $853,771 | |
| (–) Productivity Loss: | – | $0 | |
| | | -------------------------- | |
| (=) Subtotal: | = | $853,771 | |
| (+) Senior Appraised Value: | + | $0 | |
| (+) Non-Senior Appraised Value: | + | $853,771 | |
| | | -------------------------- | |
| (=) Total Appraised Value: | = | $853,771 | |
| (–) Senior Exemption Loss: | – | $0 | |
| (–) Exemption Loss: | – | $0 | |
| | | -------------------------- | |
| (=) Taxable Value: | = | $853,771 | |
Taxing Jurisdiction
| Owner: | CONSTANTINO, STEVEN | | |
| % Ownership: | 100.0000000000% | | |
| Total Value: | $853,771 | | |
| Tax Area: | 712 - APPRAISER-S Whid Schl Dist, outside Langley, improved, greater than 1 acre |
| CF | Conservation Futures | 0.0313996660 | $853,771 | $853,771 | $26.81 | | |
| FIRE3 | Fire & Rescue Dist #3 S Whidbey GEN | 1.2130821753 | $853,771 | $853,771 | $1,035.69 | | |
| HOBOND | Hospital BOND | 0.1893405597 | $853,771 | $853,771 | $161.65 | | |
| HOGEN | Hospital GEN | 0.3848777722 | $853,771 | $853,771 | $328.60 | | |
| CE | County Current Expense | 0.3674210519 | $853,771 | $853,771 | $313.69 | | |
| CR | County Roads | 0.4614296361 | $853,771 | $853,771 | $393.96 | | |
| ISLANDEMS | Hospital GEN (EMS) | 0.4952018576 | $853,771 | $853,771 | $422.79 | | |
| LIB | Library Sno-Isle GEN | 0.3039084203 | $853,771 | $853,771 | $259.47 | | |
| PORTWHID | Port of S Whidbey GEN | 0.1086004714 | $853,771 | $853,771 | $92.72 | | |
| SCH206BOND | School 206 BOND | 0.5960237832 | $853,771 | $853,771 | $508.87 | | |
| SCH206CAP | School 206 CP | 0.3066144020 | $853,771 | $853,771 | $261.78 | | |
| SCH206MO | School 206 Enrichment | 0.4808755445 | $853,771 | $853,771 | $410.56 | | |
| ST | State School | 1.4761226122 | $853,771 | $853,771 | $1,260.27 | | |
| ST2 | State School Part 2 | 0.7953803475 | $853,771 | $853,771 | $679.07 | | |
| SWHIDPRBD | P & R S Whidbey BOND | 0.0144185398 | $853,771 | $853,771 | $12.31 | | |
| SWHIDPRBD3 | P & R S Whidbey BOND3 | 0.1483535547 | $853,771 | $853,771 | $126.66 | | |
| SWHIDPRMT | P & R S Whidbey GEN | 0.4600000000 | $853,771 | $853,771 | $392.73 | | |
| | Total Tax Rate: | 7.8330503944 | | | | | |
| | | | | Taxes w/Current Exemptions: | $6,687.63 | | |
| | | | | Taxes w/o Exemptions: | $6,687.63 | | |
Improvement / Building
| Improvement #1: | RESIDENTIAL | State Code: | Y | 1770.5 sqft | Value: | $503,771 |
| Bathrooms: | 2.5 | Bedrooms: | 3 | | Ceiling: | DRYWALL PAINTED | Exterior Wall/Cover: | WOOD SIDING | | Floor Covering: | HARDWOOD/CARP 60-40 | Floor Structure: | WOOD W/SUBFLOOR | | Foundation: | CONCRETE | Heating: | FHA GAS | | Interior Finish: | DRYWALL PAINT | Plumbing Fixture Cnt: | 13 | | Roof Slope: | 12" IN 12" | Roof Structure/Cover: | CJ ASPHALT |
|
| | Type | Description | Class CD | Sub Class CD | Year Built | Area |
| | BAS | BASE/MAIN FLOOR | 4 | 0 | 1997 | 1249.5 |
| | BIG | BUILT IN GARAGE | 4 | 0 | 1997 | 420.0 |
| | UPS | UPPER STORY | 4 | 0 | 1997 | 521.0 |
| | ATU | ATTIC UNFINISHED | 4 | 0 | 1997 | 224.0 |
| | OWP | OPEN WOOD PORCH W/STEPS | 4 | 0 | 1997 | 306.4 |
| | OWR | OPEN WOOD PORCH W/STEPS/ROOF | 4 | 0 | 1997 | 87.5 |
| | OP1 | OPEN PORCH SLAB | 4 | 0 | 1997 | 56.0 |
| | UTY | STORAGE/UTILITY | 4 | 0 | 1997 | 120.0 |
Sketch
| No sketches available for this property. |
Property Image
Land
| 1 | 17 | AC (01.01-02.00) | 1.2800 | 55756.80 | 0.00 | 0.00 | 1.00 | $350,000 | $0 |
Roll Value History
| 2026 | N/A | N/A | N/A | N/A | N/A |
| 2025 | $503,771 | $350,000 | $0 | $853,771 | $853,771 |
| 2024 | $508,004 | $330,000 | $0 | $838,004 | $838,004 |
| 2023 | $512,520 | $310,000 | $0 | $822,520 | $822,520 |
| 2022 | $449,179 | $280,000 | $0 | $729,179 | $729,179 |
| 2021 | $395,029 | $260,000 | $0 | $655,029 | $655,029 |
| 2020 | $375,455 | $220,000 | $0 | $595,455 | $595,455 |
| 2019 | $275,442 | $250,000 | $0 | $525,442 | $525,442 |
| 2018 | $251,673 | $170,000 | $0 | $421,673 | $421,673 |
| 2017 | $253,180 | $150,000 | $0 | $403,180 | $403,180 |
| 2016 | $256,195 | $130,000 | $0 | $386,195 | $386,195 |
| 2015 | $259,207 | $125,000 | $0 | $384,207 | $384,207 |
| 2014 | $240,884 | $125,800 | $0 | $366,684 | $366,684 |
| 2013 | $243,820 | $85,000 | $0 | $328,820 | $328,820 |
| 2012 | $246,757 | $127,500 | $0 | $374,257 | $374,257 |
| 2011 | $249,696 | $150,000 | $0 | $399,696 | $399,696 |
| 2010 | $260,387 | $150,000 | $0 | $410,387 | $410,387 |
| 2009 | $271,552 | $175,000 | $0 | $446,552 | $446,552 |
| 2008 | $274,776 | $250,000 | $0 | $524,776 | $524,776 |
| 2007 | $277,984 | $250,000 | $0 | $527,984 | $527,984 |
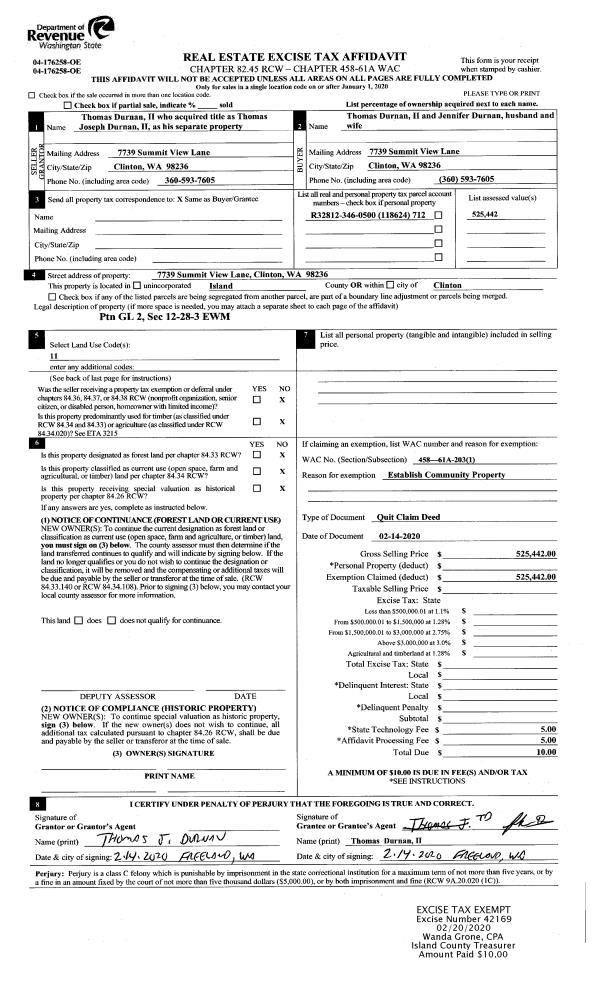
Deed and Sales History
| 1 | 03/07/2022 | WD | Warranty Deed | DURNAN II, THOMAS | CONSTANTINO, STEVEN | | | $950,000.00 | 52284 | 4541379 |
| 2 | 02/14/2020 | QCD | Quit Claim Deed | DURNAN II, THOMAS JOSEPH | DURNAN II, THOMAS | | | $0.00 | 42169 | 4481637 |
| 3 | 01/25/2019 | QCD | Quit Claim Deed | DURNAN, JENNIFER C | DURNAN II, THOMAS JOSEPH | | | $0.00 | 37531 | 4458991 |
| 4 | 01/25/2019 | WD | Warranty Deed | ISOMURA, TERRY K | DURNAN II, THOMAS JOSEPH | | | $580,000.00 | 37530 | 4458990 |
| 5 | 10/16/2010 | WD | Warranty Deed | FITZGERALD, WILLIAM J | ISOMURA, TERRY K | | | $449,000.00 | 2510 | 4282471 |
| 6 | 04/14/2009 | WD | Warranty Deed | FITZGERALD, WILLIAM J | FITZGERALD, WILLIAM J | | | $0.00 | 90810 | 4248918 |
| 7 | 04/01/1997 | WD | Warranty Deed | RICHARD, S E | FITZGERALD, WILLIAM J | | | $268,000.00 | 71207 | 97005423 |
| 8 | 08/01/1996 | WD | Warranty Deed | CALHOUN, ELIZABETH M | RICHARD, S E | | | $64,500.00 | 63095 | 96015131 |
| 9 | 07/01/1996 | QCD | Quit Claim Deed | CALHOUN, ELIZABETH M | CALHOUN, ELIZABETH M | | | $0.00 | 62390 | 96011804 |
| 10 | 07/01/1996 | QCD | Quit Claim Deed | CALHOUN, ELIZABETH M | CALHOUN, ELIZABETH M | | | $0.00 | 63093 | 96015129 |
| 11 | 06/01/1996 | QCD | Quit Claim Deed | CALHOUN, ELIZABETH M | CALHOUN, ELIZABETH M | | | $0.00 | 62160 | 96010681 |
| 12 | 06/01/1996 | QCD | Quit Claim Deed | CALHOUN, ELIZABETH M | CALHOUN, ELIZABETH M | | | $0.00 | 63094 | 96015130 |
| 13 | 05/01/1996 | QCD | Quit Claim Deed | CALHOUN, ELIZABETH M | CALHOUN, ELIZABETH M | | | $0.00 | 62158 | 96010679 |
| 14 | 05/01/1996 | QCD | Quit Claim Deed | CALHOUN, ELIZABETH M | CALHOUN, ELIZABETH M | | | $0.00 | 62159 | 96010680 |
| 15 | 01/01/1900 | OTHER | Other - Misc. Documents | Unknown | CALHOUN, ELIZABETH M | | | $0.00 | 0 | 0 |
Payout Agreement
| No payout information available.. |