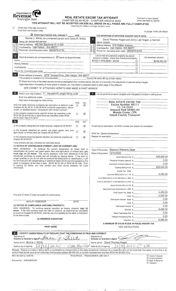
Property
Account |
| Property ID: | 119552 | Abbreviated Legal Description: | 8 - S50' OF N500' OF SE SE |
| Geographic ID: | R32814-096-4670 | Agent Code: | |
| Type: | Real | | |
| Tax Area: | 719 - APPRAISER-S Whid Schl Dist, outside Langley, vacant & 50 acres or less | Land Use Code | 91 |
| Open Space: | N | DFL | N |
| Historic Property: | N | Remodel Property: | N |
| Multi-Family Redevelopment: | N | | |
| Township: | 28 | Section: | 14 |
| Range: | R3 |
Location |
| Address: | | Mapsco: | |
| Neighborhood: | Cycle 4 | Map ID: | 709 |
| Neighborhood CD: | 4 |
Owner |
| Name: | BLACK, JAMES E | Owner ID: | 91707 |
| Mailing Address: | 13710 68TH AVE W EDMONDS, WA 98026-3231 | % Ownership: | 100.0000000000% |
| | | Exemptions: | |
Taxes and Assessment Details
Values
| (+) Improvement Homesite Value: | + | $0 | |
| (+) Improvement Non-Homesite Value: | + | $0 | |
| (+) Land Homesite Value: | + | $0 | |
| (+) Land Non-Homesite Value: | + | $15,000 | |
| (+) Curr Use (HS): | + | $0 | $0 |
| (+) Curr Use (NHS): | + | $0 | $0 |
| | | -------------------------- | |
| (=) Market Value: | = | $15,000 | |
| (–) Productivity Loss: | – | $0 | |
| | | -------------------------- | |
| (=) Subtotal: | = | $15,000 | |
| (+) Senior Appraised Value: | + | $0 | |
| (+) Non-Senior Appraised Value: | + | $15,000 | |
| | | -------------------------- | |
| (=) Total Appraised Value: | = | $15,000 | |
| (–) Senior Exemption Loss: | – | $0 | |
| (–) Exemption Loss: | – | $0 | |
| | | -------------------------- | |
| (=) Taxable Value: | = | $15,000 | |
Taxing Jurisdiction
| Owner: | BLACK, JAMES E | | |
| % Ownership: | 100.0000000000% | | |
| Total Value: | $15,000 | | |
| Tax Area: | 719 - APPRAISER-S Whid Schl Dist, outside Langley, vacant & 50 acres or less |
| CF | Conservation Futures | 0.0313996660 | $15,000 | $15,000 | $0.47 | | |
| HOBOND | Hospital BOND | 0.1893405597 | $15,000 | $15,000 | $2.84 | | |
| HOGEN | Hospital GEN | 0.3848777722 | $15,000 | $15,000 | $5.77 | | |
| CE | County Current Expense | 0.3674210519 | $15,000 | $15,000 | $5.51 | | |
| CR | County Roads | 0.4614296361 | $15,000 | $15,000 | $6.92 | | |
| ISLANDEMS | Hospital GEN (EMS) | 0.4952018576 | $15,000 | $15,000 | $7.43 | | |
| LIB | Library Sno-Isle GEN | 0.3039084203 | $15,000 | $15,000 | $4.56 | | |
| PORTWHID | Port of S Whidbey GEN | 0.1086004714 | $15,000 | $15,000 | $1.63 | | |
| SCH206BOND | School 206 BOND | 0.5960237832 | $15,000 | $15,000 | $8.94 | | |
| SCH206CAP | School 206 CP | 0.3066144020 | $15,000 | $15,000 | $4.60 | | |
| SCH206MO | School 206 Enrichment | 0.4808755445 | $15,000 | $15,000 | $7.21 | | |
| ST | State School | 1.4761226122 | $15,000 | $15,000 | $22.14 | | |
| ST2 | State School Part 2 | 0.7953803475 | $15,000 | $15,000 | $11.93 | | |
| SWHIDPRBD | P & R S Whidbey BOND | 0.0144185398 | $15,000 | $15,000 | $0.22 | | |
| SWHIDPRBD3 | P & R S Whidbey BOND3 | 0.1483535547 | $15,000 | $15,000 | $2.23 | | |
| SWHIDPRMT | P & R S Whidbey GEN | 0.4600000000 | $15,000 | $15,000 | $6.90 | | |
| | Total Tax Rate: | 6.6199682191 | | | | | |
| | | | | Taxes w/Current Exemptions: | $99.30 | | |
| | | | | Taxes w/o Exemptions: | $99.30 | | |
Improvement / Building
Sketch
| No sketches available for this property. |
Property Image
Land
| 1 | 17 | AC (01.01-02.00) | 1.5200 | 66211.20 | 0.00 | 0.00 | 1.00 | $15,000 | $0 |
Roll Value History
| 2026 | N/A | N/A | N/A | N/A | N/A |
| 2025 | $0 | $15,000 | $0 | $15,000 | $15,000 |
| 2024 | $0 | $15,000 | $0 | $15,000 | $15,000 |
| 2023 | $0 | $15,000 | $0 | $15,000 | $15,000 |
| 2022 | $0 | $15,000 | $0 | $15,000 | $15,000 |
| 2021 | $0 | $15,000 | $0 | $15,000 | $15,000 |
| 2020 | $0 | $15,000 | $0 | $15,000 | $15,000 |
| 2019 | $0 | $15,000 | $0 | $15,000 | $15,000 |
| 2018 | $0 | $1,550 | $0 | $1,550 | $1,550 |
| 2017 | $0 | $1,550 | $0 | $1,550 | $1,550 |
| 2016 | $0 | $1,550 | $0 | $1,550 | $1,550 |
| 2015 | $0 | $1,550 | $0 | $1,550 | $1,550 |
| 2014 | $0 | $1,550 | $0 | $1,550 | $1,550 |
| 2013 | $0 | $1,550 | $0 | $1,550 | $1,550 |
| 2012 | $0 | $1,550 | $0 | $1,550 | $1,550 |
| 2011 | $0 | $1,550 | $0 | $1,550 | $1,550 |
| 2010 | $0 | $1,550 | $0 | $1,550 | $1,550 |
| 2009 | $0 | $1,550 | $0 | $1,550 | $1,550 |
| 2008 | $0 | $1,550 | $0 | $1,550 | $1,550 |
| 2007 | $0 | $1,550 | $0 | $1,550 | $1,550 |
Deed and Sales History
| 1 | 06/01/1980 | EZ | Easement | FORGETTE, JAMES R | BLACK, JAMES E | | | $60,000.00 | 1952 | 369751 |
| 2 | 01/01/1900 | OTHER | Other - Misc. Documents | Unknown | FORGETTE, JAMES R | | | $0.00 | 0 | 0 |
Payout Agreement
| No payout information available.. |