Property
Account |
| Property ID: | 119981 | Abbreviated Legal Description: | 14 - IN NW SE Begining at a point 330 feet North of the Southwest corner of said Quarter of Quarter section; thence East 660 feet; thence North 330 feet; thence West 220 feet; thence North 247.5 feet; thence West 440 feet; thence South 577.5 feet to the p |
| Geographic ID: | R32814-205-3030 | Agent Code: | |
| Type: | Real | | |
| Tax Area: | 712 - APPRAISER-S Whid Schl Dist, outside Langley, improved, greater than 1 acre | Land Use Code | 11 |
| Open Space: | N | DFL | N |
| Historic Property: | N | Remodel Property: | N |
| Multi-Family Redevelopment: | N | | |
| Township: | 28 | Section: | 14 |
| Range: | R3 |
Location |
| Address: | 8255 CULTUS BAY RD CLINTON, WA 98236 | Mapsco: | |
| Neighborhood: | Cycle 4 | Map ID: | 709 |
| Neighborhood CD: | 4 |
Owner |
| Name: | HANSON, TIMOTHY | Owner ID: | 183599 |
| Mailing Address: | JUDITH HANSON 8255 CULTUS BAY RD CLINTON, WA 98236-8904 | % Ownership: | 100.0000000000% |
| | | Exemptions: | |
Taxes and Assessment Details
Values
| (+) Improvement Homesite Value: | + | $0 | |
| (+) Improvement Non-Homesite Value: | + | $861,189 | |
| (+) Land Homesite Value: | + | $0 | |
| (+) Land Non-Homesite Value: | + | $470,000 | |
| (+) Curr Use (HS): | + | $0 | $0 |
| (+) Curr Use (NHS): | + | $0 | $0 |
| | | -------------------------- | |
| (=) Market Value: | = | $1,331,189 | |
| (–) Productivity Loss: | – | $0 | |
| | | -------------------------- | |
| (=) Subtotal: | = | $1,331,189 | |
| (+) Senior Appraised Value: | + | $0 | |
| (+) Non-Senior Appraised Value: | + | $1,331,189 | |
| | | -------------------------- | |
| (=) Total Appraised Value: | = | $1,331,189 | |
| (–) Senior Exemption Loss: | – | $0 | |
| (–) Exemption Loss: | – | $0 | |
| | | -------------------------- | |
| (=) Taxable Value: | = | $1,331,189 | |
Taxing Jurisdiction
| Owner: | HANSON, TIMOTHY | | |
| % Ownership: | 100.0000000000% | | |
| Total Value: | $1,331,189 | | |
| Tax Area: | 712 - APPRAISER-S Whid Schl Dist, outside Langley, improved, greater than 1 acre |
| CF | Conservation Futures | 0.0313996660 | $1,331,189 | $1,331,189 | $41.80 | | |
| FIRE3 | Fire & Rescue Dist #3 S Whidbey GEN | 1.2130821753 | $1,331,189 | $1,331,189 | $1,614.84 | | |
| HOBOND | Hospital BOND | 0.1893405597 | $1,331,189 | $1,331,189 | $252.05 | | |
| HOGEN | Hospital GEN | 0.3848777722 | $1,331,189 | $1,331,189 | $512.35 | | |
| CE | County Current Expense | 0.3674210519 | $1,331,189 | $1,331,189 | $489.11 | | |
| CR | County Roads | 0.4614296361 | $1,331,189 | $1,331,189 | $614.25 | | |
| ISLANDEMS | Hospital GEN (EMS) | 0.4952018576 | $1,331,189 | $1,331,189 | $659.21 | | |
| LIB | Library Sno-Isle GEN | 0.3039084203 | $1,331,189 | $1,331,189 | $404.56 | | |
| PORTWHID | Port of S Whidbey GEN | 0.1086004714 | $1,331,189 | $1,331,189 | $144.57 | | |
| SCH206BOND | School 206 BOND | 0.5960237832 | $1,331,189 | $1,331,189 | $793.42 | | |
| SCH206CAP | School 206 CP | 0.3066144020 | $1,331,189 | $1,331,189 | $408.16 | | |
| SCH206MO | School 206 Enrichment | 0.4808755445 | $1,331,189 | $1,331,189 | $640.14 | | |
| ST | State School | 1.4761226122 | $1,331,189 | $1,331,189 | $1,965.00 | | |
| ST2 | State School Part 2 | 0.7953803475 | $1,331,189 | $1,331,189 | $1,058.80 | | |
| SWHIDPRBD | P & R S Whidbey BOND | 0.0144185398 | $1,331,189 | $1,331,189 | $19.19 | | |
| SWHIDPRBD3 | P & R S Whidbey BOND3 | 0.1483535547 | $1,331,189 | $1,331,189 | $197.49 | | |
| SWHIDPRMT | P & R S Whidbey GEN | 0.4600000000 | $1,331,189 | $1,331,189 | $612.35 | | |
| | Total Tax Rate: | 7.8330503944 | | | | | |
| | | | | Taxes w/Current Exemptions: | $10,427.29 | | |
| | | | | Taxes w/o Exemptions: | $10,427.29 | | |
Improvement / Building
| Improvement #1: | RESIDENTIAL | State Code: | Y | 3386.8 sqft | Value: | $861,189 |
| Bathrooms: | 3 | Bedrooms: | 3 | | Ceiling: | DRYWALL PAINTED | Cooling: | HEAT PUMP/CONV/V | | Exterior Wall/Cover: | CEMENT FIBER | Floor Covering: | HARDWOOD/CARP 60-40 | | Floor Structure: | WOOD W/SUBFLOOR | Foundation: | CONCRETE | | Interior Finish: | DRYWALL PAINT | Plumbing Fixture Cnt: | 14 | | Roof Slope: | 6" IN 12" | Roof Structure/Cover: | BEAM ASPHALT |
|
| | Type | Description | Class CD | Sub Class CD | Year Built | Area |
| | BAS | BASE/MAIN FLOOR | 5 | 0 | 2005 | 2439.5 |
| | UB8 | BASEMENT UNFINISHED 8" | 5 | 0 | 2005 | 302.0 |
| | OP4 | OPEN PORCH W/CEILING-ROOF | 5 | 0 | 2005 | 90.9 |
| | AGR | ATTACHED GARAGE | 5 | 0 | 2005 | 343.4 |
| | AGR | ATTACHED GARAGE | 5 | 0 | 2005 | 623.4 |
| | OWP | OPEN WOOD PORCH W/STEPS | 5 | 0 | 2005 | 490.3 |
| | OWR | OPEN WOOD PORCH W/STEPS/ROOF | 5 | 0 | 2005 | 127.7 |
| | ENP | ENCLOSED PORCH | 5 | 0 | 2005 | 54.0 |
| | DWN | DOWNSTAIRS LIVING AREA | 5 | 0 | 2005 | 947.3 |
| | UTY | STORAGE/UTILITY | 5 | 0 | 2005 | 480.0 |
Sketch
| No sketches available for this property. |
Property Image
Land
| 1 | 32 | AC (03.01-09.99) | 7.5000 | 326700.00 | 0.00 | 0.00 | 1.00 | $470,000 | $0 |
Roll Value History
| 2026 | N/A | N/A | N/A | N/A | N/A |
| 2025 | $861,189 | $470,000 | $0 | $1,331,189 | $1,331,189 |
| 2024 | $871,174 | $430,000 | $0 | $1,301,174 | $1,301,174 |
| 2023 | $881,160 | $420,000 | $0 | $1,301,160 | $1,301,160 |
| 2022 | $806,924 | $400,000 | $0 | $1,206,924 | $1,206,924 |
| 2021 | $707,576 | $380,000 | $0 | $1,087,576 | $1,087,576 |
| 2020 | $659,702 | $340,000 | $0 | $999,702 | $999,702 |
| 2019 | $563,543 | $350,000 | $0 | $913,543 | $913,543 |
| 2018 | $565,021 | $280,000 | $0 | $845,021 | $845,021 |
| 2017 | $569,331 | $250,000 | $0 | $819,331 | $819,331 |
| 2016 | $575,256 | $250,000 | $0 | $825,256 | $825,256 |
| 2015 | $581,180 | $250,000 | $0 | $831,180 | $831,180 |
| 2014 | $630,654 | $165,000 | $0 | $795,654 | $795,654 |
| 2013 | $637,317 | $165,000 | $0 | $802,317 | $802,317 |
| 2012 | $643,981 | $165,000 | $0 | $808,981 | $808,981 |
| 2011 | $650,646 | $165,000 | $0 | $815,646 | $815,646 |
| 2010 | $629,105 | $165,000 | $0 | $794,105 | $794,105 |
| 2009 | $648,899 | $375,000 | $0 | $1,023,899 | $1,023,899 |
| 2008 | $621,056 | $375,000 | $0 | $996,056 | $996,056 |
| 2007 | $628,246 | $375,000 | $0 | $1,003,246 | $1,003,246 |
Deed and Sales History
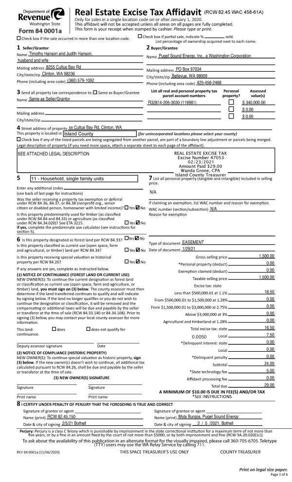
| 1 | 01/29/2021 | EZ | Easement | HANSON, TIMOTHY | PUGET SOUND ENERGY | | | $1,500.00 | 47053 | 4511719 |
| 2 | 06/15/2000 | WD | Warranty Deed | REED, CHRISTOPHER R | HANSON, TIMOTHY | | | $255,000.00 | 2450 | 20011586 |
| 3 | 06/01/1960 | TRUSTEED | Trustee's Deed | REED, NATALIE | REED, CHRISTOPHER R | | | $0.00 | 8843 | 0 |
| 4 | 01/01/1900 | OTHER | Other - Misc. Documents | Unknown | REED, NATALIE | | | $0.00 | 0 | 0 |
Payout Agreement
| No payout information available.. |