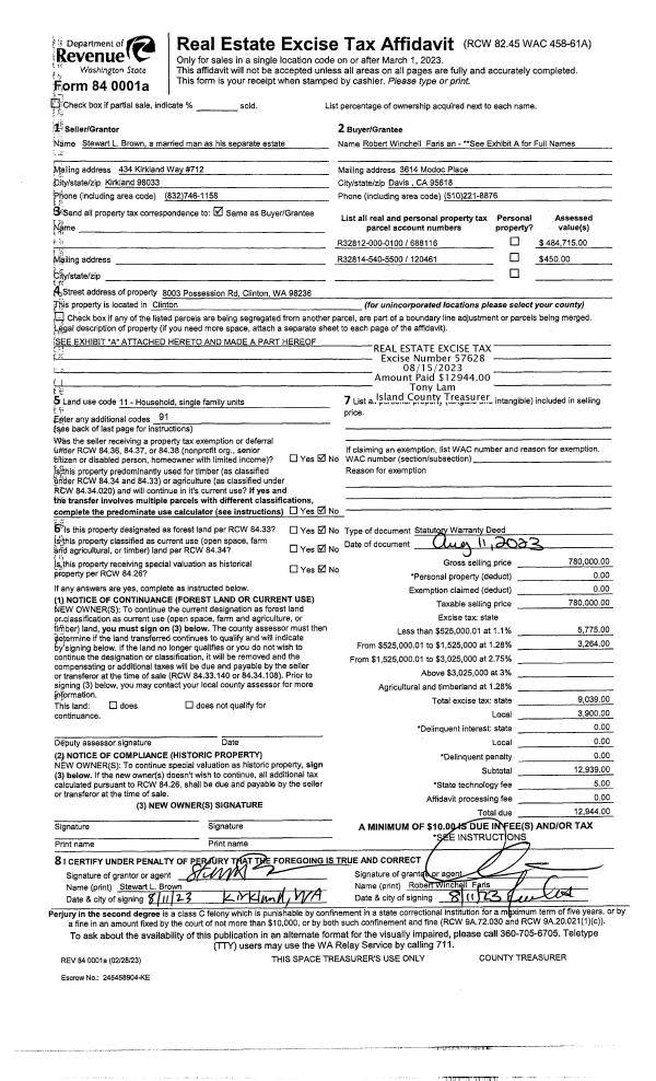
Property
Account |
| Property ID: | 120461 | Abbreviated Legal Description: | 77 - N20' OF E160' OF NE NE |
| Geographic ID: | R32814-540-5500 | Agent Code: | |
| Type: | Real | | |
| Tax Area: | 719 - APPRAISER-S Whid Schl Dist, outside Langley, vacant & 50 acres or less | Land Use Code | 91 |
| Open Space: | N | DFL | N |
| Historic Property: | N | Remodel Property: | N |
| Multi-Family Redevelopment: | N | | |
| Township: | 28 | Section: | 14 |
| Range: | R3 |
Location |
| Address: | | Mapsco: | |
| Neighborhood: | Cycle 4 | Map ID: | 711 |
| Neighborhood CD: | 4 |
Owner |
| Name: | FARIS, ROBERT WINCHELL | Owner ID: | 309687 |
| Mailing Address: | ASPEN FELT 3614 MODOC PL DAVIS, CA 95618 | % Ownership: | 100.0000000000% |
| | | Exemptions: | U500 |
Taxes and Assessment Details
Values
| (+) Improvement Homesite Value: | + | $0 | |
| (+) Improvement Non-Homesite Value: | + | $0 | |
| (+) Land Homesite Value: | + | $0 | |
| (+) Land Non-Homesite Value: | + | $450 | |
| (+) Curr Use (HS): | + | $0 | $0 |
| (+) Curr Use (NHS): | + | $0 | $0 |
| | | -------------------------- | |
| (=) Market Value: | = | $450 | |
| (–) Productivity Loss: | – | $0 | |
| | | -------------------------- | |
| (=) Subtotal: | = | $450 | |
| (+) Senior Appraised Value: | + | $0 | |
| (+) Non-Senior Appraised Value: | + | $450 | |
| | | -------------------------- | |
| (=) Total Appraised Value: | = | $450 | |
| (–) Senior Exemption Loss: | – | $0 | |
| (–) Exemption Loss: | – | $450 | |
| | | -------------------------- | |
| (=) Taxable Value: | = | $0 | |
Taxing Jurisdiction
| Owner: | FARIS, ROBERT WINCHELL | | |
| % Ownership: | 100.0000000000% | | |
| Total Value: | $450 | | |
| Tax Area: | 719 - APPRAISER-S Whid Schl Dist, outside Langley, vacant & 50 acres or less |
| CF | Conservation Futures | 0.0313996660 | $450 | $0 | $0.00 | | |
| HOBOND | Hospital BOND | 0.1893405597 | $450 | $0 | $0.00 | | |
| HOGEN | Hospital GEN | 0.3848777722 | $450 | $0 | $0.00 | | |
| CE | County Current Expense | 0.3674210519 | $450 | $0 | $0.00 | | |
| CR | County Roads | 0.4614296361 | $450 | $0 | $0.00 | | |
| ISLANDEMS | Hospital GEN (EMS) | 0.4952018576 | $450 | $0 | $0.00 | | |
| LIB | Library Sno-Isle GEN | 0.3039084203 | $450 | $0 | $0.00 | | |
| PORTWHID | Port of S Whidbey GEN | 0.1086004714 | $450 | $0 | $0.00 | | |
| SCH206BOND | School 206 BOND | 0.5960237832 | $450 | $0 | $0.00 | | |
| SCH206CAP | School 206 CP | 0.3066144020 | $450 | $0 | $0.00 | | |
| SCH206MO | School 206 Enrichment | 0.4808755445 | $450 | $0 | $0.00 | | |
| ST | State School | 1.4761226122 | $450 | $0 | $0.00 | | |
| ST2 | State School Part 2 | 0.7953803475 | $450 | $0 | $0.00 | | |
| SWHIDPRBD | P & R S Whidbey BOND | 0.0144185398 | $450 | $0 | $0.00 | | |
| SWHIDPRBD3 | P & R S Whidbey BOND3 | 0.1483535547 | $450 | $0 | $0.00 | | |
| SWHIDPRMT | P & R S Whidbey GEN | 0.4600000000 | $450 | $0 | $0.00 | | |
| | Total Tax Rate: | 6.6199682191 | | | | | |
| | | | | Taxes w/Current Exemptions: | $0.00 | | |
| | | | | Taxes w/o Exemptions: | $3.00 | | |
Improvement / Building
Sketch
| No sketches available for this property. |
Property Image
Land
| 1 | 54 | WASTE LAND | 0.0800 | 3484.80 | 0.00 | 0.00 | 1.00 | $450 | $0 |
Roll Value History
| 2026 | N/A | N/A | N/A | N/A | N/A |
| 2025 | $0 | $450 | $0 | $450 | $0 |
| 2024 | $0 | $450 | $0 | $450 | $0 |
| 2023 | $0 | $450 | $0 | $450 | $0 |
| 2022 | $0 | $450 | $0 | $450 | $0 |
| 2021 | $0 | $450 | $0 | $450 | $0 |
| 2020 | $0 | $450 | $0 | $450 | $0 |
| 2019 | $0 | $450 | $0 | $450 | $0 |
| 2018 | $0 | $800 | $0 | $800 | $800 |
| 2017 | $0 | $800 | $0 | $800 | $800 |
| 2016 | $0 | $800 | $0 | $800 | $800 |
| 2015 | $0 | $800 | $0 | $800 | $800 |
| 2014 | $0 | $848 | $0 | $848 | $848 |
| 2013 | $0 | $848 | $0 | $848 | $848 |
| 2012 | $0 | $848 | $0 | $848 | $848 |
| 2011 | $0 | $848 | $0 | $848 | $848 |
| 2010 | $0 | $848 | $0 | $848 | $848 |
| 2009 | $0 | $848 | $0 | $848 | $848 |
| 2008 | $0 | $848 | $0 | $848 | $848 |
| 2007 | $0 | $848 | $0 | $848 | $848 |
Deed and Sales History
| 1 | 08/11/2023 | WD | Warranty Deed | BROWN, STEWART L | FARIS, ROBERT WINCHELL | | | $780,000.00 | 57628 | 4563527 |
|   | |
| 2 | 05/30/2018 | QCD | Quit Claim Deed | BROWN, STEWART L | BROWN, STEWART L | | | $0.00 | 34326 | 4445327 |
| 3 | 05/18/2018 | WD | Warranty Deed | CAHAN, ERIC | BROWN, STEWART L | | | $517,000.00 | 34325 | 4445326 |
|   | |
| 4 | 10/11/2004 | WD | Warranty Deed | CARPENTER, MARALAINA C | CAHAN, ERIC | | | $864.00 | 44806 | 4115324 |
| 5 | 05/16/2002 | 5 | DNU - Marriage License/Name Change | HARMON, MARALAINA C | CARPENTER, MARALAINA C | | | $0.00 | 69431 | 0 |
| 6 | 01/01/1995 | WD | Warranty Deed | ZAPPONE, LYNDA S | HARMON, MARALAINA C | | | $331.00 | 50250 | 95001291 |
| 7 | 04/01/1993 | QCD | Quit Claim Deed | OLYMPIC, BANK, T | ZAPPONE, LYNDA S | | | $0.00 | 31269 | 93006820 |
| 8 | 03/01/1982 | CD | DNU - Correction Deed | ANDERSON, MRS O | OLYMPIC, BANK, T | | | $1.00 | 20690 | 394516 |
| 9 | 01/01/1900 | OTHER | Other - Misc. Documents | Unknown | ANDERSON, MRS O | | | $0.00 | 0 | 0 |
Payout Agreement
| No payout information available.. |