Property
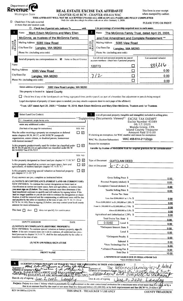
Account |
| Property ID: | 120773 | Abbreviated Legal Description: | 17 - S200' OF N1215.92' OF GL2 EX ANY PT LY IN S61.6' OF SD GL2 |
| Geographic ID: | R32901-143-0330 | Agent Code: | |
| Type: | Real | | |
| Tax Area: | 712 - APPRAISER-S Whid Schl Dist, outside Langley, improved, greater than 1 acre | Land Use Code | 11 |
| Open Space: | N | DFL | N |
| Historic Property: | N | Remodel Property: | N |
| Multi-Family Redevelopment: | N | | |
| Township: | 29 | Section: | 01 |
| Range: | R3 |
Location |
| Address: | | Mapsco: | |
| Neighborhood: | Cycle 4 | Map ID: | 717 |
| Neighborhood CD: | 4 |
Owner |
| Name: | MCGINNIS TRUSTEE, MARK E | Owner ID: | 287625 |
| Mailing Address: | MARY ELLEN MCGINNIS TRUSTEE 5085 VIEW RD LANGLEY, WA 98260 | % Ownership: | 100.0000000000% |
| | | Exemptions: | |
Taxes and Assessment Details
Values
| (+) Improvement Homesite Value: | + | $0 | |
| (+) Improvement Non-Homesite Value: | + | $616,369 | |
| (+) Land Homesite Value: | + | $0 | |
| (+) Land Non-Homesite Value: | + | $775,000 | |
| (+) Curr Use (HS): | + | $0 | $0 |
| (+) Curr Use (NHS): | + | $0 | $0 |
| | | -------------------------- | |
| (=) Market Value: | = | $1,391,369 | |
| (–) Productivity Loss: | – | $0 | |
| | | -------------------------- | |
| (=) Subtotal: | = | $1,391,369 | |
| (+) Senior Appraised Value: | + | $0 | |
| (+) Non-Senior Appraised Value: | + | $1,391,369 | |
| | | -------------------------- | |
| (=) Total Appraised Value: | = | $1,391,369 | |
| (–) Senior Exemption Loss: | – | $0 | |
| (–) Exemption Loss: | – | $0 | |
| | | -------------------------- | |
| (=) Taxable Value: | = | $1,391,369 | |
Taxing Jurisdiction
| Owner: | MCGINNIS TRUSTEE, MARK E | | |
| % Ownership: | 100.0000000000% | | |
| Total Value: | $1,391,369 | | |
| Tax Area: | 712 - APPRAISER-S Whid Schl Dist, outside Langley, improved, greater than 1 acre |
| CF | Conservation Futures | 0.0313996660 | $1,391,369 | $1,391,369 | $43.69 | | |
| FIRE3 | Fire & Rescue Dist #3 S Whidbey GEN | 1.2130821753 | $1,391,369 | $1,391,369 | $1,687.84 | | |
| HOBOND | Hospital BOND | 0.1893405597 | $1,391,369 | $1,391,369 | $263.44 | | |
| HOGEN | Hospital GEN | 0.3848777722 | $1,391,369 | $1,391,369 | $535.51 | | |
| CE | County Current Expense | 0.3674210519 | $1,391,369 | $1,391,369 | $511.22 | | |
| CR | County Roads | 0.4614296361 | $1,391,369 | $1,391,369 | $642.02 | | |
| ISLANDEMS | Hospital GEN (EMS) | 0.4952018576 | $1,391,369 | $1,391,369 | $689.01 | | |
| LIB | Library Sno-Isle GEN | 0.3039084203 | $1,391,369 | $1,391,369 | $422.85 | | |
| PORTWHID | Port of S Whidbey GEN | 0.1086004714 | $1,391,369 | $1,391,369 | $151.10 | | |
| SCH206BOND | School 206 BOND | 0.5960237832 | $1,391,369 | $1,391,369 | $829.29 | | |
| SCH206CAP | School 206 CP | 0.3066144020 | $1,391,369 | $1,391,369 | $426.61 | | |
| SCH206MO | School 206 Enrichment | 0.4808755445 | $1,391,369 | $1,391,369 | $669.08 | | |
| ST | State School | 1.4761226122 | $1,391,369 | $1,391,369 | $2,053.83 | | |
| ST2 | State School Part 2 | 0.7953803475 | $1,391,369 | $1,391,369 | $1,106.67 | | |
| SWHIDPRBD | P & R S Whidbey BOND | 0.0144185398 | $1,391,369 | $1,391,369 | $20.06 | | |
| SWHIDPRBD3 | P & R S Whidbey BOND3 | 0.1483535547 | $1,391,369 | $1,391,369 | $206.41 | | |
| SWHIDPRMT | P & R S Whidbey GEN | 0.4600000000 | $1,391,369 | $1,391,369 | $640.03 | | |
| | Total Tax Rate: | 7.8330503944 | | | | | |
| | | | | Taxes w/Current Exemptions: | $10,898.66 | | |
| | | | | Taxes w/o Exemptions: | $10,898.66 | | |
Improvement / Building
| Improvement #1: | RESIDENTIAL | State Code: | Y | 3419.9 sqft | Value: | $616,369 |
| Bathrooms: | 3.75 | Bedrooms: | 4 | | Ceiling: | DRYWALL PAINTED | Cooling: | HEAT PUMP/CONV/V | | Exterior Wall/Cover: | WOOD SIDING | Floor Covering: | HARDWOOD/CARP 60-40 | | Floor Structure: | WOOD W/SUBFLOOR | Foundation: | CONCRETE | | Interior Finish: | DRYWALL PAINT | Plumbing Fixture Cnt: | 15 | | Roof Slope: | 10" IN 12" | Roof Structure/Cover: | CJ ALUMINIUM HEAVY |
|
| | Type | Description | Class CD | Sub Class CD | Year Built | Area |
| | BAS | BASE/MAIN FLOOR | 4 | 0 | 1958 | 2445.0 |
| | ATF | ATTIC FINISHED | 4 | 0 | 1958 | 468.0 |
| | UPS | UPPER STORY | 4 | 0 | 1958 | 974.9 |
| | OWP | OPEN WOOD PORCH W/STEPS | 4 | 0 | 1958 | 612.0 |
| | OWC | OPEN WOOD PORCH W/STEPS/ROOF/C | 4 | 0 | 1958 | 88.0 |
| | OWC | OPEN WOOD PORCH W/STEPS/ROOF/C | 4 | 0 | 1958 | 48.0 |
| | DGR | DETACHED GARAGE | 4 | 0 | 1958 | 572.0 |
| | ENP | ENCLOSED PORCH | 4 | 0 | 1958 | 468.0 |
Sketch
Property Image
Land
| 1 | HB | HIGH BLUFF | 2.4400 | 106286.40 | 200.00 | 0.00 | 1.00 | $775,000 | $0 |
Roll Value History
| 2026 | N/A | N/A | N/A | N/A | N/A |
| 2025 | $616,369 | $775,000 | $0 | $1,391,369 | $1,391,369 |
| 2024 | $624,145 | $775,000 | $0 | $1,399,145 | $1,399,145 |
| 2023 | $631,923 | $775,000 | $0 | $1,406,923 | $1,406,923 |
| 2022 | $579,265 | $725,000 | $0 | $1,304,265 | $1,304,265 |
| 2021 | $509,840 | $550,000 | $0 | $1,059,840 | $1,059,840 |
| 2020 | $381,216 | $500,000 | $0 | $881,216 | $881,216 |
| 2019 | $320,538 | $550,000 | $0 | $870,538 | $870,538 |
| 2018 | $321,524 | $500,000 | $0 | $821,524 | $821,524 |
| 2017 | $274,780 | $500,000 | $0 | $774,780 | $774,780 |
| 2016 | $278,131 | $500,000 | $0 | $778,131 | $778,131 |
| 2015 | $343,249 | $700,000 | $0 | $1,043,249 | $1,043,249 |
| 2014 | $310,182 | $700,000 | $0 | $1,010,182 | $1,010,182 |
| 2013 | $205,772 | $793,586 | $0 | $999,358 | $999,358 |
| 2012 | $209,069 | $793,586 | $0 | $1,002,655 | $1,002,655 |
| 2011 | $212,368 | $881,762 | $0 | $1,094,130 | $1,094,130 |
| 2010 | $207,891 | $881,762 | $0 | $1,089,653 | $1,089,653 |
| 2009 | $193,319 | $880,674 | $0 | $1,073,993 | $1,073,993 |
| 2008 | $167,837 | $881,762 | $0 | $1,049,599 | $1,049,599 |
| 2007 | $111,106 | $456,646 | $0 | $567,752 | $567,752 |
Deed and Sales History
| 1 | 06/02/2020 | QCD | Quit Claim Deed | MCGINNIS TRUSTEE, MARK E | MCGINNIS TRUSTEE, MARK E | | | $0.00 | 43389 | 4489005 |
| 2 | 10/19/2018 | QCD | Quit Claim Deed | MCGINNIS, MARK E | MCGINNIS TRUSTEE, MARK E | | | $0.00 | 36391 | 4453837 |
| 3 | 01/08/2016 | WD | Warranty Deed | NERISON, ERIC S | MCGINNIS, MARK E | | | $700,000.00 | 22933 | 4393080 |
| 4 | 12/13/2001 | WD | Warranty Deed | NERISON, ERIC S | NERISON, ERIC S | | | $0.00 | 22819 | 4392483 |
| 5 | 12/13/2001 | WD | Warranty Deed | NERISON, REX STEVEN ETAL | NERISON, ERIC S | | | $275,000.00 | 14712 | 4005738 |
| 6 | 01/05/2001 | QCD | Quit Claim Deed | NERISON, REX ETAL | NERISON, REX STEVEN ETAL | | | $0.00 | 10181 | 20023693 |
| 7 | 05/16/2000 | QCD | Quit Claim Deed | NERISON, MAE I | NERISON, REX ETAL | | | $0.00 | 1878 | 20009090 |
| 8 | 04/19/1999 | QCD | Quit Claim Deed | NERISON, MAE I | NERISON, MAE I | | | $0.00 | 91771 | 99011226 |
| 9 | 01/01/1997 | QCD | Quit Claim Deed | NERISON, MAE I | NERISON, MAE I | | | $0.00 | 70040 | 97000085 |
| 10 | 12/01/1996 | QCD | Quit Claim Deed | NERISON, MAE I | NERISON, MAE I | | | $0.00 | 64587 | 96022142 |
| 11 | 01/01/1995 | QCD | Quit Claim Deed | NERISON, MAE I | NERISON, MAE I | | | $0.00 | 50083 | 95000407 |
| 12 | 12/01/1994 | QCD | Quit Claim Deed | NERISON, MAE I | NERISON, MAE I | | | $0.00 | 45174 | 94026247 |
| 13 | 12/01/1994 | QCD | Quit Claim Deed | NERISON, MAE I | NERISON, MAE I | | | $0.00 | 45175 | 94026248 |
| 14 | 01/01/1993 | OTHER | Other - Misc. Documents | NERISON, REX S | NERISON, MAE I | | | $0.00 | 65183 | 0 |
| 15 | 10/01/1988 | QCD | Quit Claim Deed | NERISON, REX S | NERISON, REX S | | | $0.00 | 84033 | 88015199 |
| 16 | 10/01/1988 | QCD | Quit Claim Deed | NERISON, REX S | NERISON, REX S | | | $0.00 | 84034 | 88015198 |
| 17 | 02/01/1985 | QCD | Quit Claim Deed | NERISON, REX S | NERISON, REX S | | | $0.00 | 50453 | 85002095 |
| 18 | 02/01/1985 | QCD | Quit Claim Deed | NERISON, REX S | NERISON, REX S | | | $0.00 | 50454 | 85002096 |
| 19 | 11/01/1973 | TRUSTEED | Trustee's Deed | FORSGREN, C A | NERISON, REX S | | | $0.00 | 49799 | 0 |
| 20 | 01/01/1900 | OTHER | Other - Misc. Documents | Unknown | FORSGREN, C A | | | $0.00 | 0 | 0 |
Payout Agreement
| No payout information available.. |