Property
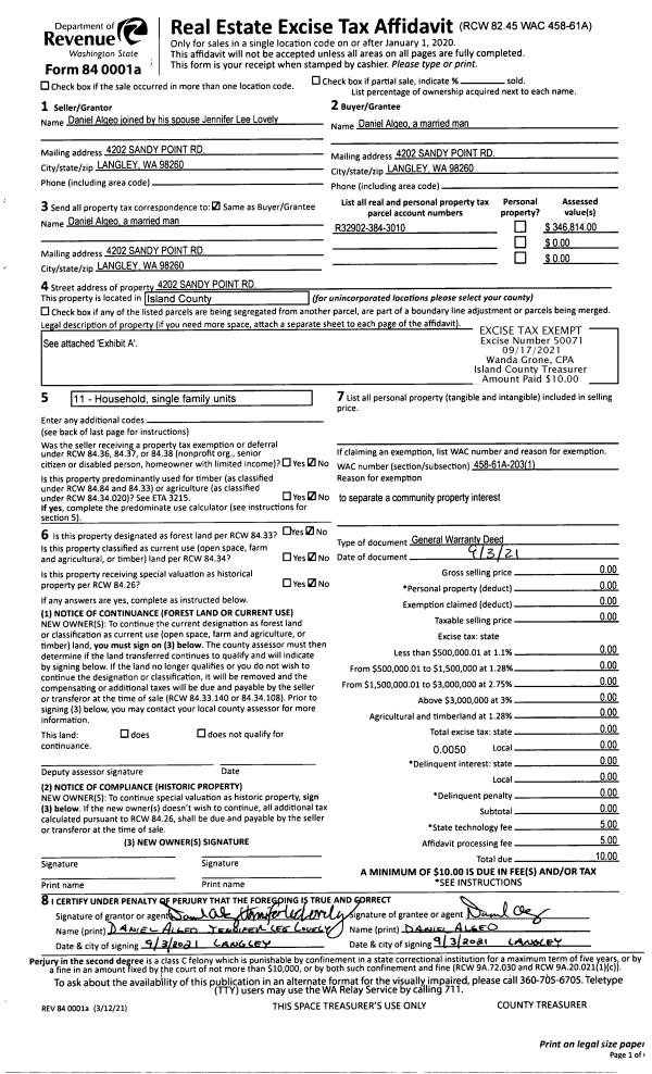
Account |
| Property ID: | 122352 | Abbreviated Legal Description: | 120 - BG 1/4 CR SEC 2 N86*W 2535.6' N1*W1258.7' N83*W30 .33' TPB N83*W95.41' N211 .49' S83*E84.67' S1*E212.80 TPB TGW WELL |
| Geographic ID: | R32902-384-3010 | Agent Code: | |
| Type: | Real | | |
| Tax Area: | 710 - APPRAISER-S Whid Schl Dist, outside Langley, improved & 1 acre or less | Land Use Code | 11 |
| Open Space: | N | DFL | N |
| Historic Property: | N | Remodel Property: | N |
| Multi-Family Redevelopment: | N | | |
| Township: | 29 | Section: | 02 |
| Range: | R3 |
Location |
| Address: | 4202 CLARA CORNU LN LANGLEY, WA 98260 | Mapsco: | |
| Neighborhood: | Cycle 4 | Map ID: | 722 |
| Neighborhood CD: | 4 |
Owner |
| Name: | ALGEO JTWROS, DANIEL | Owner ID: | 292550 |
| Mailing Address: | JENNIFER LEE LOVELY JTWROS 4202 SANDY POINT RD LANGLEY, WA 98260 | % Ownership: | 100.0000000000% |
| | | Exemptions: | |
Taxes and Assessment Details
Values
| (+) Improvement Homesite Value: | + | $0 | |
| (+) Improvement Non-Homesite Value: | + | $280,477 | |
| (+) Land Homesite Value: | + | $0 | |
| (+) Land Non-Homesite Value: | + | $250,000 | |
| (+) Curr Use (HS): | + | $0 | $0 |
| (+) Curr Use (NHS): | + | $0 | $0 |
| | | -------------------------- | |
| (=) Market Value: | = | $530,477 | |
| (–) Productivity Loss: | – | $0 | |
| | | -------------------------- | |
| (=) Subtotal: | = | $530,477 | |
| (+) Senior Appraised Value: | + | $0 | |
| (+) Non-Senior Appraised Value: | + | $530,477 | |
| | | -------------------------- | |
| (=) Total Appraised Value: | = | $530,477 | |
| (–) Senior Exemption Loss: | – | $0 | |
| (–) Exemption Loss: | – | $0 | |
| | | -------------------------- | |
| (=) Taxable Value: | = | $530,477 | |
Taxing Jurisdiction
| Owner: | ALGEO JTWROS, DANIEL | | |
| % Ownership: | 100.0000000000% | | |
| Total Value: | $530,477 | | |
| Tax Area: | 710 - APPRAISER-S Whid Schl Dist, outside Langley, improved & 1 acre or less |
| CF | Conservation Futures | 0.0313996660 | $530,477 | $530,477 | $16.66 | | |
| FIRE3 | Fire & Rescue Dist #3 S Whidbey GEN | 1.2130821753 | $530,477 | $530,477 | $643.51 | | |
| HOBOND | Hospital BOND | 0.1893405597 | $530,477 | $530,477 | $100.44 | | |
| HOGEN | Hospital GEN | 0.3848777722 | $530,477 | $530,477 | $204.17 | | |
| CE | County Current Expense | 0.3674210519 | $530,477 | $530,477 | $194.91 | | |
| CR | County Roads | 0.4614296361 | $530,477 | $530,477 | $244.78 | | |
| ISLANDEMS | Hospital GEN (EMS) | 0.4952018576 | $530,477 | $530,477 | $262.69 | | |
| LIB | Library Sno-Isle GEN | 0.3039084203 | $530,477 | $530,477 | $161.22 | | |
| PORTWHID | Port of S Whidbey GEN | 0.1086004714 | $530,477 | $530,477 | $57.61 | | |
| SCH206BOND | School 206 BOND | 0.5960237832 | $530,477 | $530,477 | $316.18 | | |
| SCH206CAP | School 206 CP | 0.3066144020 | $530,477 | $530,477 | $162.65 | | |
| SCH206MO | School 206 Enrichment | 0.4808755445 | $530,477 | $530,477 | $255.09 | | |
| ST | State School | 1.4761226122 | $530,477 | $530,477 | $783.05 | | |
| ST2 | State School Part 2 | 0.7953803475 | $530,477 | $530,477 | $421.93 | | |
| SWHIDPRBD | P & R S Whidbey BOND | 0.0144185398 | $530,477 | $530,477 | $7.65 | | |
| SWHIDPRBD3 | P & R S Whidbey BOND3 | 0.1483535547 | $530,477 | $530,477 | $78.70 | | |
| SWHIDPRMT | P & R S Whidbey GEN | 0.4600000000 | $530,477 | $530,477 | $244.02 | | |
| | Total Tax Rate: | 7.8330503944 | | | | | |
| | | | | Taxes w/Current Exemptions: | $4,155.26 | | |
| | | | | Taxes w/o Exemptions: | $4,155.26 | | |
Improvement / Building
| Improvement #1: | RESIDENTIAL | State Code: | Y | 1456.0 sqft | Value: | $280,477 |
| Bathrooms: | 1.5 | Bedrooms: | 3 | | Ceiling: | DRYWALL PAINTED | Cooling: | HEAT PUMP/CONV/V | | Exterior Wall/Cover: | PLY/HARDBOARD T-111 | Floor Covering: | VINYL 100% | | Floor Structure: | WOOD W/SUBFLOOR | Foundation: | CONCRETE BLOCKS | | Interior Finish: | DRYWALL PAINT | Plumbing Fixture Cnt: | 8 | | Roof Slope: | 6" IN 12" | Roof Structure/Cover: | CJ ASPHALT |
|
| | Type | Description | Class CD | Sub Class CD | Year Built | Area |
| | BAS | BASE/MAIN FLOOR | 3 | 0 | 1968 | 1456.0 |
| | OP3 | OPEN PORCH W/ROOF | 3 | 0 | 1968 | 144.0 |
| | OWP | OPEN WOOD PORCH W/STEPS | 3 | 0 | 1968 | 120.0 |
| | ENP | ENCLOSED PORCH | 3 | 0 | 1968 | 480.0 |
| | UTY | STORAGE/UTILITY | 3 | 0 | 1968 | 192.0 |
Sketch
Property Image
Land
| 1 | 15 | SQ (12001-21780) | 0.0000 | 0.00 | 0.00 | 0.00 | 1.00 | $250,000 | $0 |
Roll Value History
| 2026 | N/A | N/A | N/A | N/A | N/A |
| 2025 | $280,477 | $250,000 | $0 | $530,477 | $530,477 |
| 2024 | $284,017 | $230,000 | $0 | $514,017 | $514,017 |
| 2023 | $287,556 | $230,000 | $0 | $517,556 | $517,556 |
| 2022 | $263,586 | $210,000 | $0 | $473,586 | $473,586 |
| 2021 | $231,993 | $150,000 | $0 | $381,993 | $381,993 |
| 2020 | $226,184 | $120,000 | $0 | $346,184 | $346,184 |
| 2019 | $147,887 | $170,000 | $0 | $317,887 | $317,887 |
| 2018 | $148,331 | $130,000 | $0 | $278,331 | $278,331 |
| 2017 | $123,011 | $120,000 | $0 | $243,011 | $243,011 |
| 2016 | $124,511 | $120,000 | $0 | $244,511 | $244,511 |
| 2015 | $126,012 | $139,500 | $0 | $265,512 | $265,512 |
| 2014 | $84,323 | $139,500 | $0 | $223,823 | $223,823 |
| 2013 | $85,760 | $139,500 | $0 | $225,260 | $225,260 |
| 2012 | $87,196 | $139,500 | $0 | $226,696 | $226,696 |
| 2011 | $88,633 | $155,000 | $0 | $243,633 | $243,633 |
| 2010 | $98,490 | $155,000 | $0 | $253,490 | $253,490 |
| 2009 | $103,373 | $100,000 | $0 | $203,373 | $203,373 |
| 2008 | $67,633 | $113,100 | $0 | $180,733 | $180,733 |
| 2007 | $68,955 | $113,100 | $0 | $182,055 | $182,055 |
Deed and Sales History
| 1 | 10/11/2023 | QCD | Quit Claim Deed | ALGEO JTWROS, DANIEL | ALGEO JTWROS, DANIEL | | | $0.00 | 58257 | 4565770 |
| 2 | 09/03/2021 | WD | Warranty Deed | ALGEO JTWROS, DANIEL | ALGEO JTWROS, DANIEL | | | $0.00 | 50071 | 4529339 |
| 3 | 11/05/2019 | WD | Warranty Deed | DIENES, ERIKA | ALGEO JTWROS, DANIEL | | | $453,000.00 | 41073 | 4475393 |
| 4 | 05/02/2018 | WD | Warranty Deed | FISHER, JEFFREY D | DIENES, ERIKA | | | $425,000.00 | 34068 | 4444275 |
| 5 | 05/05/2005 | TRUSTEED | Trustee's Deed | HOUSEHOLD REALTY CORP, | FISHER, JEFFREY D | | | $179,500.00 | 52238 | 4134821 |
| 6 | 01/25/2005 | TRUSTEED | Trustee's Deed | HAGGLUND, THAROLD P | HOUSEHOLD REALTY CORP, | | | $143,954.00 | 50461 | 4124931 |
| 7 | 12/01/1992 | QCD | Quit Claim Deed | HAGGLUND, PATRICIA L | HAGGLUND, THAROLD P | | | $0.00 | 25027 | 92024847 |
| 8 | 01/01/1900 | OTHER | Other - Misc. Documents | Unknown | HAGGLUND, PATRICIA L | | | $0.00 | 0 | 0 |
Payout Agreement
| No payout information available.. |