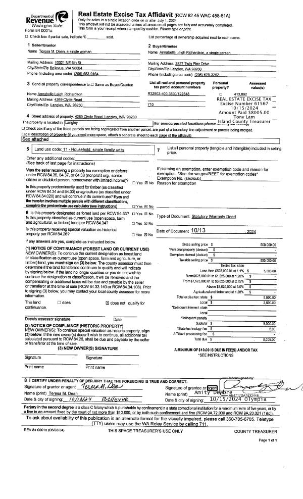
Property
Account |
| Property ID: | 122548 | Abbreviated Legal Description: | 122 - IN GL2: BG INTER SANDY POINT RD BEARS S88*E & WILKINSON RD BEARS N4*E N4*E40.51' S87*E230.85' N17.27' TPB N87*W208.97' N6*E91.31' S89*E199.10' S100' TPB |
| Geographic ID: | R32902-400-3830 | Agent Code: | |
| Type: | Real | | |
| Tax Area: | 710 - APPRAISER-S Whid Schl Dist, outside Langley, improved & 1 acre or less | Land Use Code | 11 |
| Open Space: | N | DFL | N |
| Historic Property: | N | Remodel Property: | N |
| Multi-Family Redevelopment: | N | | |
| Township: | 29 | Section: | 02 |
| Range: | R3 |
Location |
| Address: | 4269 CLYDE RD LANGLEY, WA 98260 | Mapsco: | |
| Neighborhood: | Cycle 4 | Map ID: | 722 |
| Neighborhood CD: | 4 |
Owner |
| Name: | RICHARDSON, ANNABELLE LEIGH | Owner ID: | 314219 |
| Mailing Address: | 4269 CLYDE RD LANGLEY, WA 98260 | % Ownership: | 100.0000000000% |
| | | Exemptions: | |
Taxes and Assessment Details
Values
| (+) Improvement Homesite Value: | + | $0 | |
| (+) Improvement Non-Homesite Value: | + | $206,244 | |
| (+) Land Homesite Value: | + | $0 | |
| (+) Land Non-Homesite Value: | + | $250,000 | |
| (+) Curr Use (HS): | + | $0 | $0 |
| (+) Curr Use (NHS): | + | $0 | $0 |
| | | -------------------------- | |
| (=) Market Value: | = | $456,244 | |
| (–) Productivity Loss: | – | $0 | |
| | | -------------------------- | |
| (=) Subtotal: | = | $456,244 | |
| (+) Senior Appraised Value: | + | $0 | |
| (+) Non-Senior Appraised Value: | + | $456,244 | |
| | | -------------------------- | |
| (=) Total Appraised Value: | = | $456,244 | |
| (–) Senior Exemption Loss: | – | $0 | |
| (–) Exemption Loss: | – | $0 | |
| | | -------------------------- | |
| (=) Taxable Value: | = | $456,244 | |
Taxing Jurisdiction
| Owner: | RICHARDSON, ANNABELLE LEIGH | | |
| % Ownership: | 100.0000000000% | | |
| Total Value: | $456,244 | | |
| Tax Area: | 710 - APPRAISER-S Whid Schl Dist, outside Langley, improved & 1 acre or less |
| CF | Conservation Futures | 0.0313996660 | $456,244 | $456,244 | $14.33 | | |
| FIRE3 | Fire & Rescue Dist #3 S Whidbey GEN | 1.2130821753 | $456,244 | $456,244 | $553.46 | | |
| HOBOND | Hospital BOND | 0.1893405597 | $456,244 | $456,244 | $86.39 | | |
| HOGEN | Hospital GEN | 0.3848777722 | $456,244 | $456,244 | $175.60 | | |
| CE | County Current Expense | 0.3674210519 | $456,244 | $456,244 | $167.63 | | |
| CR | County Roads | 0.4614296361 | $456,244 | $456,244 | $210.52 | | |
| ISLANDEMS | Hospital GEN (EMS) | 0.4952018576 | $456,244 | $456,244 | $225.93 | | |
| LIB | Library Sno-Isle GEN | 0.3039084203 | $456,244 | $456,244 | $138.66 | | |
| PORTWHID | Port of S Whidbey GEN | 0.1086004714 | $456,244 | $456,244 | $49.55 | | |
| SCH206BOND | School 206 BOND | 0.5960237832 | $456,244 | $456,244 | $271.93 | | |
| SCH206CAP | School 206 CP | 0.3066144020 | $456,244 | $456,244 | $139.89 | | |
| SCH206MO | School 206 Enrichment | 0.4808755445 | $456,244 | $456,244 | $219.40 | | |
| ST | State School | 1.4761226122 | $456,244 | $456,244 | $673.47 | | |
| ST2 | State School Part 2 | 0.7953803475 | $456,244 | $456,244 | $362.89 | | |
| SWHIDPRBD | P & R S Whidbey BOND | 0.0144185398 | $456,244 | $456,244 | $6.58 | | |
| SWHIDPRBD3 | P & R S Whidbey BOND3 | 0.1483535547 | $456,244 | $456,244 | $67.69 | | |
| SWHIDPRMT | P & R S Whidbey GEN | 0.4600000000 | $456,244 | $456,244 | $209.87 | | |
| | Total Tax Rate: | 7.8330503944 | | | | | |
| | | | | Taxes w/Current Exemptions: | $3,573.79 | | |
| | | | | Taxes w/o Exemptions: | $3,573.79 | | |
Improvement / Building
| Improvement #1: | RESIDENTIAL | State Code: | Y | 1036.0 sqft | Value: | $206,244 |
| Bathrooms: | 2 | Bedrooms: | 1 | | Ceiling: | BEAM PAINTED | Exterior Wall/Cover: | PLY/HARDBOARD T-111 | | Floor Covering: | CARPET/VINYL 60-40 | Floor Structure: | WOOD W/SUBFLOOR | | Foundation: | CONCRETE BLOCKS | Heating: | HEAT PUMP | | Interior Finish: | DRYWALL PAINT | Plumbing Fixture Cnt: | 9 | | Roof Slope: | FLAT | Roof Structure/Cover: | BEAM BUILT-UP ROCK |
|
| | Type | Description | Class CD | Sub Class CD | Year Built | Area |
| | BAS | BASE/MAIN FLOOR | 3 | 0 | 1968 | 1036.0 |
| | OWP | OPEN WOOD PORCH W/STEPS | 3 | 0 | 1968 | 290.0 |
| | DGR | DETACHED GARAGE | 3 | 0 | 1968 | 480.0 |
| | OWP | OPEN WOOD PORCH W/STEPS | 3 | 0 | 1968 | 177.5 |
Sketch
Property Image
Land
| 1 | 15 | SQ (12001-21780) | 0.0000 | 0.00 | 0.00 | 0.00 | 1.00 | $250,000 | $0 |
Roll Value History
| 2026 | N/A | N/A | N/A | N/A | N/A |
| 2025 | $206,244 | $250,000 | $0 | $456,244 | $456,244 |
| 2024 | $181,310 | $230,000 | $0 | $411,310 | $411,310 |
| 2023 | $183,892 | $230,000 | $0 | $413,892 | $413,892 |
| 2022 | $168,849 | $210,000 | $0 | $378,849 | $378,849 |
| 2021 | $148,863 | $150,000 | $0 | $298,863 | $298,863 |
| 2020 | $135,488 | $120,000 | $0 | $255,488 | $255,488 |
| 2019 | $96,991 | $170,000 | $0 | $266,991 | $266,991 |
| 2018 | $97,313 | $130,000 | $0 | $227,313 | $227,313 |
| 2017 | $97,958 | $120,000 | $0 | $217,958 | $217,958 |
| 2016 | $99,247 | $120,000 | $0 | $219,247 | $219,247 |
| 2015 | $100,535 | $139,500 | $0 | $240,035 | $240,035 |
| 2014 | $104,138 | $139,500 | $0 | $243,638 | $243,638 |
| 2013 | $105,400 | $139,500 | $0 | $244,900 | $244,900 |
| 2012 | $106,663 | $139,500 | $0 | $246,163 | $246,163 |
| 2011 | $107,926 | $155,000 | $0 | $262,926 | $262,926 |
| 2010 | $110,200 | $155,000 | $0 | $265,200 | $265,200 |
| 2009 | $114,912 | $100,000 | $0 | $214,912 | $214,912 |
| 2008 | $119,956 | $113,100 | $0 | $233,056 | $233,056 |
| 2007 | $121,625 | $113,100 | $0 | $234,725 | $234,725 |
Deed and Sales History
| 1 | 10/13/2024 | WD | Warranty Deed | DEAN, TERESA M | RICHARDSON, ANNABELLE LEIGH | | | $500,000.00 | 61567 | 4578219 |
| 2 | 11/01/1996 | WD | Warranty Deed | MALONE, DENICE C | DEAN, TERESA M | | | $147,700.00 | 64000 | 96019384 |
| 3 | 02/01/1996 | WD | Warranty Deed | NOGAL, SANDRA P | MALONE, DENICE C | | | $105,000.00 | 60608 | 96003272 |
| 4 | 06/01/1993 | WD | Warranty Deed | HALL, LILLIAN J | NOGAL, SANDRA P | | | $85,000.00 | 32317 | 93011988 |
| 5 | 08/01/1986 | QCD | Quit Claim Deed | HALL, LOUISE | HALL, LILLIAN J | | | $0.00 | 62331 | 86010645 |
| 6 | 04/01/1980 | PACD | Purchaser's Assignment | MITCHELL, AMELIA J | HALL, LOUISE | | | $0.00 | 1558 | 368480 |
| 7 | 01/01/1900 | OTHER | Other - Misc. Documents | Unknown | MITCHELL, AMELIA J | | | $0.00 | 0 | 0 |
Payout Agreement
| No payout information available.. |