Property
Account |
| Property ID: | 122593 | Abbreviated Legal Description: | 95 - IN GL2: BG JUNC (OLD) SANDY PT RD & CLINTON RD S4*W ALG CLINTON RD 282.5' S8*W290' S85*E235' TPB S85*E82.5' N4*E400' N85*W82 .5' S4*W400' TPB TGW: BG JUNC (OLD) SANDY PT RD & CLINTON RD S4*W ALG CLINTON RD 282.5' S8*W290' S85*E317 .5' TPB S85*E82.5' |
| Geographic ID: | R32902-411-4030 | Agent Code: | |
| Type: | Real | | |
| Tax Area: | 712 - APPRAISER-S Whid Schl Dist, outside Langley, improved, greater than 1 acre | Land Use Code | 11 |
| Open Space: | N | DFL | N |
| Historic Property: | N | Remodel Property: | N |
| Multi-Family Redevelopment: | N | | |
| Township: | 29 | Section: | 02 |
| Range: | R3 |
Location |
| Address: | 4285 CLYDE RD LANGLEY, WA 98260 | Mapsco: | |
| Neighborhood: | Cycle 4 | Map ID: | 722 |
| Neighborhood CD: | 4 |
Owner |
| Name: | MILLER, MARILYN | Owner ID: | 306974 |
| Mailing Address: | LOUIS ARMSTRONG 4291 CLYDE RD LANGELY, WA 98260 | % Ownership: | 100.0000000000% |
| | | Exemptions: | |
Taxes and Assessment Details
Values
| (+) Improvement Homesite Value: | + | $0 | |
| (+) Improvement Non-Homesite Value: | + | $1,218,172 | |
| (+) Land Homesite Value: | + | $0 | |
| (+) Land Non-Homesite Value: | + | $420,000 | |
| (+) Curr Use (HS): | + | $0 | $0 |
| (+) Curr Use (NHS): | + | $0 | $0 |
| | | -------------------------- | |
| (=) Market Value: | = | $1,638,172 | |
| (–) Productivity Loss: | – | $0 | |
| | | -------------------------- | |
| (=) Subtotal: | = | $1,638,172 | |
| (+) Senior Appraised Value: | + | $0 | |
| (+) Non-Senior Appraised Value: | + | $1,638,172 | |
| | | -------------------------- | |
| (=) Total Appraised Value: | = | $1,638,172 | |
| (–) Senior Exemption Loss: | – | $0 | |
| (–) Exemption Loss: | – | $0 | |
| | | -------------------------- | |
| (=) Taxable Value: | = | $1,638,172 | |
Taxing Jurisdiction
| Owner: | MILLER, MARILYN | | |
| % Ownership: | 100.0000000000% | | |
| Total Value: | $1,638,172 | | |
| Tax Area: | 712 - APPRAISER-S Whid Schl Dist, outside Langley, improved, greater than 1 acre |
| CF | Conservation Futures | 0.0313996660 | $1,638,172 | $1,638,172 | $51.44 | | |
| FIRE3 | Fire & Rescue Dist #3 S Whidbey GEN | 1.2130821753 | $1,638,172 | $1,638,172 | $1,987.24 | | |
| HOBOND | Hospital BOND | 0.1893405597 | $1,638,172 | $1,638,172 | $310.17 | | |
| HOGEN | Hospital GEN | 0.3848777722 | $1,638,172 | $1,638,172 | $630.50 | | |
| CE | County Current Expense | 0.3674210519 | $1,638,172 | $1,638,172 | $601.90 | | |
| CR | County Roads | 0.4614296361 | $1,638,172 | $1,638,172 | $755.90 | | |
| ISLANDEMS | Hospital GEN (EMS) | 0.4952018576 | $1,638,172 | $1,638,172 | $811.23 | | |
| LIB | Library Sno-Isle GEN | 0.3039084203 | $1,638,172 | $1,638,172 | $497.85 | | |
| PORTWHID | Port of S Whidbey GEN | 0.1086004714 | $1,638,172 | $1,638,172 | $177.91 | | |
| SCH206BOND | School 206 BOND | 0.5960237832 | $1,638,172 | $1,638,172 | $976.39 | | |
| SCH206CAP | School 206 CP | 0.3066144020 | $1,638,172 | $1,638,172 | $502.29 | | |
| SCH206MO | School 206 Enrichment | 0.4808755445 | $1,638,172 | $1,638,172 | $787.76 | | |
| ST | State School | 1.4761226122 | $1,638,172 | $1,638,172 | $2,418.14 | | |
| ST2 | State School Part 2 | 0.7953803475 | $1,638,172 | $1,638,172 | $1,302.97 | | |
| SWHIDPRBD | P & R S Whidbey BOND | 0.0144185398 | $1,638,172 | $1,638,172 | $23.62 | | |
| SWHIDPRBD3 | P & R S Whidbey BOND3 | 0.1483535547 | $1,638,172 | $1,638,172 | $243.03 | | |
| SWHIDPRMT | P & R S Whidbey GEN | 0.4600000000 | $1,638,172 | $1,638,172 | $753.56 | | |
| | Total Tax Rate: | 7.8330503944 | | | | | |
| | | | | Taxes w/Current Exemptions: | $12,831.90 | | |
| | | | | Taxes w/o Exemptions: | $12,831.90 | | |
Improvement / Building
| Improvement #1: | RESIDENTIAL | State Code: | Y | 3577.6 sqft | Value: | $1,218,172 |
| Bathrooms: | 2.5 | Bedrooms: | 3 | | Ceiling: | DRYWALL PAINTED | Cooling: | HEAT PUMP/CONV/V | | Exterior Wall/Cover: | VINYL | Floor Covering: | VINYL 100% | | Floor Structure: | WOOD W/SUBFLOOR | Foundation: | CONCRETE | | Interior Finish: | DRYWALL PAINT | Plumbing Fixture Cnt: | 16 | | Roof Slope: | FLAT | Roof Structure/Cover: | CJ METAL |
|
| | Type | Description | Class CD | Sub Class CD | Year Built | Area |
| | BAS | BASE/MAIN FLOOR | 6 | 0 | 2024 | 2342.2 |
| | oPOL | POLE BARN | 4 | 0 | 1960 | 3888.1 |
| | OWC | OPEN WOOD PORCH W/STEPS/ROOF/C | 6 | 0 | 2024 | 330.8 |
| | DWN | DOWNSTAIRS LIVING AREA | 6 | 0 | 2024 | 1235.4 |
| | OWP | OPEN WOOD PORCH W/STEPS | 6 | 0 | 2024 | 321.0 |
| | OWC | OPEN WOOD PORCH W/STEPS/ROOF/C | 6 | 0 | 2024 | 767.6 |
| | UTY | STORAGE/UTILITY | 6 | 0 | 2024 | 56.0 |
| | UTY | STORAGE/UTILITY | 6 | 0 | 2024 | 31.5 |
| | UTY | STORAGE/UTILITY | 6 | 0 | 2024 | 36.0 |
| | OP4 | OPEN PORCH W/CEILING-ROOF | 6 | 0 | 2024 | 420.0 |
| | OP4 | OPEN PORCH W/CEILING-ROOF | 6 | 0 | 2024 | 418.7 |
| | OP4 | OPEN PORCH W/CEILING-ROOF | 6 | 0 | 2024 | 247.0 |
Sketch
| No sketches available for this property. |
Property Image
Land
| 1 | 17 | AC (01.01-02.00) | 0.0000 | 0.00 | 0.00 | 0.00 | 1.00 | $420,000 | $0 |
Roll Value History
| 2026 | N/A | N/A | N/A | N/A | N/A |
| 2025 | $1,218,172 | $420,000 | $0 | $1,638,172 | $1,638,172 |
| 2024 | $468,827 | $400,000 | $0 | $868,827 | $868,827 |
| 2023 | $171,438 | $380,000 | $0 | $551,438 | $551,438 |
| 2022 | $319,245 | $280,000 | $0 | $599,245 | $599,245 |
| 2021 | $288,567 | $260,000 | $0 | $548,567 | $548,567 |
| 2020 | $273,176 | $230,000 | $0 | $503,176 | $503,176 |
| 2019 | $209,531 | $260,000 | $0 | $469,531 | $469,531 |
| 2018 | $210,156 | $230,000 | $0 | $440,156 | $440,156 |
| 2017 | $211,404 | $190,000 | $0 | $401,404 | $401,404 |
| 2016 | $213,903 | $180,000 | $0 | $393,903 | $393,903 |
| 2015 | $215,533 | $180,000 | $0 | $395,533 | $395,533 |
| 2014 | $146,475 | $180,000 | $0 | $326,475 | $326,475 |
| 2013 | $148,992 | $180,000 | $0 | $328,992 | $328,992 |
| 2012 | $151,509 | $180,000 | $0 | $331,509 | $331,509 |
| 2011 | $154,026 | $200,000 | $0 | $354,026 | $354,026 |
| 2010 | $177,062 | $200,000 | $0 | $377,062 | $377,062 |
| 2009 | $185,140 | $276,895 | $0 | $462,035 | $462,035 |
| 2008 | $169,592 | $276,895 | $0 | $446,487 | $446,487 |
| 2007 | $173,321 | $276,895 | $0 | $450,216 | $450,216 |
Deed and Sales History
| 1 | 07/28/2022 | WD | Warranty Deed | CLYDE, JOE | MILLER, MARILYN | | | $1,900,000.00 | 54212 | 4549921 |
|   | |
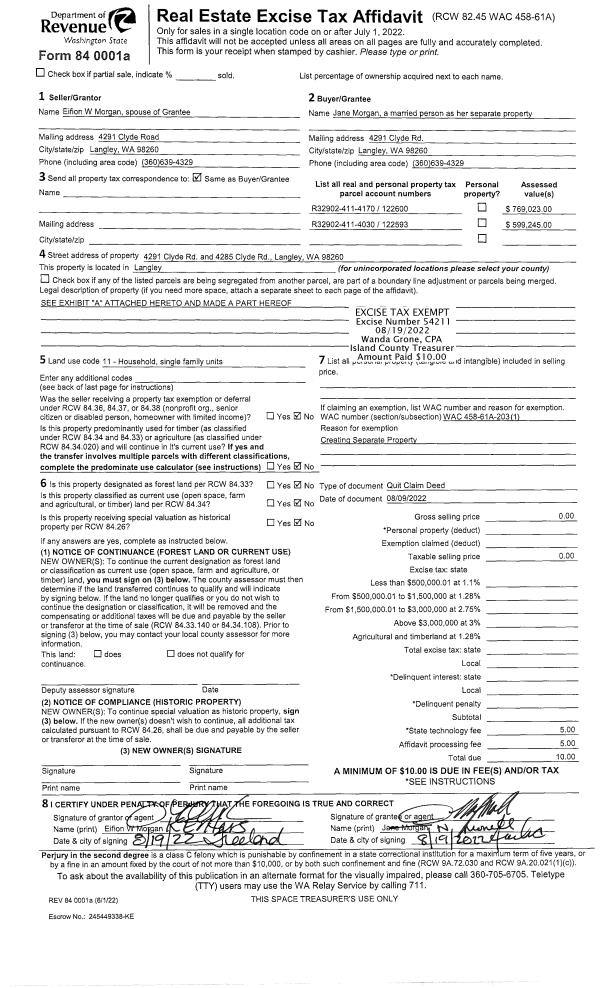
| 2 | 08/09/2022 | QCD | Quit Claim Deed | MORGAN, EIFION W | MORGAN, JANE | | | $0.00 | 54211 | 4549919 |
| 3 | 08/28/2019 | PRD | Personal Representatives Deed | CLYDE, RICHARD E | MORGAN, JANE | | | $0.00 | 40114 | 4470707 |
| 4 | 12/01/1993 | QCD | Quit Claim Deed | CLYDE, RICHARD E | CLYDE, RICHARD E | | | $0.00 | 34828 | 93025181 |
| 5 | 11/01/1992 | QCD | Quit Claim Deed | CLYDE, RICHARD E | CLYDE, RICHARD E | | | $0.00 | 24749 | 92023356 |
| 6 | 12/01/1991 | QCD | Quit Claim Deed | , | CLYDE, RICHARD E | | | $0.00 | 14539 | 91019902 |
| 7 | 01/01/1900 | OTHER | Other - Misc. Documents | CLYDE, RICHARD E | , | | | $0.00 | 0 | 0 |
| 8 | 01/01/1900 | OTHER | Other - Misc. Documents | Unknown | CLYDE, RICHARD E | | | $0.00 | 0 | 0 |
Payout Agreement
| No payout information available.. |