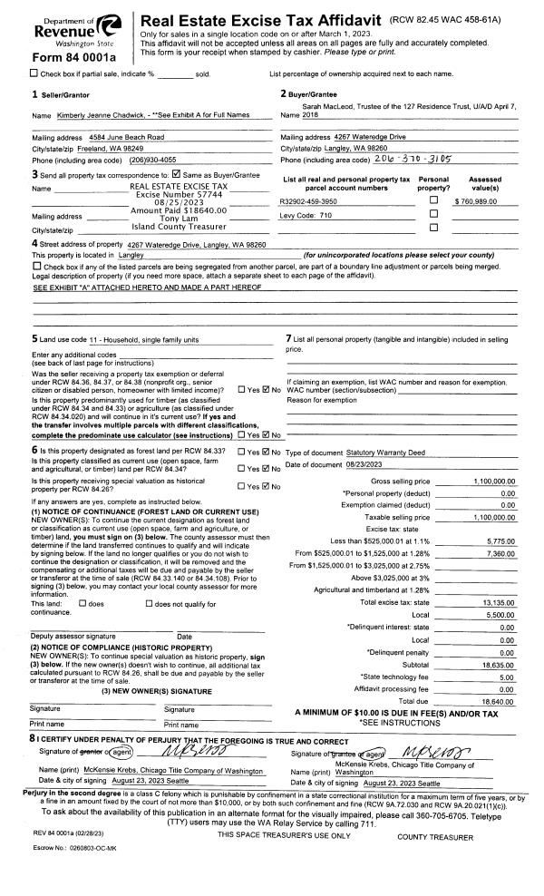
Property
Account |
| Property ID: | 122995 | Abbreviated Legal Description: | 69 - IN GL2: BG INTER SANDY PT RD W/LANGLEY RD & CLINTON RD SLY ALG CLINTON RD S4*W282.5' S8*W290' S85*E235' N4*E645' TO NLN CO RD TPB ELY 82' N3*E100' M/L TO FOOT OF BLUFF W82' S3*W100' TPB |
| Geographic ID: | R32902-459-3950 | Agent Code: | |
| Type: | Real | | |
| Tax Area: | 710 - APPRAISER-S Whid Schl Dist, outside Langley, improved & 1 acre or less | Land Use Code | 11 |
| Open Space: | N | DFL | N |
| Historic Property: | N | Remodel Property: | N |
| Multi-Family Redevelopment: | N | | |
| Township: | 29 | Section: | 02 |
| Range: | R3 |
Location |
| Address: | 4267 WATEREDGE DR LANGLEY, WA 98260 | Mapsco: | |
| Neighborhood: | Cycle 4 | Map ID: | 722 |
| Neighborhood CD: | 4 |
Owner |
| Name: | MACLEOD TTEE, SARAH | Owner ID: | 309793 |
| Mailing Address: | 2206 E THOMAS ST SEATTLE, WA 98112 | % Ownership: | 100.0000000000% |
| | | Exemptions: | |
Taxes and Assessment Details
Values
| (+) Improvement Homesite Value: | + | $0 | |
| (+) Improvement Non-Homesite Value: | + | $295,264 | |
| (+) Land Homesite Value: | + | $0 | |
| (+) Land Non-Homesite Value: | + | $625,000 | |
| (+) Curr Use (HS): | + | $0 | $0 |
| (+) Curr Use (NHS): | + | $0 | $0 |
| | | -------------------------- | |
| (=) Market Value: | = | $920,264 | |
| (–) Productivity Loss: | – | $0 | |
| | | -------------------------- | |
| (=) Subtotal: | = | $920,264 | |
| (+) Senior Appraised Value: | + | $0 | |
| (+) Non-Senior Appraised Value: | + | $920,264 | |
| | | -------------------------- | |
| (=) Total Appraised Value: | = | $920,264 | |
| (–) Senior Exemption Loss: | – | $0 | |
| (–) Exemption Loss: | – | $0 | |
| | | -------------------------- | |
| (=) Taxable Value: | = | $920,264 | |
Taxing Jurisdiction
| Owner: | MACLEOD TTEE, SARAH | | |
| % Ownership: | 100.0000000000% | | |
| Total Value: | $920,264 | | |
| Tax Area: | 710 - APPRAISER-S Whid Schl Dist, outside Langley, improved & 1 acre or less |
| CF | Conservation Futures | 0.0313996660 | $920,264 | $920,264 | $28.90 | | |
| FIRE3 | Fire & Rescue Dist #3 S Whidbey GEN | 1.2130821753 | $920,264 | $920,264 | $1,116.36 | | |
| HOBOND | Hospital BOND | 0.1893405597 | $920,264 | $920,264 | $174.24 | | |
| HOGEN | Hospital GEN | 0.3848777722 | $920,264 | $920,264 | $354.19 | | |
| CE | County Current Expense | 0.3674210519 | $920,264 | $920,264 | $338.12 | | |
| CR | County Roads | 0.4614296361 | $920,264 | $920,264 | $424.64 | | |
| ISLANDEMS | Hospital GEN (EMS) | 0.4952018576 | $920,264 | $920,264 | $455.72 | | |
| LIB | Library Sno-Isle GEN | 0.3039084203 | $920,264 | $920,264 | $279.68 | | |
| PORTWHID | Port of S Whidbey GEN | 0.1086004714 | $920,264 | $920,264 | $99.94 | | |
| SCH206BOND | School 206 BOND | 0.5960237832 | $920,264 | $920,264 | $548.50 | | |
| SCH206CAP | School 206 CP | 0.3066144020 | $920,264 | $920,264 | $282.17 | | |
| SCH206MO | School 206 Enrichment | 0.4808755445 | $920,264 | $920,264 | $442.53 | | |
| ST | State School | 1.4761226122 | $920,264 | $920,264 | $1,358.42 | | |
| ST2 | State School Part 2 | 0.7953803475 | $920,264 | $920,264 | $731.96 | | |
| SWHIDPRBD | P & R S Whidbey BOND | 0.0144185398 | $920,264 | $920,264 | $13.27 | | |
| SWHIDPRBD3 | P & R S Whidbey BOND3 | 0.1483535547 | $920,264 | $920,264 | $136.52 | | |
| SWHIDPRMT | P & R S Whidbey GEN | 0.4600000000 | $920,264 | $920,264 | $423.32 | | |
| | Total Tax Rate: | 7.8330503944 | | | | | |
| | | | | Taxes w/Current Exemptions: | $7,208.48 | | |
| | | | | Taxes w/o Exemptions: | $7,208.48 | | |
Improvement / Building
| Improvement #1: | RESIDENTIAL | State Code: | Y | 825.0 sqft | Value: | $295,264 |
| Bathrooms: | 1 | Bedrooms: | 1 | | Ceiling: | TONGUE & GROOVE | Cooling: | HEAT PUMP/CONV/V | | Exterior Wall/Cover: | WOOD SIDING | Floor Covering: | CARPET/VINYL 80-20 | | Floor Structure: | WOOD W/SUBFLOOR | Foundation: | PIERS/CONCRETE | | Interior Finish: | DRYWALL PAINT | Plumbing Fixture Cnt: | 7 | | Roof Slope: | 6" IN 12" | Roof Structure/Cover: | CJ ASPHALT |
|
| | Type | Description | Class CD | Sub Class CD | Year Built | Area |
| | BAS | BASE/MAIN FLOOR | 3 | 0 | 1920 | 675.0 |
| | UTY | STORAGE/UTILITY | 3 | 0 | 1920 | 45.0 |
| | OWP | OPEN WOOD PORCH W/STEPS | 3 | 0 | 1920 | 797.0 |
| | LOF | LOFT | 3 | 0 | 1920 | 150.0 |
| | UTY | STORAGE/UTILITY | 3 | 0 | 1920 | 0.0 |
| | TRM | Tram on Bluff | 3 | 0 | 1920 | 0.0 |
| | UTY | STORAGE/UTILITY | 3 | 0 | 1920 | 455.0 |
Sketch
Property Image
Land
| 1 | HB | HIGH BLUFF | 0.2191 | 9544.00 | 82.00 | 0.00 | 1.00 | $625,000 | $0 |
Roll Value History
| 2026 | N/A | N/A | N/A | N/A | N/A |
| 2025 | $295,264 | $625,000 | $0 | $920,264 | $920,264 |
| 2024 | $297,610 | $625,000 | $0 | $922,610 | $922,610 |
| 2023 | $135,989 | $625,000 | $0 | $760,989 | $760,989 |
| 2022 | $126,120 | $700,000 | $0 | $826,120 | $826,120 |
| 2021 | $112,907 | $650,000 | $0 | $762,907 | $762,907 |
| 2020 | $99,620 | $650,000 | $0 | $749,620 | $749,620 |
| 2019 | $74,419 | $650,000 | $0 | $724,419 | $724,419 |
| 2018 | $74,653 | $450,000 | $0 | $524,653 | $524,653 |
| 2017 | $75,121 | $450,000 | $0 | $525,121 | $525,121 |
| 2016 | $69,621 | $450,000 | $0 | $519,621 | $519,621 |
| 2015 | $70,512 | $450,000 | $0 | $520,512 | $520,512 |
| 2014 | $51,585 | $147,374 | $0 | $198,959 | $198,959 |
| 2013 | $52,447 | $147,374 | $0 | $199,821 | $199,821 |
| 2012 | $53,311 | $147,374 | $0 | $200,685 | $200,685 |
| 2011 | $54,174 | $163,749 | $0 | $217,923 | $217,923 |
| 2010 | $60,656 | $163,749 | $0 | $224,405 | $224,405 |
| 2009 | $63,744 | $174,202 | $0 | $237,946 | $237,946 |
| 2008 | $25,338 | $205,010 | $0 | $230,348 | $230,348 |
| 2007 | $58,588 | $209,443 | $0 | $268,031 | $268,031 |
Deed and Sales History
| 1 | 08/23/2023 | WD | Warranty Deed | CHADWICK, KIMBERLY JEANNE | MACLEOD TTEE, SARAH | | | $1,100,000.00 | 57744 | 4563929 |
| 2 | 12/08/2020 | QCD | Quit Claim Deed | NOWLIS, TIMOTHY | CHADWICK, KIMBERLY JEANNE | | | $0.00 | 47368 | 4513744 |
| 3 | 05/01/1994 | WD | Warranty Deed | MCNEIL, SCOTT D | NOWLIS, TIMOTHY | | | $117,000.00 | 42049 | 94011989 |
| 4 | 11/01/1993 | WD | Warranty Deed | LEDRAY, WILLIAM | MCNEIL, SCOTT D | | | $62,500.00 | 34416 | 93023072 |
| 5 | 06/01/1964 | TRUSTEED | Trustee's Deed | LEDRAY, VINCENT L | LEDRAY, WILLIAM | | | $1,500.00 | 17353 | 0 |
| 6 | 01/01/1900 | OTHER | Other - Misc. Documents | Unknown | LEDRAY, VINCENT L | | | $0.00 | 0 | 0 |
Payout Agreement
| No payout information available.. |