Property
Account |
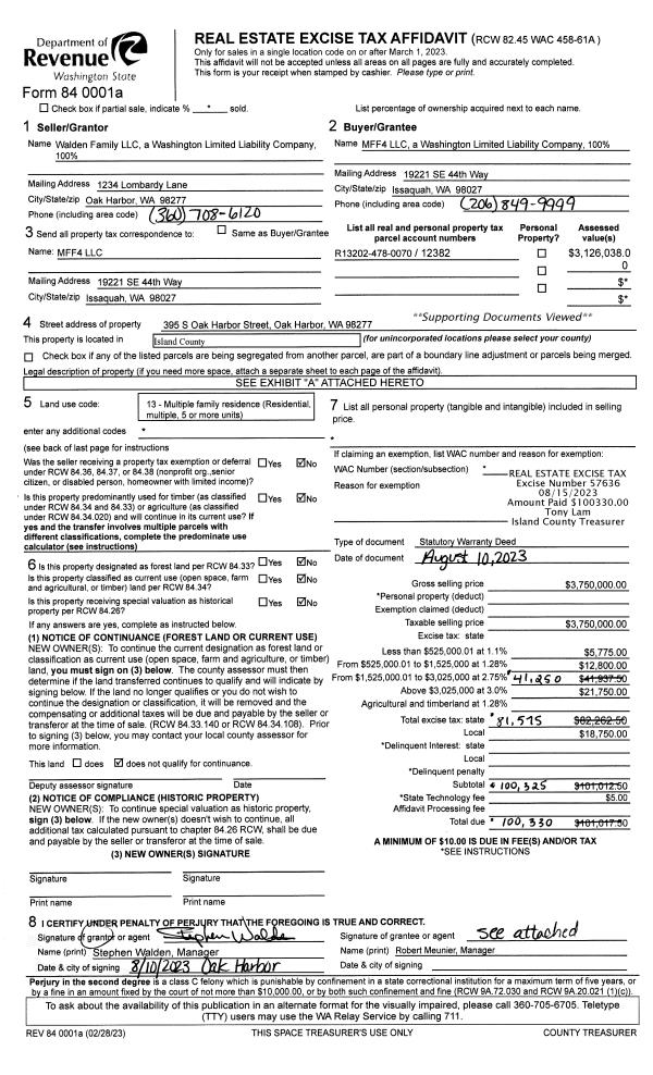
| Property ID: | 12382 | Abbreviated Legal Description: | 32 FREUND DC - BG 1023.85'S OF NE CR SD DLC S199' W351. 75' N199' E351.75' TPB EX ST |
| Geographic ID: | R13202-478-0070 | Agent Code: | |
| Type: | Real | | |
| Tax Area: | 100 - APPRAISER-OH Schl Dist, in OH | Land Use Code | 13 |
| Open Space: | N | DFL | N |
| Historic Property: | N | Remodel Property: | N |
| Multi-Family Redevelopment: | N | | |
| Township: | 32 | Section: | 02 |
| Range: | R1 |
Location |
| Address: | 395 S OAK HARBOR RD OAK HARBOR, WA 98277 | Mapsco: | |
| Neighborhood: | 11cOH-oak harbor | Map ID: | 88 |
| Neighborhood CD: | 11cOHoharb |
Owner |
| Name: | MFF4 LLC | Owner ID: | 309678 |
| Mailing Address: | 19221 SE 44TH WAY ISSAQUAH, WA 98027 | % Ownership: | 100.0000000000% |
| | | Exemptions: | |
Taxes and Assessment Details
Values
| (+) Improvement Homesite Value: | + | $0 | |
| (+) Improvement Non-Homesite Value: | + | $1,576,385 | |
| (+) Land Homesite Value: | + | $0 | |
| (+) Land Non-Homesite Value: | + | $2,117,016 | |
| (+) Curr Use (HS): | + | $0 | $0 |
| (+) Curr Use (NHS): | + | $0 | $0 |
| | | -------------------------- | |
| (=) Market Value: | = | $3,693,401 | |
| (–) Productivity Loss: | – | $0 | |
| | | -------------------------- | |
| (=) Subtotal: | = | $3,693,401 | |
| (+) Senior Appraised Value: | + | $0 | |
| (+) Non-Senior Appraised Value: | + | $3,693,401 | |
| | | -------------------------- | |
| (=) Total Appraised Value: | = | $3,693,401 | |
| (–) Senior Exemption Loss: | – | $0 | |
| (–) Exemption Loss: | – | $0 | |
| | | -------------------------- | |
| (=) Taxable Value: | = | $3,693,401 | |
Taxing Jurisdiction
| Owner: | MFF4 LLC | | |
| % Ownership: | 100.0000000000% | | |
| Total Value: | $3,693,401 | | |
| Tax Area: | 100 - APPRAISER-OH Schl Dist, in OH |
| CF | Conservation Futures | 0.0313996660 | $3,693,401 | $3,693,401 | $115.97 | | |
| CEM1 | Cemetery #1 | 0.0040018856 | $3,693,401 | $3,693,401 | $14.78 | | |
| COH | City of Oak Harbor | 2.3090730572 | $3,693,401 | $3,693,401 | $8,528.33 | | |
| OAKBOND | City of Oak Harbor BOND | 0.1902260131 | $3,693,401 | $3,693,401 | $702.58 | | |
| HOBOND | Hospital BOND | 0.1893405597 | $3,693,401 | $3,693,401 | $699.31 | | |
| HOGEN | Hospital GEN | 0.3848777722 | $3,693,401 | $3,693,401 | $1,421.51 | | |
| CE | County Current Expense | 0.3674210519 | $3,693,401 | $3,693,401 | $1,357.03 | | |
| ISLANDEMS | Hospital GEN (EMS) | 0.4952018576 | $3,693,401 | $3,693,401 | $1,828.98 | | |
| LIB | Library Sno-Isle GEN | 0.3039084203 | $3,693,401 | $3,693,401 | $1,122.46 | | |
| NWHIDPRMT | P & R N Whidbey GEN | 0.1990272349 | $3,693,401 | $3,693,401 | $735.09 | | |
| SCH201MO | School 201 Enrichment | 2.3851112745 | $3,693,401 | $3,693,401 | $8,809.17 | | |
| ST | State School | 1.4761226122 | $3,693,401 | $3,693,401 | $5,451.91 | | |
| ST2 | State School Part 2 | 0.7953803475 | $3,693,401 | $3,693,401 | $2,937.66 | | |
| | Total Tax Rate: | 9.1310917527 | | | | | |
| | | | | Taxes w/Current Exemptions: | $33,724.78 | | |
| | | | | Taxes w/o Exemptions: | $33,724.78 | | |
Improvement / Building
| Improvement #1: | COMMERCIAL | State Code: | B1 | 17830.0 sqft | Value: | $1,576,385 |
| Bathrooms: | 0 | Bedrooms: | 0 | | Ceiling: | DRY WALL SPRAYED | Exterior Wall/Cover: | WOOD SIDING | | Floor Covering: | CARPET/VINYL 80-20 | Floor Structure: | WOOD W/SUBFLOOR | | Foundation: | CONCRETE | Heating: | BASEBOARD ELECTRIC | | Interior Finish: | DRYWALL PAINT | Plumbing Fixture Cnt: | 100 | | Roof Slope: | 5" IN 12" | Roof Structure/Cover: | CJ ASPHALT |
|
| | Type | Description | Class CD | Sub Class CD | Year Built | Area |
| | BAS | BASE/MAIN FLOOR | 3 | 0 | 1977 | 9944.0 |
| | OP1 | OPEN PORCH SLAB | 3 | 0 | 1977 | 1342.0 |
| | UPS | UPPER STORY | 3 | 0 | 1977 | 7886.0 |
| | BAW | BALCONY WOOD RAIL | 3 | 0 | 1977 | 984.0 |
| | OCP | OPEN CARPORT | 3 | 0 | 1977 | 4960.0 |
| | UTY | STORAGE/UTILITY | 3 | 0 | 1977 | 800.0 |
| | OWR | OPEN WOOD PORCH W/STEPS/ROOF | 3 | 0 | 1977 | 654.0 |
| | oPV1 | PV/ASPH 2" | 3 | 0 | 1977 | 13940.0 |
Sketch
Property Image
Land
| 1 | 61 | MULTIPLE RESIDENCES | 1.6200 | 70567.20 | 0.00 | 0.00 | 1.00 | $2,117,016 | $0 |
Roll Value History
| 2026 | N/A | N/A | N/A | N/A | N/A |
| 2025 | $1,576,385 | $2,117,016 | $0 | $3,693,401 | $3,693,401 |
| 2024 | $1,623,271 | $2,117,016 | $0 | $3,740,287 | $3,740,287 |
| 2023 | $1,165,518 | $2,117,016 | $0 | $3,282,534 | $3,282,534 |
| 2022 | $1,009,022 | $2,117,016 | $0 | $3,126,038 | $3,126,038 |
| 2021 | $994,506 | $2,117,016 | $0 | $3,111,522 | $3,111,522 |
| 2020 | $992,170 | $2,117,016 | $0 | $3,109,186 | $3,109,186 |
| 2019 | $946,147 | $2,117,016 | $0 | $3,063,163 | $3,063,163 |
| 2018 | $946,451 | $1,834,747 | $0 | $2,781,198 | $2,781,198 |
| 2017 | $961,464 | $388,120 | $0 | $1,349,584 | $1,349,584 |
| 2016 | $961,464 | $388,120 | $0 | $1,349,584 | $1,349,584 |
| 2015 | $961,464 | $409,289 | $0 | $1,370,753 | $1,370,753 |
| 2014 | $961,464 | $409,289 | $0 | $1,370,753 | $1,370,753 |
| 2013 | $961,464 | $409,289 | $0 | $1,370,753 | $1,370,753 |
| 2012 | $961,464 | $409,289 | $0 | $1,370,753 | $1,370,753 |
| 2011 | $961,464 | $409,289 | $0 | $1,370,753 | $1,370,753 |
| 2010 | $934,493 | $409,289 | $0 | $1,343,782 | $1,343,782 |
| 2009 | $946,926 | $596,291 | $0 | $1,543,217 | $1,543,217 |
| 2008 | $959,359 | $627,341 | $0 | $1,586,700 | $1,586,700 |
| 2007 | $971,792 | $627,341 | $0 | $1,599,133 | $1,599,133 |
Deed and Sales History
| 1 | 08/10/2023 | WD | Warranty Deed | WALDEN FAMILY LLC | MFF4 LLC | | | $3,750,000.00 | 57636 | 4563558 |
| 2 | 12/31/2005 | 5 | DNU - Marriage License/Name Change | WALDEN, STEPHEN M | WALDEN FAMILY LLC, | | | $0.00 | 60089 | 4159252 |
| 3 | 01/01/1984 | OTHER | Other - Misc. Documents | WALDEN, S M | WALDEN, STEPHEN M | | | $0.00 | 60382 | 0 |
| 4 | 05/01/1978 | OTHER | Other - Misc. Documents | Unknown | WALDEN, S M | | | $0.00 | 82505 | 333758 |
Payout Agreement
| No payout information available.. |