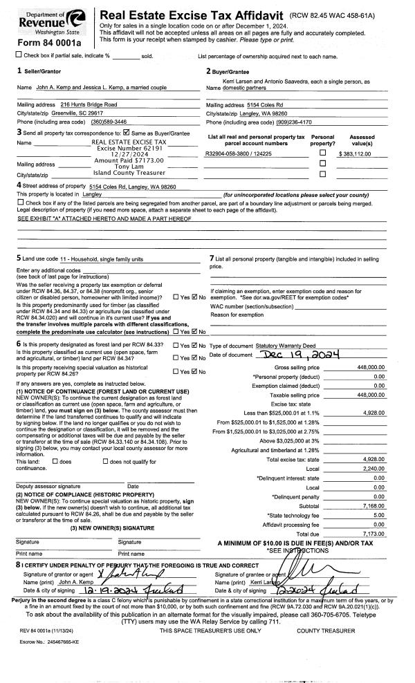
Property
Account |
| Property ID: | 124225 | Abbreviated Legal Description: | 24 - N200' MEAS ALG WLN & PAR/W SLN SE SW SE LY W OF COLES RD WATER LN EZ AF#409059 TR A SP 73-086 (LOT A SURVEY V1 SUR P63 AF#269942) |
| Geographic ID: | R32904-058-3800 | Agent Code: | |
| Type: | Real | | |
| Tax Area: | 712 - APPRAISER-S Whid Schl Dist, outside Langley, improved, greater than 1 acre | Land Use Code | 11 |
| Open Space: | N | DFL | N |
| Historic Property: | N | Remodel Property: | N |
| Multi-Family Redevelopment: | N | | |
| Township: | 29 | Section: | 04 |
| Range: | R3 |
Location |
| Address: | 5154 COLES RD LANGLEY, WA 98260 | Mapsco: | |
| Neighborhood: | Cycle 4 | Map ID: | 729 |
| Neighborhood CD: | 4 |
Owner |
| Name: | LARSEN, KERRI | Owner ID: | 314989 |
| Mailing Address: | ANTONIO SAAVEDRA 5154 COLES RD LANGLEY, WA 98260 | % Ownership: | 100.0000000000% |
| | | Exemptions: | |
Taxes and Assessment Details
Values
| (+) Improvement Homesite Value: | + | $0 | |
| (+) Improvement Non-Homesite Value: | + | $142,504 | |
| (+) Land Homesite Value: | + | $0 | |
| (+) Land Non-Homesite Value: | + | $290,000 | |
| (+) Curr Use (HS): | + | $0 | $0 |
| (+) Curr Use (NHS): | + | $0 | $0 |
| | | -------------------------- | |
| (=) Market Value: | = | $432,504 | |
| (–) Productivity Loss: | – | $0 | |
| | | -------------------------- | |
| (=) Subtotal: | = | $432,504 | |
| (+) Senior Appraised Value: | + | $0 | |
| (+) Non-Senior Appraised Value: | + | $432,504 | |
| | | -------------------------- | |
| (=) Total Appraised Value: | = | $432,504 | |
| (–) Senior Exemption Loss: | – | $0 | |
| (–) Exemption Loss: | – | $0 | |
| | | -------------------------- | |
| (=) Taxable Value: | = | $432,504 | |
Taxing Jurisdiction
| Owner: | LARSEN, KERRI | | |
| % Ownership: | 100.0000000000% | | |
| Total Value: | $432,504 | | |
| Tax Area: | 712 - APPRAISER-S Whid Schl Dist, outside Langley, improved, greater than 1 acre |
| CF | Conservation Futures | 0.0313996660 | $432,504 | $432,504 | $13.58 | | |
| FIRE3 | Fire & Rescue Dist #3 S Whidbey GEN | 1.2130821753 | $432,504 | $432,504 | $524.66 | | |
| HOBOND | Hospital BOND | 0.1893405597 | $432,504 | $432,504 | $81.89 | | |
| HOGEN | Hospital GEN | 0.3848777722 | $432,504 | $432,504 | $166.46 | | |
| CE | County Current Expense | 0.3674210519 | $432,504 | $432,504 | $158.91 | | |
| CR | County Roads | 0.4614296361 | $432,504 | $432,504 | $199.57 | | |
| ISLANDEMS | Hospital GEN (EMS) | 0.4952018576 | $432,504 | $432,504 | $214.18 | | |
| LIB | Library Sno-Isle GEN | 0.3039084203 | $432,504 | $432,504 | $131.44 | | |
| PORTWHID | Port of S Whidbey GEN | 0.1086004714 | $432,504 | $432,504 | $46.97 | | |
| SCH206BOND | School 206 BOND | 0.5960237832 | $432,504 | $432,504 | $257.78 | | |
| SCH206CAP | School 206 CP | 0.3066144020 | $432,504 | $432,504 | $132.61 | | |
| SCH206MO | School 206 Enrichment | 0.4808755445 | $432,504 | $432,504 | $207.98 | | |
| ST | State School | 1.4761226122 | $432,504 | $432,504 | $638.43 | | |
| ST2 | State School Part 2 | 0.7953803475 | $432,504 | $432,504 | $344.01 | | |
| SWHIDPRBD | P & R S Whidbey BOND | 0.0144185398 | $432,504 | $432,504 | $6.24 | | |
| SWHIDPRBD3 | P & R S Whidbey BOND3 | 0.1483535547 | $432,504 | $432,504 | $64.16 | | |
| SWHIDPRMT | P & R S Whidbey GEN | 0.4600000000 | $432,504 | $432,504 | $198.95 | | |
| | Total Tax Rate: | 7.8330503944 | | | | | |
| | | | | Taxes w/Current Exemptions: | $3,387.82 | | |
| | | | | Taxes w/o Exemptions: | $3,387.82 | | |
Improvement / Building
| Improvement #1: | MANUFACTURED HOME | State Code: | Y | 1607.7 sqft | Value: | $142,504 |
| Bathrooms: | 0 | Bedrooms: | 0 | | Ceiling: | PLASTER PAINTED | Cooling: | EVAP NO DUCT | | Exterior Wall/Cover: | VINYL | Floor Covering: | CARPET 100% | | Floor Structure: | SLAB ON GRADE | Foundation: | SLAB | | Heating: | FHA ELECTRIC | Interior Finish: | PLASTER | | Plumbing Fixture Cnt: | 1 | Roof Slope: | FLAT | | Roof Structure/Cover: | CJ ALUMINIUM HEAVY |   |   |
|
| | Type | Description | Class CD | Sub Class CD | Year Built | Area |
| | BAS | BASE/MAIN FLOOR | 4 | 0 | 1988 | 1607.7 |
| | OWR | OPEN WOOD PORCH W/STEPS/ROOF | 4 | 0 | 1988 | 97.4 |
| | UTY | STORAGE/UTILITY | 4 | 0 | 1988 | 400.0 |
| | OWP | OPEN WOOD PORCH W/STEPS | 4 | 0 | 1988 | 216.0 |
Sketch
Property Image
Land
| 1 | 17 | AC (01.01-02.00) | 0.0000 | 0.00 | 0.00 | 0.00 | 1.00 | $290,000 | $0 |
Roll Value History
| 2026 | N/A | N/A | N/A | N/A | N/A |
| 2025 | $142,504 | $290,000 | $0 | $432,504 | $432,504 |
| 2024 | $103,112 | $280,000 | $0 | $383,112 | $383,112 |
| 2023 | $106,438 | $260,000 | $0 | $366,438 | $366,438 |
| 2022 | $99,389 | $250,000 | $0 | $349,389 | $349,389 |
| 2021 | $89,042 | $155,000 | $0 | $244,042 | $244,042 |
| 2020 | $83,907 | $165,000 | $0 | $248,907 | $248,907 |
| 2019 | $68,097 | $200,000 | $0 | $268,097 | $268,097 |
| 2018 | $47,118 | $170,000 | $0 | $217,118 | $217,118 |
| 2017 | $49,598 | $150,000 | $0 | $199,598 | $199,598 |
| 2016 | $51,251 | $115,000 | $0 | $166,251 | $166,251 |
| 2015 | $52,905 | $100,000 | $0 | $152,905 | $152,905 |
| 2014 | $49,239 | $85,000 | $0 | $134,239 | $134,239 |
| 2013 | $51,249 | $85,000 | $0 | $136,249 | $136,249 |
| 2012 | $52,590 | $97,750 | $0 | $150,340 | $150,340 |
| 2011 | $53,930 | $115,000 | $0 | $168,930 | $168,930 |
| 2010 | $53,324 | $115,000 | $0 | $168,324 | $168,324 |
| 2009 | $56,327 | $155,000 | $0 | $211,327 | $211,327 |
| 2008 | $59,644 | $105,524 | $0 | $165,168 | $165,168 |
| 2007 | $61,436 | $105,524 | $0 | $166,960 | $166,960 |
Deed and Sales History
| 1 | 12/19/2024 | WD | Warranty Deed | KEMP, JOHN A | LARSEN, KERRI | | | $448,000.00 | 62191 | 4580749 |
| 2 | 08/21/2018 | WD | Warranty Deed | HOISETH, JUDIE | KEMP, JOHN A | | | $315,000.00 | 35580 | 4450473 |
| 3 | 02/23/2005 | WD | Warranty Deed | TAYLOR, HARRY C | HOISETH, JUDIE | | | $188,000.00 | 50719 | 4126625 |
| 4 | 06/01/2001 | WD | Warranty Deed | RESNICK, ESTER J | TAYLOR, HARRY C | | | $133,000.00 | 12072 | 20034069 |
| 5 | 05/01/1992 | QCD | Quit Claim Deed | RESNICK, ESTER | RESNICK, ESTER J | | | $0.00 | 21868 | 92008925 |
| 6 | 02/01/1992 | OTHER | Other - Misc. Documents | RESNICK, ESTER J | RESNICK, ESTER | | | $0.00 | 20461 | 0 |
| 7 | 10/01/1991 | WD | Warranty Deed | NEVILLE, M R | RESNICK, ESTER J | | | $50,000.00 | 14092 | 91017558 |
| 8 | 06/01/1991 | WD | Warranty Deed | NEVILLE, RUSS / | NEVILLE, M R | | | $32,000.00 | 12268 | 91009714 |
| 9 | 06/01/1988 | OTHER | Other - Misc. Documents | INMAN, GUY E | NEVILLE, RUSS / | | | $27,000.00 | 11111111 | 0 |
| 10 | 01/01/1974 | EXECUTORD | Executor Deed | JOHNSON, DURWOOD | INMAN, GUY E | | | $0.00 | 51755 | 0 |
| 11 | 01/01/1900 | OTHER | Other - Misc. Documents | Unknown | JOHNSON, DURWOOD | | | $0.00 | 0 | 0 |
Payout Agreement
| No payout information available.. |