Property
Account |
| Property ID: | 124715 | Abbreviated Legal Description: | 48 - IN GL6 BG SW CR L6 ON ML OF LONE LAKE TH N ALG ML TO NW CR TO NW CR OF 1 ACRE OF LAND OWNED BY ST OF WA TPB TH E ALG ST OF WA LAND TO WLN OF RD TH N ALG WLN OF RD 60' TH WLY TO PT ON ML OF LAKE 100' N OF TPB TH SLY ALG ML TPB |
| Geographic ID: | R32905-037-1630 | Agent Code: | |
| Type: | Real | | |
| Tax Area: | 710 - APPRAISER-S Whid Schl Dist, outside Langley, improved & 1 acre or less | Land Use Code | 11 |
| Open Space: | N | DFL | N |
| Historic Property: | N | Remodel Property: | N |
| Multi-Family Redevelopment: | N | | |
| Township: | 29 | Section: | 05 |
| Range: | R3 |
Location |
| Address: | 5180 BAYVIEW RD LANGLEY, WA 98260 | Mapsco: | |
| Neighborhood: | Cycle 4 | Map ID: | 732 |
| Neighborhood CD: | 4 |
Owner |
| Name: | KONKOL, LYNN | Owner ID: | 299249 |
| Mailing Address: | 5180 BAYVIEW RD LANGLEY, WA 98260 | % Ownership: | 100.0000000000% |
| | | Exemptions: | |
Taxes and Assessment Details
Values
| (+) Improvement Homesite Value: | + | N/A | |
| (+) Improvement Non-Homesite Value: | + | N/A | |
| (+) Land Homesite Value: | + | N/A | |
| (+) Land Non-Homesite Value: | + | N/A | Ag / Timber Use Value |
| (+) Curr Use (HS): | + | N/A | N/A |
| (+) Curr Use (NHS): | + | N/A | N/A |
| | | -------------------------- | |
| (=) Market Value: | = | N/A | |
| (–) Productivity Loss: | – | N/A | |
| | | -------------------------- | |
| (=) Subtotal: | = | N/A | |
| (+) Senior Appraised Value: | + | N/A | |
| (+) Non-Senior Appraised Value: | + | N/A | |
| | | -------------------------- | |
| (=) Total Appraised Value: | = | N/A | |
| (–) Senior Exemption Loss: | – | N/A | |
| (–) Exemption Loss: | – | N/A | |
| | | -------------------------- | |
| (=) Taxable Value: | = | N/A | |
Taxing Jurisdiction
| Owner: | KONKOL, LYNN | | |
| % Ownership: | 100.0000000000% | | |
| Total Value: | N/A | | |
| Tax Area: | 710 - APPRAISER-S Whid Schl Dist, outside Langley, improved & 1 acre or less |
| CF | Conservation Futures | N/A | N/A | N/A | N/A | | |
| WCD | Whidbey Conservation District | N/A | N/A | N/A | N/A | | |
| FIRE3 | Fire & Rescue Dist #3 S Whidbey GEN | N/A | N/A | N/A | N/A | | |
| HOBOND | Hospital BOND | N/A | N/A | N/A | N/A | | |
| HOGEN | Hospital GEN | N/A | N/A | N/A | N/A | | |
| CE | County Current Expense | N/A | N/A | N/A | N/A | | |
| CR | County Roads | N/A | N/A | N/A | N/A | | |
| ISLANDEMS | Hospital GEN (EMS) | N/A | N/A | N/A | N/A | | |
| LIB | Library Sno-Isle GEN | N/A | N/A | N/A | N/A | | |
| PORTWHID | Port of S Whidbey GEN | N/A | N/A | N/A | N/A | | |
| SCH206CAP | School 206 CP | N/A | N/A | N/A | N/A | | |
| SCH206MO | School 206 Enrichment | N/A | N/A | N/A | N/A | | |
| ST | State School | N/A | N/A | N/A | N/A | | |
| ST2 | State School Part 2 | N/A | N/A | N/A | N/A | | |
| SWHIDPRBD | P & R S Whidbey BOND | N/A | N/A | N/A | N/A | | |
| SWHIDPRBD2 | P & R S Whidbey BOND2 | N/A | N/A | N/A | N/A | | |
| SWHIDPRMT | P & R S Whidbey GEN | N/A | N/A | N/A | N/A | | |
| | Total Tax Rate: | N/A | | | | | |
| | | | | Taxes w/Current Exemptions: | N/A | | |
| | | | | Taxes w/o Exemptions: | N/A | | |
Improvement / Building
| Improvement #1: | RESIDENTIAL | State Code: | Y | 1584.0 sqft | Value: | N/A |
| Bathrooms: | 1.75 | Bedrooms: | 3 | | Ceiling: | DRYWALL PAINTED | Cooling: | HEAT PUMP/CONV/V | | Exterior Wall/Cover: | CEMENT FIBER | Floor Covering: | HARDWOOD/CARP 60-40 | | Floor Structure: | SLAB ON GRADE | Foundation: | SLAB | | Interior Finish: | DRYWALL PAINT | Plumbing Fixture Cnt: | 10 | | Roof Slope: | 6" IN 12" | Roof Structure/Cover: | CJ ASPHALT |
|
| | Type | Description | Class CD | Sub Class CD | Year Built | Area |
| | BAS | BASE/MAIN FLOOR | 3 | 0 | 1959 | 1584.0 |
| | AGR | ATTACHED GARAGE | 3 | 0 | 1959 | 480.0 |
| | OWP | OPEN WOOD PORCH W/STEPS | 3 | 0 | 1959 | 280.0 |
Sketch
Property Image
Land
| 1 | 16 | AC (00.51-01.00) | 0.6800 | 29620.80 | 90.00 | 0.00 | 1.00 | N/A | N/A |
Roll Value History
| 2026 | N/A | N/A | N/A | N/A | N/A |
| 2025 | $301,321 | $410,000 | $0 | $711,321 | $711,321 |
| 2024 | $304,775 | $390,000 | $0 | $694,775 | $694,775 |
| 2023 | $308,228 | $360,000 | $0 | $668,228 | $668,228 |
| 2022 | $281,442 | $350,000 | $0 | $631,442 | $631,442 |
| 2021 | $246,901 | $220,000 | $0 | $466,901 | $466,901 |
| 2020 | $249,758 | $200,000 | $0 | $449,758 | $449,758 |
| 2019 | $181,196 | $250,000 | $0 | $431,196 | $431,196 |
| 2018 | $181,704 | $250,000 | $0 | $431,704 | $431,704 |
| 2017 | $182,719 | $250,000 | $0 | $432,719 | $432,719 |
| 2016 | $182,217 | $170,000 | $0 | $352,217 | $352,217 |
| 2015 | $184,219 | $170,000 | $0 | $354,219 | $354,219 |
| 2014 | $154,485 | $175,000 | $0 | $329,485 | $329,485 |
| 2013 | $67,747 | $224,816 | $0 | $292,563 | $292,563 |
| 2012 | $68,994 | $224,816 | $0 | $293,810 | $293,810 |
| 2011 | $70,242 | $224,816 | $0 | $295,058 | $295,058 |
| 2010 | $77,086 | $224,816 | $0 | $301,902 | $120,761 |
| 2009 | $80,692 | $261,414 | $0 | $342,106 | $122,568 |
| 2008 | $81,954 | $261,414 | $0 | $343,368 | $122,568 |
| 2007 | $83,215 | $298,639 | $0 | $381,854 | $122,568 |
Deed and Sales History
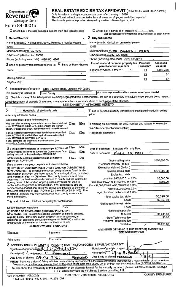
| 1 | 04/28/2021 | WD | Warranty Deed | HOLMES, STEPHEN D | KONKOL, LYNN | | | $570,000.00 | 48145 | 4518567 |
| 2 | 11/18/2016 | WD | Warranty Deed | LENFELD ASSOCIATES, LLC | HOLMES, STEPHEN D | | | $455,000.00 | 27054 | 4412051 |
| 3 | 10/02/2015 | QCD | Quit Claim Deed | GUZMAN, PAUL | LENFELD ASSOCIATES, LLC | | | $181,930.00 | 21832 | 4388063 |
|   | |
| 4 | 01/08/2013 | ESTSEPPROP | Establish Separate Property | GUZMAN, PAUL | GUZMAN, PAUL | | | $0.00 | 10085 | 4331058 |
| 5 | 12/11/2012 | WD | Warranty Deed | PRESTON, GAIL L | GUZMAN, PAUL | | | $182,000.00 | 10084 | 4331057 |
|   | |
| 6 | 07/23/2012 | TRUSTEED | Trustee's Deed | MICOMONACO, JOHN A | PRESTON, GAIL L | | | $0.00 | 8437 | 4320479 |
| 7 | 03/01/1982 | REC | Real Estate Contract | STALDER, LESLIE M | MICOMONACO, JOHN A | | | $70,460.00 | 20592 | 394079 |
| 8 | 12/01/1980 | CD | DNU - Correction Deed | STALDER, LESLIE M | STALDER, LESLIE M | | | $0.00 | 4093 | 377237 |
| 9 | 12/01/1980 | QCD | Quit Claim Deed | KOLLMEYER, THOMAS | STALDER, LESLIE M | | | $0.00 | 4093 | 377237 |
| 10 | 02/01/1980 | CD | DNU - Correction Deed | SCHOENFELD, GEORGE & | KOLLMEYER, THOMAS | | | $2,000.00 | 569 | 365339 |
| 11 | 02/01/1980 | EZ | Easement | KOLLMEYER, T & | SCHOENFELD, GEORGE & | | | $58,900.00 | 570 | 365340 |
| 12 | 08/01/1979 | EXECUTORD | Executor Deed | TIPPERY, WAYNE T | KOLLMEYER, T & | | | $49,000.00 | 94344 | 358189 |
| 13 | 06/01/1978 | OTHER | Other - Misc. Documents | Unknown | TIPPERY, WAYNE T | | | $47,500.00 | 830040 | 3351860 |
Payout Agreement
| No payout information available.. |