Property
Account |
| Property ID: | 124733 | Abbreviated Legal Description: | 21 -IN GL6 BG SW CR GL6 ON ML LONE LAKE N15*E293.87' S74*E259.1' TO RD N45*E90. 46' N78*W304.88' TO ML S15*W57.52' TPB TR D VOL 29 PAGE 505 SUB EZ |
| Geographic ID: | R32905-044-1690 | Agent Code: | |
| Type: | Real | | |
| Tax Area: | 710 - APPRAISER-S Whid Schl Dist, outside Langley, improved & 1 acre or less | Land Use Code | 11 |
| Open Space: | N | DFL | N |
| Historic Property: | N | Remodel Property: | N |
| Multi-Family Redevelopment: | N | | |
| Township: | 29 | Section: | 05 |
| Range: | R3 |
Location |
| Address: | 5174 BAVIEW RD LANGLEY, WA 98260 | Mapsco: | |
| Neighborhood: | Cycle 4 | Map ID: | 732 |
| Neighborhood CD: | 4 |
Owner |
| Name: | MYLEN TTEE, JEAN E | Owner ID: | 294113 |
| Mailing Address: | JENNIFER T FRASCA, TTEE 5174 BAYVIEW RD LANGLEY, WA 98260 | % Ownership: | 100.0000000000% |
| | | Exemptions: | |
Taxes and Assessment Details
Values
| (+) Improvement Homesite Value: | + | N/A | |
| (+) Improvement Non-Homesite Value: | + | N/A | |
| (+) Land Homesite Value: | + | N/A | |
| (+) Land Non-Homesite Value: | + | N/A | Ag / Timber Use Value |
| (+) Curr Use (HS): | + | N/A | N/A |
| (+) Curr Use (NHS): | + | N/A | N/A |
| | | -------------------------- | |
| (=) Market Value: | = | N/A | |
| (–) Productivity Loss: | – | N/A | |
| | | -------------------------- | |
| (=) Subtotal: | = | N/A | |
| (+) Senior Appraised Value: | + | N/A | |
| (+) Non-Senior Appraised Value: | + | N/A | |
| | | -------------------------- | |
| (=) Total Appraised Value: | = | N/A | |
| (–) Senior Exemption Loss: | – | N/A | |
| (–) Exemption Loss: | – | N/A | |
| | | -------------------------- | |
| (=) Taxable Value: | = | N/A | |
Taxing Jurisdiction
| Owner: | MYLEN TTEE, JEAN E | | |
| % Ownership: | 100.0000000000% | | |
| Total Value: | N/A | | |
| Tax Area: | 710 - APPRAISER-S Whid Schl Dist, outside Langley, improved & 1 acre or less |
| CF | Conservation Futures | N/A | N/A | N/A | N/A | | |
| WCD | Whidbey Conservation District | N/A | N/A | N/A | N/A | | |
| FIRE3 | Fire & Rescue Dist #3 S Whidbey GEN | N/A | N/A | N/A | N/A | | |
| HOBOND | Hospital BOND | N/A | N/A | N/A | N/A | | |
| HOGEN | Hospital GEN | N/A | N/A | N/A | N/A | | |
| CE | County Current Expense | N/A | N/A | N/A | N/A | | |
| CR | County Roads | N/A | N/A | N/A | N/A | | |
| ISLANDEMS | Hospital GEN (EMS) | N/A | N/A | N/A | N/A | | |
| LIB | Library Sno-Isle GEN | N/A | N/A | N/A | N/A | | |
| PORTWHID | Port of S Whidbey GEN | N/A | N/A | N/A | N/A | | |
| SCH206CAP | School 206 CP | N/A | N/A | N/A | N/A | | |
| SCH206MO | School 206 Enrichment | N/A | N/A | N/A | N/A | | |
| ST | State School | N/A | N/A | N/A | N/A | | |
| ST2 | State School Part 2 | N/A | N/A | N/A | N/A | | |
| SWHIDPRBD | P & R S Whidbey BOND | N/A | N/A | N/A | N/A | | |
| SWHIDPRBD2 | P & R S Whidbey BOND2 | N/A | N/A | N/A | N/A | | |
| SWHIDPRMT | P & R S Whidbey GEN | N/A | N/A | N/A | N/A | | |
| | Total Tax Rate: | N/A | | | | | |
| | | | | Taxes w/Current Exemptions: | N/A | | |
| | | | | Taxes w/o Exemptions: | N/A | | |
Improvement / Building
| Improvement #1: | RESIDENTIAL | State Code: | Y | 1584.0 sqft | Value: | N/A |
| Bathrooms: | 1.75 | Bedrooms: | 3 | | Ceiling: | DRYWALL PAINTED | Cooling: | HEAT PUMP/CONV/V | | Exterior Wall/Cover: | CEMENT FIBER | Floor Covering: | HARDWOOD/CARP 80-20 | | Floor Structure: | WOOD W/SUBFLOOR | Foundation: | CONCRETE | | Interior Finish: | DRYWALL PAINT | Plumbing Fixture Cnt: | 10 | | Roof Slope: | 8" IN 12" | Roof Structure/Cover: | BEAM ASPHALT |
|
| | Type | Description | Class CD | Sub Class CD | Year Built | Area |
| | BAS | BASE/MAIN FLOOR | 3 | 0 | 2015 | 1584.0 |
| | AGR | ATTACHED GARAGE | 3 | 0 | 2015 | 656.0 |
| | OWP | OPEN WOOD PORCH W/STEPS | 3 | 0 | 2015 | 448.0 |
| | ATU | ATTIC UNFINISHED | 3 | 0 | 2015 | 328.0 |
Sketch
Property Image
Land
| 1 | 16 | AC (00.51-01.00) | 0.5200 | 22651.20 | 70.00 | 0.00 | 1.00 | N/A | N/A |
Roll Value History
| 2026 | N/A | N/A | N/A | N/A | N/A |
| 2025 | $381,449 | $410,000 | $0 | $791,449 | $791,449 |
| 2024 | $384,577 | $390,000 | $0 | $774,577 | $774,577 |
| 2023 | $387,702 | $360,000 | $0 | $747,702 | $747,702 |
| 2022 | $353,905 | $350,000 | $0 | $703,905 | $703,905 |
| 2021 | $306,719 | $220,000 | $0 | $526,719 | $526,719 |
| 2020 | $293,048 | $200,000 | $0 | $493,048 | $493,048 |
| 2019 | $217,328 | $250,000 | $0 | $467,328 | $467,328 |
| 2018 | $213,801 | $200,000 | $0 | $413,801 | $413,801 |
| 2017 | $214,909 | $200,000 | $0 | $414,909 | $414,909 |
| 2016 | $207,284 | $170,000 | $0 | $377,284 | $377,284 |
| 2015 | $189,146 | $170,000 | $0 | $359,146 | $359,146 |
| 2014 | $0 | $150,000 | $0 | $150,000 | $150,000 |
| 2013 | $0 | $156,256 | $0 | $156,256 | $156,256 |
| 2012 | $0 | $156,256 | $0 | $156,256 | $156,256 |
| 2011 | $0 | $156,256 | $0 | $156,256 | $156,256 |
| 2010 | $0 | $156,256 | $0 | $156,256 | $156,256 |
| 2009 | $0 | $211,974 | $0 | $211,974 | $211,974 |
| 2008 | $0 | $211,974 | $0 | $211,974 | $211,974 |
| 2007 | $0 | $242,159 | $0 | $242,159 | $242,159 |
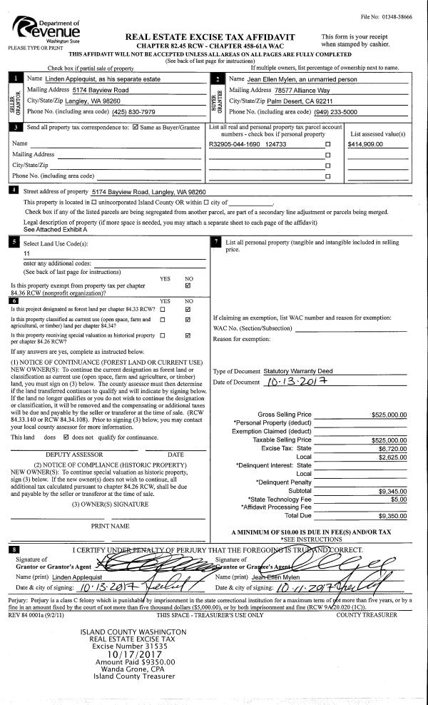
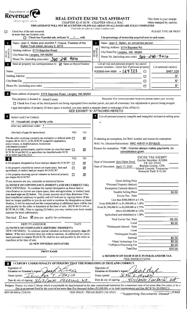
Deed and Sales History
| 1 | 04/27/2020 | QCD | Quit Claim Deed | MYLEN, JEAN E | MYLEN TTEE, JEAN E | | | $0.00 | 42920 | 4486042 |
| 2 | 04/17/2020 | QCD | Quit Claim Deed | MYLEN TRUSTEE, JEAN E | MYLEN, JEAN E | | | $0.00 | 42686 | 4485037 |
| 3 | 10/19/2017 | QCD | Quit Claim Deed | MYLEN, JEAN ELLEN | MYLEN TRUSTEE, JEAN E | | | $0.00 | 31628 | 4432691 |
| 4 | 10/13/2017 | WD | Warranty Deed | APPLEQUIST, LINDEN | MYLEN, JEAN ELLEN | | | $525,000.00 | 31535 | 4432212 |
| 5 | 09/22/2016 | CHGOFIDENT | DNU - Change In Identity | LENFELD ASSOCIATES, LLC | APPLEQUIST, LINDEN | | | $0.00 | 26457 | 4408820 |
| 6 | 10/02/2015 | QCD | Quit Claim Deed | GUZMAN, PAUL | LENFELD ASSOCIATES, LLC | | | $181,930.00 | 21832 | 4388063 |
|   | |
| 7 | 12/11/2012 | WD | Warranty Deed | PRESTON, GAIL L | GUZMAN, PAUL | | | $182,000.00 | 10084 | 4331057 |
|   | |
| 8 | 01/09/2013 | TRUSTEED | Trustee's Deed | MICOMONACO, JOHN A | PRESTON, GAIL L | | | | 8437 | 4320479 |
| 9 | 03/01/1982 | REC | Real Estate Contract | STALDER, LESLIE | MICOMONACO, JOHN A | | | $19,540.00 | 20592 | 394079 |
| 10 | 12/01/1980 | QCD | Quit Claim Deed | STALDER, LESLIE | STALDER, LESLIE | | | $0.00 | 4093 | 377237 |
| 11 | 11/01/1980 | EXECUTORD | Executor Deed | BAYLES, R L | STALDER, LESLIE | | | $23,500.00 | 4026 | 377033 |
| 12 | 02/01/1980 | EZ | Easement | KOLLMEYER, THOMAS | BAYLES, R L | | | $18,000.00 | 781 | 366037 |
| 13 | 12/01/1979 | EXECUTORD | Executor Deed | TIPPERY, WAYNE M | KOLLMEYER, THOMAS | | | $14,000.00 | 96029 | 363525 |
| 14 | 06/01/1978 | OTHER | Other - Misc. Documents | Unknown | TIPPERY, WAYNE M | | | $47,500.00 | 83004 | 335186 |
Payout Agreement
| No payout information available.. |