Property
Account |
| Property ID: | 124797 | Abbreviated Legal Description: | 10 - E/4 SW SE |
| Geographic ID: | R32905-067-3940 | Agent Code: | |
| Type: | Real | | |
| Tax Area: | 719 - APPRAISER-S Whid Schl Dist, outside Langley, vacant & 50 acres or less | Land Use Code | 91 |
| Open Space: | N | DFL | N |
| Historic Property: | N | Remodel Property: | N |
| Multi-Family Redevelopment: | N | | |
| Township: | 29 | Section: | 05 |
| Range: | R3 |
Location |
| Address: | | Mapsco: | |
| Neighborhood: | Cycle 4 | Map ID: | 733 |
| Neighborhood CD: | 4 |
Owner |
| Name: | ORLICH, MICHAEL JAMES | Owner ID: | 308899 |
| Mailing Address: | 115 2ND ST, 1609 LANGLEY, WA 98260 | % Ownership: | 100.0000000000% |
| | | Exemptions: | |
Taxes and Assessment Details
Values
| (+) Improvement Homesite Value: | + | $0 | |
| (+) Improvement Non-Homesite Value: | + | $0 | |
| (+) Land Homesite Value: | + | $0 | |
| (+) Land Non-Homesite Value: | + | $330,000 | |
| (+) Curr Use (HS): | + | $0 | $0 |
| (+) Curr Use (NHS): | + | $0 | $0 |
| | | -------------------------- | |
| (=) Market Value: | = | $330,000 | |
| (–) Productivity Loss: | – | $0 | |
| | | -------------------------- | |
| (=) Subtotal: | = | $330,000 | |
| (+) Senior Appraised Value: | + | $0 | |
| (+) Non-Senior Appraised Value: | + | $330,000 | |
| | | -------------------------- | |
| (=) Total Appraised Value: | = | $330,000 | |
| (–) Senior Exemption Loss: | – | $0 | |
| (–) Exemption Loss: | – | $0 | |
| | | -------------------------- | |
| (=) Taxable Value: | = | $330,000 | |
Taxing Jurisdiction
| Owner: | ORLICH, MICHAEL JAMES | | |
| % Ownership: | 100.0000000000% | | |
| Total Value: | $330,000 | | |
| Tax Area: | 719 - APPRAISER-S Whid Schl Dist, outside Langley, vacant & 50 acres or less |
| CF | Conservation Futures | 0.0313996660 | $330,000 | $330,000 | $10.36 | | |
| HOBOND | Hospital BOND | 0.1893405597 | $330,000 | $330,000 | $62.48 | | |
| HOGEN | Hospital GEN | 0.3848777722 | $330,000 | $330,000 | $127.01 | | |
| CE | County Current Expense | 0.3674210519 | $330,000 | $330,000 | $121.25 | | |
| CR | County Roads | 0.4614296361 | $330,000 | $330,000 | $152.27 | | |
| ISLANDEMS | Hospital GEN (EMS) | 0.4952018576 | $330,000 | $330,000 | $163.42 | | |
| LIB | Library Sno-Isle GEN | 0.3039084203 | $330,000 | $330,000 | $100.29 | | |
| PORTWHID | Port of S Whidbey GEN | 0.1086004714 | $330,000 | $330,000 | $35.84 | | |
| SCH206BOND | School 206 BOND | 0.5960237832 | $330,000 | $330,000 | $196.69 | | |
| SCH206CAP | School 206 CP | 0.3066144020 | $330,000 | $330,000 | $101.18 | | |
| SCH206MO | School 206 Enrichment | 0.4808755445 | $330,000 | $330,000 | $158.69 | | |
| ST | State School | 1.4761226122 | $330,000 | $330,000 | $487.12 | | |
| ST2 | State School Part 2 | 0.7953803475 | $330,000 | $330,000 | $262.48 | | |
| SWHIDPRBD | P & R S Whidbey BOND | 0.0144185398 | $330,000 | $330,000 | $4.76 | | |
| SWHIDPRBD3 | P & R S Whidbey BOND3 | 0.1483535547 | $330,000 | $330,000 | $48.96 | | |
| SWHIDPRMT | P & R S Whidbey GEN | 0.4600000000 | $330,000 | $330,000 | $151.80 | | |
| | Total Tax Rate: | 6.6199682191 | | | | | |
| | | | | Taxes w/Current Exemptions: | $2,184.60 | | |
| | | | | Taxes w/o Exemptions: | $2,184.60 | | |
Improvement / Building
Sketch
| No sketches available for this property. |
Property Image
Land
| 1 | 35 | AC (10.00-30.99) | 10.0000 | 0.00 | 0.00 | 0.00 | 1.00 | $330,000 | $0 |
Roll Value History
| 2026 | N/A | N/A | N/A | N/A | N/A |
| 2025 | $0 | $330,000 | $0 | $330,000 | $330,000 |
| 2024 | $0 | $320,000 | $0 | $320,000 | $320,000 |
| 2023 | $0 | $280,000 | $0 | $280,000 | $280,000 |
| 2022 | $0 | $250,000 | $0 | $250,000 | $250,000 |
| 2021 | $0 | $190,000 | $0 | $190,000 | $190,000 |
| 2020 | $0 | $160,000 | $0 | $160,000 | $160,000 |
| 2019 | $0 | $160,000 | $1,390 | $1,390 | $1,390 |
| 2018 | $0 | $150,000 | $1,370 | $1,370 | $1,370 |
| 2017 | $0 | $150,000 | $1,370 | $1,370 | $1,370 |
| 2016 | $0 | $130,000 | $1,280 | $1,280 | $1,280 |
| 2015 | $0 | $130,000 | $1,280 | $1,280 | $1,280 |
| 2014 | $0 | $110,500 | $1,280 | $1,280 | $1,280 |
| 2013 | $0 | $110,500 | $1,280 | $1,280 | $1,280 |
| 2012 | $0 | $110,500 | $1,280 | $1,280 | $1,280 |
| 2011 | $0 | $130,000 | $1,098 | $1,098 | $1,098 |
| 2010 | $0 | $130,000 | $1,098 | $1,098 | $1,098 |
| 2009 | $0 | $200,000 | $1,098 | $1,098 | $1,098 |
| 2008 | $0 | $215,040 | $1,098 | $1,098 | $1,098 |
| 2007 | $0 | $215,040 | $1,098 | $1,098 | $1,098 |
Deed and Sales History
| 1 | 05/23/2023 | WD | Warranty Deed | REED TTEE, JAMES G W | ORLICH, MICHAEL JAMES | | | $2,615,000.00 | 56804 | 4560302 |
|   | |
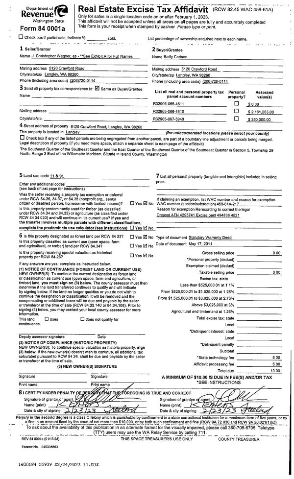
| 2 | 05/17/2011 | WD | Warranty Deed | WAGNER, J CHRISTOPHER | CARLSON, BETTY | | | $0.00 | 55939 | 4557085 |
| 3 | 08/25/2020 | WD | Warranty Deed | CARLSON, BETTY | REED TTEE, JAMES G W | | | $1,995,000.00 | 44462 | 4495071 |
|   | |
| 4 | 05/17/2011 | WD | Warranty Deed | WAGNER, J CHRISTOPHER | CARLSON, BETTY | | | $1,800,000.00 | 4521 | 4295741 |
| 5 | 12/01/1991 | WD | Warranty Deed | TRILLIUM, CORPORATION | WAGNER, J C | | | $25,000.00 | 14623 | 91020192 |
| 6 | 01/01/1988 | WD | Warranty Deed | GEORGIA-PACIFIC, | TRILLIUM, CORPORATION | | | $12,985.00 | 80501 | 88002071 |
| 7 | 01/01/1900 | OTHER | Other - Misc. Documents | Unknown | GEORGIA-PACIFIC, | | | $0.00 | 0 | 0 |
Payout Agreement
| No payout information available.. |