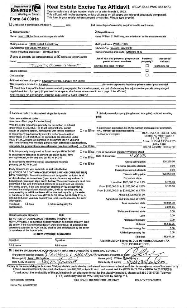
Property
Account |
| Property ID: | 125796 | Abbreviated Legal Description: | 43 - IN SE: BG N5*W906.11' FR S/4 CR SEC 6 S85*E925.61 N2*W240' N85*W934.62' S5*E 241.36' TPB TGW INT TR A TGW SUB EZ TGW WATER/RT & EZ SUB TO WELL SITE LOC ON PT LOTS 3 & 4 FOR LONE LAKE HGTS ASS'N V4 SUR P22 AF#303462 |
| Geographic ID: | R32906-095-3690 | Agent Code: | |
| Type: | Real | | |
| Tax Area: | 712 - APPRAISER-S Whid Schl Dist, outside Langley, improved, greater than 1 acre | Land Use Code | 11 |
| Open Space: | N | DFL | N |
| Historic Property: | N | Remodel Property: | N |
| Multi-Family Redevelopment: | N | | |
| Township: | 29 | Section: | 06 |
| Range: | R3 |
Location |
| Address: | 5120 RIBBIT RD LANGLEY, WA 98260 | Mapsco: | |
| Neighborhood: | Cycle 4 | Map ID: | 738 |
| Neighborhood CD: | 4 |
Owner |
| Name: | ADLIN, JESSICA | Owner ID: | 312594 |
| Mailing Address: | 5120 RIBBIT RD LANGLEY, WA 98260 | % Ownership: | 100.0000000000% |
| | | Exemptions: | |
Taxes and Assessment Details
Values
| (+) Improvement Homesite Value: | + | $0 | |
| (+) Improvement Non-Homesite Value: | + | $411,622 | |
| (+) Land Homesite Value: | + | $0 | |
| (+) Land Non-Homesite Value: | + | $380,000 | |
| (+) Curr Use (HS): | + | $0 | $0 |
| (+) Curr Use (NHS): | + | $0 | $0 |
| | | -------------------------- | |
| (=) Market Value: | = | $791,622 | |
| (–) Productivity Loss: | – | $0 | |
| | | -------------------------- | |
| (=) Subtotal: | = | $791,622 | |
| (+) Senior Appraised Value: | + | $0 | |
| (+) Non-Senior Appraised Value: | + | $791,622 | |
| | | -------------------------- | |
| (=) Total Appraised Value: | = | $791,622 | |
| (–) Senior Exemption Loss: | – | $0 | |
| (–) Exemption Loss: | – | $0 | |
| | | -------------------------- | |
| (=) Taxable Value: | = | $791,622 | |
Taxing Jurisdiction
| Owner: | ADLIN, JESSICA | | |
| % Ownership: | 100.0000000000% | | |
| Total Value: | $791,622 | | |
| Tax Area: | 712 - APPRAISER-S Whid Schl Dist, outside Langley, improved, greater than 1 acre |
| CF | Conservation Futures | 0.0313996660 | $791,622 | $791,622 | $24.86 | | |
| FIRE3 | Fire & Rescue Dist #3 S Whidbey GEN | 1.2130821753 | $791,622 | $791,622 | $960.30 | | |
| HOBOND | Hospital BOND | 0.1893405597 | $791,622 | $791,622 | $149.89 | | |
| HOGEN | Hospital GEN | 0.3848777722 | $791,622 | $791,622 | $304.68 | | |
| CE | County Current Expense | 0.3674210519 | $791,622 | $791,622 | $290.86 | | |
| CR | County Roads | 0.4614296361 | $791,622 | $791,622 | $365.28 | | |
| ISLANDEMS | Hospital GEN (EMS) | 0.4952018576 | $791,622 | $791,622 | $392.01 | | |
| LIB | Library Sno-Isle GEN | 0.3039084203 | $791,622 | $791,622 | $240.58 | | |
| PORTWHID | Port of S Whidbey GEN | 0.1086004714 | $791,622 | $791,622 | $85.97 | | |
| SCH206BOND | School 206 BOND | 0.5960237832 | $791,622 | $791,622 | $471.83 | | |
| SCH206CAP | School 206 CP | 0.3066144020 | $791,622 | $791,622 | $242.72 | | |
| SCH206MO | School 206 Enrichment | 0.4808755445 | $791,622 | $791,622 | $380.67 | | |
| ST | State School | 1.4761226122 | $791,622 | $791,622 | $1,168.53 | | |
| ST2 | State School Part 2 | 0.7953803475 | $791,622 | $791,622 | $629.64 | | |
| SWHIDPRBD | P & R S Whidbey BOND | 0.0144185398 | $791,622 | $791,622 | $11.41 | | |
| SWHIDPRBD3 | P & R S Whidbey BOND3 | 0.1483535547 | $791,622 | $791,622 | $117.44 | | |
| SWHIDPRMT | P & R S Whidbey GEN | 0.4600000000 | $791,622 | $791,622 | $364.15 | | |
| | Total Tax Rate: | 7.8330503944 | | | | | |
| | | | | Taxes w/Current Exemptions: | $6,200.82 | | |
| | | | | Taxes w/o Exemptions: | $6,200.82 | | |
Improvement / Building
| Improvement #1: | RESIDENTIAL | State Code: | Y | 1828.0 sqft | Value: | $411,622 |
| Bathrooms: | 3 | Bedrooms: | 2 | | Ceiling: | DRYWALL PAINTED | Cooling: | HEAT PUMP/CONV/V | | Exterior Wall/Cover: | SHINGLE | Floor Covering: | VINYL/HARDWOOD 60-40 | | Floor Structure: | WOOD W/SUBFLOOR | Foundation: | CONCRETE | | Interior Finish: | DRYWALL PAINT | Plumbing Fixture Cnt: | 12 | | Roof Slope: | 4" IN 12" | Roof Structure/Cover: | CJ ALUMINIUM HEAVY |
|
| | Type | Description | Class CD | Sub Class CD | Year Built | Area |
| | BAS | BASE/MAIN FLOOR | 4 | 0 | 1979 | 960.0 |
| | OWP | OPEN WOOD PORCH W/STEPS | 4 | 0 | 1979 | 354.7 |
| | OWR | OPEN WOOD PORCH W/STEPS/ROOF | 4 | 0 | 1979 | 102.0 |
| | DWN | DOWNSTAIRS LIVING AREA | 4 | 0 | 1979 | 868.0 |
| | BIG | BUILT IN GARAGE | 4 | 0 | 1979 | 372.0 |
| | oUTI | UTILITY | 4 | 0 | 1979 | 156.0 |
Sketch
| No sketches available for this property. |
Property Image
Land
| 1 | 32 | AC (03.01-09.99) | 5.0800 | 0.00 | 0.00 | 0.00 | 1.00 | $380,000 | $0 |
Roll Value History
| 2026 | N/A | N/A | N/A | N/A | N/A |
| 2025 | $411,622 | $380,000 | $0 | $791,622 | $791,622 |
| 2024 | $183,807 | $350,000 | $0 | $533,807 | $533,807 |
| 2023 | $179,564 | $330,000 | $0 | $509,564 | $509,564 |
| 2022 | $164,654 | $290,000 | $0 | $454,654 | $454,654 |
| 2021 | $144,956 | $230,000 | $0 | $374,956 | $374,956 |
| 2020 | $130,957 | $190,000 | $0 | $320,957 | $320,957 |
| 2019 | $94,081 | $250,000 | $0 | $344,081 | $344,081 |
| 2018 | $94,386 | $210,000 | $0 | $304,386 | $304,386 |
| 2017 | $94,995 | $190,000 | $0 | $284,995 | $284,995 |
| 2016 | $96,212 | $135,000 | $0 | $231,212 | $231,212 |
| 2015 | $97,431 | $135,000 | $0 | $232,431 | $232,431 |
| 2014 | $99,013 | $137,160 | $0 | $236,173 | $236,173 |
| 2013 | $100,255 | $137,160 | $0 | $237,415 | $237,415 |
| 2012 | $101,495 | $137,160 | $0 | $238,655 | $238,655 |
| 2011 | $102,736 | $137,160 | $0 | $239,896 | $239,896 |
| 2010 | $109,662 | $137,160 | $0 | $246,822 | $246,822 |
| 2009 | $114,428 | $223,520 | $0 | $337,948 | $337,948 |
| 2008 | $147,520 | $244,781 | $0 | $392,301 | $392,301 |
| 2007 | $149,465 | $244,653 | $0 | $394,118 | $394,118 |
Deed and Sales History
| 1 | 06/03/2024 | WD | Warranty Deed | MURPHY, MAUREEN P | ADLIN, JESSICA | | | $885,000.00 | 60171 | 4573021 |
| 2 | 10/16/2008 | OTHER | Other - Misc. Documents | ROWLEY, MAUREEN P | MURPHY, MAUREEN P | | | $0.00 | 80961 | 0 |
| 3 | 05/23/2007 | QCD | Quit Claim Deed | CROMBIE, COLLEEN | ROWLEY, MAUREEN P | | | $0.00 | 71783 | 4203168 |
| 4 | 09/02/2005 | WD | Warranty Deed | LANGLOIS, GEORGE R | CROMBIE, COLLEEN | | | $355,000.00 | 54538 | 4147388 |
| 5 | 10/01/1988 | WD | Warranty Deed | BARKER, CHRISTOPHER C | LANGLOIS, GEORGE R | | | $84,000.00 | 83654 | 88013645 |
| 6 | 06/01/1983 | OTHER | Other - Misc. Documents | BARKER, CHRISTOPHER C | BARKER, CHRISTOPHER C | | | $0.00 | 60063 | 410147 |
| 7 | 06/01/1983 | OTHER | Other - Misc. Documents | BARKER, CHRISTOPHER C | BARKER, CHRISTOPHER C | | | $0.00 | 60069 | 410150 |
| 8 | 05/01/1979 | OTHER | Other - Misc. Documents | Unknown | BARKER, CHRISTOPHER C | | | $24,600.00 | 92391 | 352631 |
Payout Agreement
| No payout information available.. |